主宰自我空间,演绎美学主角



作品说明
- 项目类型:私宅
- 项目地点:西安市
- 建筑面积:169.0000㎡
- 项目造价:120.0000万元
- 主案设计师: 孙雅荣
- 竣工时间:2023年1月
-
项目定位:本案是设计师孙小雅为自己和家人打造的温暖港湾,全程没有效果图的制作,从一件沙发开始,再到点线面的细腻构建,每一个细节都由居住者自己装点,塑造自己喜欢的简约美式原木风,从空间的划分,功能的布局上都是依据一家人实际需求去进行的规划,不仅仅是家的设计,更是对一家人未来生活方式的勾勒及描绘。
-
空间意境:从一套橄榄绿色的皮革沙发开始,根据沙发选定出墙面和门的颜色,引入了美式风格的石膏线线条,为了让家更具生活的气息,在现代简约的横平竖直的基础上融入了更多的原木元素,利用不规则的储物柜,别致造型的时钟,一定程度的提升了空间整体的艺术气息,洞石元素的加入,更是为整个空间赋予了岁月静好的安逸感。
-
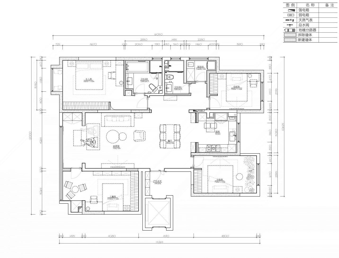
空间布局:1,阳台纳入到客厅空间,扩大客厅的使用范围。
2,原本与电视背景墙在一侧的女儿房的房门,挪到了阳台,并将一部分阳台空间划分给女儿房,扩大了女儿房的使用范围。
3,拔除了餐厨区域与客房相连的墙垛,将原来入户门正对的玄关向厨房方向扩大平移,同时将厨房向外扩张,让餐厨获得了更宽阔的使用范围,空间也更加的通透。 -
设计选材:墙面乳胶漆通刷,地面公区及卧室实木地板通铺,卫生间厨房瓷砖铺贴,全屋定制柜实木烤漆。
-
用户体验:每间卧室都有属于自己主人的颜色,很多智能化的设计对长辈更加的友好,实用性非常的高。学习,茶歇,聚餐,绿植,泡澡,每一个普通的生活场景,都被合理的规划到了这次的私宅设计中,设计师本人,在自己的空间美学中,成为了主角。

