龙湖.舜山府


作品说明
- 项目类型:住宅公寓
- 项目地点:重庆市
- 建筑面积:190.0000㎡
- 项目造价:95.0000万元
- 主案设计师: 于子恒
- 竣工时间:2024年4月
- 设计机构:横壹标准室内设计工作室
-
项目定位:在这个家居空间中,我们致力于将现代审美与实用功能完美结合,打造出既符合90后客户生理居住需求,又满足其精神慰藉的诗意远方。我们的设计理念始终以人为本,让空间与人的生活和谐共存。
-
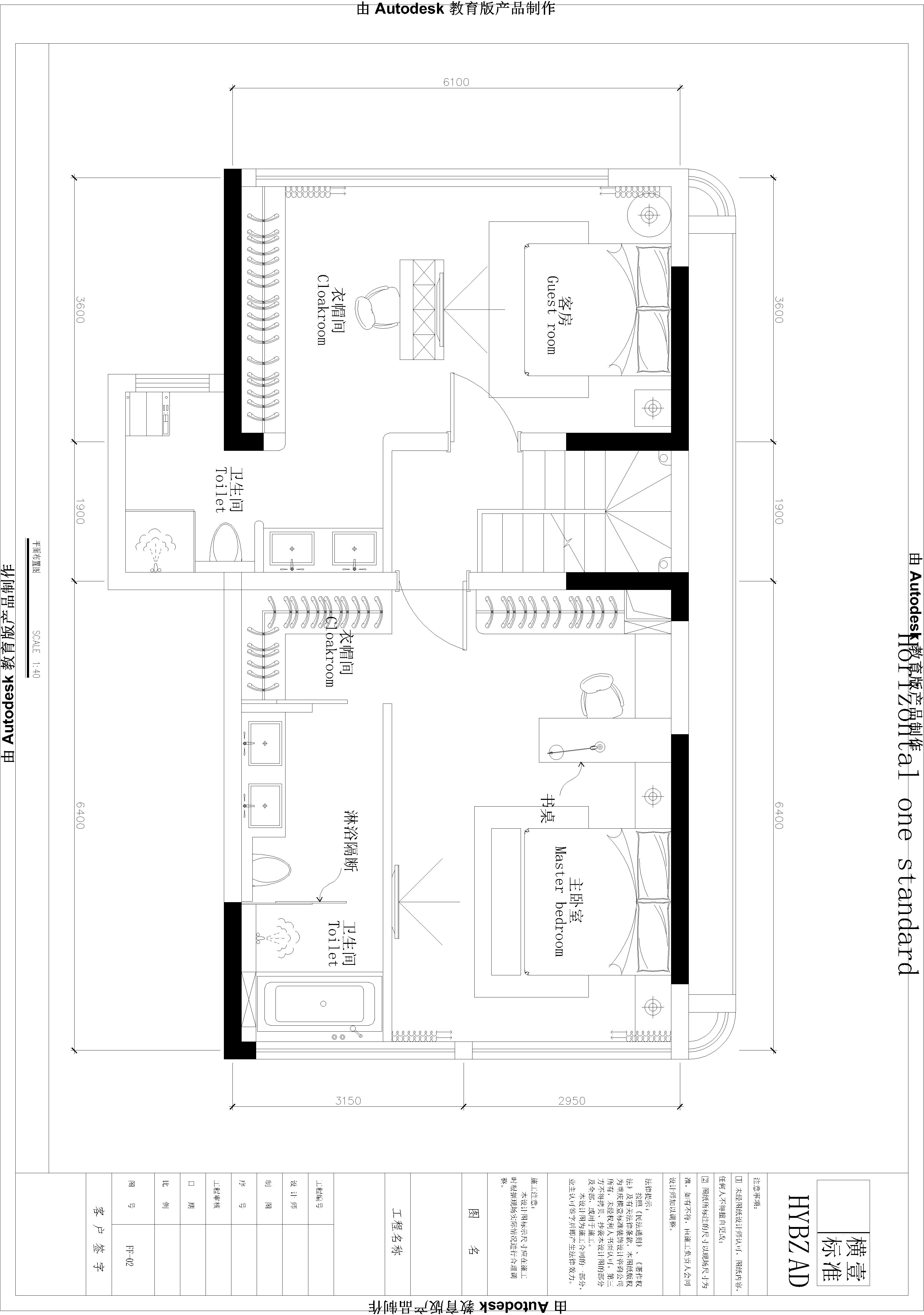
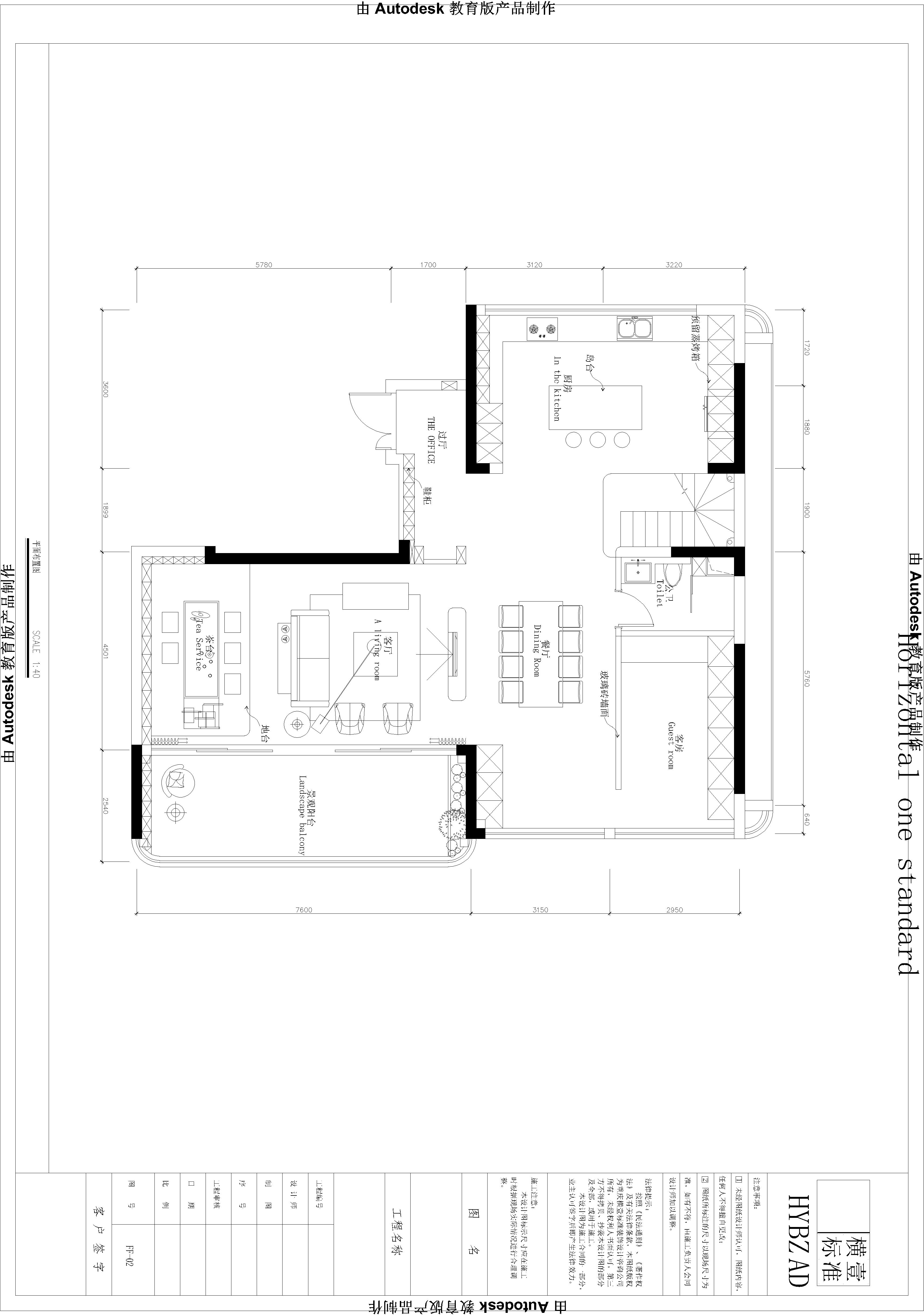
空间意境:空间中,木饰面墙板以其自然的纹理和温暖的色调,为室内环境带来了一抹自然的宁静。弧形木饰面造型与圆弧型吊顶、圆弧型柜子的设计,不仅美观,更增加了空间的流动性和舒适感。每一条弧线都如诗般流淌,带给人心灵的抚慰。玻璃砖的引入,为空间增添了一抹透明的轻盈。而暖白色艺术涂料的运用,则让墙面散发出温暖的光芒。玻璃砖的独特质感,在光线的折射下,营造出一种若隐若现的视觉效果。开放式厨房的设计,不仅增加了空间的通透感,石材台面岛台更是实用与美学的完美结合。悬空电视墙以弧形造型的质感突显现代感,而石材电视墙地台则以其坚固的质感为空间增添稳重。白色钢板加木饰面的楼梯扶手,不仅提供了舒适的触感,更在光影的照射下展现出别样的美感。木地板和石材结合的梯步,每一步都踏出不同的质感,让人感受到空间的丰富与变化。
-
空间布局:在设计的整个过程中,我们始终保持现有的采光,让自然光充分地流入每一个角落。无论是客厅地面的素色水泥砖还是木地板地台,它们与光线的结合都让空间更加生动。地台的灯带设计更是巧妙地增强了空间的层次感。开放式厨房既满足了客户的需求又增加了空间的通透感。
-
设计选材:在设计及装修过程中,我们始终秉持着节约成本、合理利用资源的原则,特别是在选择运营材料方面。我们深知过多的装饰材料不仅会带来造价的增加,还可能影响到空间的采光和通风,从而影响到整体的空间感受和舒适度。
-
用户体验:空间是人使用的,我们始终坚信以人为本的设计理念。从每一个细节到整体布局,我们都充分考虑了人的需求和感受。希望每一个细节都能为居住者带来舒适和满足。整个空间设计不仅注重生理上的居住体验感,更在意诗和远方的精神层面的慰藉。我们希望通过这样的设计,为居住者创造一个既实用又富有美感的生活环境。

