大足小森林舞蹈


作品说明
- 项目类型:公共
- 项目地点:重庆市
- 建筑面积:400.0000㎡
- 项目造价:35.0000万元
- 主案设计师: 苜梵(重庆)室内设计有限公司
- 参与设计师:刘熠、董丽
- 竣工时间:2024年8月
- 设计机构:苜梵(重庆)室内设计有限公司
-
项目定位:这片专为少儿舞蹈培训而设计的空间,仿佛步入了一场轻盈的梦。我们追求的是那份沉浸与忘我,设计理念源于对孩子们纯真天性的尊重与呵护,旨在创造一个既安稳又充满灵性的舞蹈天地。让孩童在舞蹈的旋律中,心灵得以自由飞翔,身心得以和谐成长。
-
空间意境:这片充满童趣的室内天地,暖色墙壁如同温暖的怀抱,与米色地板交织温馨梦境。螺旋楼梯轻旋如诗,宛如《小王子》中那条通往各个星球的神秘航道,引领着孩子们的心灵远航。光线透过精致的窗棂,光影斑驳。水晶吊灯洒落晶莹,每一颗都像是夜空中最亮的星,温润如玉,为孩子们点亮了梦想的道路。色彩心理学被巧妙应用于设计中,激发活力与舒缓情绪的搭配相得益彰,营造出既充满活力的氛围。
-
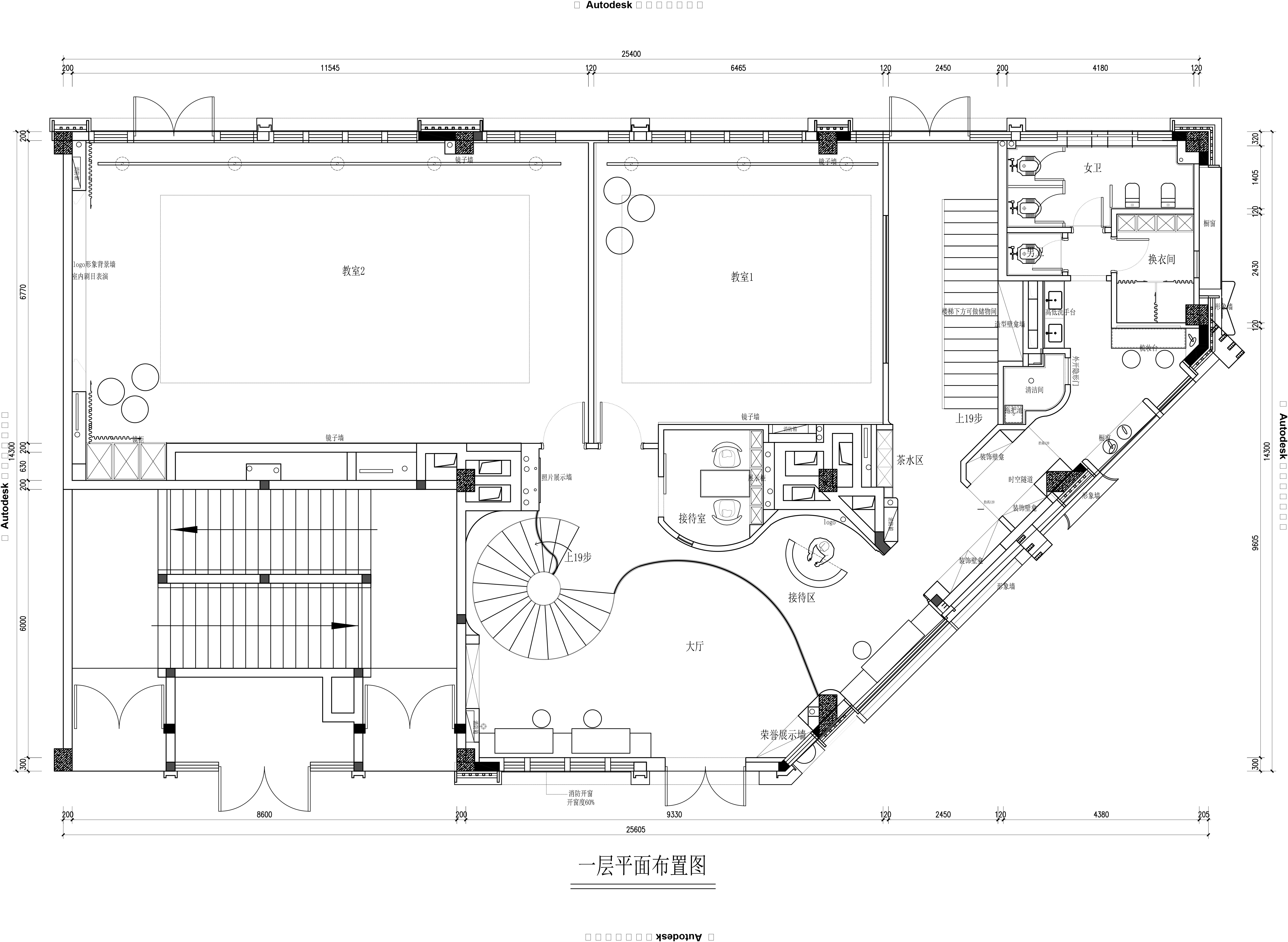
空间布局:旋转楼梯作为建筑结构的精妙之笔,充分利用了钢构的安全和轻盈,以其独特的姿态及极少的空间占用率,实现了楼面的科学动线,其流畅的线条如同舞动的绸带,轻盈地划过。步履落下,犹如音符的敲击,将空间转化为秀台,舞动着关于种子与孕育的故事,既赋予了空间韵律与动态。又传递出来自灵魂的触动。
-
设计选材:本次项目主材多为质感漆以及地胶,材质轻盈污染少,安装方便快捷却又能营造空间美感。
-
用户体验:舞蹈练习区宽敞明亮,让孩子们可以自由舞动,释放内心的热情与活力。教学与展示巧妙融入,为教练与孩子们提供了一个专业而温馨的舞台。流线设计简洁流畅,无论是学员还是教练,都能在这片空间中找到属于自己的舞蹈轨迹。

