VOX Lounge
203
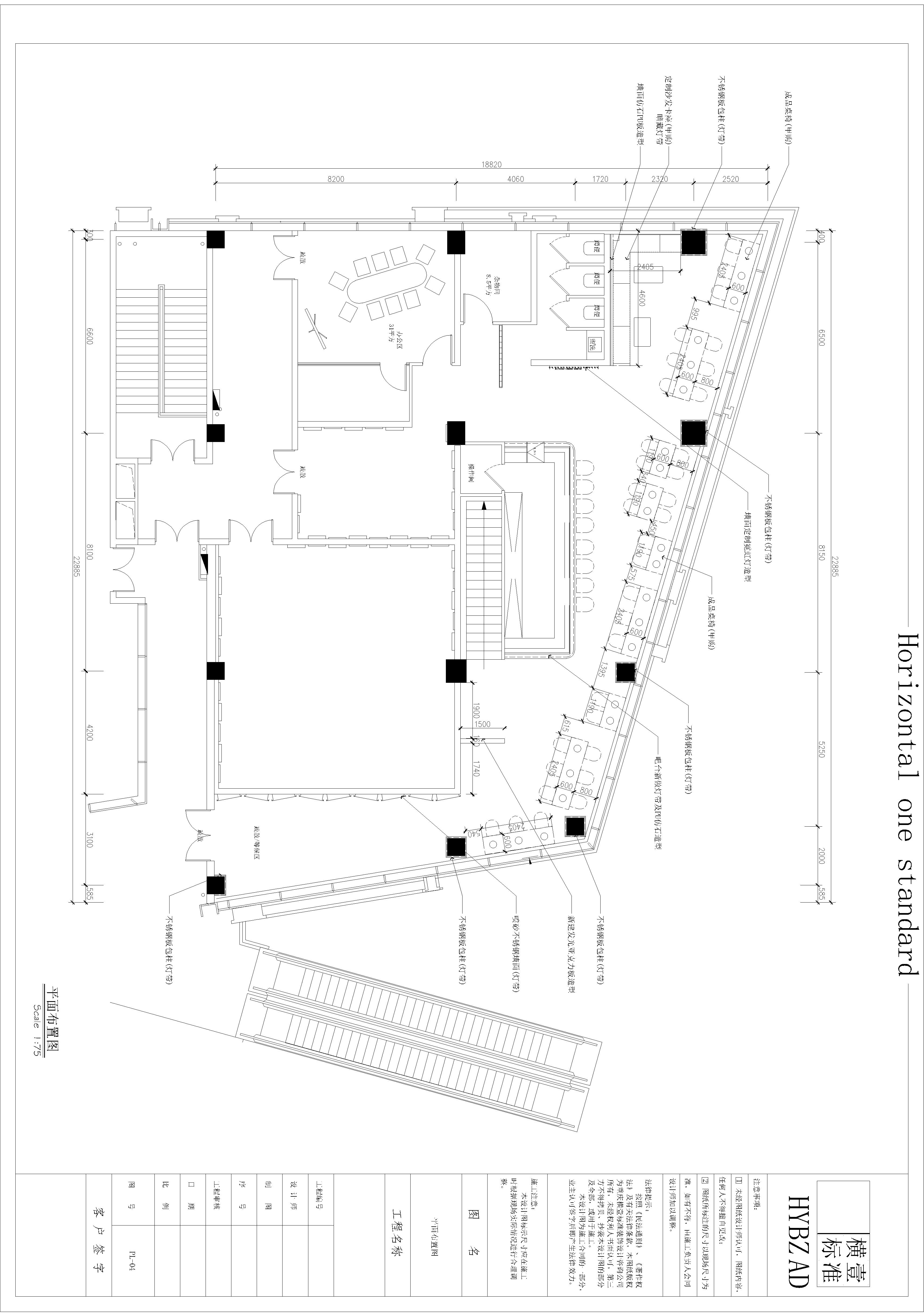
作品说明
- 项目类型:休闲娱乐
- 项目地点:重庆市
- 建筑面积:150.0000㎡
- 项目造价:20.0000万元
- 主案设计师: 于子恒
- 竣工时间:2024年5月
- 设计机构:横壹标准室内设计工作室
-
项目定位:重塑社交新场景,打造一个既满足当下年轻人的审美偏好,又能成为安抚喝酒爱好者的精神乌托邦。
-
空间意境:本设计旨在打造一个充满现代感与时尚气息的酒吧空间,以红色为主色调,通过不同明暗程度的红色灯光营造出神秘、浪漫的氛围,为整个空间带来热烈、激情的氛围。同时,通过不同光影的组合,营造出多样化的空间情绪。由于空间大小的原因,我们在墙面和顶面运用了镜面不锈钢。这种材质不仅能够反射红色灯光,使空间看起来更加开阔,还为整个酒吧增添了现代感和科技感。而且反射的红色灯光更是增添了一种梦幻般的效果。当灯光在镜面上跳跃、闪烁,仿佛整个空间都被赋予了生命,让人流连忘返。通过红色灯光与镜面元素的巧妙结合,营造出一种独特而富有魅力的氛围。
-
空间布局:由于是一个狭长的空间,吧台作为酒吧的核心区域,将采用开放式设计,便于顾客与调酒师之间的互动。整个就坐区域全部靠落地窗,让客人既能感受酒精香气、迷人音乐的流光溢彩,又能直观窗外的车水马龙。
-
设计选材:我们并没有运用过多的、复杂的材质,通过红色灯光与镜面元素的巧妙结合,打造出一个时尚、现代、充满魅力、富有层次感的酒吧空间。空间布局与灯光氛围相得益彰,塑造出一个既具现代感又充满时尚气息的酒吧环境。整个设计注重空间的布局、光影的搭配以及材质的选择,力求为顾客带来一次别具一格的沉浸式体验。同时,关注顾客的舒适度与安全性,确保酒吧成为一个高品质的娱乐场所。
-
用户体验:用最少的投入,打造出了最具氛围感的空间,当灯光在镜面上跳跃、闪烁,仿佛整个空间都被赋予了生命,让人流连忘返。通过红色灯光与镜面元素的巧妙结合,营造出一种独特而富有魅力的氛围。
0
0

认证 · 让您身份增值