三禾
299
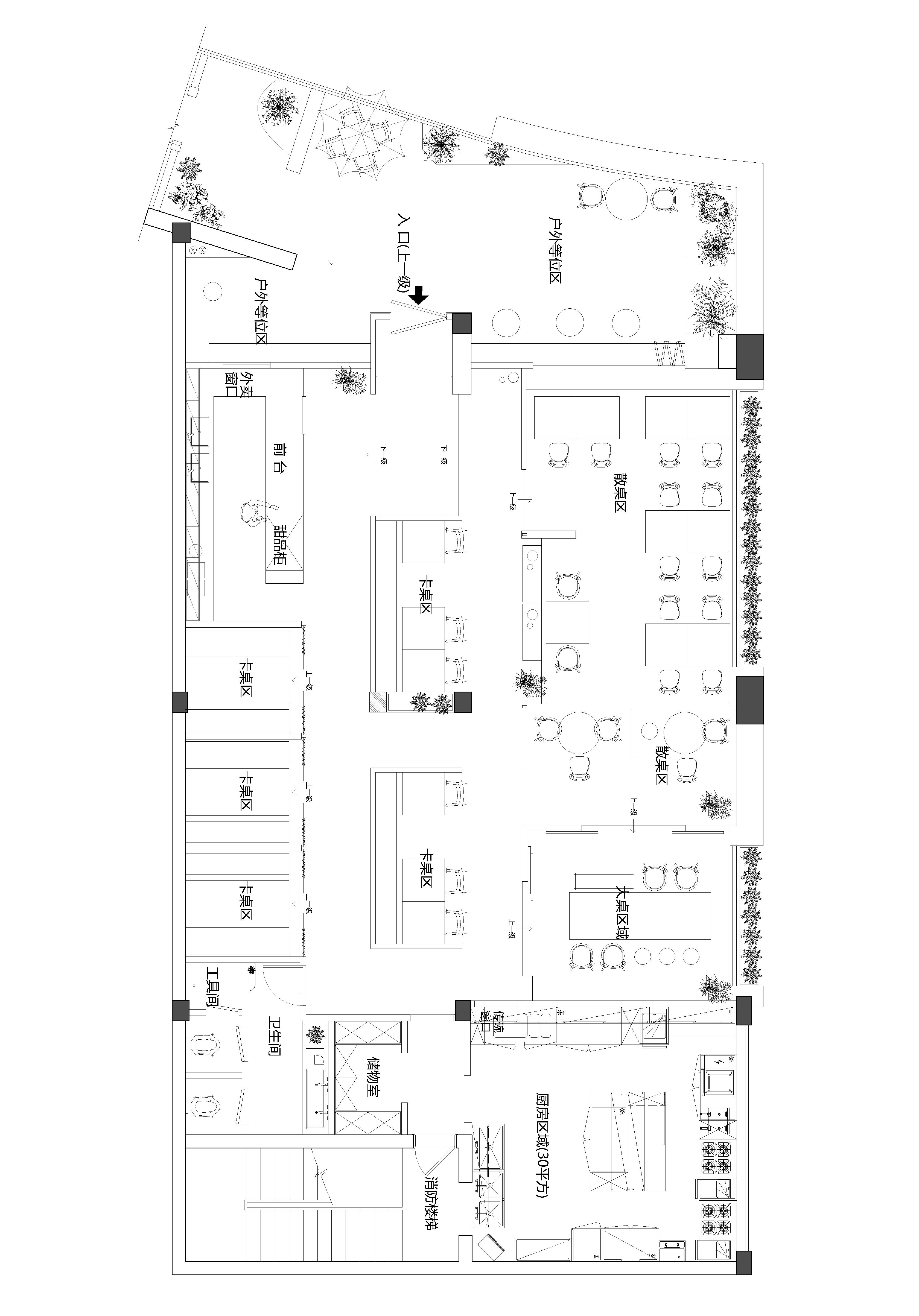
作品说明
- 项目类型:餐饮
- 项目地点:长沙市
- 建筑面积:248.0000㎡
- 项目造价:60.0000万元
- 参与设计师:邱媛 曾海英
- 竣工时间:2024年05月20日
- 设计机构:那蓝山月空间设计
-
项目定位:项目座落在校园边上,菜品以融合轻食为主;
-
空间意境:项目场地带有一个外院,在设计结构上,我们让室内外可互动对话;
-
空间布局:室内场景与室外景观的融合,让味蕾与自然完美邂逅;
-
设计选材:毛胚水泥与质朴木材的结合,自然而往,朴拙归真;
-
用户体验:空间氛围很好,从入户就开始被空间的差别感治愈到;
0
0

认证 · 让您身份增值