-
项目定位:本项目是为业主打造的度假民宿式的住宅,位于湖边,采用自然、原始质感的材料,创造出松弛、宁静的生活氛围。通过简洁的现代设计与传统东方元素相结合,为业主提供一个远离喧嚣、接近自然的理想栖息地。
-
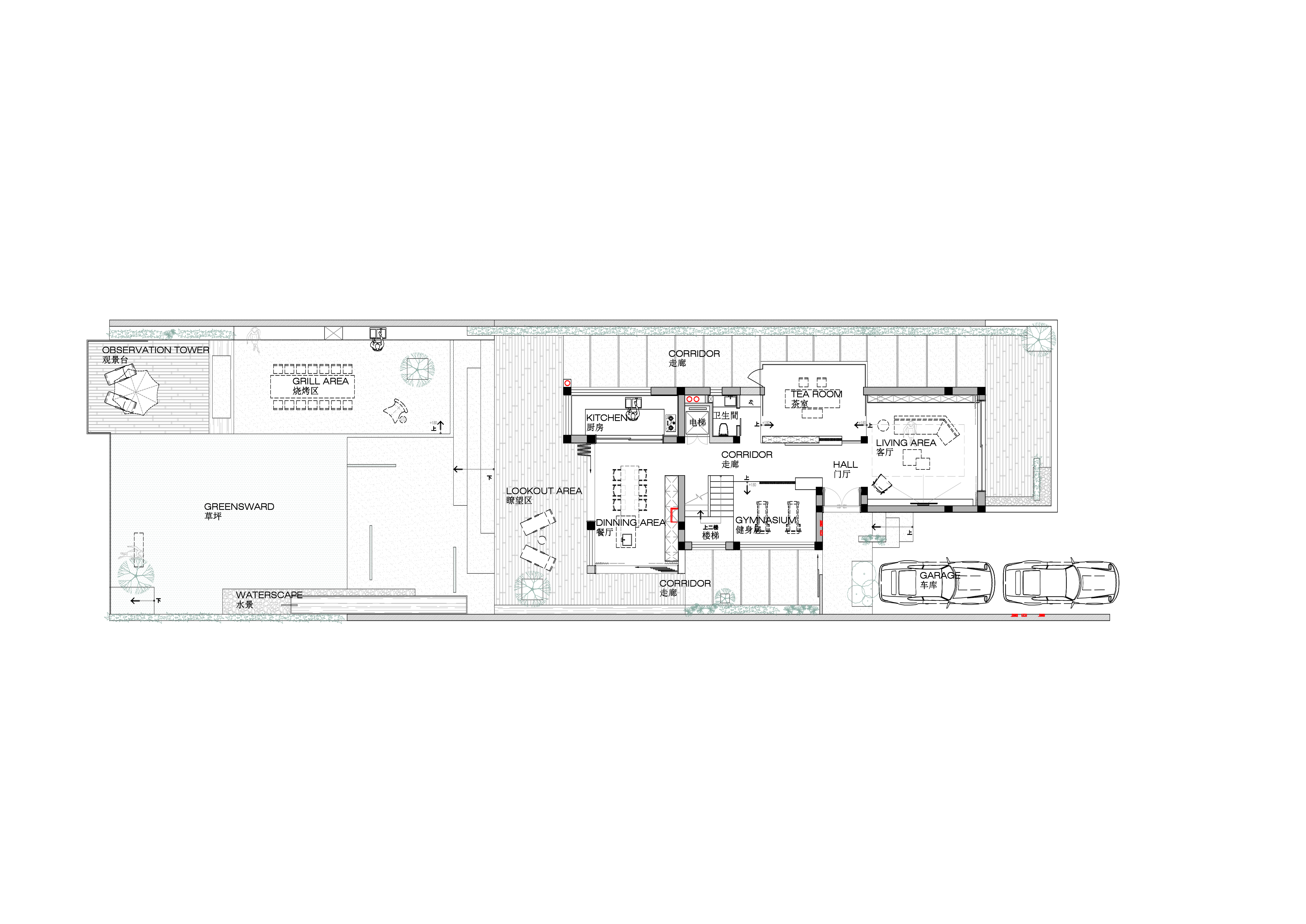
空间意境:设计创新点在于通过白色真石漆外立面与斯卡帕风格角窗的结合,打造出极具自然美感的建筑外观。落地窗模糊了室内外的界限,将茶室与户外竹林相融,营造出如园林般的自然氛围,既具现代感又不失东方韵味。
-
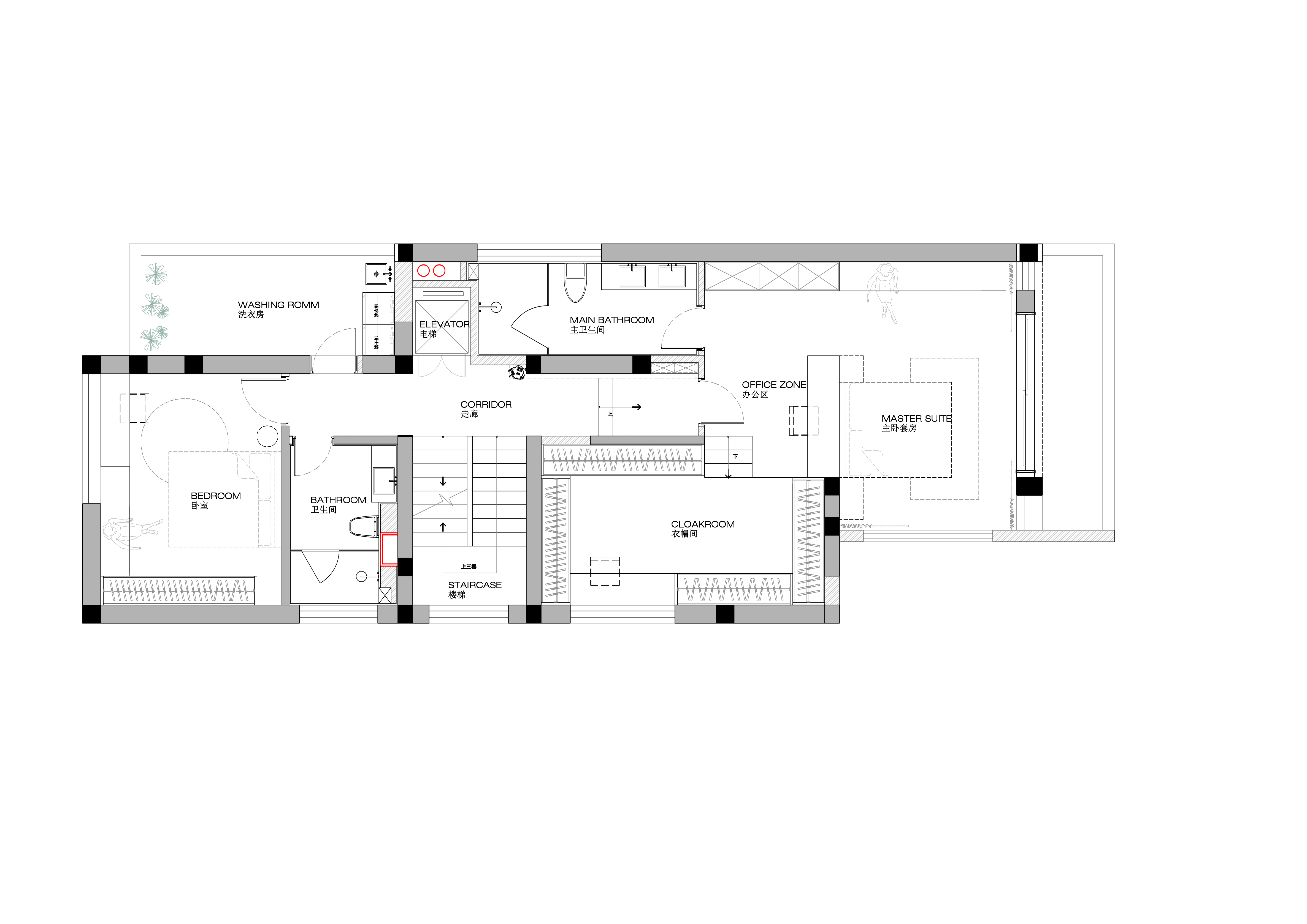
空间布局:空间布局创新在于L型厨房与餐厅的分合设计,以及开放式茶室与客厅的流动连接。楼梯周围的微水泥与木质隔断增添层次感,地台和抬高的设计让空间充满轻盈感,同时增强了视觉与使用上的丰富性。
-
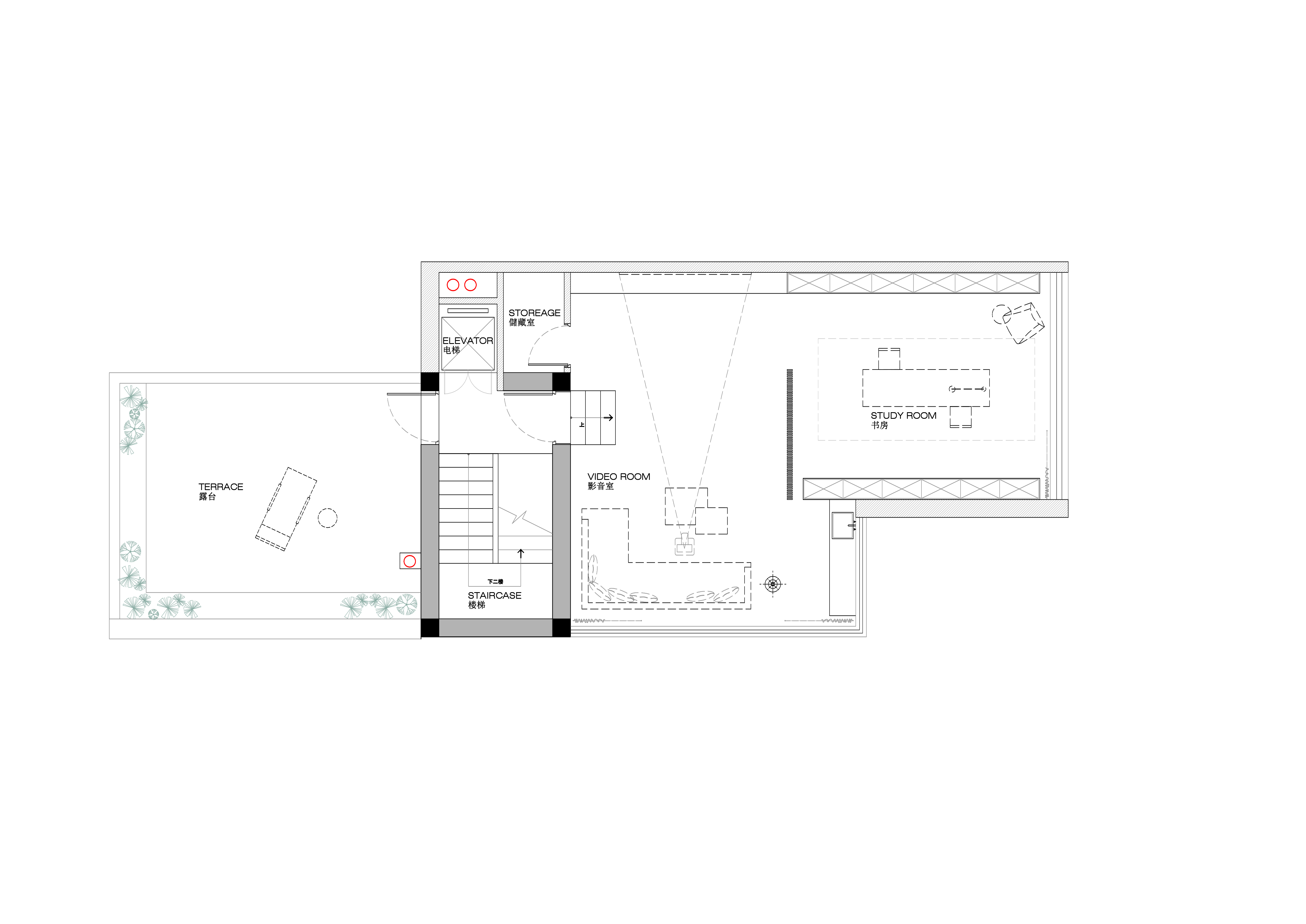
设计选材:选材上大力运用自然材料,如白色真石漆、木质地板、微水泥等,传达出温暖、自然的质感,同时注重环保与可持续性。茶室和冥想室的设计则更强调中式元素,如自然茶桌、淡雅装饰,带来纯粹、宁静的生活体验。
-
用户体验:投入使用后,用户对家中充满自然气息的设计高度评价,尤其是茶室和书房的设计让他们感到宁静与放松。落地窗带来的景观视野增强了空间的舒适感,而冥想室和书房的私密性与静谧氛围使居住者能够享受内心的平静与安宁。

