绿城中国杭州城市品牌馆



作品说明
- 项目类型:商业照明
- 项目地点:杭州市
- 建筑面积:1200.0000㎡
- 项目造价:3000.0000万元
- 主案设计师: 邹辉
- 竣工时间:2022年11月
-
照明设计说明:绿城杭州品牌馆是展现绿城匠心品质、精致审美、文化品位的平台载体,展出的是绿城28年来的杰出理念,是绿城献给杭州的全部作品,而这座品牌馆,更像是一座绿城博物馆。 作为品牌博物馆,绿城杭州馆又是最不像展厅的那个,也是最有情怀的那个。
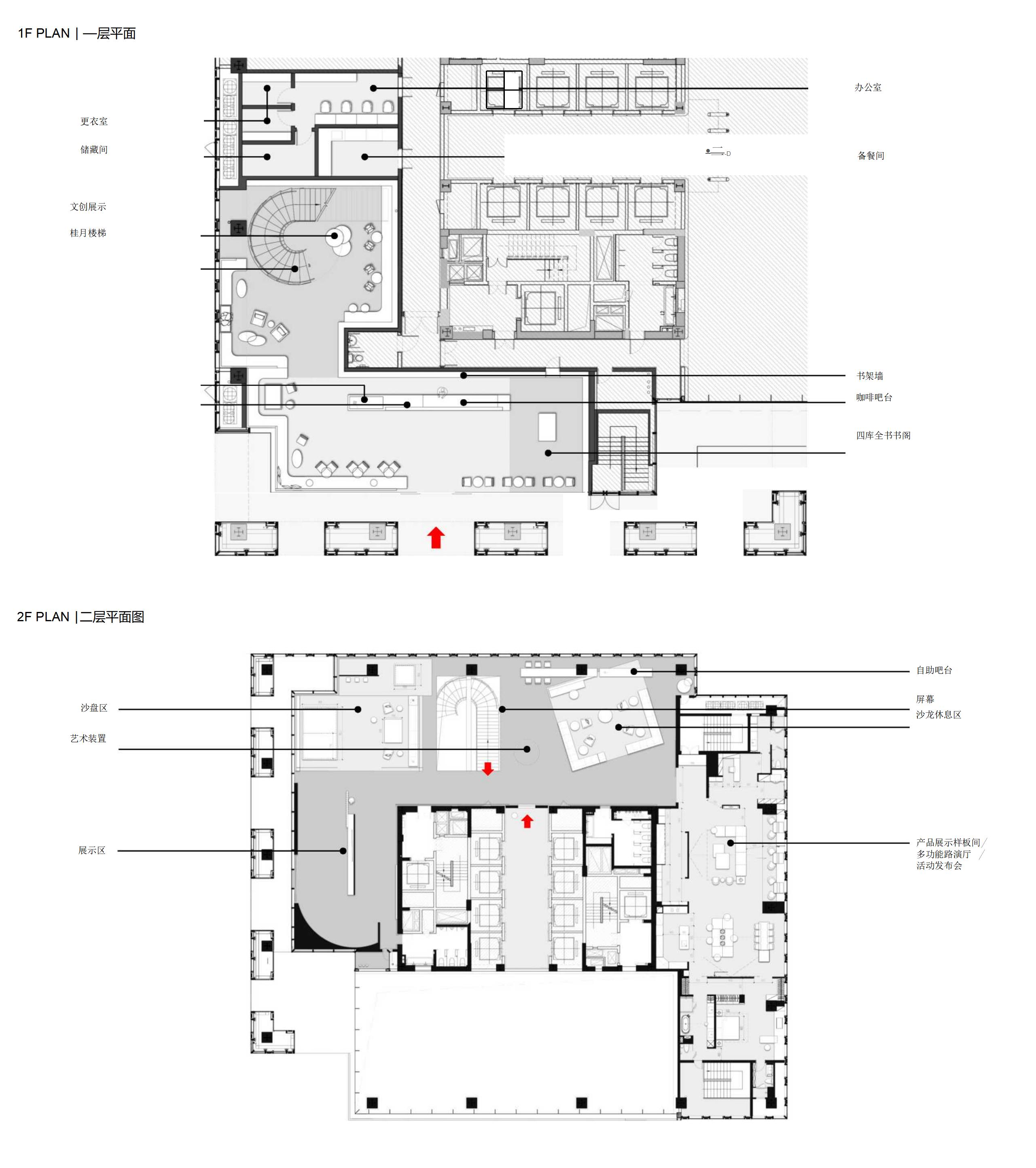
品牌馆的设计本身就是艺术,外部极富“绿城式住宅”的质感,内部则以两层空间展开。一层空间主打文创,这里有绿城斥资出版的文澜阁《四库全书》影印本,是迄今为止世界上卷帙最为浩大的丛书,绿城杭州馆收藏了1/2部,约800册,除此之外还有咖啡吧、书吧等区域,二层空间主要为产品体验馆和“绿城建研中心”成果展示等,整个空间约1200㎡。用叙述性的灯光赋予空间意境和氛围 用灯光和影像来讲故事,拉近空间与人的情感。
依托空间设计语言,用光克制、内敛,以简约纯粹的灯光让空间回归本质,展现其质感和氛围。空间照明效果:自然而然的灯光创造更舒服的空间体验,用光线和阴影营造出极致的空间品质,用光克制、内敛,空间灯光效果细腻柔和,充满意境和品质感; 智能照明设计:人与自然息息相关,生物节律也会受到自然光的影响,如早期的人们日出而作、日落而息,运用智能照明控制系统的精准控制与灯光设计,可展示不同照明场景的功能,打造适龄性 、适用性、 适居性的光环境。
照明手法秉承减法设计理念,用最少的灯具营造最好的空间光氛围,依托空间设计语言,用光克制、内敛,以简约纯粹的灯光让空间回归本质,展现其质感和氛围。 空间照明效果:自然而然的灯光创造更舒服的空间体验,用光线和阴影营造出极致的空间品质,用光克制、内敛,空间灯光效果细腻柔和,充满意境和品质感; 智能照明设计:人与自然息息相关,生物节律也会受到自然光的影响,如早期的人们日出而作、日落而息,运用智能照明控制系统的精准控制与灯光设计,可展示不同照明场景的功能,打造适龄性 、适用性、 适居性的光环境。
一、投入使用后的效果
营造独特氛围:灯光与木质材料相配合,充分利用镜面反射的特性,延展空间通透性,营造多层次的空间氛围。
满足多种功能需求:二层空间灯光设计满足不同功能区域需求,卧室区域设多种模式,给予空间舒适度。
实现情感表达与空间互动:灯光成为空间情感表达者,吧台区、阅读区柔和的灯光让空间充满精致的层次,使空间更具吸引力。
二、用户评价
对整体灯光体验的好评:绿城中国杭州馆的灯光设计简约而不简单,用最少的灯具营造最佳空间光氛围,给体验者带来了舒适、温馨且富有创意的光体验。

