MU奢
437 - 项目类型:别墅
- 项目地点:金华市
- 建筑面积:400.0000㎡
- 项目造价:180.0000万元
- 主案设计师: 张子奇
- 参与设计师:张子奇
- 竣工时间:2024
- 设计机构:张子奇设计研究室
-
项目定位:由人出发,服务于人,促成人与空间、与生活的最佳交互.
-
空间意境:兼容着多种颜色与材质,空间情绪丰富且灵动。
-
空间布局:用建筑的手法构述空间,几何体块形成旺盛的张力,伸展的空间气场与理性的力量。
-
设计选材:以原木材质为主调,搭配白色涂料,白色混油穿插。
-
用户体验:设计出的家很舒服 干净 轻松 自在
地下室二层玄关的隔断墙采用马赛克拼贴出的NBA球队LOGO合集,细节点缀出别具一格的优雅,木色的自然质感, 兼容着多种颜色与材质,空间情绪丰富且灵动。
天井能够体现空间的起承转合之美,使结构与光可以完美结合。;3
地下室一层沿用地下室的色彩方案,唯一不同的是通铺木地板,营造更加温暖私密的居住感受。简洁的色彩与流畅的形态相得益彰,营造出一种静谧而深远的视觉体验。
地下室一层开放式影音室
地下室一层水吧区的设计按情索骥,以至简的笔触释放无需张扬的格局之势,以色彩、材质辨识区块,生成了大气与雅奢并存的格调至上。
地下室一层水吧区
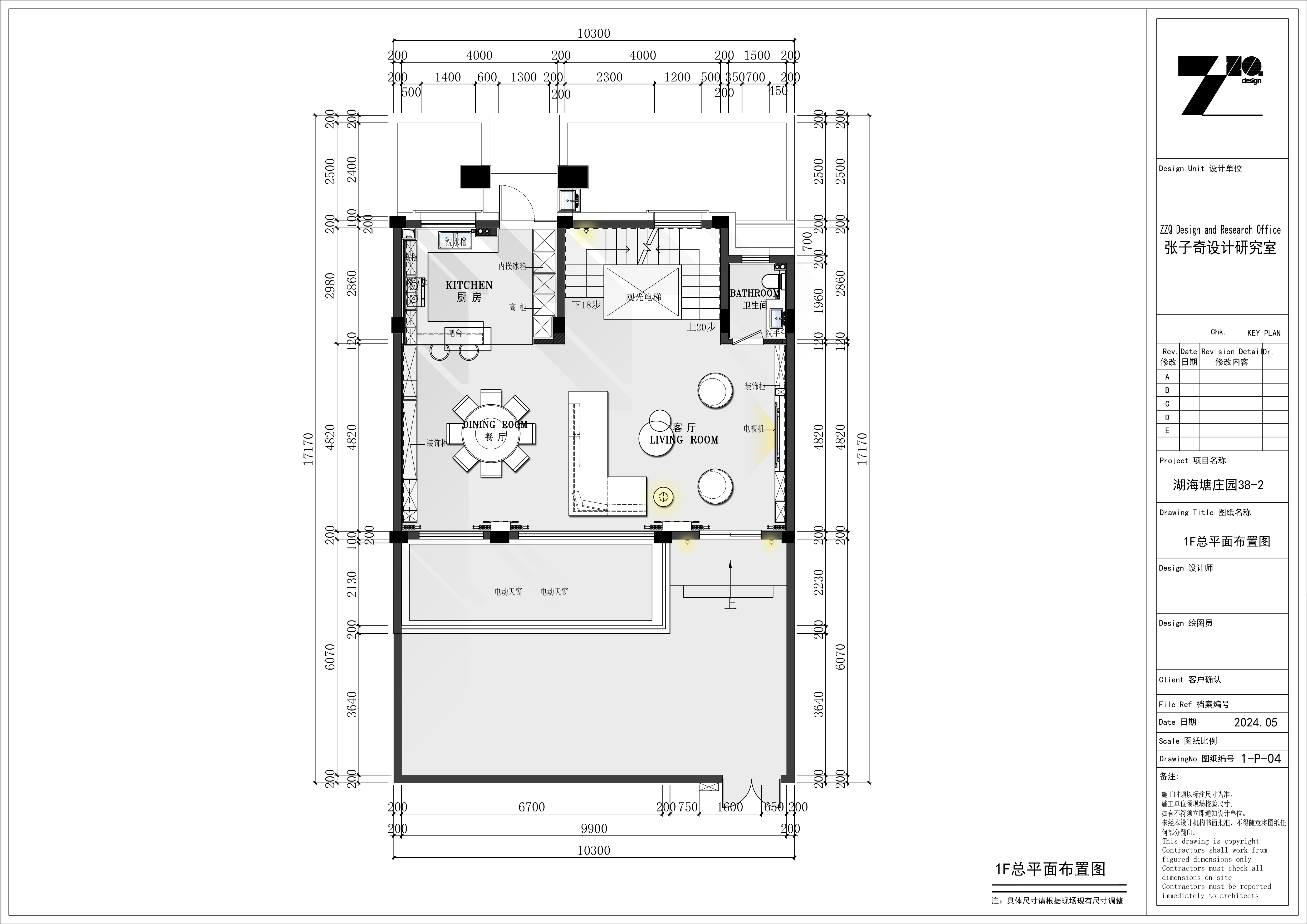
一层客厅
一层客厅电视机背景运用米色石材与黑色板材进行铺陈,冷暖相宜,在光的引述下,中和大体块结构带来的冷硬质感,形成“家”空间的温暖感知。
一层客厅
一层餐厅
一层厨房用简洁的浅色饰面铺陈出空间宁静、永恒的情绪,没有复杂性,不再喧嚣。灶台上烹煮着食物,烤箱里传出阵阵香气时,从触觉、嗅觉到视觉,为空间增添丰富的无感色彩,“幸福”一词有了更丰富的感知。
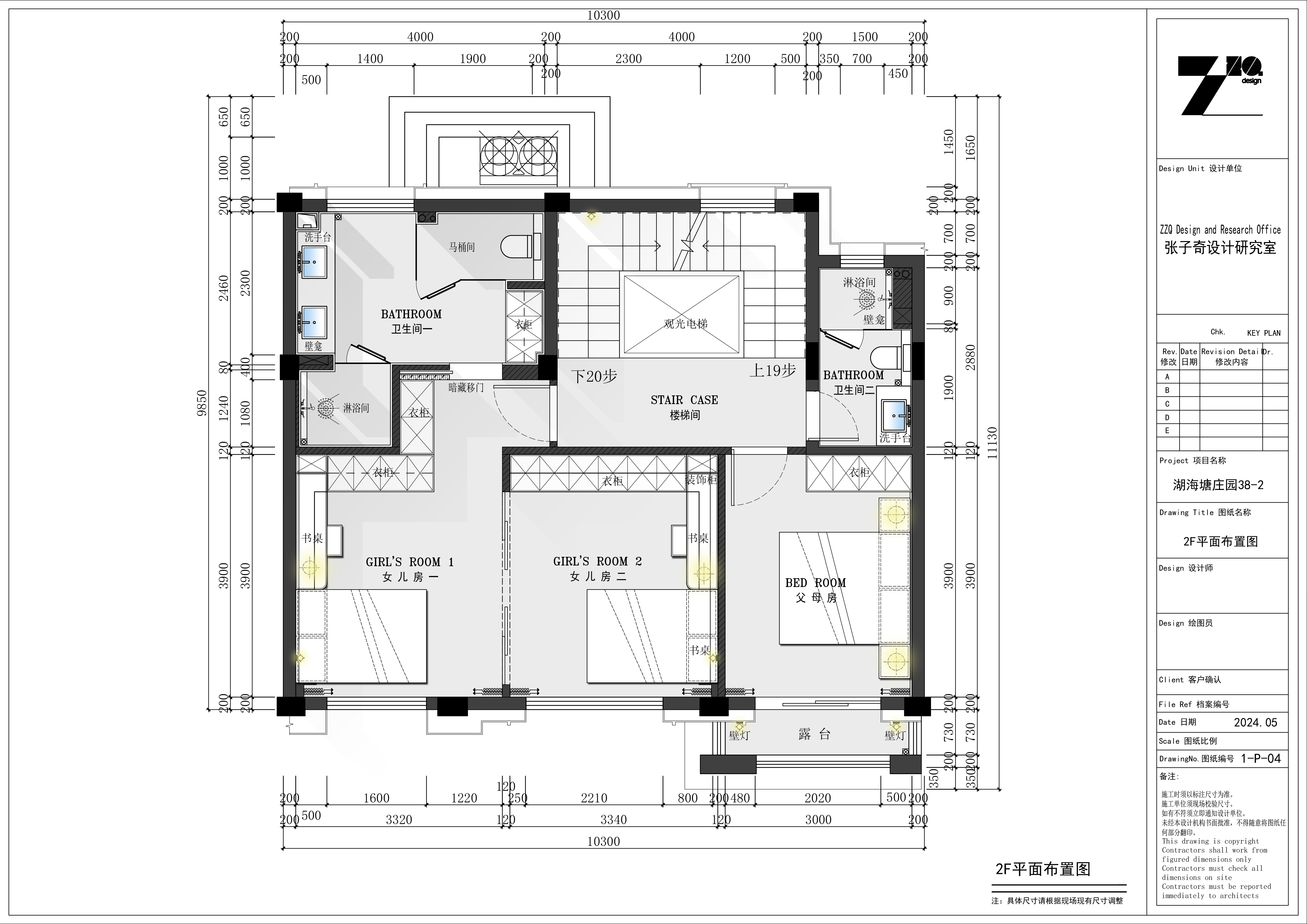
二层女儿房是极富包容性的色彩--粉色,适当的留白,为未来的 空间故事预留无限可能。不仅满足孩子纯真可爱的内心,也满足日常的功能需求,屋内兼容着多种颜色与材质,空间情绪丰富且灵动。
二层女儿房卫生间
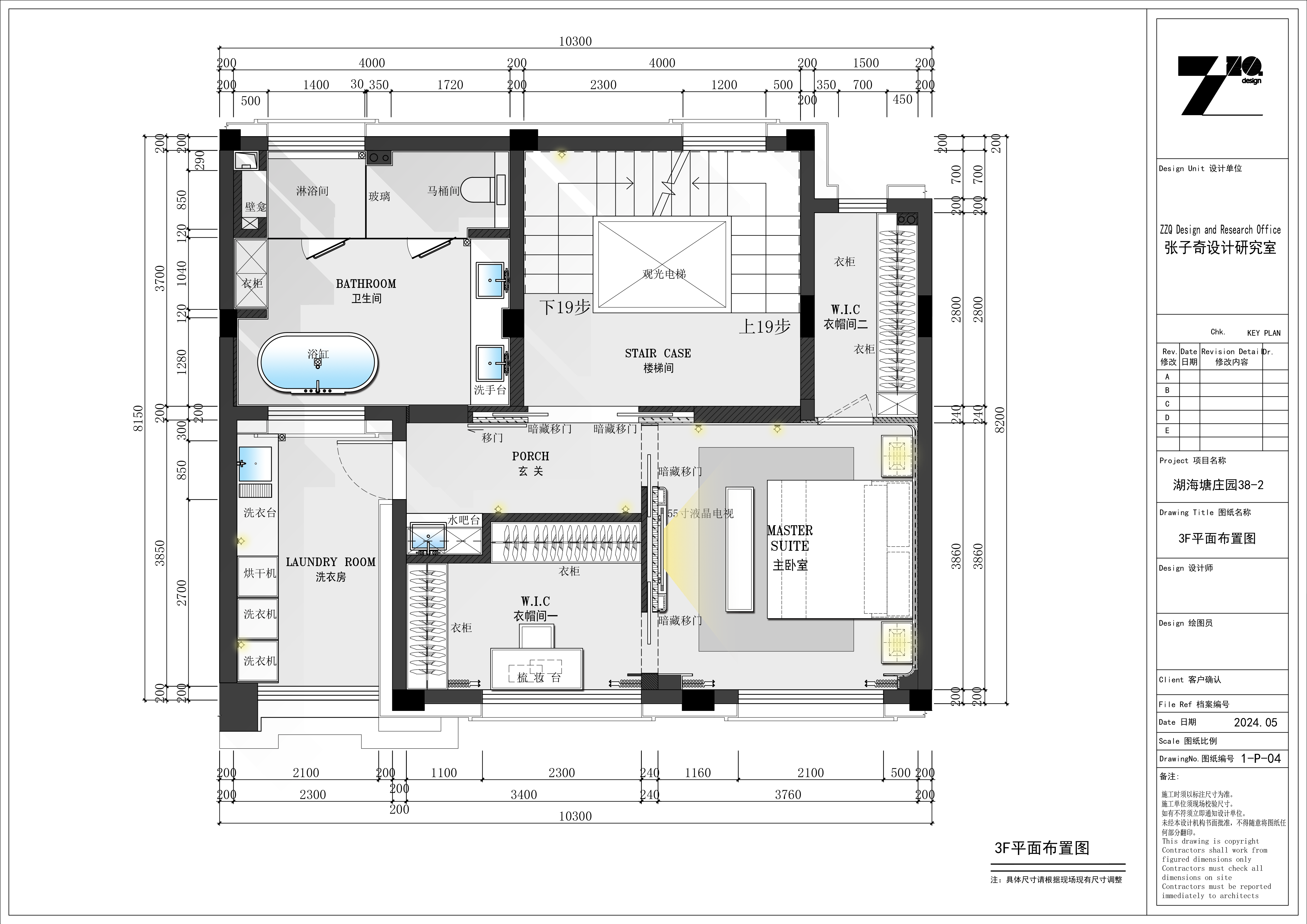
三层主卧室的主线是以简笔勾勒,删繁就简。浅色调的立面与木饰面天花吊顶定格了静谧与品位双向诉求。玫瑰珠光金属的床头柜的设计,以几何线条和温润的材质,突显出空间的整洁与纯粹。
主卧室衣帽间的设计简洁而雅致,没有多余的装饰和繁琐的元素。墙面选用了淡雅的中性色调,给人一种温和而舒适的感觉。
主卧室的卫生间采用结构块面感与材质的对撞叠加做出空间纵横感与延伸感,将实用功能与视觉美学完美融合。
1F 客餐厅
2F 女孩房 老人房
3F 主卧室套间
0
0

认证 · 让您身份增值