大连珺阁酒店改造
234
作品说明
- 项目类型:酒店
- 项目地点:大连市
- 建筑面积:3600.0000㎡
- 项目造价:250.0000万元
- 竣工时间:2024/6/19
- 设计机构:大连拙之设计工作室
-
项目定位:本案是有着营业20年的酒店翻新改造项目,期间经历过不同的业态改造,原始的基础设施和装饰面老旧破损,管道线路十分混乱。我们希望通过改造后,整体焕然一新,定位面向年轻人受众。
-
空间意境:改造后定位为面向年轻人的精品酒店,所以在风格上也偏年轻化、现代化。
材料上运用新型材料,如:洞石软石、金属板、洞洞陶土砖、天山岩软石、镀铜板、杜邦纸等, -
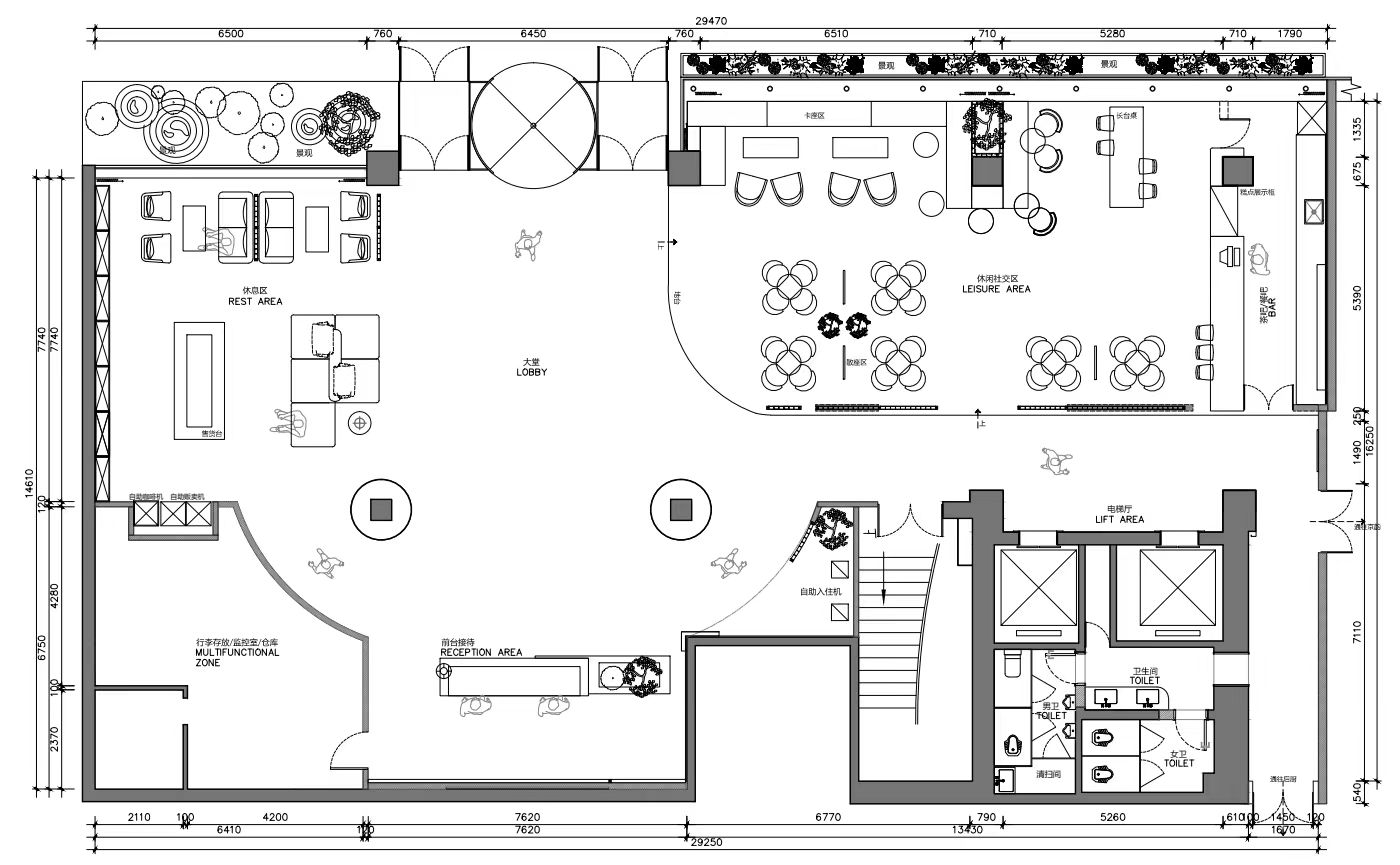
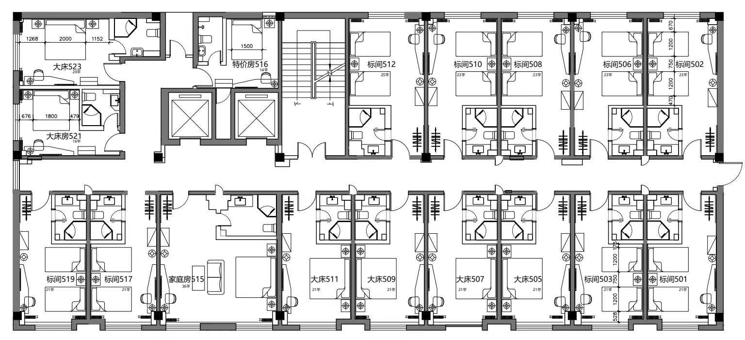
空间布局:3-6层是原始客房楼层,在房间布局上进行了微调,功能做了完善。
2层在功能区做了较大的变动,增设了洗衣房,棋牌室,餐厅,包间,健身房等功能区。
1层原始较为空旷,功能单一,改造后,增加了茶吧休闲区,阅读等待区,仓库等 -
设计选材:本案是翻新改造项目,在尽可能控制预算的前提下,达到最大化的变化。于是我们保留了原有的吊顶,卫生间墙砖,房门。对房门、理石做了改色处理,墙砖附贴spc石晶板。避免了大拆大改,合理控制了预算。
-
用户体验:整体体验超棒,令人印象深刻。机场旁的优质休
憩站。床品柔软舒适,卫生间干净整洁无异味,
洗浴用品品质上乘。
设施:酒店装修很精致,从大堂到客房都给我一种
低调的奢华,优雅又不失情调,尤其是床头的小
夜灯设计很人性化。
服务:酒店服务更是无可挑剔,工作人员热情友
好,从办理入住时的耐心细致,到入住期间对各
种需求的迅速响应,都彰显着专业与贴心。
位置:虽然离机场很近,但是确实很安静,感觉
不到一点嘈杂。
早餐:早餐种类丰富,兼顾中西口味,食材新鲜
可口。
无论是商务出行还是休闲旅游,这家酒店都非常
值得选择,强烈推荐!
1
1

认证 · 让您身份增值