魔杰的茶&雀之灵
349
作品说明
- 项目类型:餐饮
- 项目地点:杭州市
- 建筑面积:398㎡
- 项目造价:10万元
- 主案设计师: Fununit Design
- 参与设计师:朱啸尘 刘蓬阳
- 竣工时间:2024/04
- 设计机构:泛域设计
-
项目定位:云野·雀之灵和J-tea魔杰的茶集合店,位于杭州BIRLAND玉鸟集,以经营茶饮、轻餐为主。为了赶在2024年周杰伦“嘉年华”世界巡回演唱会前将空间改造完毕,业主找到我们时,留给设计、施工落地的时间仅仅只有半个月。
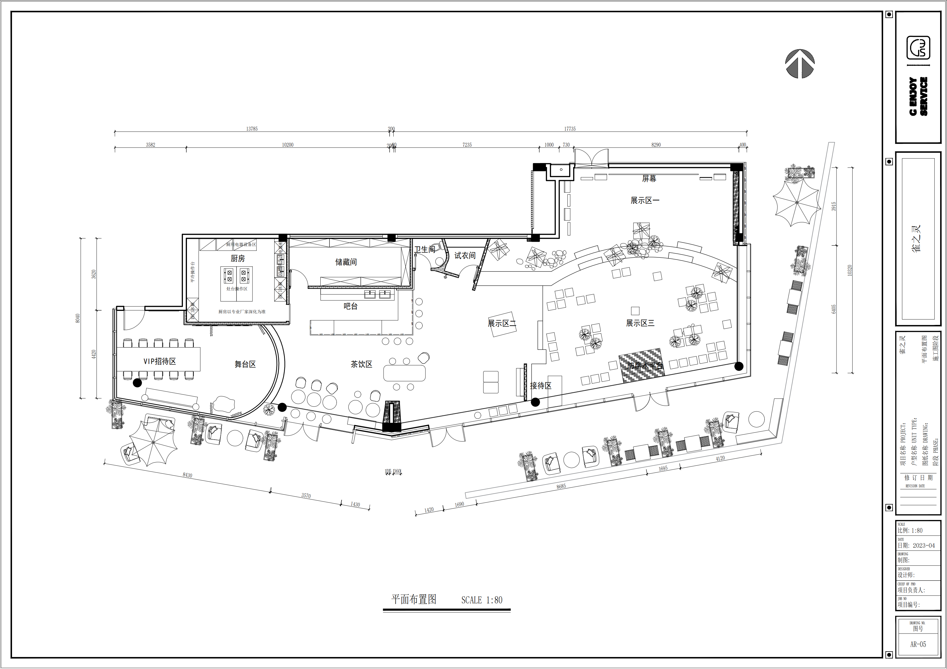
两家集合店已在此运营已久,原有的设备以及空间布局都需要保留,改造所需要做的更多是给予空间更多的氛围感、配合演唱会的相关活动、带来更好的空间体验。在如此紧迫的时间压力下,我们最终的决定改造以空间墙顶地的材料、空间装饰以及软装氛围为主。
-
空间意境:杨丽萍老师IP的“雀之灵”需要呈现传统艺术以及杨老师的艺术影像,而周杰伦IP的魔杰的茶则需要呈现杰伦粉及相关元素,传统与现代的融合如何表达?这一切的设计最终源于空间本身的分析。原本空间较为空旷,顶部的射灯垂直散落在地面上,从室外路过时,透过玉鸟集的全落地玻璃,内部的光感并不明显。于是,我们设想了一个悬浮装置,可以把光源留在整个空间的横向布景中,没有时间去定制装置,就选择了现成的物件——竹梯
-
空间布局:得益于优秀的层高,自重较轻的粉色竹梯满布空间,悬在座位区域的上方,竹字所代表的传统语言,被饰以当代的粉色,在空间中舞蹈,柔和了空间的光线。而为了让竹梯成为空间的亮点,我们统一了空间的色彩,将过多的空间色彩和材质统一,铺设了灰色干粘石、也将墙面统一为灰色的艺术涂料,将重心聚焦于空间本身。
竹制的户外桌椅、云南的藤编矮几,一些“老物件”在这个新的空间里活跃,我们在舞台表演的区域将若干长长短短的老木方树立起来。垂直的雕塑让整个空间仿佛置身于森林之中,舞姿跳跃其中。关于周杰伦的内容我们更多留在了色彩表达以及内容输出上,整个玻璃外立面,我们用杰伦一首首歌,记录曾经每一个被吸引的瞬间,也是打卡拍照的装置。 -
设计选材:竹制的户外桌椅、云南的藤编矮几,一些“老物件”在这个新的空间里活跃,我们在舞台表演的区域将若干长长短短的老木方树立起来。垂直的雕塑让整个空间仿佛置身于森林之中,舞姿跳跃其中。空间主材:艺术涂料 干粘石 竹梯
-
用户体验:短期效益方面,设计完成的时机恰逢周杰伦演唱会,空间设计与演唱会主题巧妙互动,产生了强烈的视觉和情感共鸣。长期效益上,通过优化空间层次,使得整体光效得到了显著提升,不仅提升了店内氛围,也有效促进了客流量的增加,改造后的客流量有了明显的跃升。
0
0

认证 · 让您身份增值