-
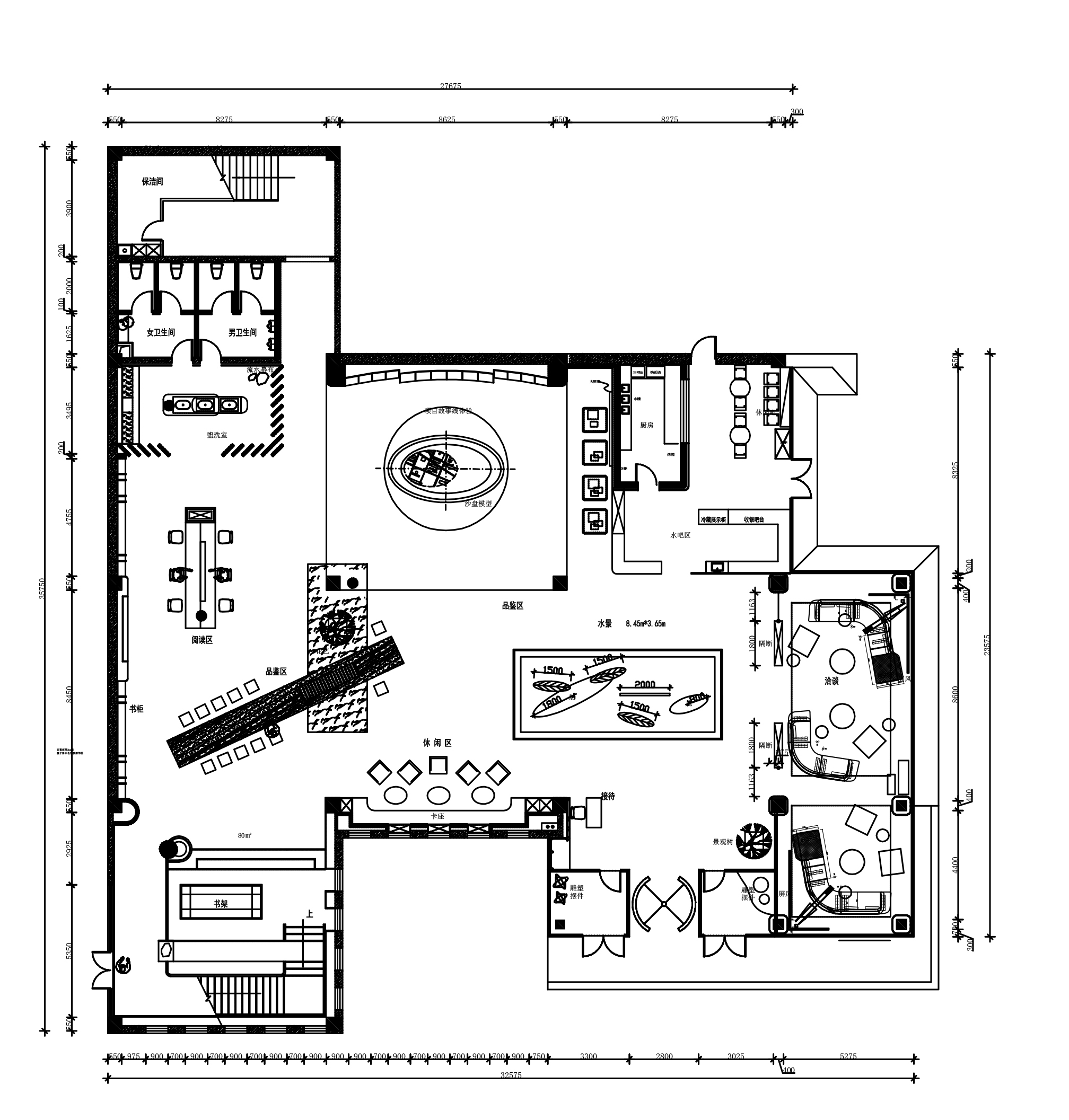
项目定位:设计理念围绕“借云水造境,以空间写诗”展开,旨在通过云水的形体与寓意,营造出既有诗意又充满内在力量的空间氛围。
以人为主,围绕周围人群定位,在现代设计中汲取养分,回馈到设计当中。 -
空间意境:通过自然形态的摆件、曲线流动的家具,以及富有层次感的纺织品来体现这一元素。云的轻盈与水的灵动相得益彰,赋予空间一种柔和的流动感,使得整个环境看似静止,却在细节中暗含动态。
-
空间布局:在空间中注入了时间感,让人仿佛置身于一场缓缓展开的东方意境画卷之中。
-
设计选材:选材比较简单,以使用和舒适为主
-
用户体验:不仅是一个商业场所,也是一个很好的会见交谈场地
设计理念围绕“借云水造境,以空间写诗”展开,旨在通过云水的形体与寓意,营造出既有诗意又充满内在力量的空间氛围。
通过自然形态的摆件、曲线流动的家具,以及富有层次感的纺织品来体现这一元素。
“动静结合”动线流畅的艺术雕塑、带有水纹设计的地毯以及流苏挂饰等动态元素,与静态的家具形成对比,在宁静的氛围中增添了一份活力与流动感。
云与水在东方文化中象征着流动与变化,同时也代表了宁静与包容。
云的轻盈与水的灵动相得益彰,赋予空间一种柔和的流动感,使得整个环境看似静止,却在细节中暗含动态。
在色彩搭配上,以黑白为主基调,象征山水画的简约与深邃。黑色如同夜幕般包容万象,而白色则如晨曦一般轻盈明亮,形成强烈的对比,却又和谐共存。在这沉稳的底色之上,运用了深红色作为跳色,打破了空间的单调感。红色在东方文化中代表生命与激情,这一抹跳色仿佛是空间中的画龙点睛之笔,不仅为环境注入活力,还带来了层次感与视觉冲击。
这种对比不仅创造出视觉上的层次,还在空间中注入了时间感,让人仿佛置身于一场缓缓展开的东方意境画卷之中。
通过对黑白红三色的运用,以及动静结合的装饰手法,既保持了空间的简约与雅致,又传递出一份低调而不失奢华的当代东方美学在这个空间里,黑白两色交织成一幅深邃的画卷,而深红色则如同一抹绚丽的东方彩,为整个场所注入了一份神秘而典雅的气息。
0
0

认证 · 让您身份增值
410