怀澄观境 轻雅绕娴


- 项目类型:别墅
- 项目地点:杭州市
- 建筑面积:330㎡
- 项目造价:200万元
- 竣工时间:2024-10-01
- 设计机构:杭州一则空间设计
项目位于杭州良渚的别墅区内,光影流淌,树影婆娑,目之所及都是丰沛的自然生态。
业主选择将这里作为开启美好生活的新起点,设计师受邀参与家宅的规划设计
采用侘寂结合极简的手法,重新塑造人与空间的关系,以最大限度还原符合建筑形态的庭院景观,同时将多元化生活方式及业主的心理诉求融入室内设计中,构建出一处宁静的理想居所。
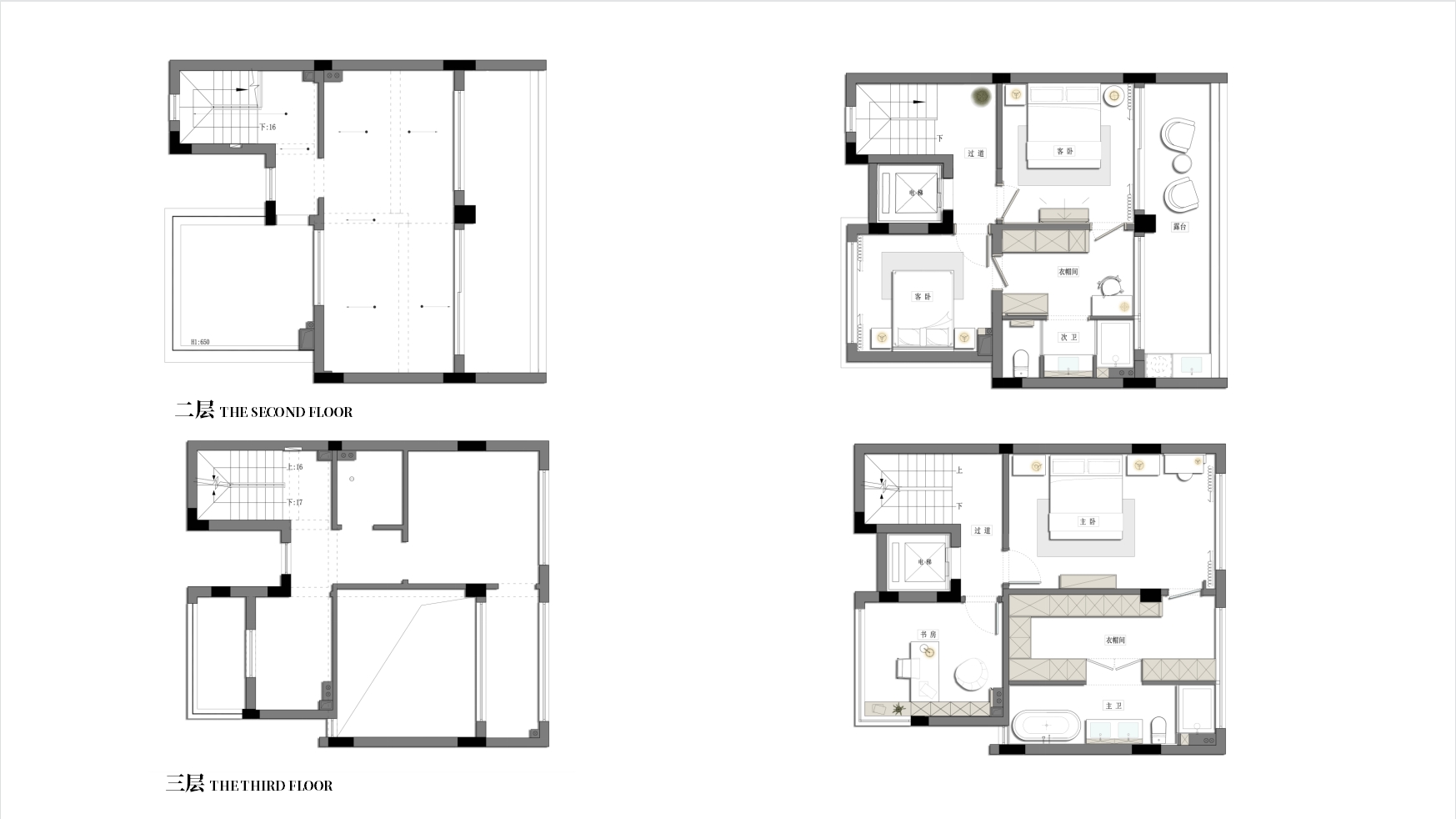
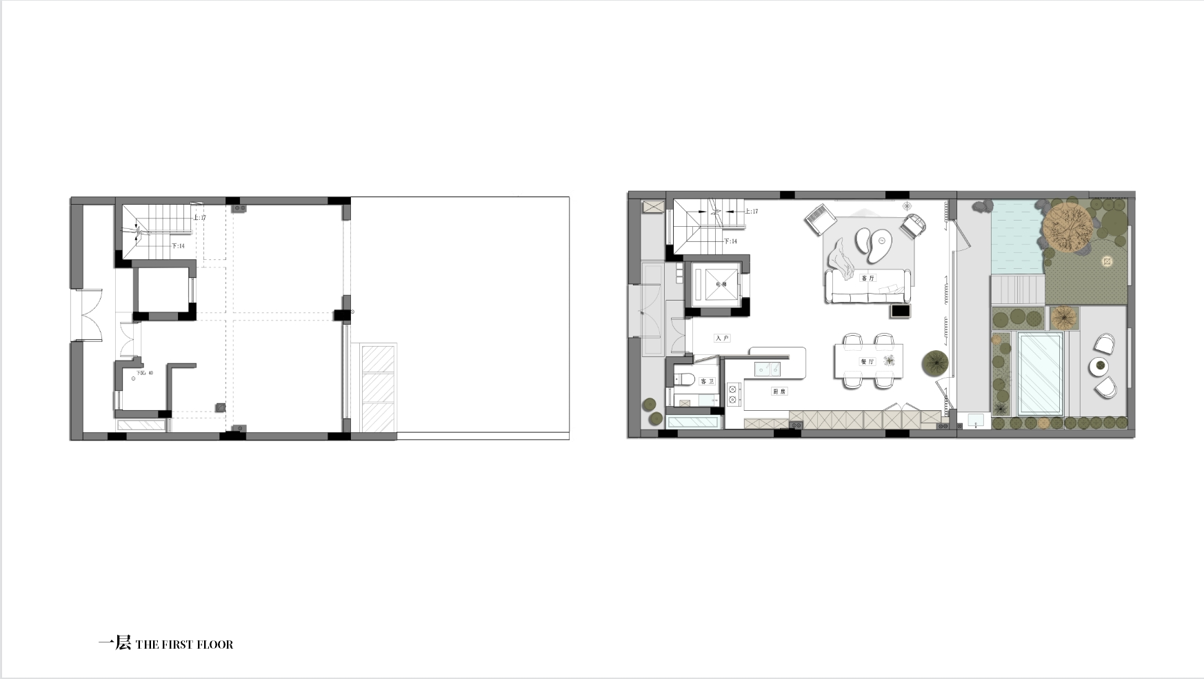
每一处场景在日常生活中不断切换角色,伴随着空间的起承转合,更加贴合居住需求。一层空间以“互动”为主,涵盖休闲、会客、聚餐、社交等功能;向下是负一层、负二层的生活区域,向上通往二层、三层的私享区域。
设计师基于对建筑形态的拆解分析,打通了多余的非承重墙体,提升了空间的通透性。客厅尺度朝庭院延展,解决了原建筑大屋檐采光差的问题。优化后,大面积的落地窗将阳光和院中景色引入,使得室内与外部之间的联系变得更加紧密,从视觉感知层面唤醒内心深处的记忆。
自由游走的光线与长桌构建起一家人亲密的晨昏相聚画面,以自然为背景,将美食映衬得更加诱人,生活滋味,烟火相随,这就是家的仪式感,也是心中最为熨帖的存在。简洁清晰的结构和舒适实用的功能相得益彰,从餐厅过渡至厨房区域,居住者能够非常便捷的下厨就餐,方寸之间回味诗与远方。
借用厨房立面建构超薄鞋柜,扩展了入户过道空间,且恰到好处地收纳了入户时的鞋子。鞋柜台面与厨房台面相连接,形成视觉的延伸与结构的穿插关系,同时扩大了使用面积。设计师巧妙的在入户门右侧隐藏了卫生间, 通过隐形门的设计兼顾了视觉上的整体性与实用性。
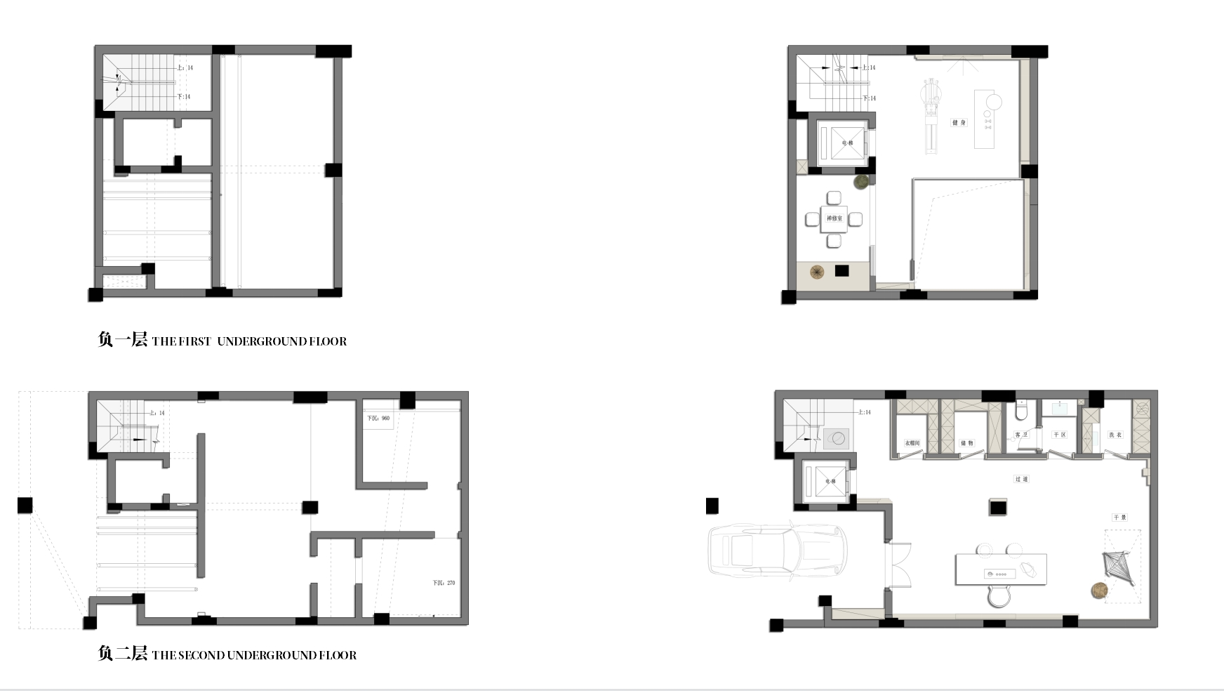
顺应空间动线,向内探索。地下两层空间作为整个居所中的休闲核心,去除了繁杂无意义的装饰,均匀的体块结构导引出建筑图像的双重叠合。设计师将采光、流动感、结构作为核心要素。由天花线条指引,构建出一个采光天井,最大化引入明媚阳光,视觉感受被纵向拉伸,打破了沉闷的格局。以开放并联的形式,将生活意趣高度聚合。负一层空间设置了健身、禅修、陈列区域。
踏步而下步入负二层,一折一转,眼前是一处开阔的休闲区,倾泻而下的自然光削弱了空旷感。以造景联动空间,与茶桌形式呼应,温一壶茶,隔着杯盏间氤氲的雾气,营造出远离喧嚣、随性自由的慢调氛围。负二层空间汇聚了茶室,储物室、洗衣房、衣帽间、卫生间等功能。
设计师游刃于不同器物、家具、光影、材质之间,不断重复的明暗关系,以一种平和的方式交相渗透,从视觉、功能角度演绎出场域关联与层次变化。
沿着阶梯拾级而上,在明暗的递进和结构的转折中,私密空间与公共空间优雅衔接。卧室作为居所中的柔软内核,给人以私属的包裹。回归最真实的时刻,居住者个性喜好得以在此尽情释放。
一楼原始图&平面图
负一楼 负二楼 原始图&平面图
二楼 三楼 原始图&平面图