白浪雪枝 岁潜有时



- 项目类型:别墅
- 项目地点:杭州市
- 建筑面积:330.0000㎡
- 项目造价:180.0000万元
- 主案设计师: 赵艺哲
- 竣工时间:2024年11月
- 设计机构:杭州一则空间设计有限公司
-
项目定位:住宅设计的开始,是与生活的一次由表及里的交流。秉承形式追随功能的设计原则,营造仪式感的同时,将需求逐一嵌入其中,从细节处去丰富空间的美学情景。
-
空间意境:这是一套位于杭州西溪山庄的排屋,被庭院包裹,在一方绿茵中褪去城市的喧嚣。业主一家三口居住于此,天气好时,踱步至庭院,看天上云卷云舒,赏庭前花开花落,与自然和谐相处,充分感受宁静与美好。
选择现代风格。一是基于男业主女业主比较年轻孩子上幼儿园接受度很高。不拘泥于常规一字型沙发。所以客厅选用弧线型组合沙发。为空间创造更多可能。
开放的地下一层,设计上不做过多定义,聚合了多场景模式,为生活预留出更多可能性。在这里,父母与孩子也可以一起玩耍享受亲子时光。 -
空间布局:整个排屋建筑共四层,分为地下两层、地上两层。设计师充分利用建筑的尺度、比例、光影等先决条件,展开空间场景重塑。合理优化原有的格局,在通透开阔的背景下,打造出自然写意的生态居所。
区别于传统的客厅形式,设计师采用空间外扩的策略,围绕原有的承重柱构建出环绕式的动线。
全景落地折叠玻璃门窗设计将室外自然风景引入客厅,阳光、微风、生机扑面而来,拉近了人与自然的距离感。 -
设计选材:基于对业主家庭情况的了解,在地下两层的布设中,以精神性生长来容纳多种需求。在素雅利落的空间基础上,将每一位家庭成员的使用需求与心理诉求关联其中。
挑高的纵向空间处理,结合顶部的灯膜应用,提升了室内的采光及视觉开阔性。在空间中,需求能够催生出不同的空间组合方式。
墙体本身凹凸不平,为了展现美观整洁的感觉,设计师在柜体上方建构了一面假墙,使得柜子有嵌入墙体的视觉感。一整面的开放格,更便于摆放业主喜欢的书籍及艺术品。
通透无界的空间中,在满足日常生活、互动交流、家庭聚会等功能的同时,也兼顾了形式美感,充分利用每一方寸,将公卫隐藏于客厅一角,寥寥几笔就勾勒出了居家的舒适氛围。 -
用户体验:立面上的造型设计、多种材料的融合,既满足了储物收纳需求,也营造出了更多元化的视觉感受。
家,是人们治愈身心的场所。借由设计干预,除了将内心期许的生活面貌映射至空间中,更多的是去引导居住者在时间的推移中,去探寻、去感受生活的本真。
住宅设计的开始,是与生活的一次由表及里的交流。秉承形式追随功能的设计原则,营造仪式感的同时,将需求逐一嵌入其中,从细节处去丰富空间的美学情景。 这是一套位于杭州西溪山庄的排屋,被庭院包裹,在一方绿茵中褪去城市的喧嚣。业主一家三口居住于此,天气好时,踱步至庭院,看天上云卷云舒,赏庭前花开花落,与自然和谐相处,充分感受宁静与美好。
整个排屋建筑共四层,分为地下两层、地上两层。设计师充分利用建筑的尺度、比例、光影等先决条件,展开空间场景重塑。合理优化原有的格局,在通透开阔的背景下,打造出自然写意的生态居所。
基于对业主家庭情况的了解,在地下两层的布设中,以精神性生长来容纳多种需求。在素雅利落的空间基础上,将每一位家庭成员的使用需求与心理诉求关联其中。
停好车从地下二层进入室内,入户处的鞋帽区设计,有效的让空间的功能性与仪式感达到了最佳,在温润的色调中,完成了外部至内部的情绪转换。 考虑到男业主偶尔居家办公,地下二层品茶区与会客区的设立,兼顾了功能性与体验感。
挑高的纵向空间处理,结合顶部的灯膜应用,提升了室内的采光及视觉开阔性。在空间中,需求能够催生出不同的空间组合方式。 墙体本身凹凸不平,为了展现美观整洁的感觉,设计师在柜体上方建构了一面假墙,使得柜子有嵌入墙体的视觉感。一整面的开放格,更便于摆放业主喜欢的书籍及艺术品。 开放的地下一层,设计上不做过多定义,聚合了多场景模式,为生活预留出更多可能性。在这里,父母与孩子也可以一起玩耍享受亲子时光。
区别于传统的客厅形式,设计师采用空间外扩的策略,围绕原有的承重柱构建出环绕式的动线。 全景落地折叠玻璃门窗设计将室外自然风景引入客厅,阳光、微风、生机扑面而来,拉近了人与自然的距离感。
开放式的平面布局,激活了客餐厅空间兼容的生活方式。立面上的造型设计、多种材料的融合,既满足了储物收纳需求,也营造出了更多元化的视觉感受。
通透无界的空间中,在满足日常生活、互动交流、家庭聚会等功能的同时,也兼顾了形式美感,充分利用每一方寸,将公卫隐藏于客厅一角,寥寥几笔就勾勒出了居家的舒适氛围。
岛台与厨房餐桌的相互补充,以中西不同的烹饪方式,契合了家庭的多种饮食习惯。
二层空间打开了家庭生活中的另一界面,去除多余的表面装饰,回归至纯粹的休憩功能。主卧、儿童房与书房(兼客房),各具特色,强调舒适度与个性化体验。内部每一寸人性化的设计细节,不经意间唤醒了居住者对生活的微妙感受,置身于其中,都能找到最为舒适的状态。
家,是人们治愈身心的场所。借由设计干预,除了将内心期许的生活面貌映射至空间中,更多的是去引导居住者在时间的推移中,去探寻、去感受生活的本真。
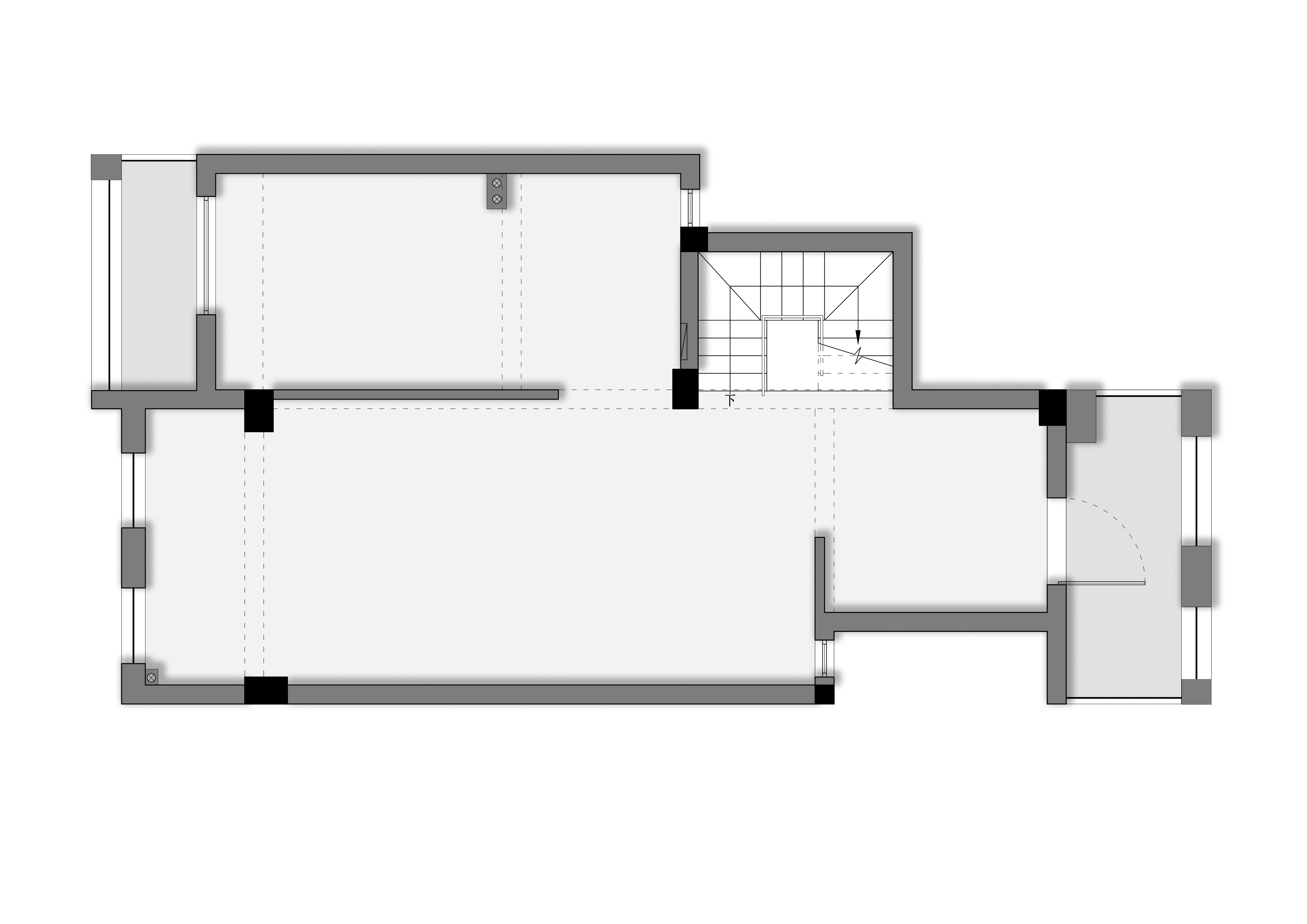
负二楼原始图
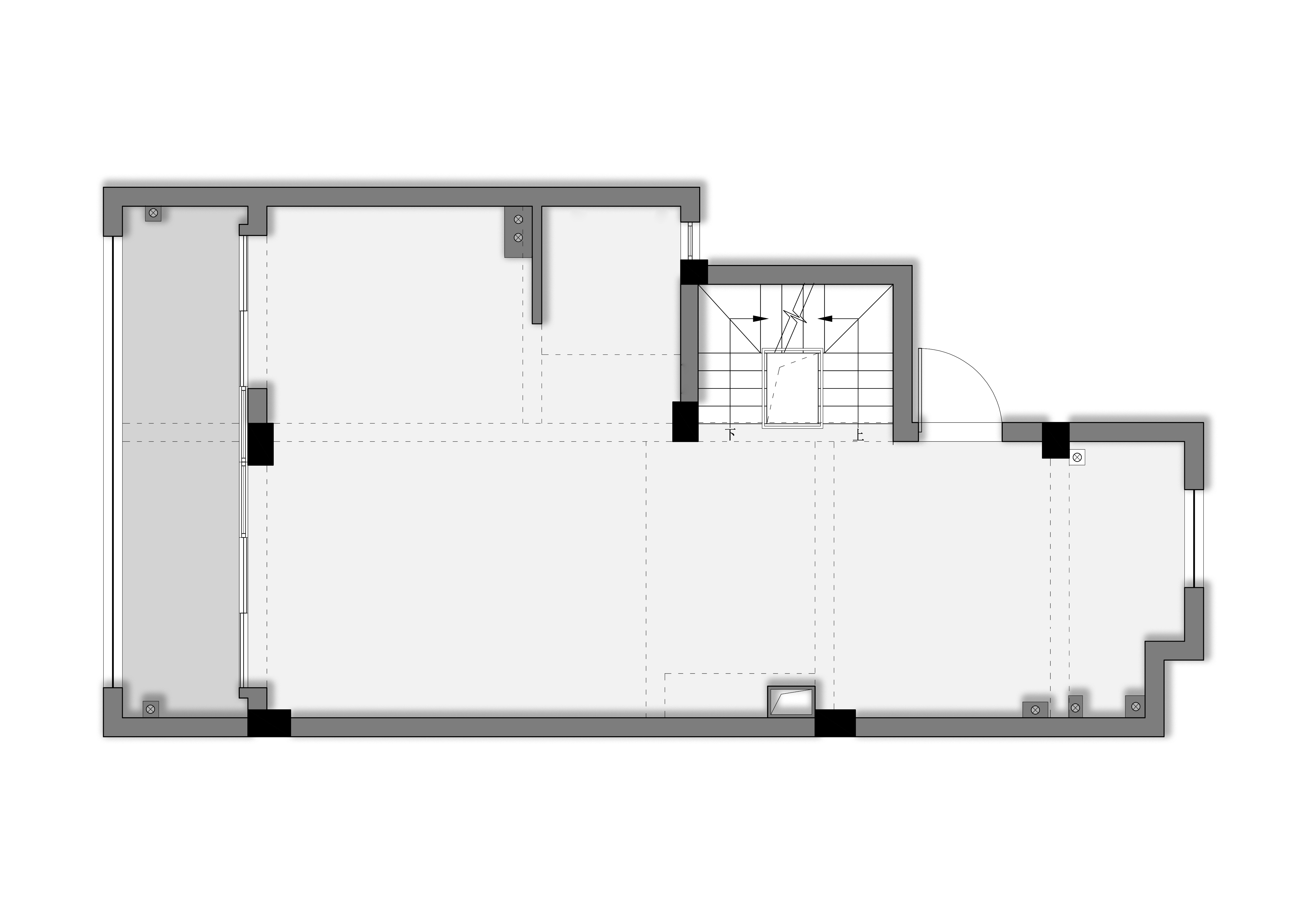
负一楼原始图
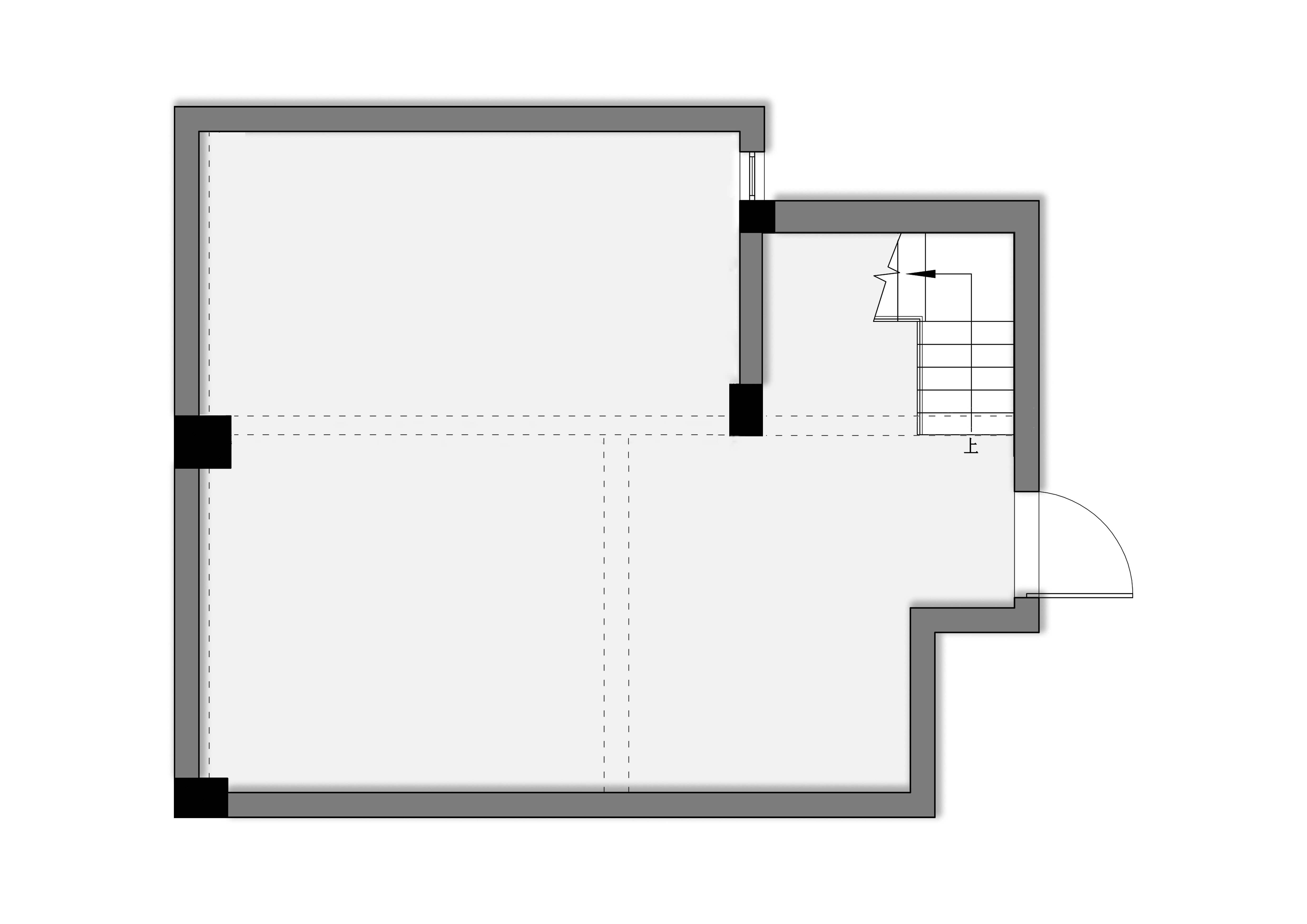
一楼原始图
二楼原始图
负二楼平面图
负一楼平面图
一楼平面图
二楼平面图

