Making The Home A Better Place


- 项目类型:住宅公寓
- 项目地点:金华市
- 建筑面积:570.0000㎡
- 项目造价:200.0000万元
- 主案设计师: 张子奇
- 参与设计师:张子奇
- 竣工时间:2019-10-01
- 设计机构:奇和室内设计工作室
-
项目定位:在繁杂的世界之中,我们追求简约舒适、纯粹无杂的生活状态,不仅仅是为了让家看上去更洁净,更美观,更是想要满足自己内心深处对于生活本真的渴望。
-
空间意境:女业主是完美主义者,喜欢简约精致的生活,因此我们风格上选择了现代简约的设计。注重品质感与高雅,为他们营造一个高品质生活的家的氛围。
低奢,顾名思义是低调的奢华;它代表着一种生活态度,低调、舒适,却无损高贵与雅致,不为炫耀,只想尽情享受生活的美好。“奢”指的是奢华,奢华并非琳琅满目的奢侈,而是一种用心着装的态度。 -
空间布局:自由平面
-
设计选材:通过材料的创新应用与非常规材料的使用,从而提升了空间品位。爵士白大理石与黑色木饰面搭配,简洁大方的沙发背景,富有层次的对比空间于平缓的节奏中增添一丝跳跃,完美呈现出本案的设计风格。
-
用户体验:使用者切实感受到了布局修改带给的通透感和便利性。
1F客厅
-1F玄关 透过胖子圆润柔软的身体,我们可以感受到它向我们传递了一种的生命的张力。
-1F玄关
-1F影视厅 -1层是敞宽而休闲的空间,虽然是地下室,天井洒下的自然光配合着背景的灯光为空间增添了一份敞亮。整体空间脱离了风格的约束,既有皎皎明月,绵延群山的中式意境,又有妙趣横生的现代抽象摆件。舒适的皮质沙发坐感和跳跃的橘色传递着生活的温度,共同构建空间的肌理质感,让居者感受最朴实的空间表情。
1F客厅
1F客厅
1F客厅
1F客厅 1F为客餐厅空间,爵士白大理石与黑色木饰面搭配,简洁大方的沙发背景,富有层次的对比让整个客厅于平缓的节奏中增添一丝跳跃。整个空间的布置精心且雅致,简洁考究的灰色系布艺家具,适时摆放的摆件,铺陈的灰色系纹饰地毯,都让其不失为待人接物的极佳场所。
1F餐厅 建筑本身设计为联排设计,南北通风采光,为保证室内空气流通顺畅,采光明亮,客餐厅设计为开放式,将功能与美观完美结合,空间干净明快。餐厅的天然大理石餐桌是亮点,突出石材本身的质感,温馨的橙赭色是这个别墅设计的主要点缀。设计师将对生活的理解融入其中,不追求极尽奢华,但对生活品质的探索孜孜不倦。
1F厨房
2F小孩房一
2F小孩房一 房间采用中性色调,配合浅灰色布艺窗帘和实木地板等,创造一个有层次的空间。温馨的橙赭色成为这个房间设计的一抹亮色。
2F小孩房二
2F小孩房二 2F是睡眠区,是业主的两个孩子的房间。儿童房的设计则更具现代童真气息和纯真色彩,以白色为基调,没有过度强调色彩的华丽,搭配原木色的书桌,呈现出暖色调、温馨的氛围。
2F书房 书房为开放式,既保有空间宽阔感又区分功能性,通透的布局不但能促进光线穿透以及空气流动,也能借着视觉的延伸,串联出更开阔的视景感受。黑色饰面的书桌和书柜,与斑马纹的白色异型地毯、艺术漆饰面的墙面形成了巧妙碰撞,为空间营造出更加时尚的表情。
3F主卧
-1F平面图
1F平面图
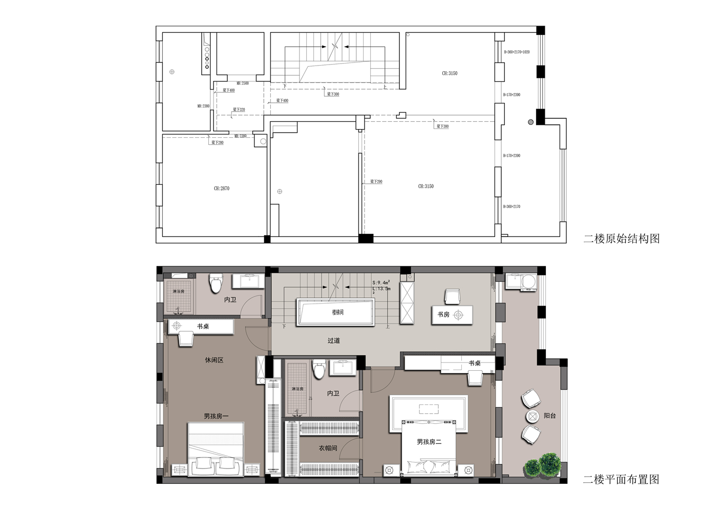
2F平面图
3F平面图
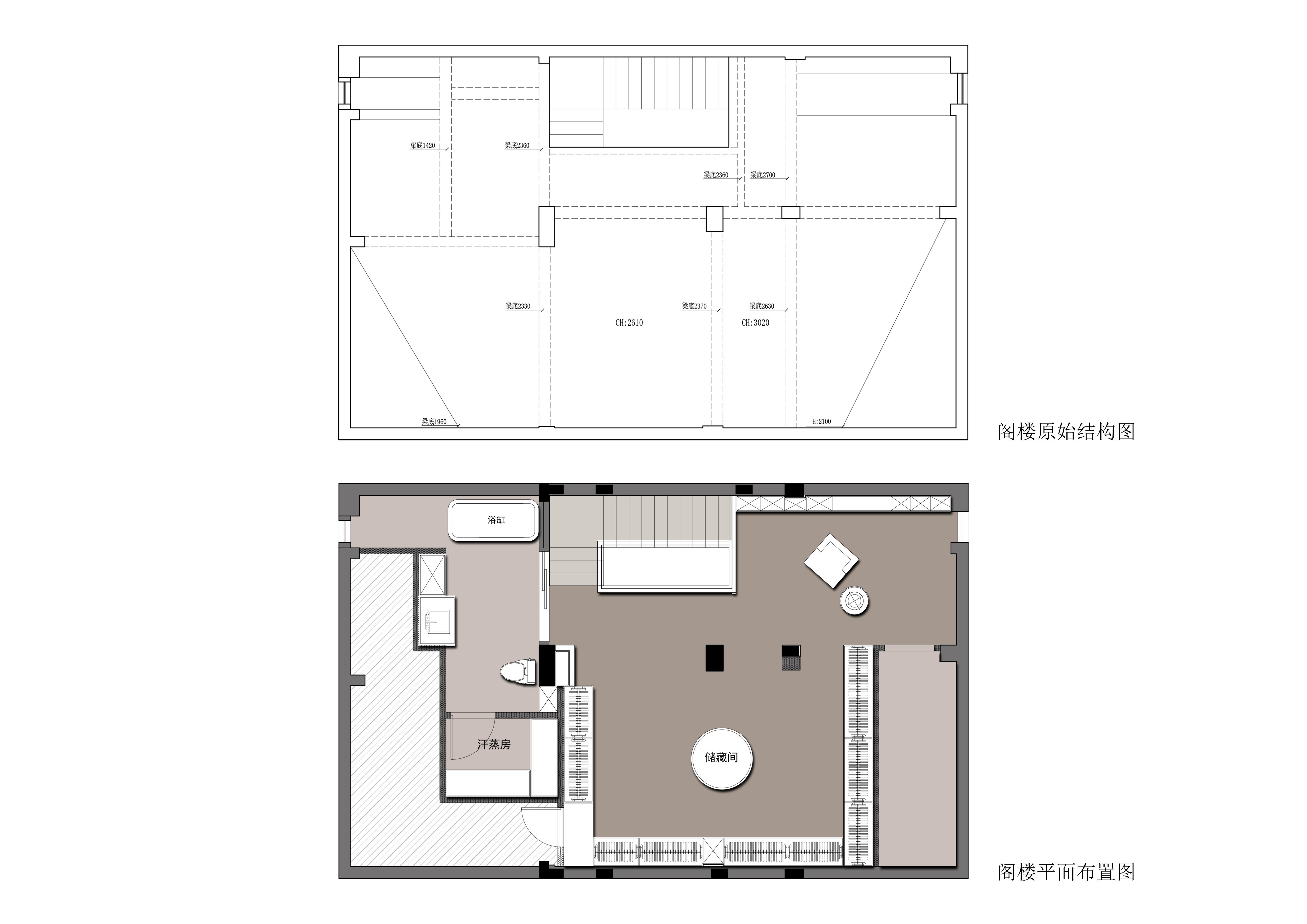
阁楼平面图

