Somesome东南亚餐厅


作品说明
- 项目类型:餐饮
- 项目地点:北京市
- 建筑面积:230.0000㎡
- 项目造价:150.0000万元
- 主案设计师: 杨圣晨
- 竣工时间:2024年
-
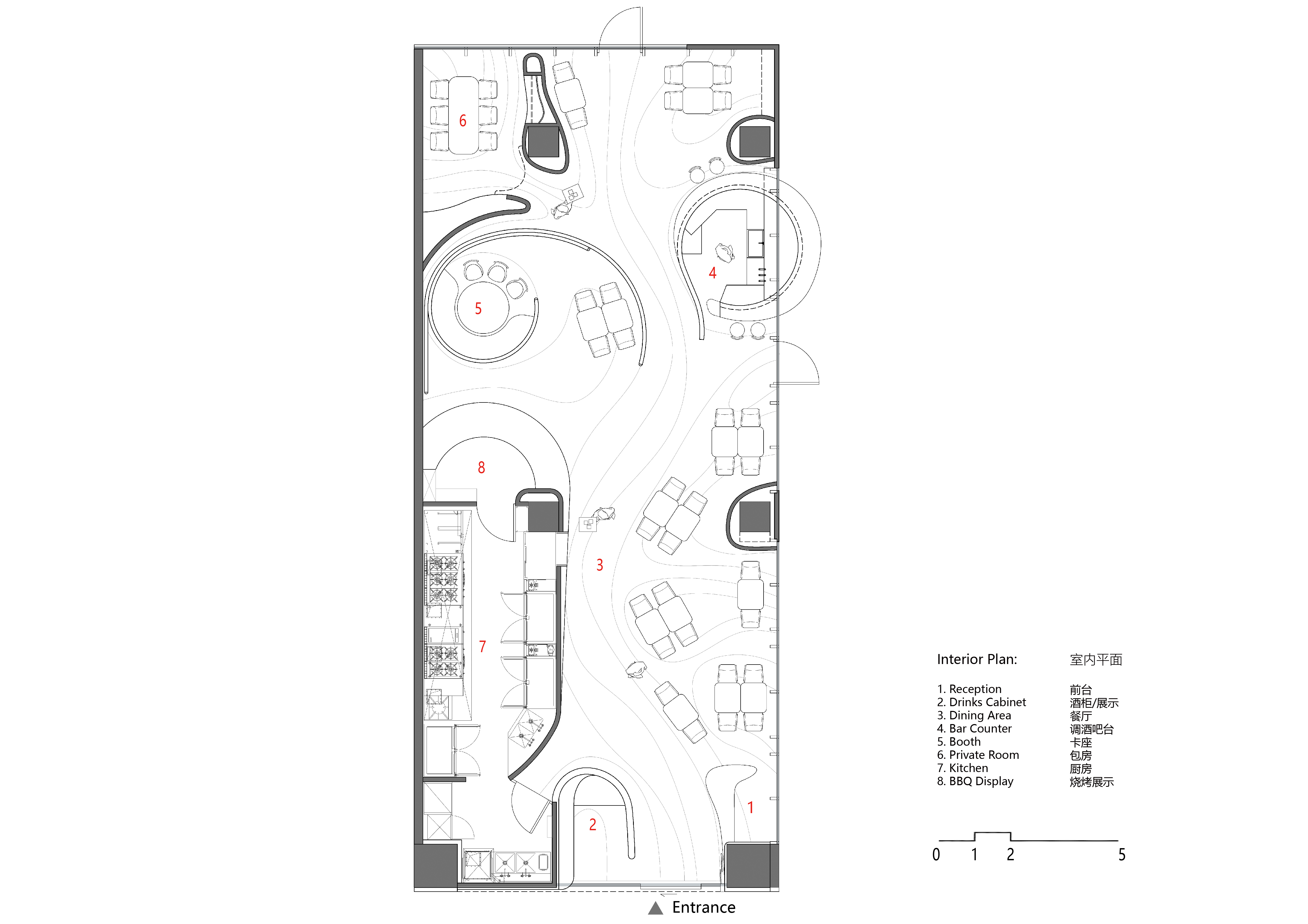
项目定位:somesome是餐饮界的新晋潮牌,几年前在三里屯开设第一家店就以新颖的设计和令人惊叹的口味瞬间爆火,业主计划在三元桥新开一家新店,委托我们从新对空间进行新的梳理。我们希望新的somesome空间不止于就餐,同时她也将作为酒吧、宴会厅,派对空间等多种用途的场所,在提供美味食物的同时同时具有一定社交属性,提供情绪价值和空间氛围。 新店的面积虽然不大,我们仍希望空间中永远保有一种动态的张力,和驱动力,就如同自然界中潺潺不息的流水。地面铺陈着细腻如织的流水纹样与吊顶相得益彰,仿佛自然界的溪流悄然延伸至室内,引领着宾客自然而然地沿着那无形的轨迹前行,人们被一股的力量轻轻牵引,又被轻轻推向一张张餐桌。而这些餐桌又如同被刚才的“水流”推至浅滩搁浅一样,在就餐的区域形成了慢速的,安静私密的空间。
-
空间意境:整个餐厅以红色和白色为主色调,红色的纹理纸有着一定的透光度,在自然光和灯带的照射下形成了丰富的色彩系统,不同色阶的嫣红更是把地面的层次勾勒出来,在形成丰富的空间层次的同时,更营造出一种浪漫而温馨的空间氛围。 在白天和夜晚也呈现出完全不一样的视觉体验。Somesome餐厅流动空间的设计,流畅且灵动,打破了传统餐厅餐桌沿着墙体排列的常规,和横平竖直呆板沉闷的排布方式。随着空间的流动,餐桌的排布以及朝向似乎也受到这种社会力推动而达到的平衡状态,每一组就餐空间通过这种牵引和博弈形成了既连贯又相对独立和私密的小空间。
-
空间布局:餐厅一整面落地窗对着庭院,流动的空间也自然的将室内外空间的相互渗透与融合,将室外景观引入室内的同时也将室内的空间引导到室外。卡座与酒吧区域的设置也和空间的流动紧密结合,从地面缓缓升起的矮墙逐渐包裹着卡座和吧台,形成了以柔和的曲线墙面巧妙分隔,既保留了空间的通透感,又营造出一种被红色水帘温柔环抱的错觉,巧妙地增强了私密性,让每一次聚会都充满了仪式感与专属感。酒吧区是餐厅的社交中心,无论是独自小酌还是朋友聚会,我们都希望提供一个轻松切具有吸引力的环境。 相比传统酒吧吧台的设计,我们让吧台高度逐渐降低甚至与地面相接,渐渐展现出吧台的“后台”,顾客可以更加直观地看到调酒师的工作过程,这种“开放式厨房”式的吧台设计能够极大地增强顾客与调酒师之间的互动,使得每一次点酒都成为一次独特的体验。作为整个餐厅唯一的包间空间,设计并没有完全封闭,而是打开了一条窄窄狭缝。 通过入口的一条窄缝,包间空间仍然与大厅产生一定的视觉联通, 既保证了一定的隐私,又形成了贯穿联通的空间。曲线的墙体再划分空间的同时也包裹了原有的结构。1955年,路易斯康在完成特灵顿浴室的设计之后,第一次正式提出“服务与被服务空间”主要阐述了因平面功能和结构的差异,把空间拆解的二元理论。然而,即使是在同一个空间,不同的行动也会产生空间属性的差别。比如同样在一个矩形空间内,被摆放餐桌的就餐空间自然成为了被服务空间,而其他空间则成为了上菜或是进出餐厅的交通空间,即被服务空间。两种空间具有着各自不同的属性和需求,就餐的被服务空间需要私密的,慢速的,安静的,舒适的氛围。而服务性的交通空间则是繁忙的,快速的,流动的空间。两种行为形成了不同的空间氛围,相互博弈而达到一种动态平衡的状态。而这种博弈也不仅仅是交通空间和就餐空间之间的相互影响,不同的就餐人群直接也同样存在着吸引或排斥。人员流动较大,快速的交通空间,和相对安静,慢速就餐区域即“服务空间”和“被服务空间”上的相互影响和博弈。再一定程度上,Flocking 算法和流体力学的动态粒子软件能对人流交通行为和社交距离进行模拟。设计上我们用数字手段模拟出人流和就餐区域的几种状态从而设计出一条高效的交通流线,连接餐桌与后厨的同时最小的影响就餐区域。 合理设置座位布局和数量。确保座位之间的间距适中,既能够满足顾客的舒适需求,又能够保持合理的社交距离。同时,考虑设置不同类型的座位(如两人桌、四人桌等)以满足不同顾客群体的需求。这不仅能够提升餐厅的运营效率和服务质量,还能够为顾客提供更加舒适、私密的就餐环境。通过这种方式,我们也在不同的设计方案之间进行权衡,找到最佳的平衡点,以创造出既高效又舒适的餐厅环境。这种模拟不仅有助于提升功能性,还能增强空间的社交互动,从而提升整体的就餐体验。
-
设计选材:餐厅的吊顶,采用了纹理纸这种轻盈,半透明的材料,随着空间流动并随风飘动,勾勒出丝丝缕缕的空气感。而层层叠叠的纸张叠加着光线,不仅为餐厅营造出了一种朦胧而神秘的美感,还巧妙地与光线互动,创造出令人惊叹的视觉效果,像是在溪水中挤入了一管红色颜料,随着流水形成了深浅不一的流动的效果。地面不同于传统餐厅单调乏味的地面铺设,这里采用了不同色阶的嫣红色微水泥,从浅淡的粉红到浓郁的酒红,形成了流动的曲线样条,仿佛将自然界的流水、风动等动态元素以静态的形式完美呈现。在整个流动的空间中,我们希望整个餐厅没有一个直线与棱角的存在,整个空间都形成一种模糊的,运动着的感觉。
-
用户体验:环境优美,色彩碰撞融合很棒,装修风格独特,是餐厅的亮点,适合约会打卡。

