阿那加艺术礼堂设计
552 - 项目类型:公共
- 项目地点:西安市
- 建筑面积:950.0000㎡
- 项目造价:280.0000万元
- 参与设计师:张英
- 竣工时间:2024.6
- 设计机构:西安DZ环境设计机构
-
项目定位:本案面积950㎡,位于老钢厂,是阿那加礼堂二期工程。设计师从视觉感官入手,打破老钢厂建筑的沉闷与斑驳感,并与原有门头尖碑拱洞元素相融合,探索建筑的艺术气息,感受空间的神圣与温柔,以空间见证永恒一刻。空间定位为多功能艺术空间,举办婚礼、团体活动、宴会接待等。
-
空间意境:从视觉感官入手,打破老钢厂建筑的沉闷与斑驳感,并与原有门头尖碑拱洞元素相融合,探索建筑的艺术气息,感受空间的神圣与温柔,以空间见证永恒一刻。设计师将礼堂动线改造,从高处缓缓步入,从外部轻轻而来,不一样的选择带来不同的惊喜体验。
-
空间布局:建筑之间相互融合,从几何入手,与原有尖碑拱洞相融合,以白墙为序延续空间的艺术。采用几何构建第二入口移步通往二层,多重视角总能领略不一样的风景。外立面与原有元素形成几何对比,构建独属于自己的场域。以水为填充,完善建筑前方空白,随时间光影的变化,水中倒影显映出空间的无限可能。保留建筑原始的双坡硬山顶,独特的故事感。
-
设计选材:项目主材选择环保的瓷砖,木地板,艺术漆等,让客户住的安心、安全,且创造出节能减碳优质化空间设计。
-
用户体验:在幸福的场域中逗留,让时间停留在这一刻,阿那加,沉浸在永恒之中。
建筑之间相互融合,从几何入手,与原有尖碑拱洞相融合,以白墙为序延续空间的艺术。采用几何构建第二入口移步通往二层,多重视角总能领略不一样的风景。外立面与原有元素形成几何对比,构建独属于自己的场域。以水为填充,完善建筑前方空白,随时间光影的变化,水中倒影显映出空间的无限可能。 保留建筑原始的双坡硬山顶,独特的故事感。将入口外延,加上步入门厅。让每一步都走在仪式感之上。
从入口步入,礼堂等待区并没有用过多的元素赘述。多重拱形门洞以圆润的弧度,让空间更加柔和,在视觉上更有纵深感。每一步都踩在仪式感的节奏之上,等待惊喜的开启。
设计师将礼堂动线改造,从高处缓缓步入,从外部轻轻而来,不一样的选择带来不同的惊喜体验。
水吧台位于礼堂入口,赋予其多重功能属性,接待、休息、等候。保留了部分建筑原有的肌理,同时打破建筑原始的斑驳感。给予礼堂当中每一位双重的视觉感官冲击。 空间并不是独立的个体,与原有的建筑相互融合,让建筑体之间保持相同节奏,共同构建“阿那加”场域。从二楼延伸部分区域,从上俯视整个礼堂,见证无数的喜悦与感动,让一刻的记忆成为永恒。
礼堂没有过多的限制,将更多的发挥空间预留给空间的“主角”。以简洁大气的线条勾勒出空间庄重的轮廓,高耸的顶端如羽翼一般展开,让艺术气息停留在空间之中。墙面可以保留原始建筑痕迹,突出建筑浓厚的故事感与斑驳感。二层墙面镂空设计,让礼堂当中幸福欢快的氛围也能自由的影响到二层空间。
将空间原有楼梯拆改,在礼堂外围构建艺术长廊。多以墙体之间的层次关系丰富空间的内部结构,以结构包裹楼梯,不断赋予“阿那加”艺术感氛围。将独立的两座建筑串联起来,不仅仅是视觉更是功能的配合,餐厅打通原有的建筑,让两座不同的建筑体在此处交融互动。
空间随斜顶而逐步扩大,不受方正布局的影响形成一种独特的视觉张力。将高处分割,打造另一对婚房。
二楼宴会厅房椽裸露,其独特的结构以及质朴的美感扑面而来。它们不止是建筑的一部分,也是曾经岁月的见证者,将建筑的“骨骼与脉络”展现在眼前。粗糙的木质纹理诉说着曾经故事的,而新的故事也从这里开始。
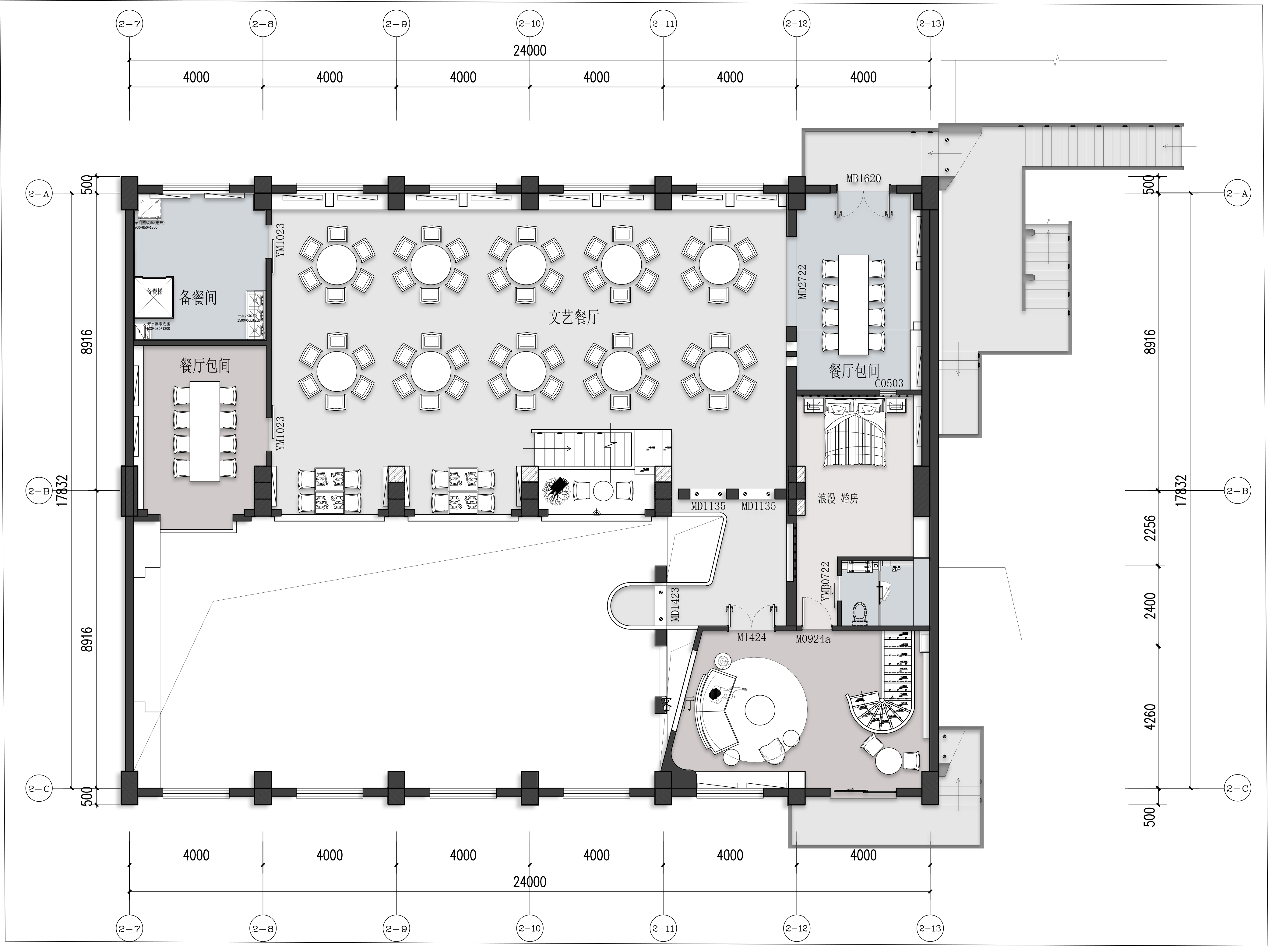
▲一层平面布局图
▲二层平面布局图
▲三层平面布局图
0
0

认证 · 让您身份增值