-
项目定位:本案背景为旧房的翻新改造,原始户型为老宅顶层复式;主要人口结构为一对年轻新人做婚房使用;客人偏爱有腔调一点的重色,希望整个家庭的氛围有电影的质感,以及有中式的文化韵味。
-
空间意境:在整个风格及色彩定掉我们延续部分宋式美学中的简练线条及元素,混合了法式的部分线条,复古风的深木色,及象征性的拱形元素,重度色及中度色的色彩对比,用多种的元素点做一些联想性;让整个空间拥有异样的调性。
-
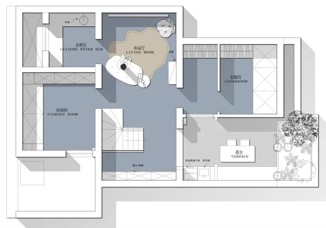
空间布局:原始结构有很多是承重墙不可以做调整,但是在现有人口结构以及以后还有宝宝的环境下我们还是保留楼下2间卧室,楼上1间多功能卧室的格局。并将原来的一间卧室打开作为餐厅及休闲茶室,将原来楼梯的位置做了调整及优化,将楼梯置于入户位置,并利用楼梯下的空间给业主设计了入户储物间,后期可以收纳小朋友的车具等物料,在二楼我们设计了一个家庭厅做为业主娱乐影音使用,一间茶水吧台作为娱乐区的功能补充,以及一间功能性的衣帽间和多功能的收纳卧室。
-
设计选材:在材质的选择上我们没有一味的追求统一,在温润的木质材质跟艺术漆的肌理感外增加了部分金属的点缀,比如楼梯处的造型原色不锈钢扶手,金属造型门,金属入户玻璃屏风造型,漆面墙顶同色,让空间材质不至于全是木质的燥热,希望通过这些现代的硬一点的质感让空间再像公共空间一样让人产生少许的距离感。
-
用户体验:整个项目我们希望在保持居家舒适性的基础上,结合业主的个人审美情趣营造时光胶片感,商业空间的秩序感,以及中性的家居思考态度。
复古透光玻璃的窗洞,宛如时光的缝隙,将卧室的光线引入玄关,不仅打破了小空间的局促感,更是一种对光影艺术的致敬,一道道治愈系的光束照亮归途,温暖人心。边柜的存在,不仅是对日常琐碎的收纳,更是对生活细节的尊重。
查尔斯·艾姆斯说过:“建筑是一种非常个人的东西,它是你的,我的,所有人的。”楼梯,不再仅仅是连接上下的通道,而是一个充满惊喜的元素,兼具储物、电视柜和视觉隔断的功能。楼梯位置的重新定位,体现了对自由流动性的追求,也是探索多功能性的全新解答。
在这个空间里,每一处都充满了设计的智慧与情感的温度,每一刻都是对生活情趣的铺垫,每一次回眸,都能发现不同的美好。这是一场关于艺术与生活的对话,是一次关于美学与功能的融合,是一首关于家与爱的诗篇。
低饱和度的色彩和大量的留白,这些简洁的设计语言,像一首未完的诗,邀人在其中填下自己的篇章。壁炉,传递着真实的温度。棉麻、土陶、木材之间的对话,不仅是材质的碰撞,更是质感的交锋,它们的交汇如同交响乐,惊艳了每一次的会客时光。
业主独爱的中式屏风缓缓展开,黑金色调赋予了空间一种独属于东方的侘寂之美。圆管曲直相连,为麻花柱预留了存在空间,在通透如画的图景中交织古典与现代的语素,引导居住者去关注生活的细节。
棋盘格地砖在不同的局部空间内反复出现,串联了整体空间,形成了美学的呼应。打造干湿分离的空间关系,让复古情调向内流淌,启发干区复刻铃兰的娇贵气质,用色彩、光泽、清新图案呈现田园诗歌的悠然氛围,达成独具魅力的进化。
漫步至卧室,空间底色更为洁净、平和。以睡眠需求为核心,烘托静谧的气氛,任由大开窗“放映”四季时景。人,作为空间的主角,被引领着去感受每一个细微的旋律,去体验生活中那些常被忽视的美丽瞬间。
生活,原来可以如此高级,如此充满艺术感。淡雅静谧的色调,阻隔了外界的喧嚣,依次排布休闲区、睡眠区和阅读区,隔断墙的每个边缘不再锐利,而是柔意满满,陪你聆听着阳光和时间的私语。
地板、扶手、框架、灯泡等物件,跨越虚实边界,只为烘托复古之宅的故事感。散射式光源让光影序列自然叠加,旨在补充固定序列不能交汇的特质,亦实亦幻,刚柔兼备。上仰下俯的视野,令互动之乐常显。
设计的魅力,就是能够将生活中的琐碎细节,转化为一种艺术。阁楼,宛如一扇通往另一个世界的门,在光与影、色与形构建的世界里,不对称的斜坡屋顶,打破了家的基本印象,也潜藏着一些期待和惊喜。
一楼彩平图
二楼彩平图
1
1

认证 · 让您身份增值
227