中古混搭王家卫经典港风



- 项目类型:住宅公寓
- 项目地点:上海市
- 建筑面积:220.0000㎡
- 项目造价:126.0000万元
- 主案设计师: 王兵
- 参与设计师:王兵
- 竣工时间:2024.9
- 设计机构:上海臻溪空间设计事务所
-
项目定位:这套叠墅在接手设计时,非常有意思。前业主装修到一半,因为各种空间规划失误,导致部分房间无法封顶,楼梯位置也十分尴尬,楼层之间无法衔接,装修无法继续进行,最后无奈选择停止装修、出售房屋。在我们接手后,为新业主全部重新设计,对空间的破局与重组,变化每层楼梯位置和墙体划分后,叠墅空间优势才得以发挥。灵感来自业主夫妻的工作,将胶片这样的影视元素,变成独一无二的墙面装饰。以中古风混搭经典王家卫港式文艺,房屋和生活同步焕新。
-
空间意境:一层露台的门洞与窗景在同一水平线上串联,选择中间的窗户和左边的露台入口,以木质框线的形式,紧紧关联。破除单调的一排窗洞,视觉延伸拉宽的同时,也使长条空间有了紧密的逻辑关系。露台入口和窗户的框体设计,在装饰空间的同时,也成为席地而坐的随心休闲区。围绕立柱和梁体,做成展架,唱片和书籍尽享收藏乐趣。原本内凹的墙体,做成玻璃展示柜,内部布置灯带。
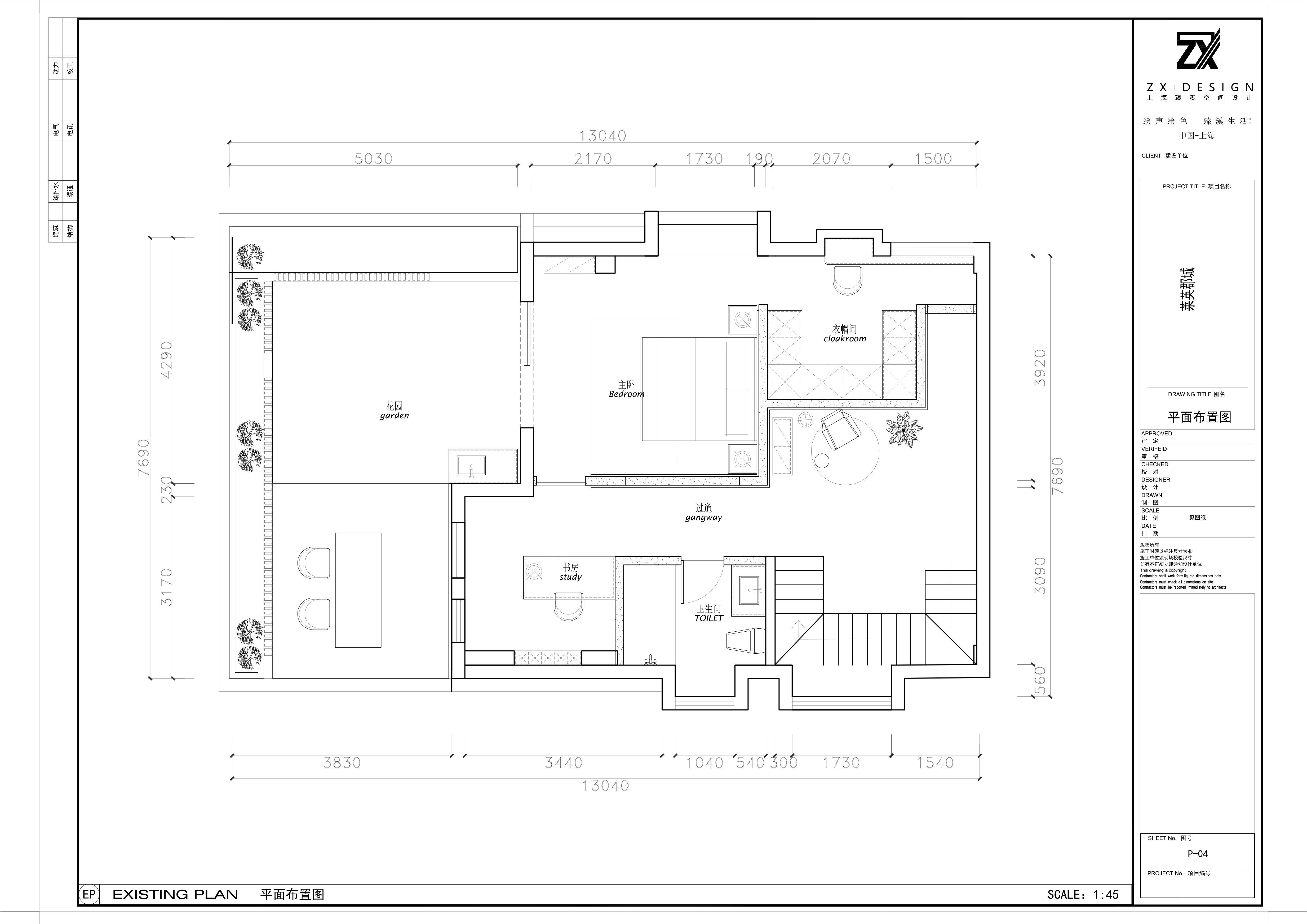
步入二层,胶片造型墙面,将夫妻二人的职业隐于此,记录每一帧精彩生活。卧室特意开了一方窗景观口,大荧幕般,放映生活片段。胶片造型,在主卧内外镜面映衬。往里为专属衣帽化妆间。
-
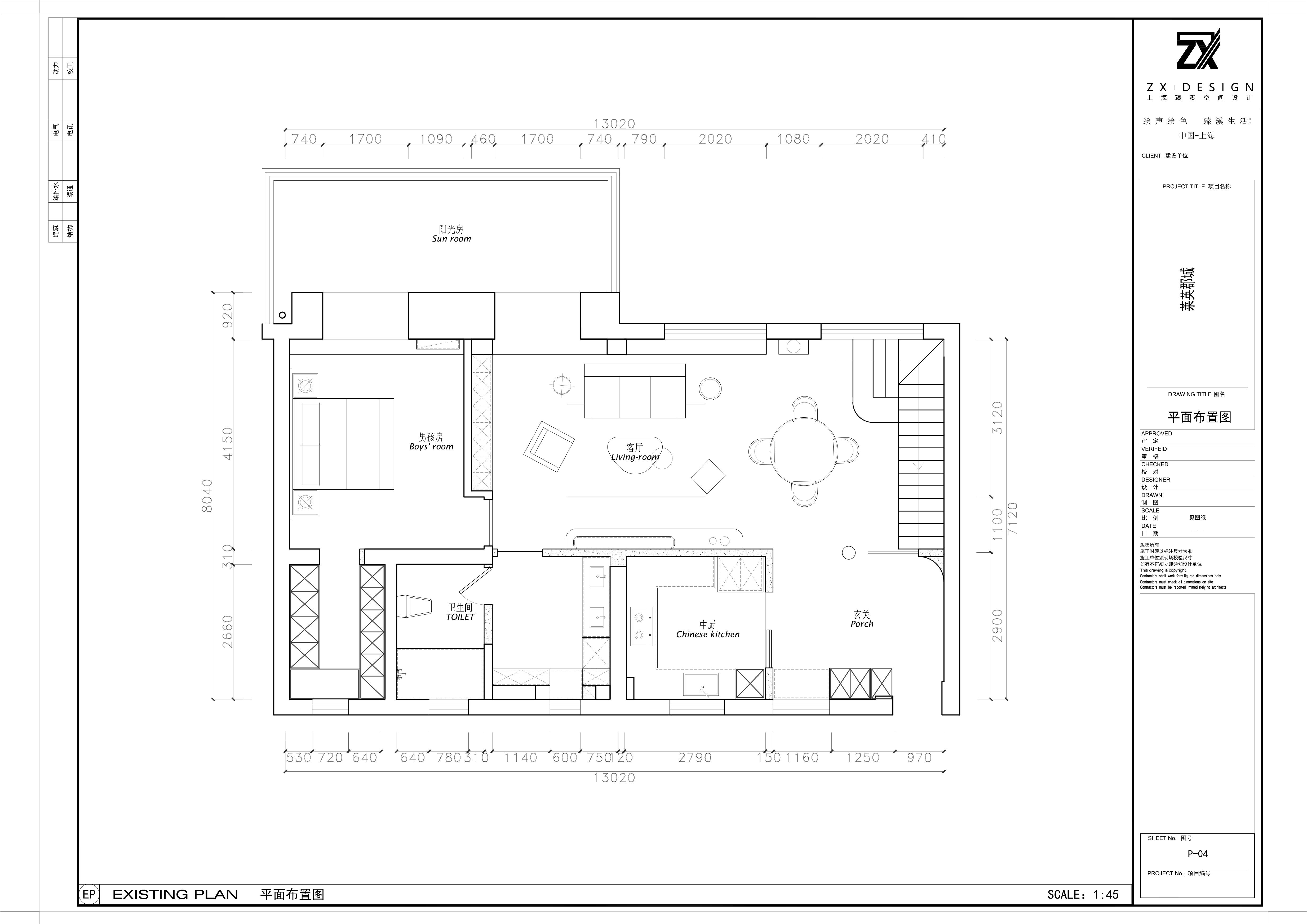
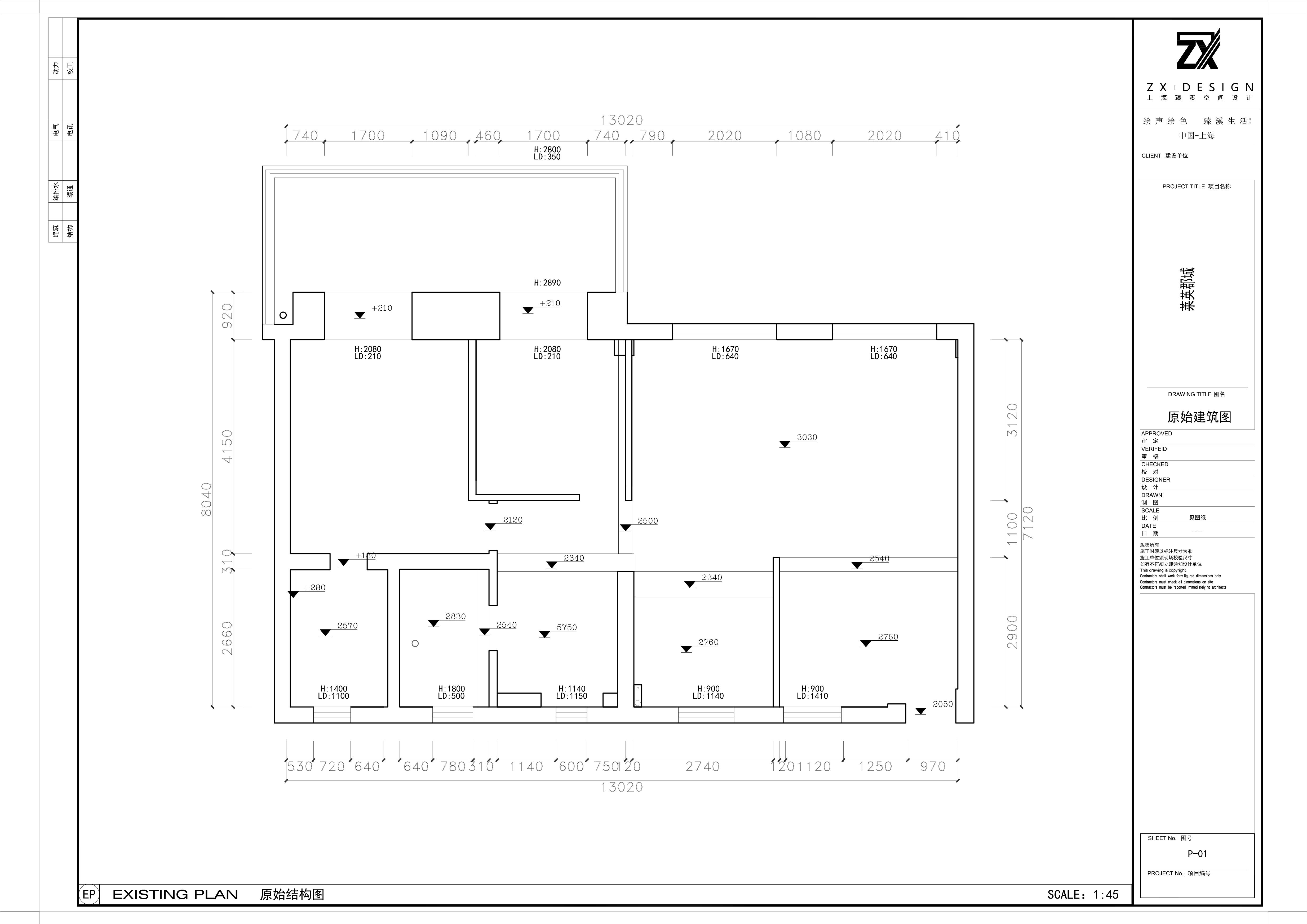
空间布局:改造前—— 原始格局中,进门玄关的位置面积十分浪费,一层大梁过多。本身面积不算小的叠墅,处处分割,切成了豆腐块,各门洞之间也不齐平,导致视觉闭塞,哪哪都很局促。二层楼梯上来后,非常狭小。有个连着露台的大空间,有着最好的阳光和风景。原业主是做客厅使用,动静分区被破坏。三层是个尖顶的阁楼,原本只有一个又小又陡的楼梯,爬上去很费劲。两个房间凹在里面,很难利用,造成浪费。
改造后——
接手设计后,首先要解决动线问题、空间划分问题和楼梯位置的重新选择。通过调整楼梯的位置,实现了空间的再释放。将一楼的一个房间与露台进行打通,贯穿成一体的公共空间,形成客餐一体的大客厅。 在餐厅边实现了通往二层的悬浮楼梯。将原厨房的门洞封闭,重新开门,形成整齐大气的电视墙。入户玄关和厨房形成开放式通道,动线也更加合理。原本的楼梯位置做成干湿分离的功能卫生间。
二层也重新布局,以主卧套房的形式呈现。主卧、衣帽间、书房、卫生间、露台、休闲区。走廊连接露台,避免必须从主卧经过的不便与尴尬。玻璃砖、观景格窗,床对露台大窗景的做法,均是借用了民宿的手法处理。
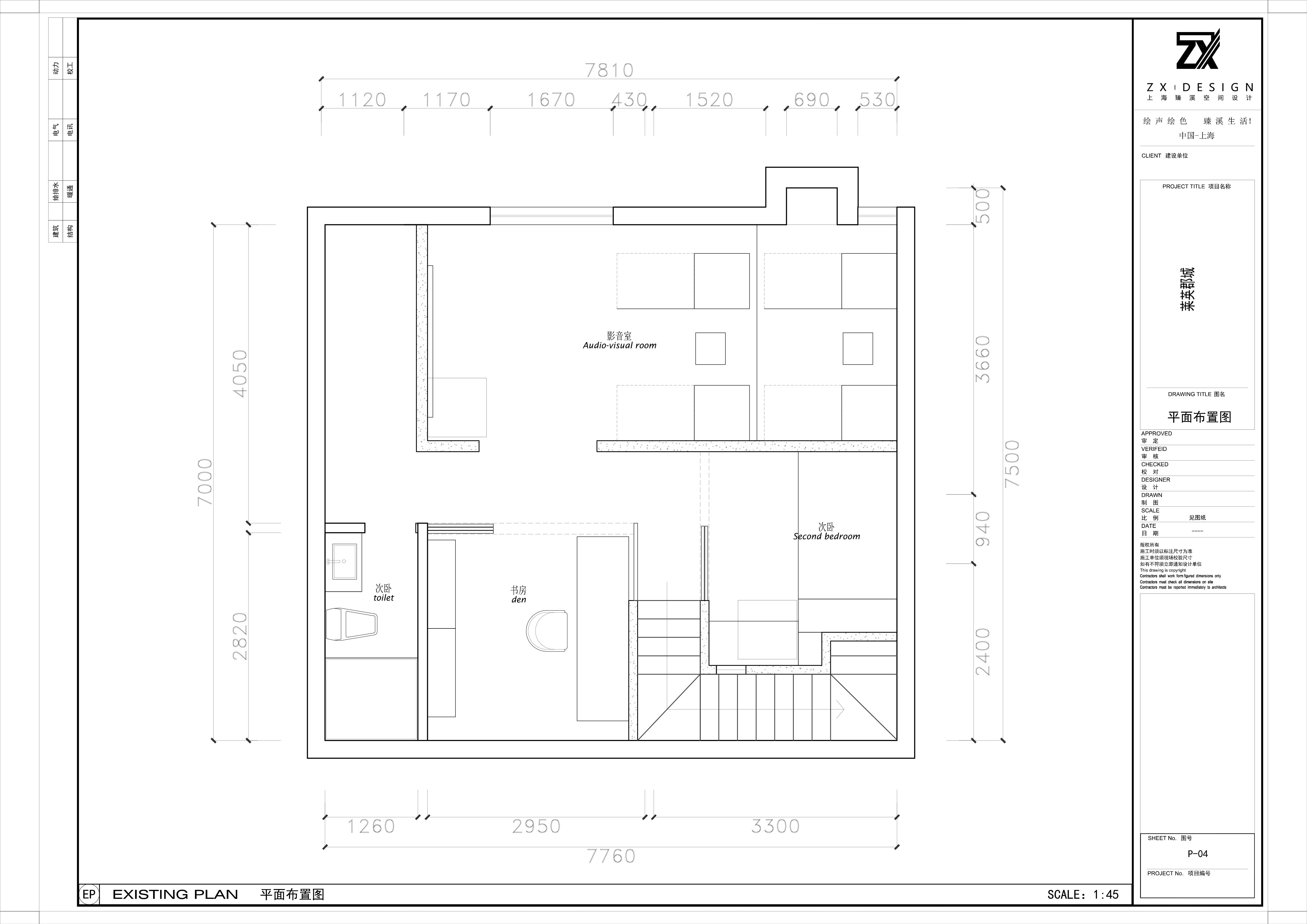
三层的楼梯位置也有变动,再充分结合阁楼尖顶的不规则层高,将阁楼依势划分成男主人的书房、一个临时的客卧、储藏间、卫生间和一个大的家庭影音室。 -
设计选材:1、黑色法柱与洞洞板,浪漫玄关,层次丰富。
2、微通风的特殊窗体,在两侧弱化窗户的存在感,把尽量多的光线风景装饰成画。
3、悬浮楼梯预埋钢板穿插,玻璃扶手通透轻盈。将转角踏步以蓝绿色微水泥处理,比传统的悬浮楼梯增加更多色彩与艺术感觉。
4、以悬浮吊柜搭配普拉达绿大理石,高低碰撞、材质碰撞,投影幕布隐藏于顶部,观影随心。 -
用户体验:业主——设计师审美很高,沟通也很顺畅。最满意对空间的破局与重组,变化每层楼梯位置和墙体划分后,叠墅空间优势才得以发挥。不仅提高空间实用性和利用率,也以中古混搭经典港风,创造出与我们艺术行业气质吻合的家。在家直播时,每个角落都能成为很好的背景。
黑色法柱与洞洞板,浪漫玄关,层次丰富。
光影通过洞口折射,半遮半掩,在踏入家中的一刻,就被吸引。
餐厅看向玄关,入户一侧是厨房。
中古风味的厨房,墨绿色长条砖点缀。
进门两个大窗景,将外面的绿意引入室内。微通风的特殊窗体,在两侧弱化窗户的存在感,把尽量多的光线风景装饰成画。
悬浮楼梯预埋钢板穿插,玻璃扶手通透轻盈。将转角踏步以蓝绿色微水泥处理,比传统的悬浮楼梯增加更多色彩与艺术感觉。
悬浮楼梯,成为餐厅一角的艺术装饰。
一盏黄黄旧旧的灯。
色彩碰撞。
大型圆形餐桌,即使8人聚会也毫无压力。圆润的边角,保证通道动线的顺畅。
露台的门洞与窗景在同一水平线上串联,选择中间的窗户和左边的露台入口,以木质框线的形式,紧紧关联。破除单调的一排窗洞,视觉延伸拉宽的同时,也使长条空间有了紧密的逻辑关系。
露台入口和窗户的框体设计,在装饰空间的同时,也成为席地而坐的随心休闲区。
围绕立柱和梁体,做成展架,唱片和书籍尽享收藏乐趣。
原本内凹的墙体,做成玻璃展示柜,内部布置灯带。
原本的门洞封起来,形成客厅的影视墙。打破传统,以悬浮吊柜搭配普拉达绿大理石,高低碰撞、材质碰撞,投影幕布隐藏于顶部,观影随心。
一楼内部留了一个小朋友的房间,考虑单纯白墙闷沉单调,结合客厅框景手法,也同样做了木质立体窗框,可以摆放大量书籍。公共与私密,以统一的设计元素,进行空间呼应。
一层的卫生间紧邻儿童房。
干湿分离的多功能客卫。
步入二层,胶片造型墙面,将夫妻二人的职业隐于此,记录每一帧精彩生活。
私属的主卧休闲小厅。折线胶片装饰墙,内嵌灯光营造氛围。
玻璃砖释放珍贵光线。
特意开了一方窗景观口,大荧幕般,放映生活片段。
胶片造型,在主卧内外镜面映衬。往里为专属衣帽化妆间。
主卧床面对观景露台,享受清晨被唤醒的第一缕阳光。
套房通透开放。
原二层楼梯位置,重做现浇和柜体。变身采光视野俱佳的书房一角。
二层走廊,可直接步入开阔露台。
三层主要作为男主人书房,附带客卧和影音室。由于顶层阁楼整体窗体少,层高较压抑,重点以玻璃隔断增加了呼吸感。
参考阁楼不规则层高,把更多可站立高度,留给精华空间。
影音室使用深色艺术涂料,沉浸式暗色调,观影氛围拉满。
改造前—— 原始格局中,进门玄关的位置面积十分浪费,一层大梁过多。本身面积不算小的叠墅,处处分割,切成了豆腐块,各门洞之间也不齐平,导致视觉闭塞,哪哪都很局促。
二层楼梯上来后,非常狭小。有个连着露台的大空间,有着最好的阳光和风景。原业主是做客厅使用,动静分区被破坏。
三层是个尖顶的阁楼,原本只有一个又小又陡的楼梯,爬上去很费劲。两个房间凹在里面,很难利用,造成浪费。
改造后—— 接手设计后,首先要解决动线问题、空间划分问题和楼梯位置的重新选择。通过调整楼梯的位置,实现了空间的再释放。将一楼的一个房间与露台进行打通,贯穿成一体的公共空间,形成客餐一体的大客厅。 在餐厅边实现了通往二层的悬浮楼梯。将原厨房的门洞封闭,重新开门,形成整齐大气的电视墙。入户玄关和厨房形成开放式通道,动线也更加合理。原本的楼梯位置做成干湿分离的功能卫生间
二层也重新布局,以主卧套房的形式呈现。主卧、衣帽间、书房、卫生间、露台、休闲区。走廊连接露台,避免必须从主卧经过的不便与尴尬。玻璃砖、观景格窗,床对露台大窗景的做法,均是借用了民宿的手法处理。
三层的楼梯位置也有变动,再充分结合阁楼尖顶的不规则层高,将阁楼依势划分成男主人的书房、一个临时的客卧、储藏间、卫生间和一个大的家庭影音室。

