-
项目定位:在私宅设计之初,设计师就想要表达出一种不张扬、不卑不亢的生活态度,以生活为出发点,让空间和人回归生活。屋主是一对饱含艺术气息和文艺氛围的小夫妻,有一对超可爱的儿女。他们对理想住所有着自己个性化的解读,居所是自己一片梦想的自留地。期待它成为私人时间的安放之处。
-
空间意境:在这个家的设计中,没有太多张扬和浮华的元素,只有恰到好处的装饰和实用的收纳空间。家作为人们治愈身心的场所,同时也是维系人们情感的纽带。温柔的奶油色调,打造温暖治愈的空间。化繁为简,放下往日的浮躁,寻找那一抹冬日暖阳。阳光透过融化了时光,瞬间治愈人心。对于设计师而言,除了美的设计是不够的,致以完整的灵感、构思、实施,一个作品才算拥有鲜活的生命力。我们努力让设计不仅服务于物质层面,还可以记录、理解、感悟生活。在安静有序的氛围中,透出着婉转通透的气息,记录着家人最美好的时刻,让他们在工作或是休闲时间,都可以享受着彼此之间的温馨陪伴和交流。每一个角落都体现了屋主的细腻心思和对生活的关注,精致细节,无一不展现出屋主对于生活质量的追求。
-
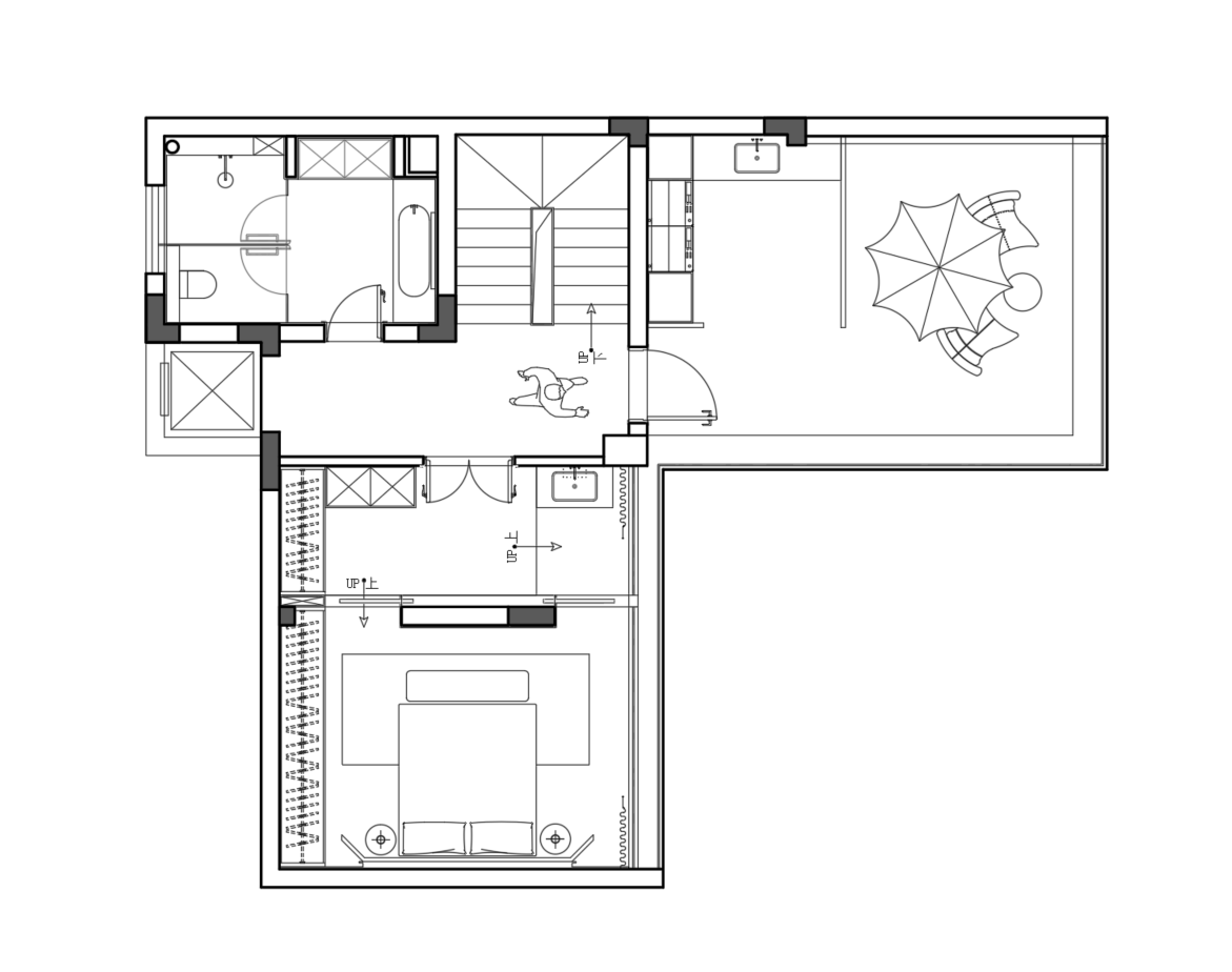
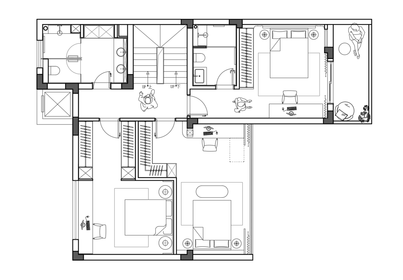
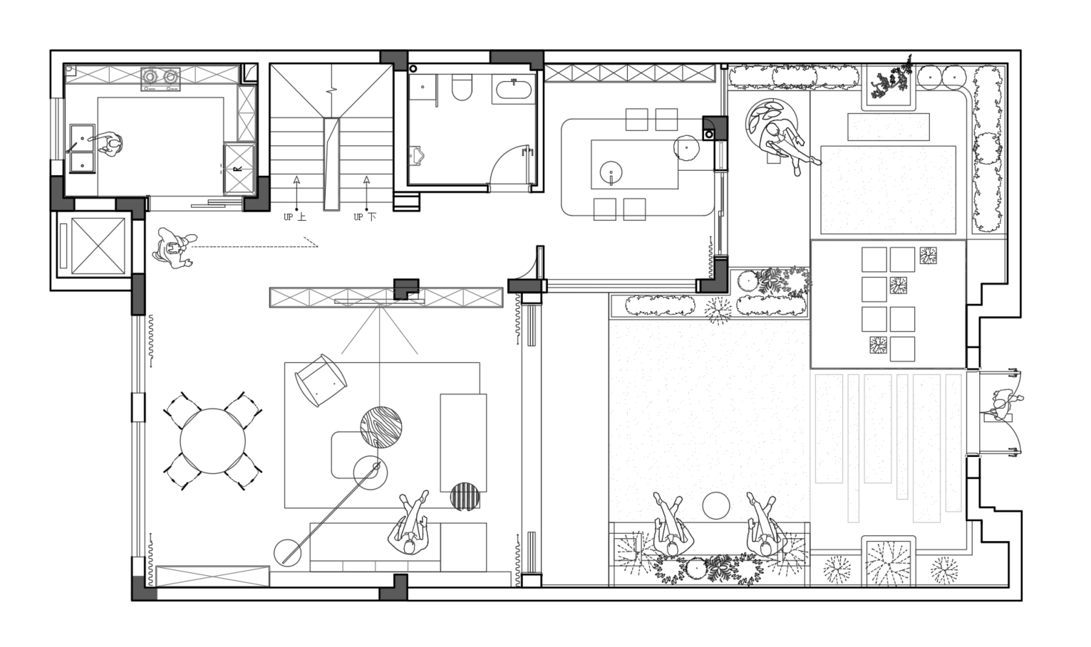
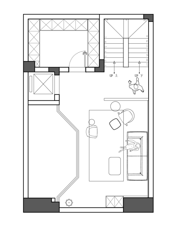
空间布局:为了满足家人之间的情感交流和日常生活需求,设计师重新规划了空间布局,庭院的景观被引入到室内,让孩子在院内玩耍的同时可以和屋内的父母交流互动。
-
设计选材:在别墅设计选材时,注重低碳与经济性的创新,不仅能使别墅在环保方面更具优势,契合当下可持续发展理念,也能从成本角度为业主和建设者带来切实的效益,实现环境与经济效益的双赢。
-
用户体验:在安静有序的氛围中,透出着婉转通透的气息,记录着家人最美好的时刻,让他们在工作或是休闲时间,都可以享受着彼此之间的温馨陪伴和交流。每一个角落都体现了屋主的细腻心思和对生活的关注,精致细节,无一不展现出屋主对于生活质量的追求。
0
0

认证 · 让您身份增值
360