润▪保利云僖
239
作品说明
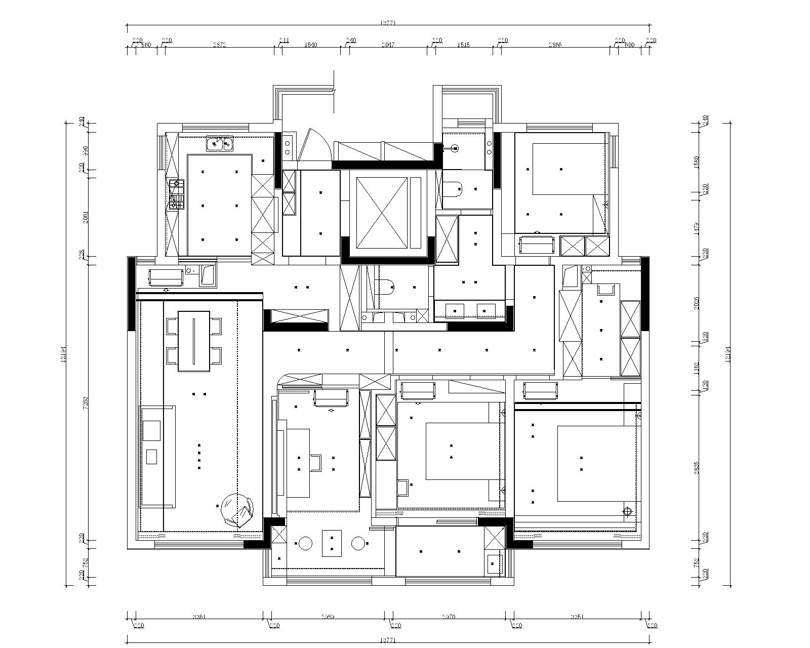
- 项目类型:住宅公寓
- 项目地点:南京市
- 建筑面积:143.0000㎡
- 项目造价:60.0000万元
- 竣工时间:2023年4月
- 设计机构:南京壹石空间设计
-
项目定位:这是我们装的第三套房子,每一次都有用心的对待。不活在过去也不惧未来,就在当下给家人营造想回家,倍感温暖的地方。爱可以让我们内心柔软,美的环境也可以滋润心灵。
时间让我们对生活有了更温柔的理解,更多的感悟。想要的空间是放松的,温暖的,婉约但考究,深厚与优雅,慢下来的生活方式。以这一切为核心展开设计方向。 -
空间意境:空间大量使用了木质材料,柔和的木纹凸显整体的细腻质感,墙面使用暖色流动质感的微水泥、从进门处开始走起,无一处不是巧思构想。
什么是好的设计呢,是有爱的设计,有细心体察居住者感受的设计。
-
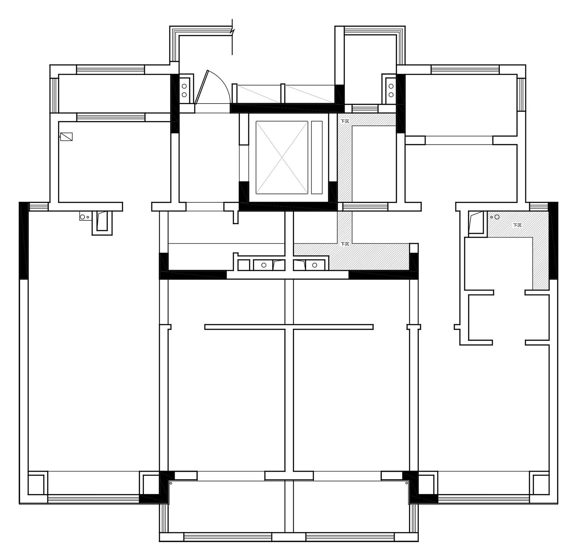
空间布局:长走廊,巧“留白” 中间有一段空隙,呼吸感,留给视觉喘息的空间。书房采用有隐蔽性,但和外界仍相连的半开放式设计,弧形墙让空间有了趣味的生动。
半开放的书房,可以安静的学习,也可以随时和家人互动,如果你有需要,一扇窗,一扇门随时为你敞开。
造型加入了圆弧造型,餐桌和灯饰也选用了圆形款式,喜欢它的圆润感,也喜欢一家人围坐在一起的亲昵。惬意,质朴雅素的家具,造就寂静一隅。
书房是现在家人最喜欢呆的地方,书桌可以满足两个人同时看书和学习,累了就跑到地台上和猫咪玩一会。闲暇的时候泡一壶茶坐着晒晒太阳,让自己彻底的放松休息。
大多数的时候,我们忙于各种奔波,静不下来心来享受时光,但静能生慧,慧才能生智。深度进入宁静的状态,专注自己的内心。什么时候也别忘记什么对自己最重要。
书房是现在家人最喜欢呆的地方,书桌可以满足两个人同时看书和学习,累了就跑到地台上和猫咪玩一会。闲暇的时候泡一壶茶坐着晒晒太阳,让自己彻底的放松休息。
大多数的时候,我们忙于各种奔波,静不下来心来享受时光,但静能生慧,慧才能生智。深度进入宁静的状态,专注自己的内心。什么时候也别忘记什么对自己最重要。
主卧原卫生间改为衣帽间,书桌台,部分柜门做成了镜子,设计实现了更理想的生活状态。
孩子房间的收纳,床尾有衣柜和书桌,床边是展示柜,前一年他还说要放自己的各种奖牌,希望用来展示,而现在全部收起来放到了角落。
成长也许就是这样,从外向到内敛,从放到收有一个过程,所以我们在他的书房特意留了一张书桌,也许有一天他需要独处一室,不希望被打扰,教育是一场渐行渐远的修行。
预留的父母房间,他们有自己的世界,喜欢看电视打发时间,做了内嵌电视柜设计。
暗卫采用了感应灯和感应换气扇设计,只要走进它,就有光。
-
设计选材:新风、 系统窗 、二联供空调+地暖、 投影仪 、嵌入式蒸烤箱 、 零嵌入式冰箱 、洗碗机、 感应换气扇 、人体感应呼吸灯、 嵌入式踢脚线 、 磁吸轨道灯 、线性灯、 壁挂式马桶、暗埋式龙头、暗埋式花洒、厨房和衣帽间 (口袋移门)、阳台暗藏晾衣架设计 、偏轴百叶门 、白色烤漆门板、白色PRT门板、实木皮护墙板、顶面KD板、 微水泥地砖、 墙顶面微水泥、核桃木多层木地板......
-
用户体验:自从入住,喜欢上了宅家,爱上了做饭,这大概就是设计改变了生活方式。与我而言除了努力工作外,更愿意把时间和精力花在家人和家的经营上面。
还是要谢谢壹石设计师,虽然不是外人,哈哈
0
0

认证 · 让您身份增值