众晟设计工作室
106
作品说明
- 项目类型:住宅公寓
- 项目地点:无锡市
- 建筑面积:140㎡
- 项目造价:50万元
- 主案设计师: 张铃旋
- 竣工时间:2024.9.20
-
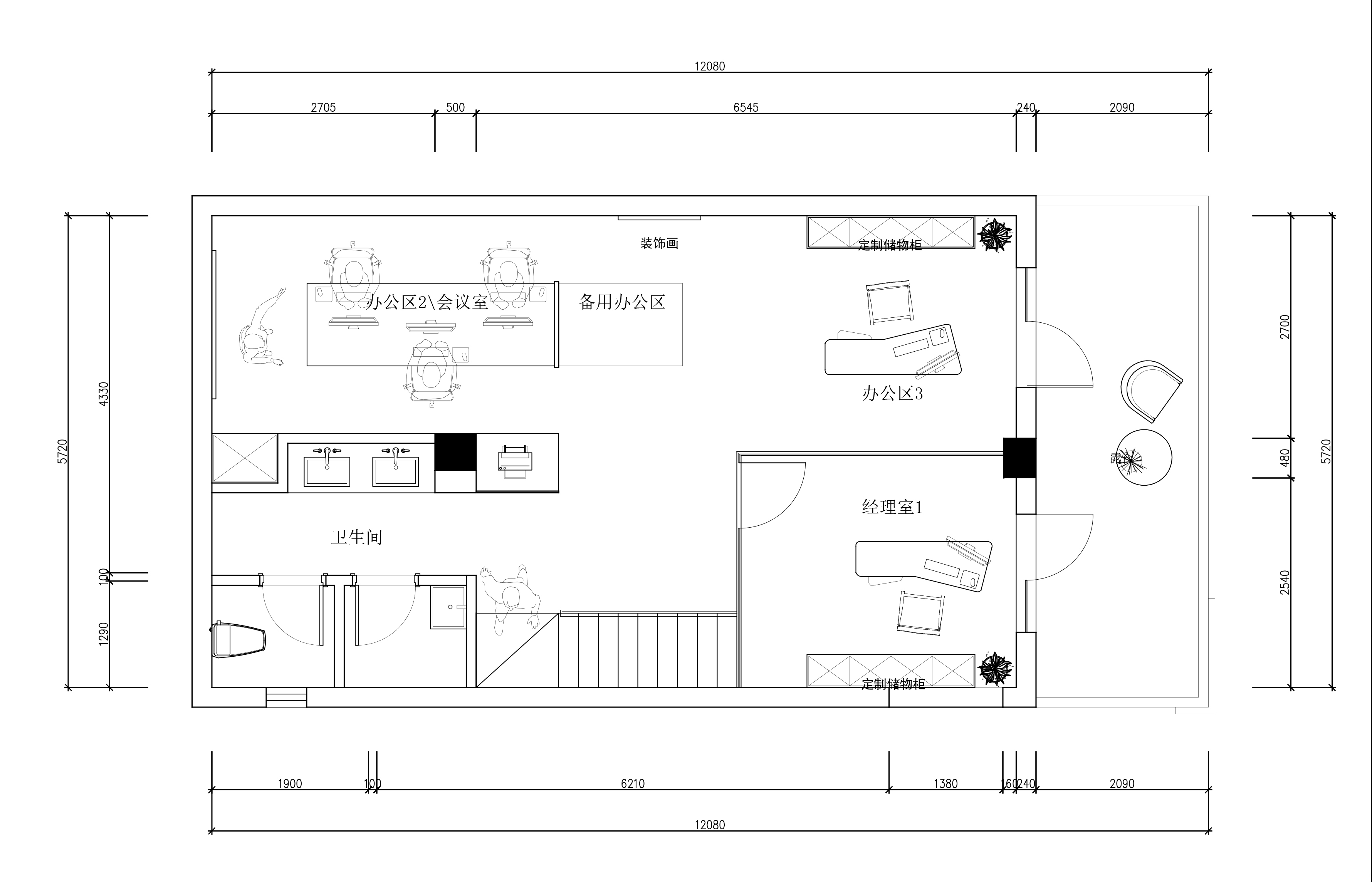
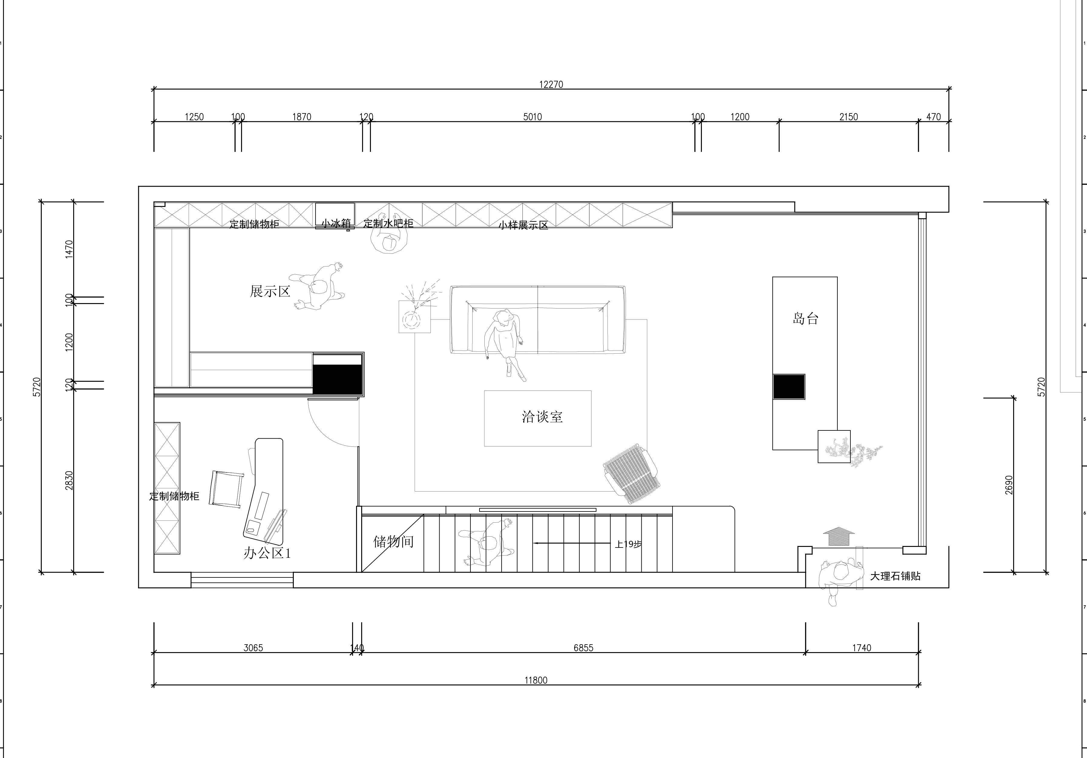
项目定位:工作室面积不大,是一个LOFT户型,单层面积只有75㎡,所以在色系选择上,采用了浅色系,风格上用了奶油风的设计。
-
空间意境:整体色系采用暖色系,从精神层面出发,可以让来这里的朋友和客人有一种归家温馨的感觉,从视觉角度出发,浅色系可以让整个空间显得更开阔。
-
空间布局:将工作室的入口做了一个内缩的设计,可以遮住楼梯,因为面积不大,所以楼梯采用了“隐”的设计手法,让客人产生难以一眼窥全貌的错觉,又想要去一探究竟的心理,因为办公区域在楼上,将楼梯设计在进门的左手边,动线上会更加合理。采用了悬浮楼梯+电视背景的组合,很有设计感也释放了更多空间,楼梯的踏步延伸与地台相连接,第一踏步进行的一个深色的岩板的跳色,并且台阶做了内缩,从空间形式上出发,增加了空间的重量感和层次感,从情感上出发,又增添了满满的仪式感。
-
设计选材:选材上整体以环保简约温馨为中心思想,悬浮楼梯和电视背景相结合,统一采用了哑光纯白的岩板材质,一楼地面为哑光砖,墙面为艺术涂料,二楼因为是办公场所,地面为实木新三层的地板,相对强化地板而言更加环保,相较纯实木地板来说,又极具性价比。
-
用户体验:灯光采用无主灯的设计,材质都是哑光面的,整个空间温馨干净,所以拍照很出片。
0
0

认证 · 让您身份增值