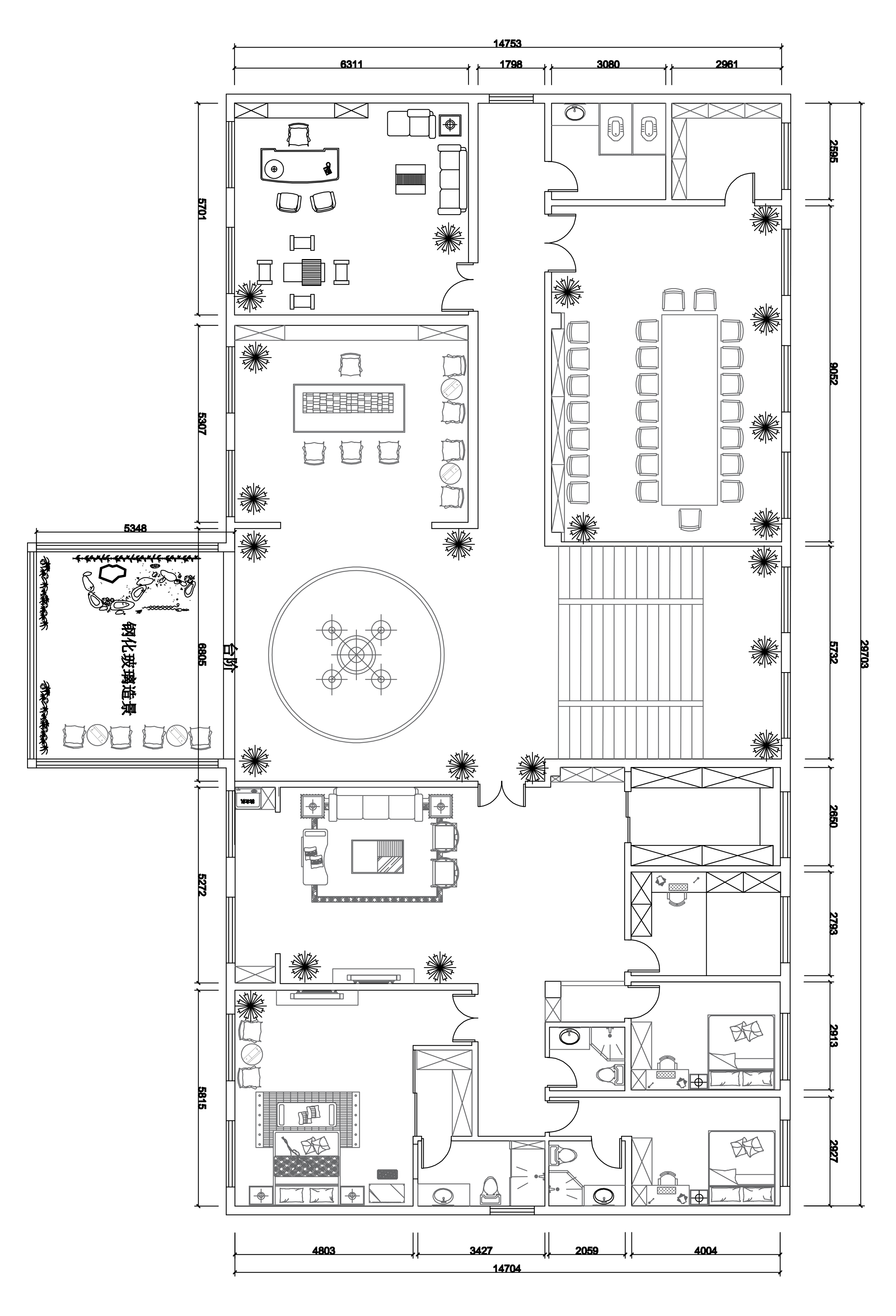
新中式会所



作品说明
- 项目类型:休闲娱乐
- 项目地点:唐山市
- 建筑面积:1000.0000㎡
- 项目造价:350.0000万元
- 参与设计师:于伟乐
- 竣工时间:2024年6月
- 设计机构:唐山未来意乾装饰有限公司
-
项目定位:一层会所,二层办公与住宅相结合
-
空间意境:对色彩、材质、光线等因素的结合
-
空间布局:不仅考虑了功能性,也追求空间的层次感和跳跃感
-
设计选材:考虑到质感、颜色、耐用性以及环保性能等因素,主要有木作和天然石材、不锈钢板
-
用户体验:新中式的高雅与尊贵,温馨舒适

