济南轨道交通龙洞停车场综合楼



作品说明
- 项目类型:办公
- 项目地点:济南市
- 建筑面积:8640.0000㎡
- 项目造价:800.0000万元
- 主案设计师: 边文淦
- 参与设计师:边文淦 张国萌
- 竣工时间:2024
- 设计机构:同圆设计集团有限公司
-
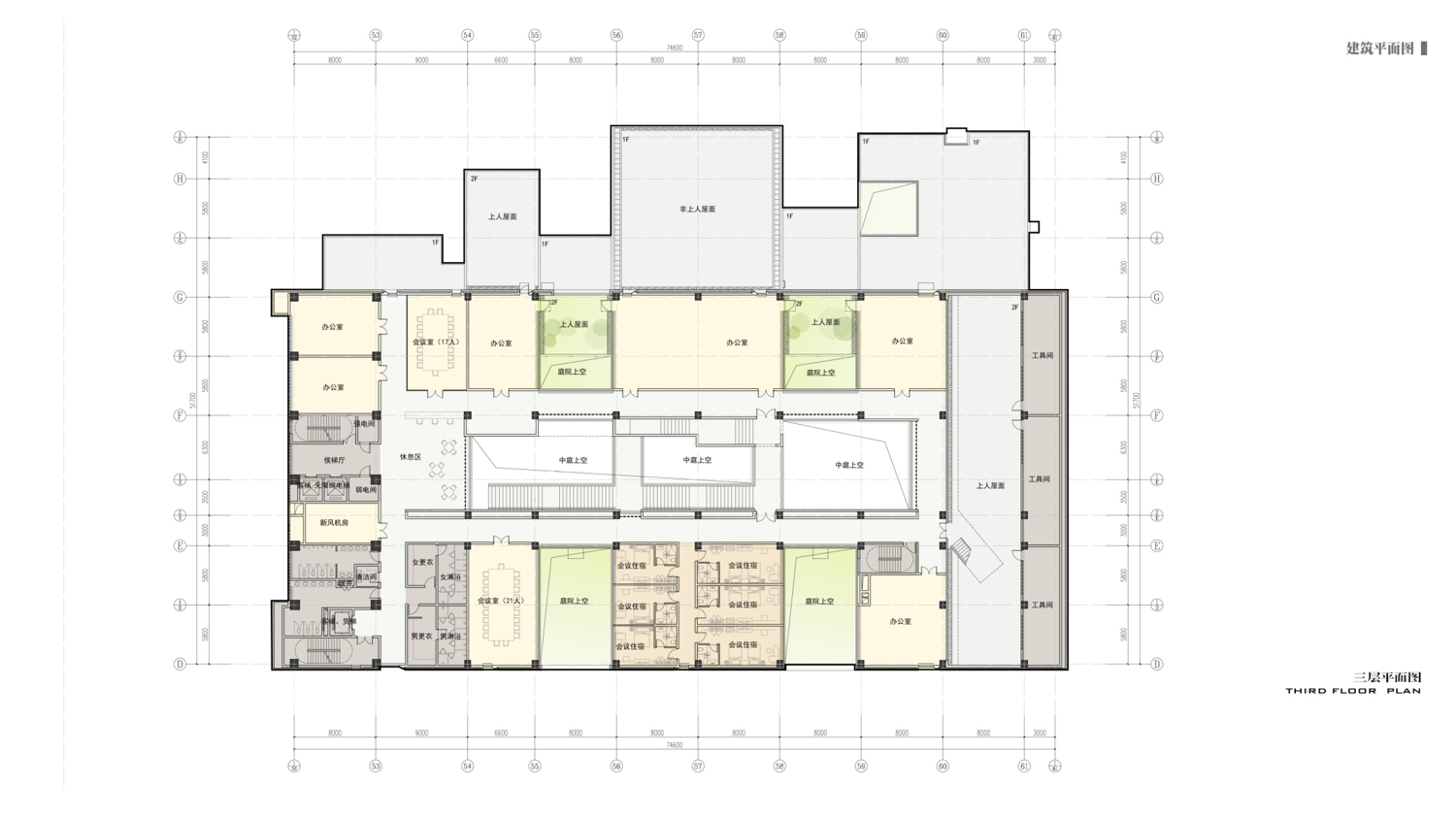
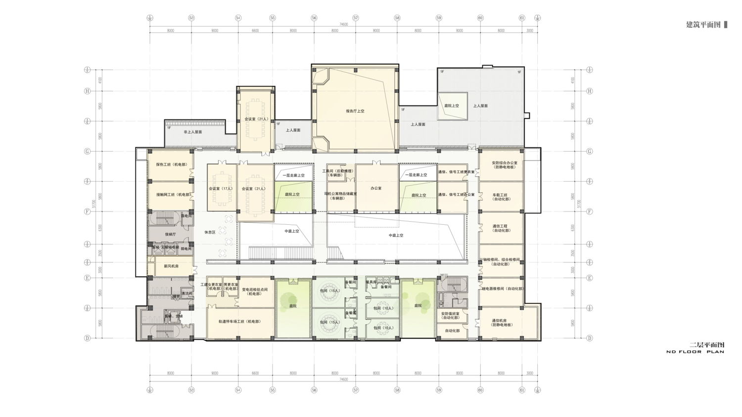
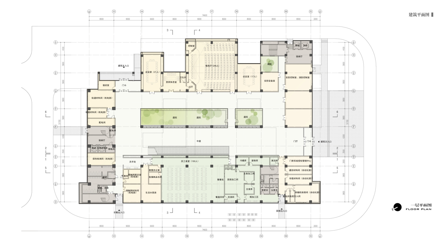
项目定位:本项目坐落于山东省济南市龙洞庄村。基地西南两侧为龙洞风景区,东临大辛河,背山面水,环境优美。基于这样的环境条件,设计团队将设计重点放在与山体环境、滨河景观的对话关系,将建筑“隐”于环境之中。建筑面积为8740.6平方米,主要满足城市R3线的运营需求。是一个集办公、会议、维修、接待、餐饮、住宿等功能为一体的小型办公综合体。
-
空间意境:内部空间组织上,希望形成不同的观山视野,与中国传统山水画的三远技法向契合。中庭交通空间的组织,希望能借用中国古典园林的造园手法,形成一个完整的游园的空间序列,垂直中国传统园林。
建筑内部汲取中国园林中,大小、明暗、开阔、隐显等空间处理手法,将室外毛石砌筑墙体引入室内,使内外一体。人在建筑内部行进时,可以感受到完整的,连续有富于变化的和韵律的空间,隐而不漏,曲径通幽。 -
空间布局:内部由功能房间围绕着中庭组成,在中庭的东侧和西侧各设置了两个内庭院,满足南北两侧房间的自然采光和通风。一层设置水院,既可以净化空气改善气候,又可以使的建筑上下产生热压差,通过天井加强空气对流辐射交换。建筑北立面铺设玻璃砖,营造柔和的室内光环境,阻挡北侧高架桥的噪声和视线干扰。通过一条贯穿室内中庭的楼梯,可将行人引入每一层观景平台,收放有序的空间秩序营造出观山时的震撼视觉。
建筑内部空间希望通过空间序列的组织表达丰富性,在材料上尽量简单低调,将室外材料运用到室内,使用毛石、玻璃砖等材质,建筑室内外一体化的设计思路。 -
设计选材:室内追求建筑材料的延续性,采用性价比较高的建筑材料(如水磨石,铝拉花网,彩釉玻璃等),自然材料的运用使该建筑获得了山东省绿色建筑三星级,满足了如今对建筑绿色化、可持续性的要求。
-
用户体验:综合楼投入使用以后,远远超过了业主预期的要求,提升办公空间的整体舒适度,还减少了能源消耗。多种使用功能集合在一起后,大大提高了工作的效率。业主经过一段时间的使用后,整体评价较高,尤其是办公场所围绕中庭的布局设置,改变了业主对办公场所的认知,中庭也成了员工交流和展示的场所。

