泽岸雅居



- 项目类型:住宅公寓
- 项目地点:秦皇岛市
- 建筑面积:270.0000㎡
- 项目造价:200.0000万元
- 主案设计师: 杨云
- 参与设计师:李寰宇、张悦、金红
- 竣工时间:2024-11-07
- 设计机构:道合空间设计
-
项目定位:这是一套230m的四居海景房,三口之家,男女主人都是生意人,女业主是一位服装行业从业者,对色彩和形态有自己独特的审美,眼界也很超前,在生活起居上也有自己的看法和见解。因此在设计上计有现代的时尚感,也要有柔美温馨的家的感觉。
-
空间意境:把重色融入奶油风,风格上既有奶油风的=感觉又有现代前卫时尚的炫酷感。
-
空间布局:1.入户宽敞的通道位置增加鞋柜空间,既是收纳空间也分隔了玄关和茶室的空间。
2.东侧的主卧室的隔断装饰墙,增加进入主卧的仪式感。隔出独立衣帽间,减少空间浪费。
3.北侧卧室前通道狭窄和公卫改书房空间,增加储物空间的同时也是个休闲娱乐的好去处。
4.西侧卫生间在保证卧室空间的情况下适当扩大,做干湿分离。 -
设计选材:空间大面积选用进口涂料,降低木材和石材等材料的比例,让空间富有统一性和节奏感,降低造价。
-
用户体验:在茶台前喝茶望海,很享受。
悬挑在金属圆柱之间的鞋柜,摆放装饰品,美观的同时增加通透感。富有个性的体块穿插,即解决了储藏功能需求又是一个艺术装置,分隔玄关和茶室的空间。
深色木饰墙面上的壁灯既是点缀又增加照明,给原本单调的墙面增添色彩。
温润清透的色彩,辅以明媚的自然光,灵动的弧形与圆润的曲面元素在空间里错落叠加,软装搭配增加了空间的层次感,空间灵动,充满活力且舒适。落地窗外半是晴空浮白云,半是海水碧如蓝。
吊顶、飞碟壁炉的圆弧线设计,从形态上表现饱满、稳定的视觉效果.
电视背景墙简单大气,浅色墙面和深色木饰墙面想成鲜明的对比,隐藏的卧室门使墙面形式统一。
吊顶、墙面和软装的曲线形态错落串联,营造出优雅、浪漫的空间氛围,赋予了静态空间不一样的观感,制造独属于这里的记忆点。
茶室开放式呈现对话过渡,亦静亦动。木作、金属予别具一格的质感,大方而沉敛。喝茶时看着落地窗外的海景,一望无际。
黑色木作和浅色墙面增加了空间的纵深感,椭圆形悬挑桌面和异形灯具的线条、质感、光泽营造出舒适的生活格调。
主卧
主卧
主卧
主卧:暖色的墙面和深色的木纹形成鲜明的对比,克制有序的几何线条勾勒出干净、舒适的环境氛围。
衣帽间
衣帽间
主卧卫生间
主卧卫生间
主卧卫生间
次卧
次卧
次卧
书房
书房
书房:电动升降桌的榻榻米出了常见的储物、床的功能,又增加了茶室、棋牌等娱乐功能。
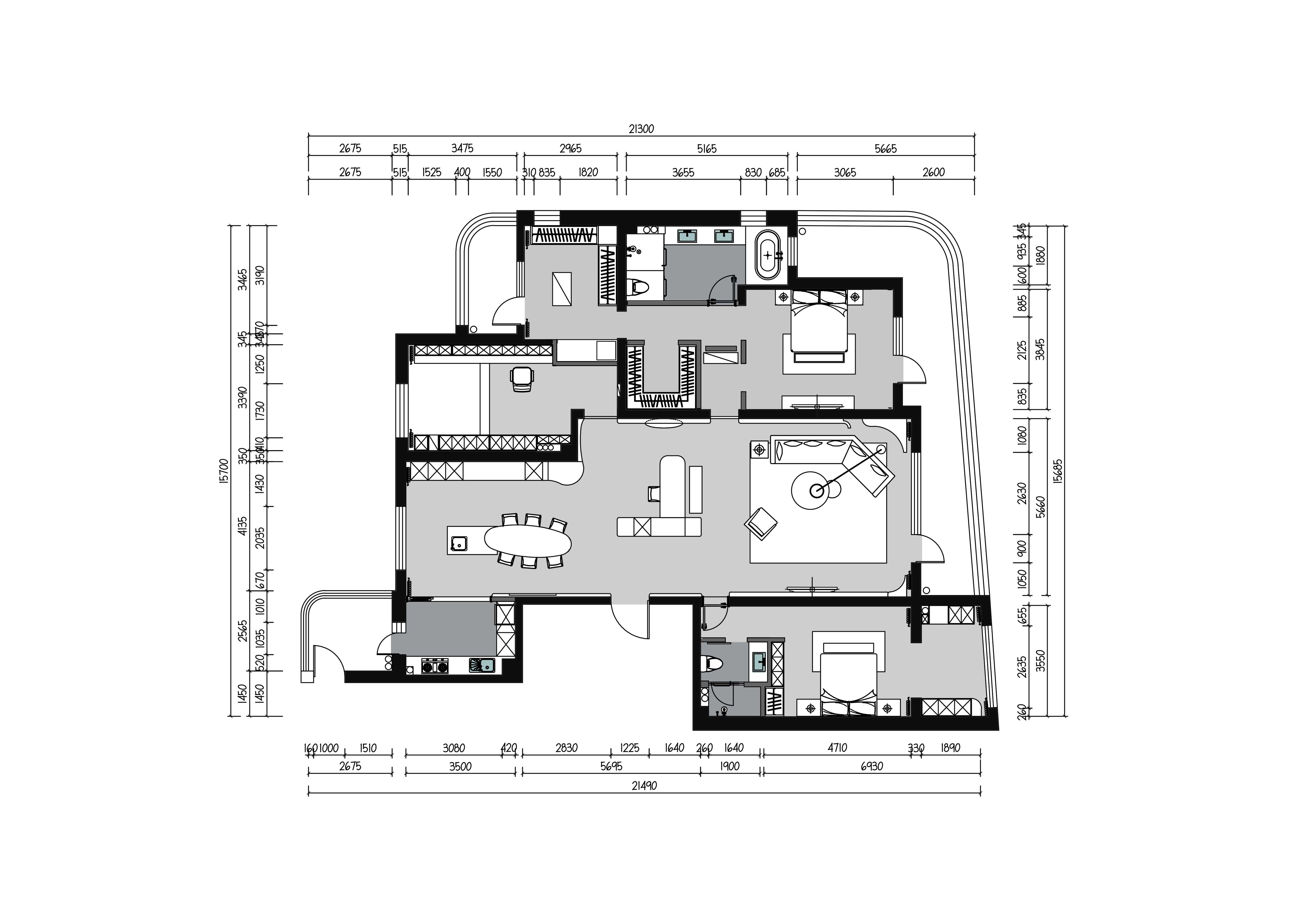
原始平面图:①入户即是客餐厅空间,具有南北长,东西短的特点。南侧的大落地窗可以看到外面的海景。 ②客餐厅之间的通道过于宽敞,缺少换鞋空间。 ③东侧的主卧室很大,空间狭长没有独立的衣帽间。 ④北侧卧室前通道狭窄,公卫使用率低。 ⑤西侧卫生间面积不够,做不了干湿分离。
平面布局图:①入户宽敞的通道位置增加鞋柜空间,既是收纳空间也分隔了玄关和茶室的空间。 ②东侧的主卧室z的同时增加了隔断装饰墙,增加进入主卧的仪式感。 ③北侧卧室前通道狭窄和公卫改书房空间,增加储物空间的同时也是个休闲娱乐的好去处。 ④西侧卫生间在保证卧室空间的情况下适当扩大,做干湿分离。

