-
项目定位:面积:155㎡
风格:复古混搭风格
造价:60万元(硬装)
坐标:上海奉贤·海月四季
-
空间意境:居所是家的「容器」,是生活的背景,简约的氛围更能衬托「生活才是主角」这一主旨。
法风的柔美优雅,一直是萦绕在爱美之人,是居所这个「舞台」的绝佳装饰。
设计师以现代的简约感作为空间的底色,用轻复古轻法风为点缀,装饰空间的边边角角,也把生活的温馨浪漫藏进家的方方面面。
-
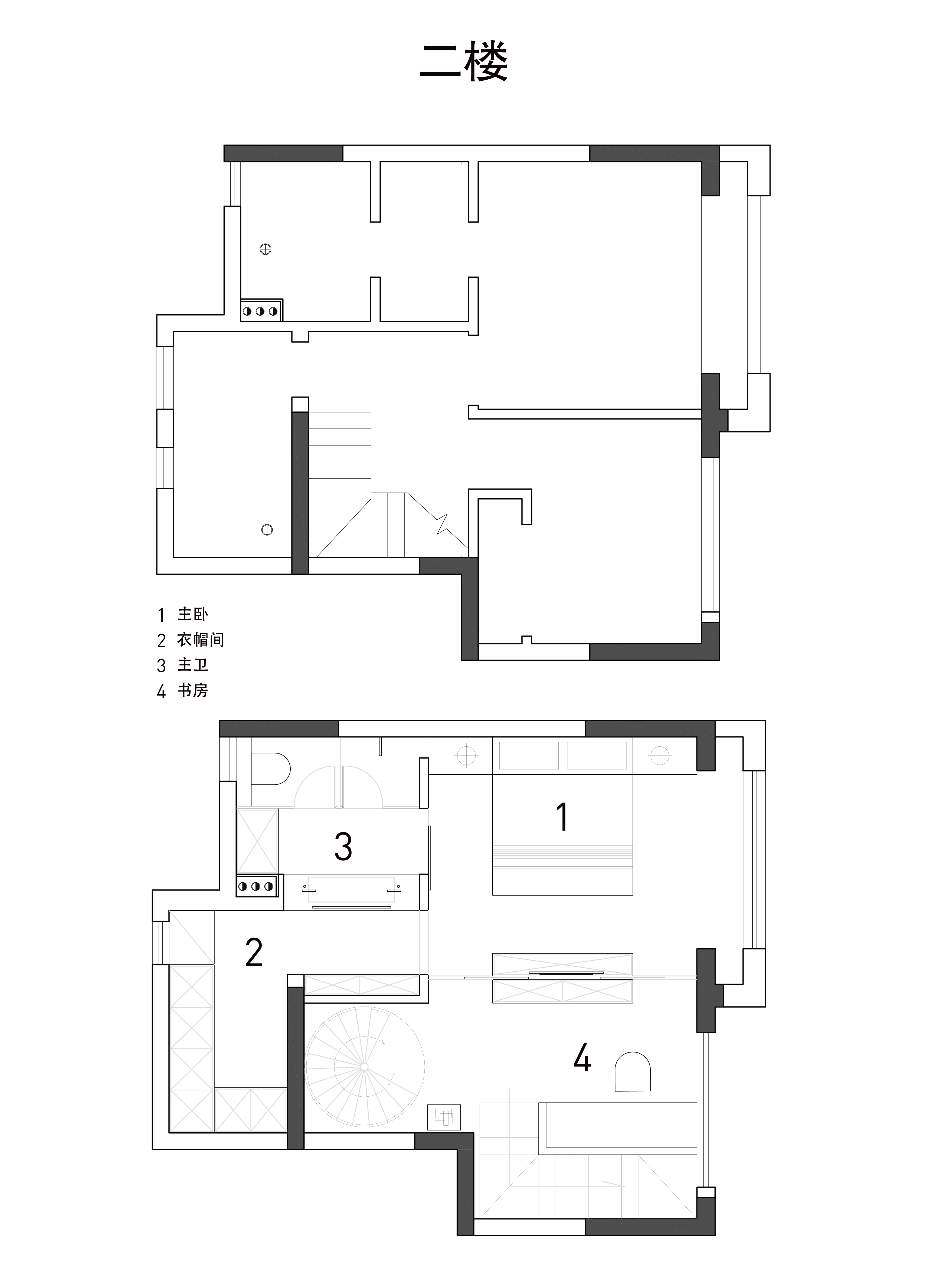
空间布局:1.拆除一楼多余隔墙形成的小空间,获得更加宽阔的客厅和餐厨空间;
2.借助客餐厅的完整墙面,利用橱柜打造开放式厨房,满足操作台面和设备柜的空间需要;
3.改变楼梯位置,把原楼梯空间释放给客厅休闲区域,利用客厅多余面宽容纳全新楼梯结构;
4.拆除二楼中央隔墙,打造两面储物的电视背景墙,让整个二楼呈现主卧套房形式;
5.用旋转楼梯连接二楼和阁楼,减少空间占用的同时,也给空间带来造型的趣味。
-
设计选材:用移门作为空间隔断,分隔主卧和主卫,原木与石材的组合给空间带来温润质朴与轻奢硬朗的质感平衡。门上方孔让视野与光流动,增加空间通透感。
-
用户体验:隐隐的轻法风,是藏在复古基调里的丝线,将优雅元素串联;
松弛的休闲感,是格局与生活的共同呈现,是最钟爱的氛围。
格局重塑获得的通透开阔感,由纯粹而克制的法风点缀。
男女主人把对生活的热爱,倾注到居所的每个角落。
每个细节似乎都蕴藏着对生活的悉心思考,诉说着对美好的无限热爱。

