「葉」雪茄酒吧
640
作品说明
- 项目类型:餐饮
- 项目地点:广州市
- 建筑面积:158.0000㎡
- 项目造价:150.0000万元
- 参与设计师:马宁、杜婧、朱克
- 竣工时间:2024.09
- 设计机构:MARS星球建筑
-
项目定位:「葉」坐落于广州市番禺区四海城商业广场,白天人流如织;夜晚灯火辉煌,觥筹交错,流光溢彩。暖黄的灯光在中庭转角处指引着方向,吸引着人们往空间深处探寻……出于对雪茄的热爱,业主从海外联系到我们,决定在广州打造一个享受微醺的休闲空间。
我们试图在这个浸入式空间里,为来访者提供某种在场的身份,让其拥有了作为个体重新构建叙事以及体验的多种可能性。人物是一种透明的幻想,景物则是在夜霭中的朦胧暗流,两者消融在一起。侍者的脸部在半昏半明中隐去,桌上的灯台一座座亮起,推杯交盏间,我们打捞起自己的灵魂。 -
空间意境:大面积古铜色金属的运用及精心规划的宛如云雾的曲线结构,将好奇心层层揭开序幕,弧形金属杆件相互叠加,层层阵列,用秩序感带来仪式感,也展现出酒吧开放的姿态,下层被放空,预留更多元的可能性。在所有充满光线的空间中,体块元素自然的植入其内,传递简洁与丰富、整体与细节、跳动与沉静的碰撞,使空间的体验感变得有节奏、可呼吸。
古铜色系传达着空间的神秘与高级感,廊道空间里的光影渗透在结构的缝隙中,流动的影子中充满动感和线性美。褐色和赭石,水面和雾气,发酵和醇化、传统和现代,我们从 1920 年代的地下酒吧中汲取灵感,通过一系列的实验,创造了一个引人遐想的戏剧场景。 -
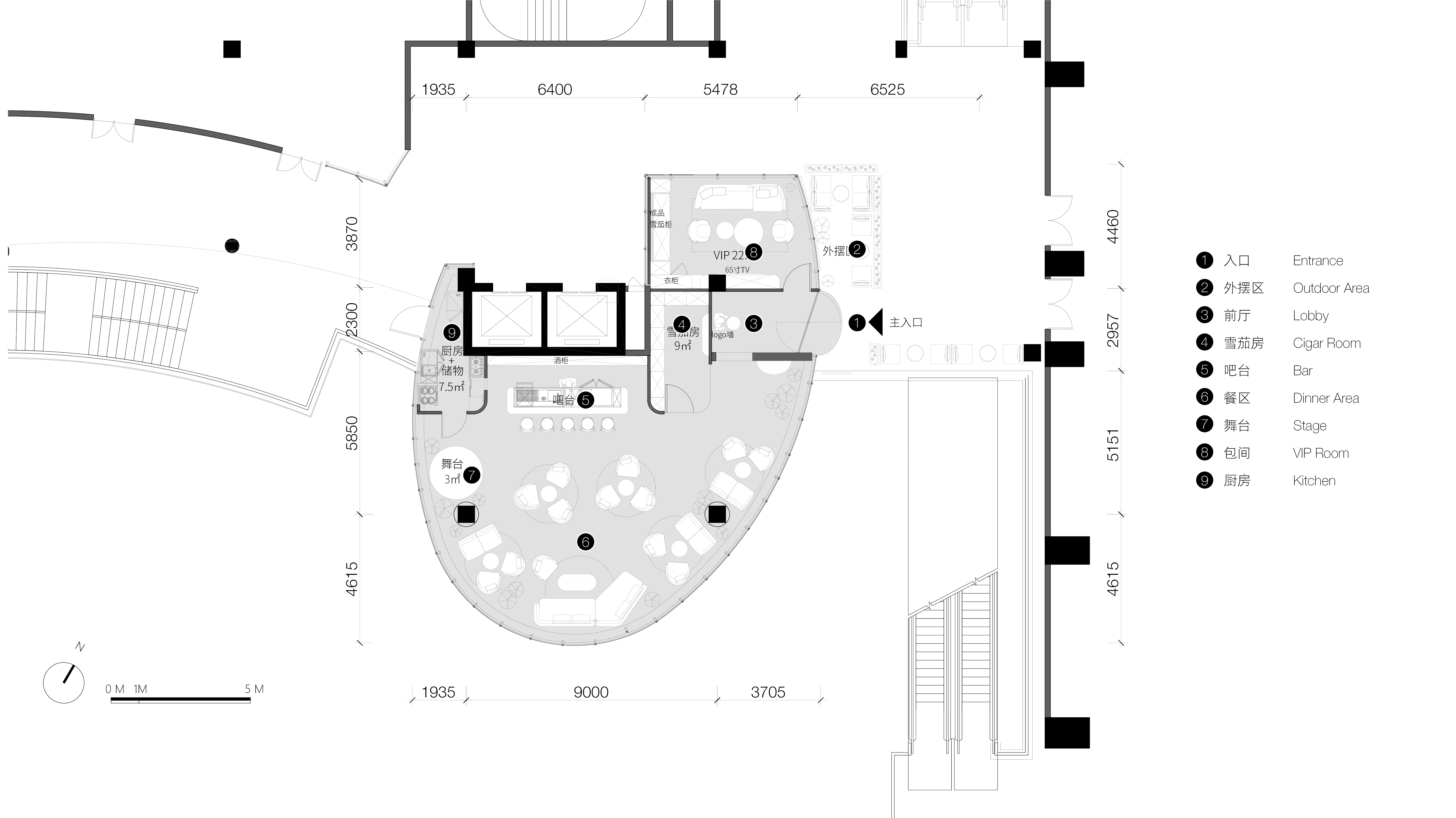
空间布局:这是一幕戏剧性的场景,随着入口处烟雾装置的光影变幻,弧形的半围合空间以线条塑造纵向连续性和深邃的时空感,从而构建出质感简练且尺度巧妙的时空隧道。入口式的灯光延展,既为序曲也可为终章,开放而又神秘半弧形的切面,让空间节奏与秩序合体释放出建筑的原生力量。
光线的潜入赋予了空间更多的层次美感,我们希望充分保留场所本身带来的微妙的感官体验,首先要做的便是将暂时被遮蔽的尽端打开,让光漫进来。将都市性格和自然情绪在这个商业场域中有机结合,落地玻璃幕墙将外部的景色引入室内,城市的喧嚣被掩盖起来,只留下纯粹的安静。 -
设计选材:运用灯光与多角度金属架构,营造出多维的视觉效果与趣味休闲的氛围。柔和的琥珀色光芒和各种颜色的酒瓶交相辉映。黄铜装饰的细节、皮革饰面和定制灯具提升了空间的格调,同时又营造了轻松舒适的氛围。
细腻的木纹饰面与粗犷的墙面肌理形成了巧妙的平衡,设计过程中深入参考了雪茄从制作至醇化的全过程,并将其精髓巧妙地融入到了各个细节之中。橡木色泽温暖而夺目,卡座区域配备了质感优雅的大理石桌、舒适柔软的沙发以及皮质长椅,置身其间,移步即景,处处彰显着设计的匠心独运。 -
用户体验:设计是一种由外向内的探寻,把场所精神与过去记忆连接到当下生活,并使之碰撞发生出更深层的在地体验。一切都在绝对传统之中,但又绝对非传统,就像一杯混合了古典、现代主义,智慧与创造力的鸡尾酒。我们为广州设计的这处雪茄酒吧,在建成后已经成为番禺区具有地标性的深夜灵魂避风港。
0
0

认证 · 让您身份增值