饮光山房


作品说明
- 项目类型:餐饮
- 项目地点:上海市
- 建筑面积:700.0000㎡
- 项目造价:600.0000万元
- 主案设计师: 李海玻
- 参与设计师:李海玻
- 竣工时间:2022
- 设计机构:上海易九建筑装饰设计工程有限公司
-
项目定位:我们希望当代的都市人能够在这里,远离城市的喧嚣和浮华;在朴素的自然状态中,重拾起本心;享受素朴和慢节奏的生活;
一步一景,极尽极致,一花一草,四季轮换,回归闲雅生活;一杯清茶,工作之外,还有生活.
山房一杯茶,心静观万物;远离功名利禄,把平常日子过出诗意,闲看云卷云舒。
-
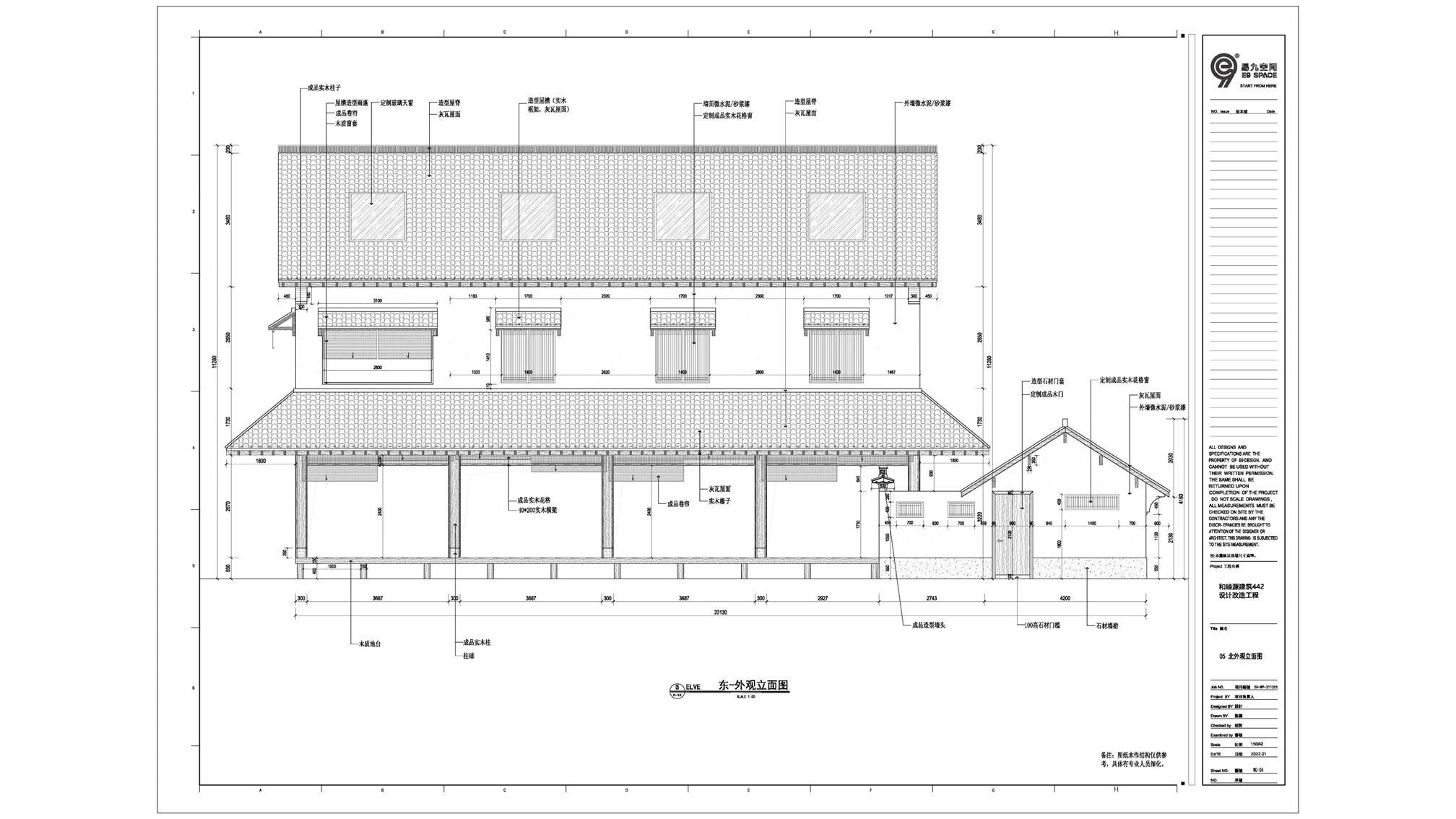
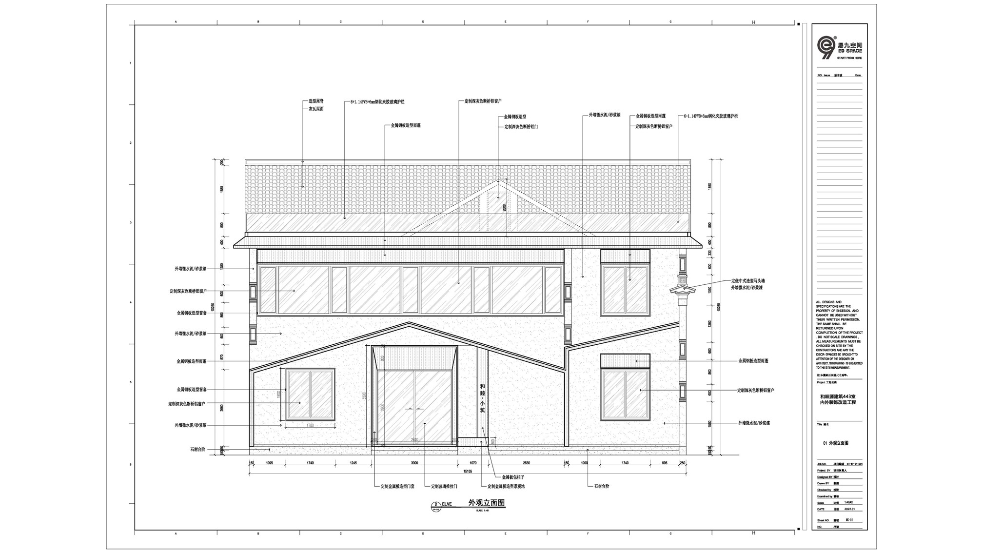
空间意境:饮光山房的设计传承唐宋建筑美学,雅鉴东方之美,融合江南地区徽派建筑的雅韵,结合当代的结构艺术手法,既有传承也要创新;
空间曲径通幽,动线巷陌交错,松石延年,秋山红树,清泉石流等浓缩于此;
门厅礼序。屋檐斗拱,一寸一厘之间皆有章法,处处皆彰显古代建筑美;
将流传了数千年的中华生活文化,传承融入到当下,成为东方建筑的意向符号。 -
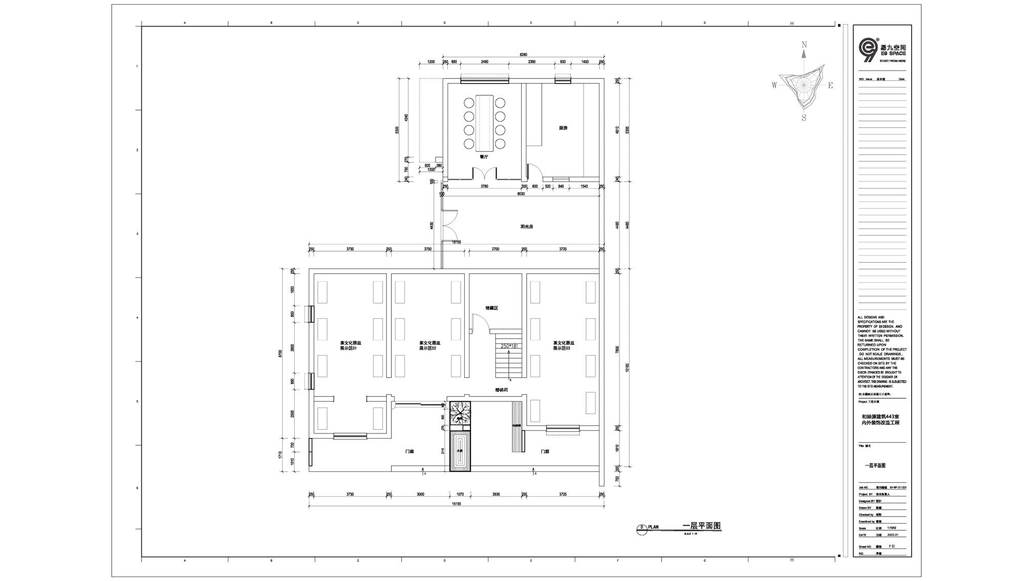
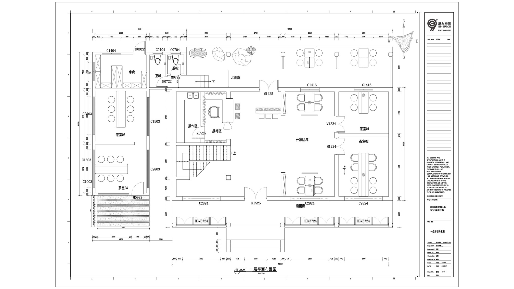
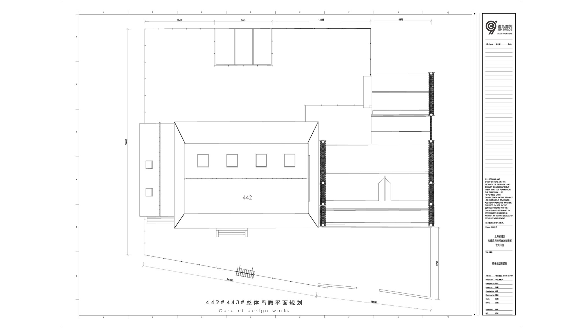
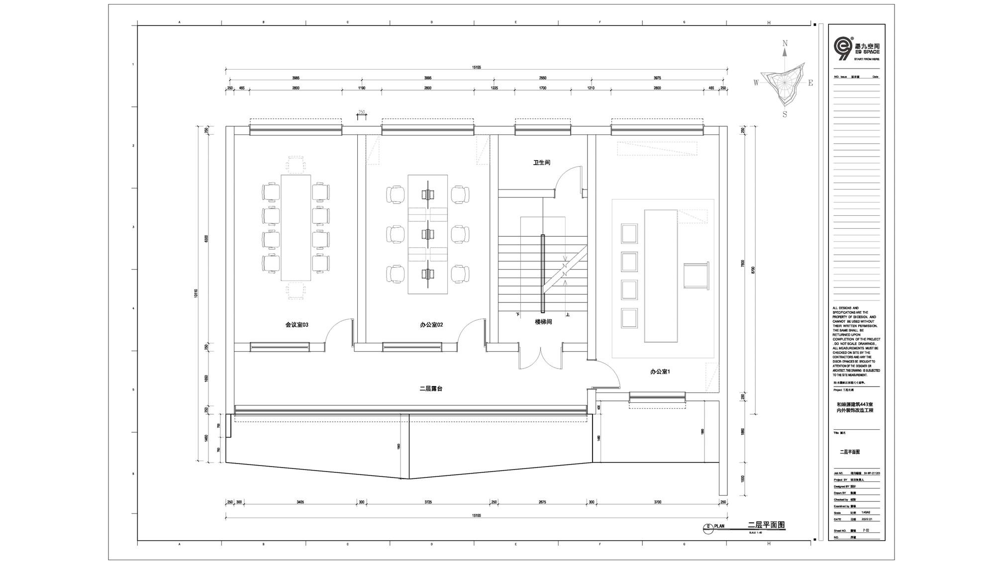
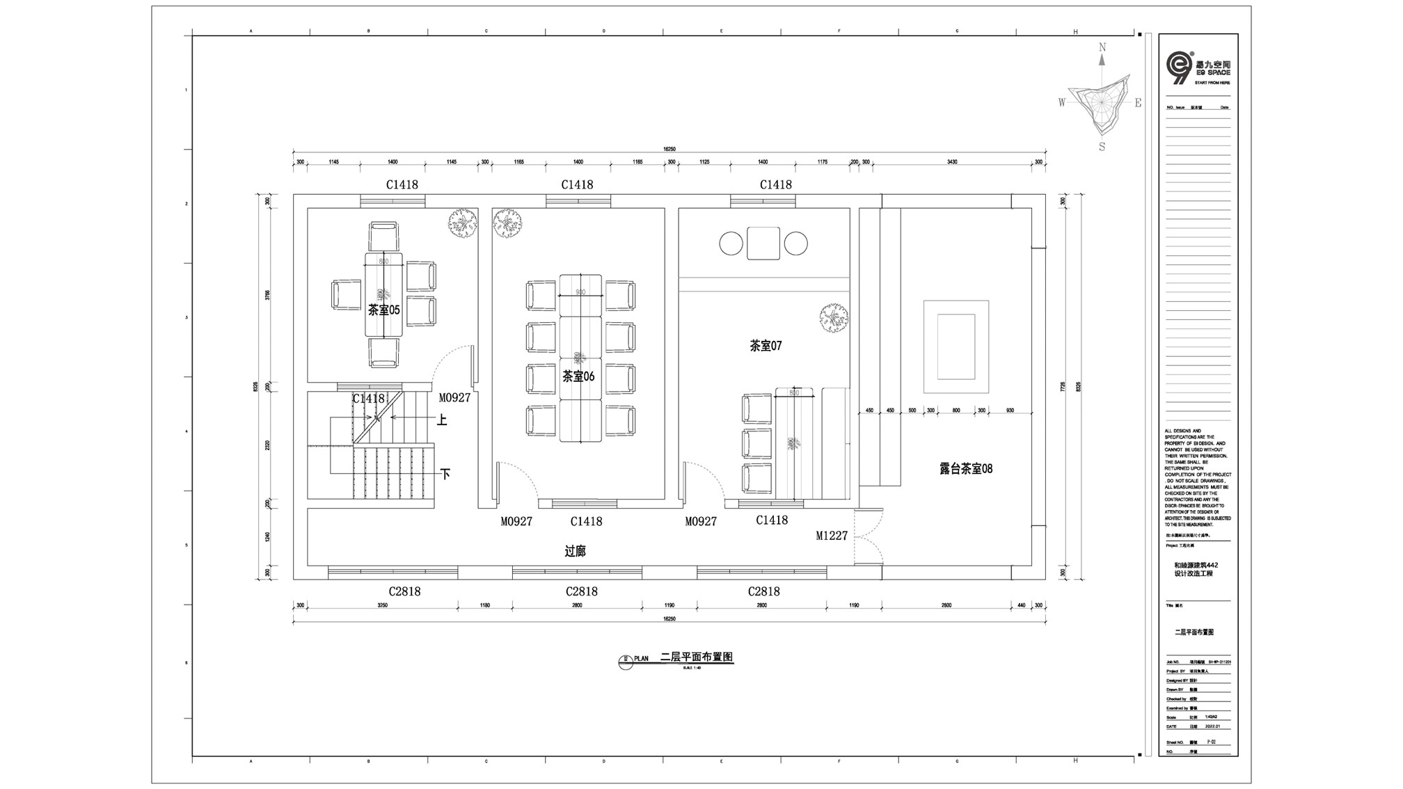
空间布局:从传统的民宅改造成为禅意的茶空间,我们对原建筑从地基到结构框架结构进行了整体的加固,通过对屋顶屋面的改造和翻新,将原有的二层调整增加了夹层,在新的三层空间打造了全新的道场。
将原来的作为厨房和仓储的耳房,在遵循宅基地改造的规范前提下,最大程度的保留原有空间的结构的同时,改造呈现出禅意古朴的茶饮空间。
在建筑外围新搭建的雨廊,在呈现了唐宋时期建筑韵味的同时,传统屋脊自然雨落的手法,更增添了雨天听雨品茗的雅趣。 -
设计选材:墙面的整体饰面材料,采用的传统江南水乡的石灰基加稻草的墙面抹灰装饰手法,用最古早的工艺呈现古朴的空间韵味。建筑的门窗系统造型上还原的唐宋风格的同时,采用了隔热断桥铝型材,保证了整体空间的气密性和保温性,最大程度的降低了暖通系统的能耗。
-
用户体验:业主对于我们所打造的的空间十分的认可,短短两年间已成为了青浦和睦村的网红打卡点,周末及节假日宾客络绎不绝。a

