美的佛山里水大道滨湖学府样板间


作品说明
- 项目类型:样板间/售楼处
- 项目地点:佛山市
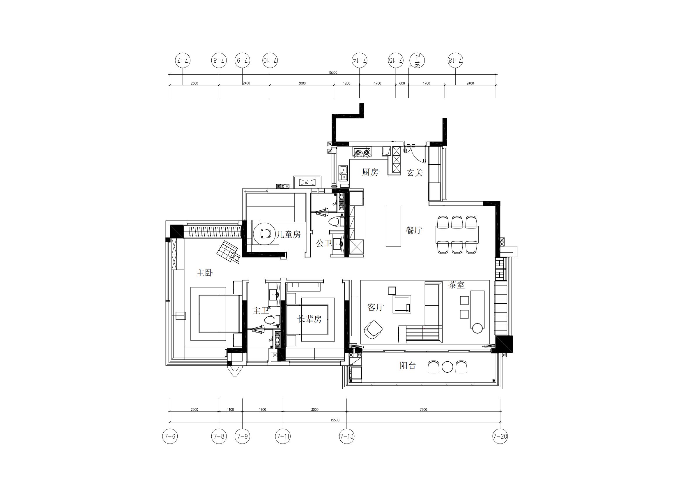
- 建筑面积:145.0000㎡
- 项目造价:45.0000万元
- 参与设计师:睿住天元
- 竣工时间:2023.09
- 设计机构:广东天元建筑设计有限公司(睿住天元)
-
项目定位:美的·滨湖学府位于佛山市南海区里水大道南,依托于24万㎡的天然碧湖,临波而建、借水为景,以不可复刻的优势,坐拥在湖光和水色之上,遥望自然铺叙的城市,,诠释奢华的本质。
-
空间意境:设计师通过用简约的现代手法,勾勒出一方居所,与现代的快时尚保持距离,不去追求稍纵即逝的潮流,留住经典的永恒价值。将生活的烟火气、艺术的气韵、自然的丰盈融于空间,尽显岁月洗练后的经典优雅和生命力。家具组合的体块、视觉的秩序、对比的色度和落日的余晖,模糊了空与外界的界限,打造舒适自在的生活方式。意式美学得以永恒存续,不是代表一种风格的象征,而是其本身所传达的生活态度。
-
空间布局:该户型主要面向居住升级改善类人群,满足了多元住所结构,开间大横厅的设计,空间中传递着不同生活模式体验,满足机能为首要的条件,整体的设计达到空间的流动感和品质感。通过空间尺度的塑造,设计逻辑的重构,低饱和度的材质和色调在空间中点缀,营造出低调奢华的空间氛围。
-
设计选材:整体空间以黑白灰的中性气质为基底,辅以反射性的天然石材与金属质感材料,透过不同形态的材质结合去打造具有生活仪式感的生活居所,暗示出空间的干练与硬朗,使得整个家居空间散发出强烈的现代审美与精英气质,正好呼应着现代都市新贵族对于自我身份认同的需求。
-
用户体验:设计师以颠覆空间尺度界限的布局,让城市与自然成为家的归属,在令人沉醉的湖光水色中,演绎现代轻奢雕琢的生活美学。

