惠山映


作品说明
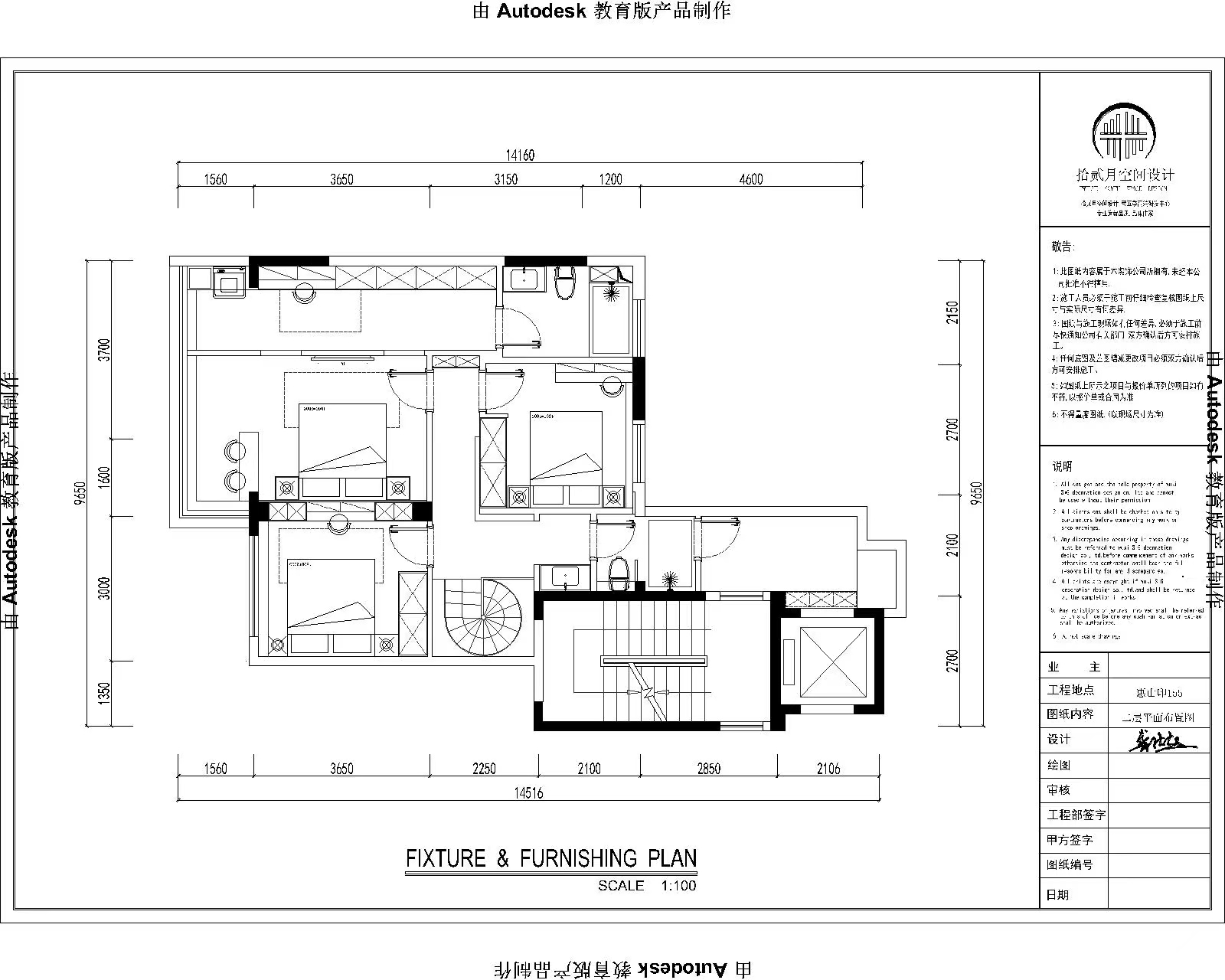
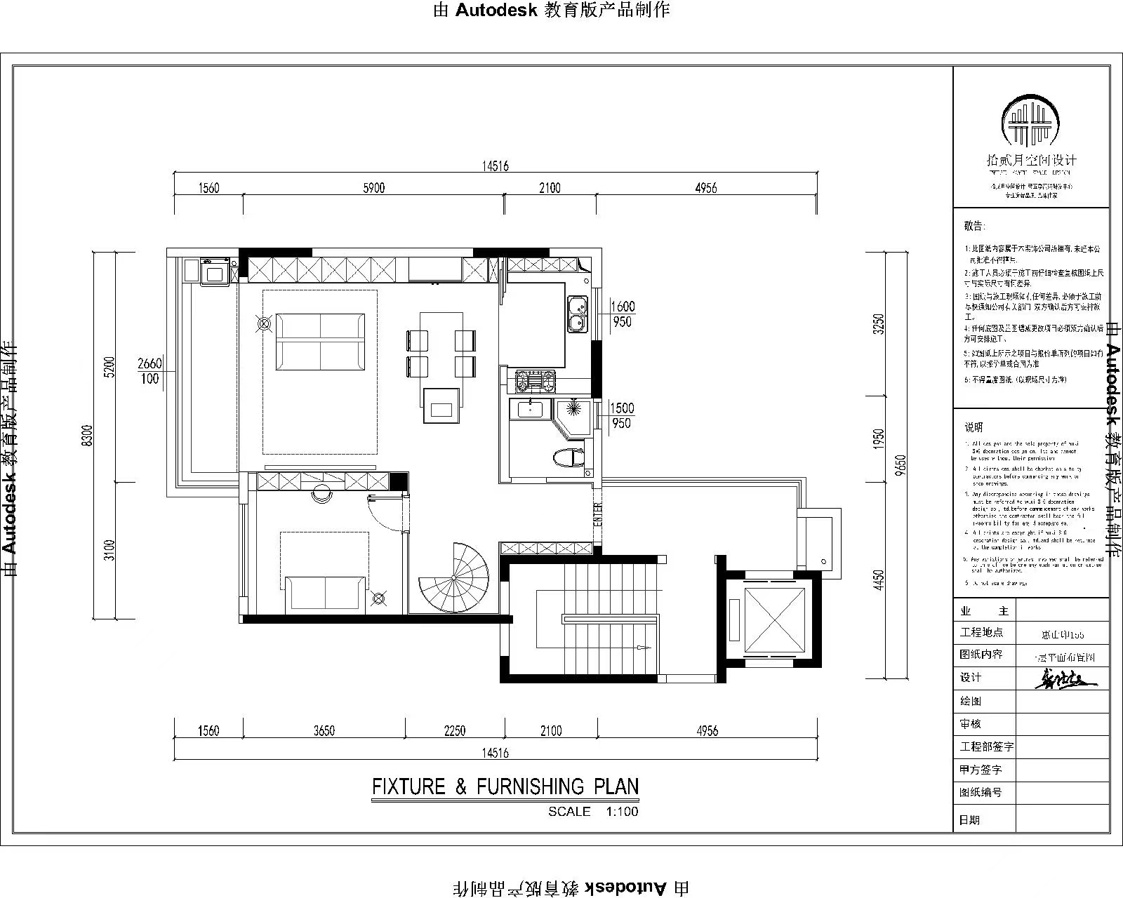
- 项目类型:住宅公寓
- 项目地点:无锡市
- 建筑面积:153.0000㎡
- 项目造价:105.0000万元
- 主案设计师: 龚晓花
- 参与设计师:程伟
- 竣工时间:2024-01-03
- 设计机构:十二月空间设计
-
项目定位:须知对待生活有千姿百态, 这只是其中的一种,去寻求你自己独特的生活方式吧。
——安德烈·纪德《人间食粮 -
空间意境:在漫长的岁月里,与时光为伴,于细碎中寻找钟情的生活方式。通过对空间的重新定义,以优雅复古的设计灵感,同时满足了客户的需求,打破原有的设计理念,让整个空间变得更加高级。
-
空间布局:主卧墙体打通连接阳台,空间更通透。通高门,返回光吊灯的巧思,简洁的空间感,胡桃木色,清晰的物体几何轮廓,构图的自由度和灵活性。注重空间的舒适时尚和功能性,浑然天成的台面搭配亚克力支架,复古与现代的碰撞,反映居住者的个性和生活方式。
整一面的衣柜以有限空间的打造极致舒适感,亚克力椅与木饰面的结合,时尚与质感生活的融合,柔和雅致,还原材质的本来美感,营造舒适又充满灵感的生活空间。 -
设计选材:木饰面、大理石、格栅
-
用户体验:这次装修体验真的超出了我们的预期,我们非常满意!设计师非常专业,注重细节,他们用独特的设计理念,为我们创造出了一个温馨、舒适的生活空间。施工团队也非常出色,他们技艺高超,工作细致,对每一项工程都严格把关。材料质量上乘,耐用性高。这次装修体验真的超出了我们的预期,我们非常满意

