邸|佳和别墅



作品说明
- 项目类型:别墅
- 项目地点:临沂市
- 建筑面积:500.0000㎡
- 项目造价:600.0000万元
- 主案设计师: 尹致中
- 参与设计师:尹致中
- 竣工时间:2023年10月
- 设计机构:山东集致空间设计有限公司
-
项目定位:宽敞,通风且充满光线,咖色和黑白色组合的现代调色板营造出宁静而优雅的形象。以简约为追求,不断地摸索和体会内在的美,呈现出更为细腻和柔软的肌理与感官,家具搭配也顺应氛围营造,色调采用简洁,简约大气的设计更加适合居住。
-
空间意境:增强空间与空间之间的交互性,关注家人之间的情感沟通,互借空间又互不干扰。
-
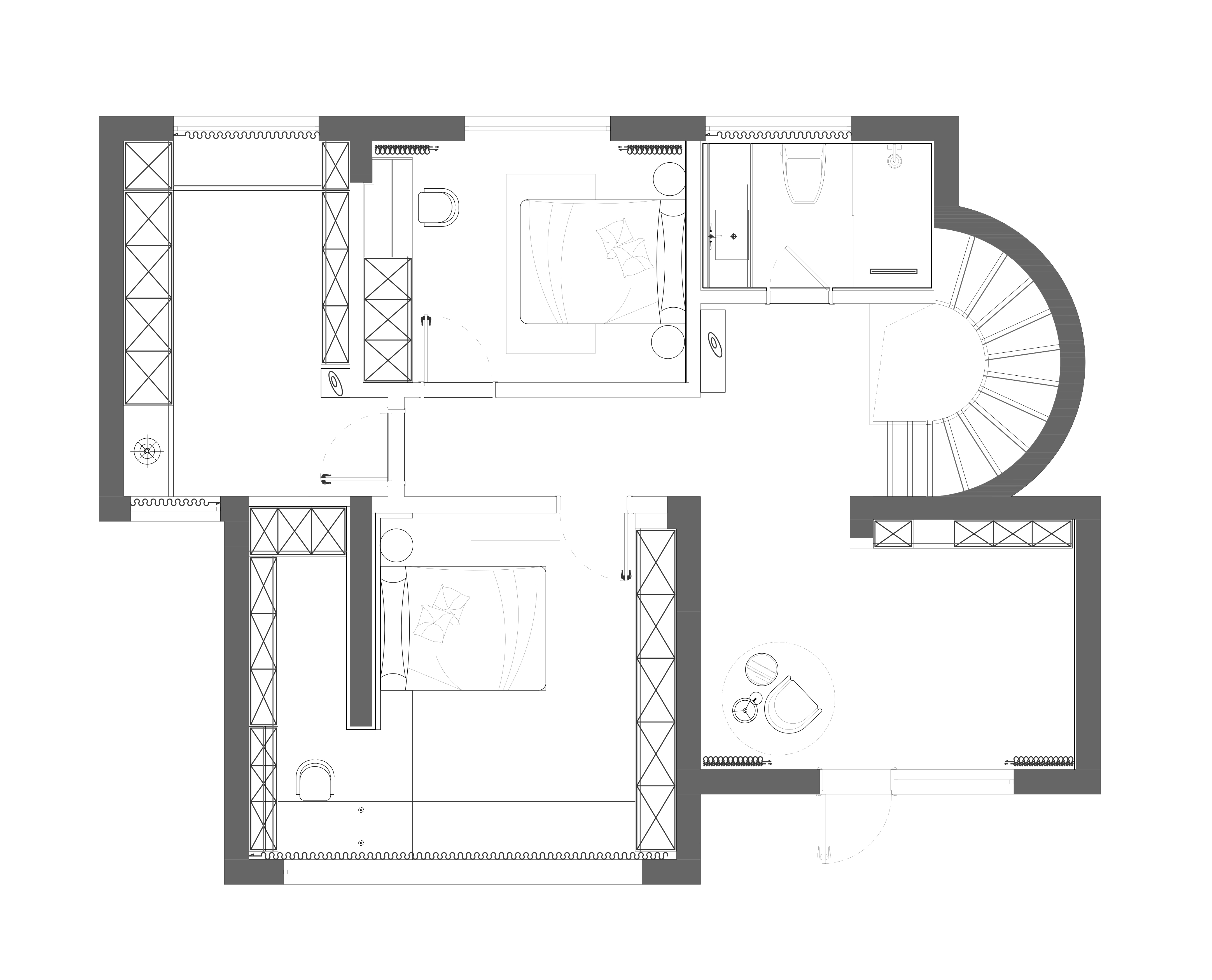
空间布局:卧室将阳台纳入,提升尺度感,室外景色引入室内,整体空间更加通透。
-
设计选材:艺术涂料,石材等材料的使用。
-
用户体验:美好的环保智能家居体验,简而不空,华而不奢,雅而不俗。

