白头之约
646
作品说明
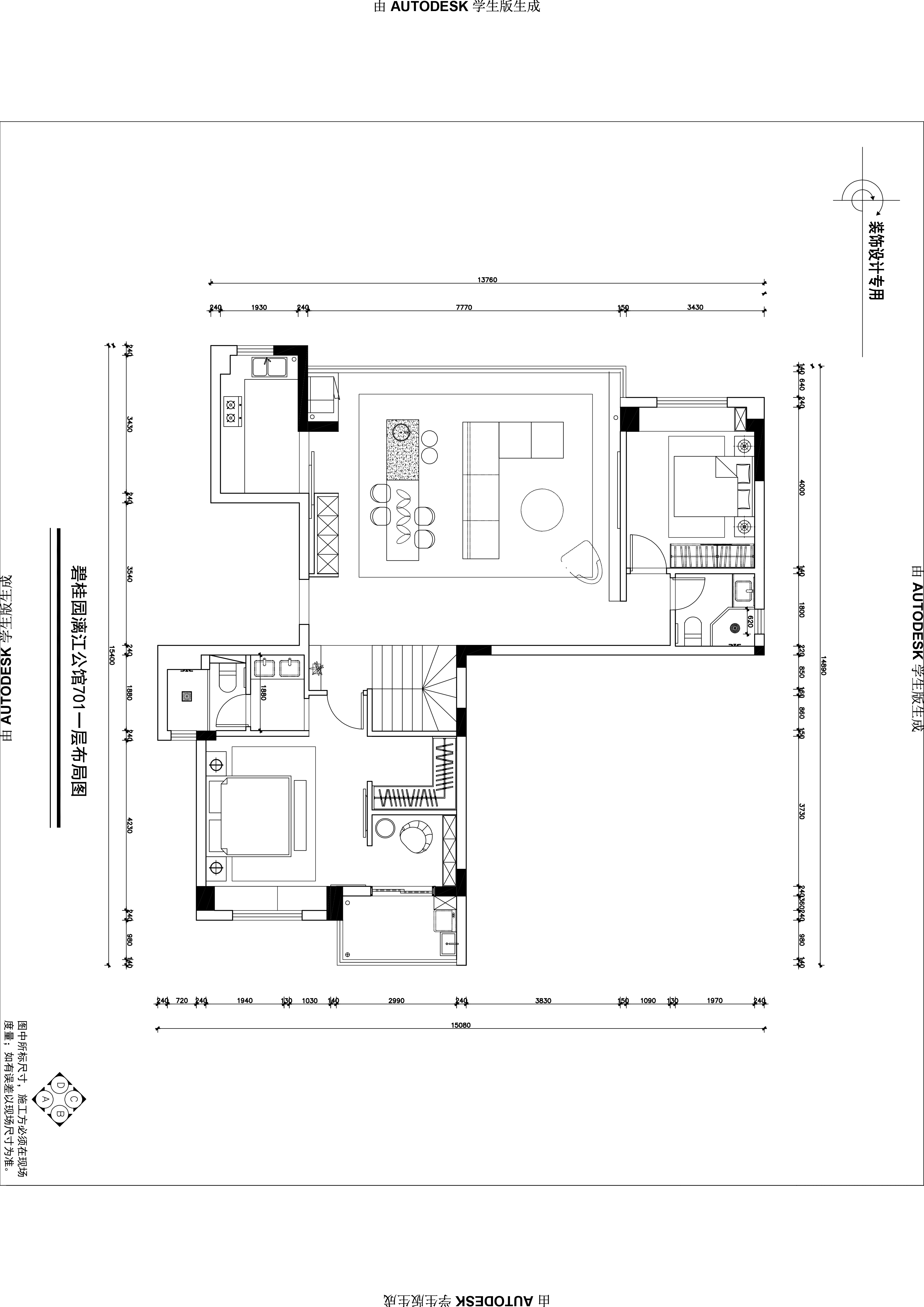
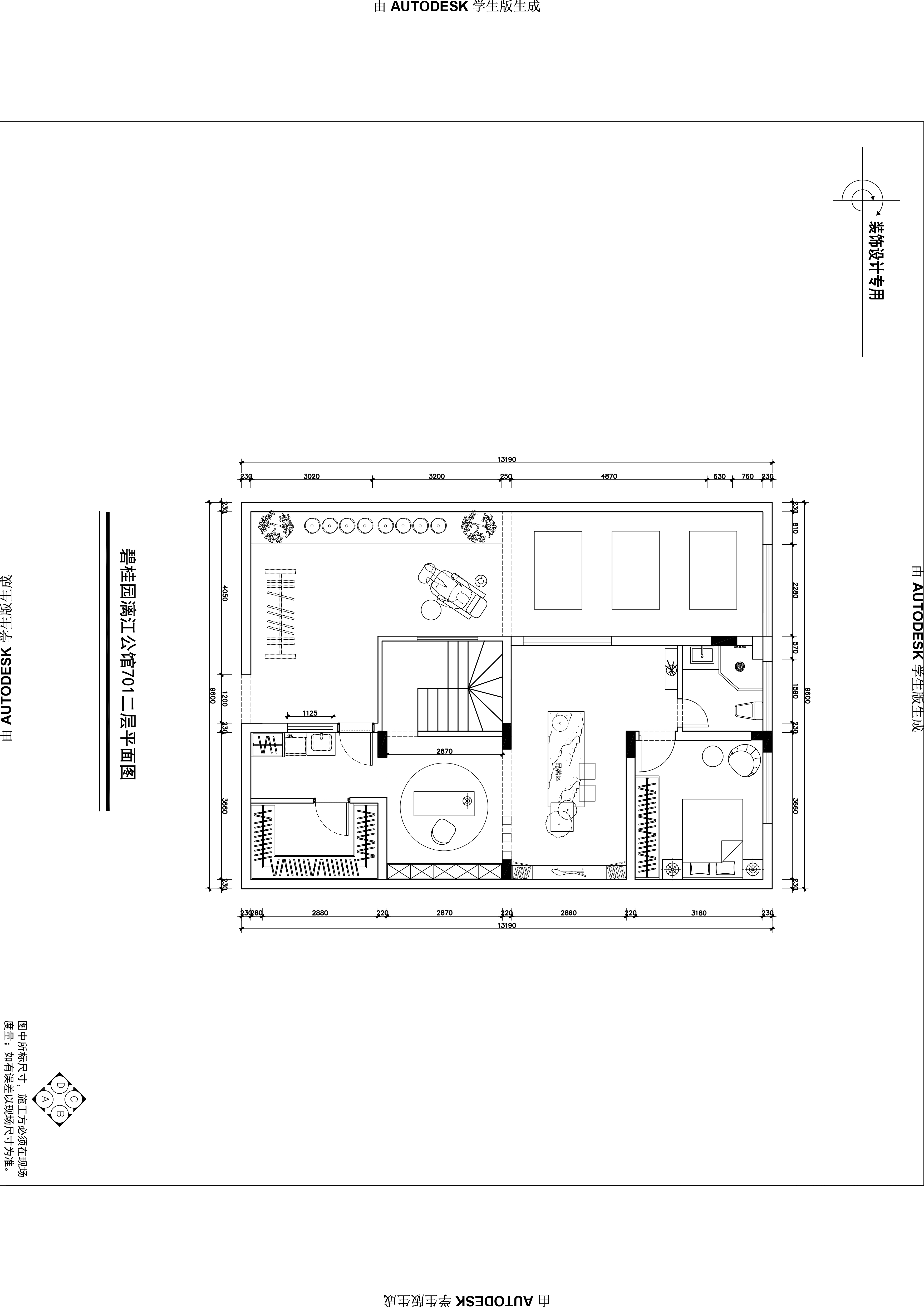
- 项目类型:住宅公寓
- 项目地点:桂林市
- 建筑面积:220㎡
- 项目造价:120万元
- 主案设计师: 丁敏慧
- 参与设计师:丁敏慧
- 竣工时间:2023年1月
- 设计机构:三見空间设计事务所
-
项目定位:一对夫妇的最后一套房,作为人生中最后一套养老住宅,业主委托的舒适安定。以温柔现代的简单色调承载着未来生活的舒适以及希望。
-
空间意境:大胆的空间改造,将原有4房2改2房,让空间更加舒适,沉稳的木质代表了50岁住户的沉稳,但加入一些时尚的色彩搭配又让空间更加具有年轻活力。
-
空间布局:将普通的客厅改成了超大的横向客厅,让空间感扩大,同时因为是改善型的住宅,我们将2个房间打通改成了套间,原有的公卫换成主卫,让唯一的住户的私人空间功能齐全,更体现设计的重要性。
-
设计选材:本次作品运用了木纹以及石材的搭配,同时运用了岩板搭配温润的布艺,让空间的有着岁月的沉稳同时也伴随着时尚。
-
用户体验:业主竣工非常开心,可以一边看电视一边做她喜欢的蛋糕,一边陪先生聊天,宽大舒适的客厅配合智能系统,感慨设计不单单是美学,同时伴随的也是生活每一个细节的考虑。
0
0

认证 · 让您身份增值