澜轩·漓江悦宴



作品说明
- 项目类型:餐饮
- 项目地点:桂林市
- 建筑面积:400.0000㎡
- 项目造价:120.0000万元
- 主案设计师: 丁敏慧
- 参与设计师:丁敏慧
- 竣工时间:2023年6月
- 设计机构:三見空间设计事务所
票数 : 0
-
项目定位:打造的高端餐饮会所,主要打造公共区域的精致,包厢简单精美,灯光的设计让整体氛围更舒适。
-
空间意境:本次项目为旧房改造,横跨了2栋楼,搭建空中花园,是城市中的闹钟取静,拥有了属于自己的净土。
-
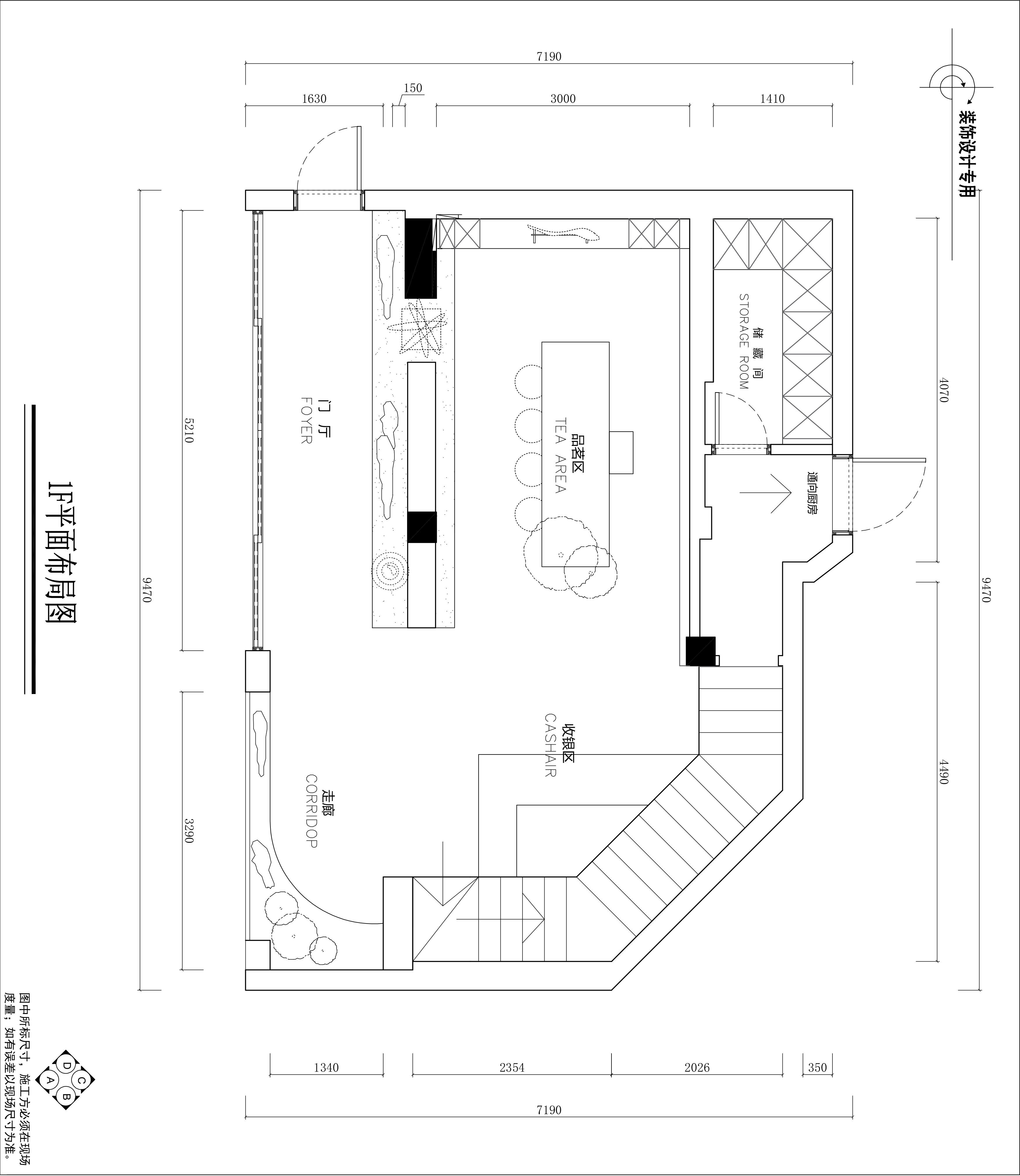
空间布局:原有的空间是两栋居家的别墅,改变成为餐饮的空间有一定的局限性,但是通过设计将很多的过道公共区域都做了景观上的设计,形成了一步一景的流畅画面。
-
设计选材:因为改造的巨大在经费上甲方有一定的紧张,所以在选材上我们主要运用灯光以及软装的搭配让空间更具有格调。运用了红色的微水泥作为跳色,让人眼球一亮的感觉。
-
用户体验:公区的完善让很多客户对私人会所有了新的定义,闹中取静的休闲,搭配植物让用餐更加舒适惬意。

