-
项目定位:90后独立个性审美的婚房
-
空间意境:大面积引入自然光,与室内色调形成对比
-
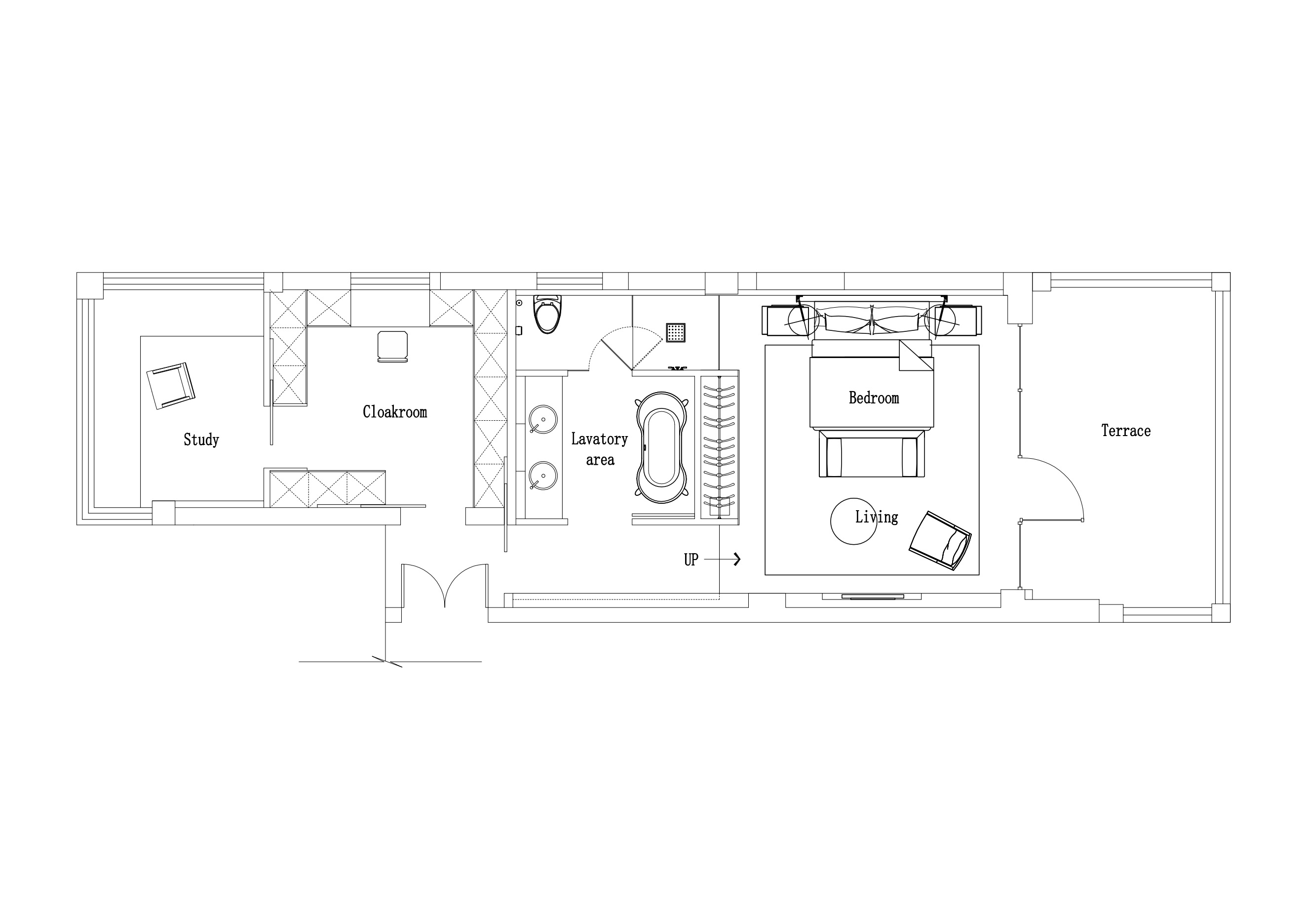
空间布局:满足使用功能的前提下,最大化的释放空间
-
设计选材:去掉没必要的装饰灯,减少光污染
-
用户体验:体验到与之前不一样的居家感受,倍感宁静
居所 它映射着人内心的期待,更是包容个体差异性的精神场域。 对于家的畅想不尽其数,本案居住者对于理想之家的构想令人意外。阔别传统,更渴望回归家中的自由自在,这一方酷感十足的天地中,流动的时间也被模糊了边界。 设计师遵循主人的审美,凝结浓郁的深邃基调,构筑一方理想的生活场地,并将生活的哲学凝练成空间美学,赋予这个家兼具冷硬与圆润的张弛。 从外至内空间材质的暗色调处理下,大面积的落地玻璃让自然 光充盈整个空间,纯真、宁静致远的气息自然流淌。 部分墙面增加收纳的空间,大量置入的木质柜子大大增加生活的可容度与自由度。巧妙的灯光设计,让整个空间在静谧中充满情趣。 在床靠背的墙体上,简约的线条搭配别出心裁的灯光设计,体现出简洁而丰富的艺术趣味。覆面木纹肌理与深色皮革的碰撞,材质的东方气质应运而生,并低调的融入了东方文化与侘寂的自然美学。 沉默如山石,静谧如风止。深灰色的床品伫立空间,柔软的触感与视觉上的冷硬形成鲜明反差。地板上的Vitra Resting bear趴趴熊与柔顺的窗帘相映衬,在不同形体关系之间的呼应,演绎着设计与空间的灵动生命。以线条塑造立体感,空间结构线条平整利落,多层视觉效果,实现空间交叉带来的视觉递进。 卫生间以装饰门的形式留存于走廊,将衣帽间和卧室分隔开。衣帽间与过道之间的皮革质感引申到主卧,即使是在闲暇休憩之余,穿插空间之中也不觉单调。 卫生间内,设计师通过材质、肌理、色彩的变化,唤起空间的情绪。不断重复的明暗关系,使空间产生复杂而迷人的层次。原始的几何构造虚实相生,不同元素在灯光的烘托下,投射出或嶙峋或规则的光影,场所由此生出几分闲适。 居住者深谙阴翳之美,即便如此,设计团队在色彩的选择上也没有一味的地追求清冷,酒红的亚克力浴缸,让个性的空间充满激情。 奢华的外壳不是设计的终点,让每个人都有想回家的感觉才是。定制的私人衣帽间传达新时代女性对精致生活的追求,它见证着女主人不同身份、不同状态的转换,体现了居者的个性、审美与精神。 自然光是动态的,具有可变性和分散性,而人造光是有着可操作性。设计师将二者在空间中互相补充,形成有见晕不见光的处理手法。明暗的递进和转折,带来不可言尽的美妙和深意。在光的余韵中,穿插、叠合、交错的体块有了自己的形象和台词,以全新的姿态重塑着空间的气场。 阴翳中的光亮,沉默中的声响,冷酷中的温暖,一组组对比形成的诗篇,续写着空间的语言。设计师游刃于不同器物、家具、光影、材质中,延续着自然的生趣。 设计师始终相信私宅的设计不需要去强硬地定义空间的功能及使用限制,而应让业主依据自身的实际使用需求,去自由地定义空间的关系。包括人与空间的关系、形式与机能的关系、结构与空间的关系、亲子关系等等
0
0

认证 · 让您身份增值
1089