一抹颜色入人心
522
作品说明
- 项目类型:地产
- 项目地点:公主岭市
- 建筑面积:220.0000㎡
- 项目造价:30.0000万元
- 主案设计师: 李卓
- 参与设计师:李卓
- 竣工时间:2023.12.16
票数 : 0
-
项目定位:项目位于吉林省公主岭市,有和敬公主府之称,通过文化主题特色,延用中式风格,通过装饰、色彩等元素,表达出东方美学的色彩。客户定位为高端人群,在规划与设计中注重人与人之间的交流与共享,又要保护各自的隐私性。
色彩的选择,在中式风格当中,没有比红色更合适的了,它是中式风格最出色的代表,即热烈又鲜艳。红色又在五行当中属于火德,充满光和热,代表光明正大,普照六合。 -
空间意境:项目主要风格是中式,在繁重的中式当中,去繁取简,保留中式的美学特色,例如云纹山水、中国红、榫卯结构、水墨笔触等,充分展示中式风格。同时省略层层叠叠的装饰设计,简化家具的线条,让现代的意识融入到中式当中。表现出宋代的雅韵。
-
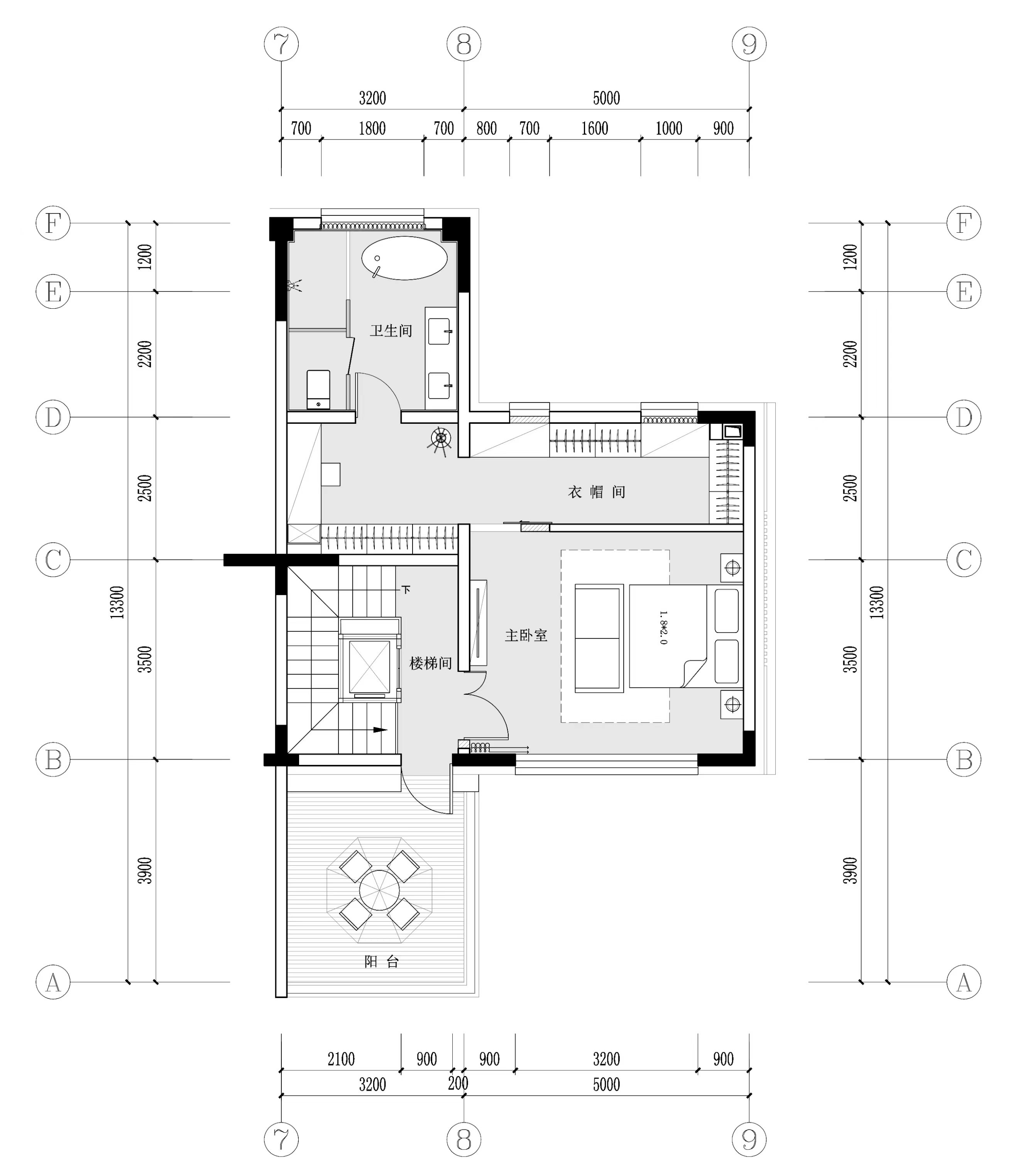
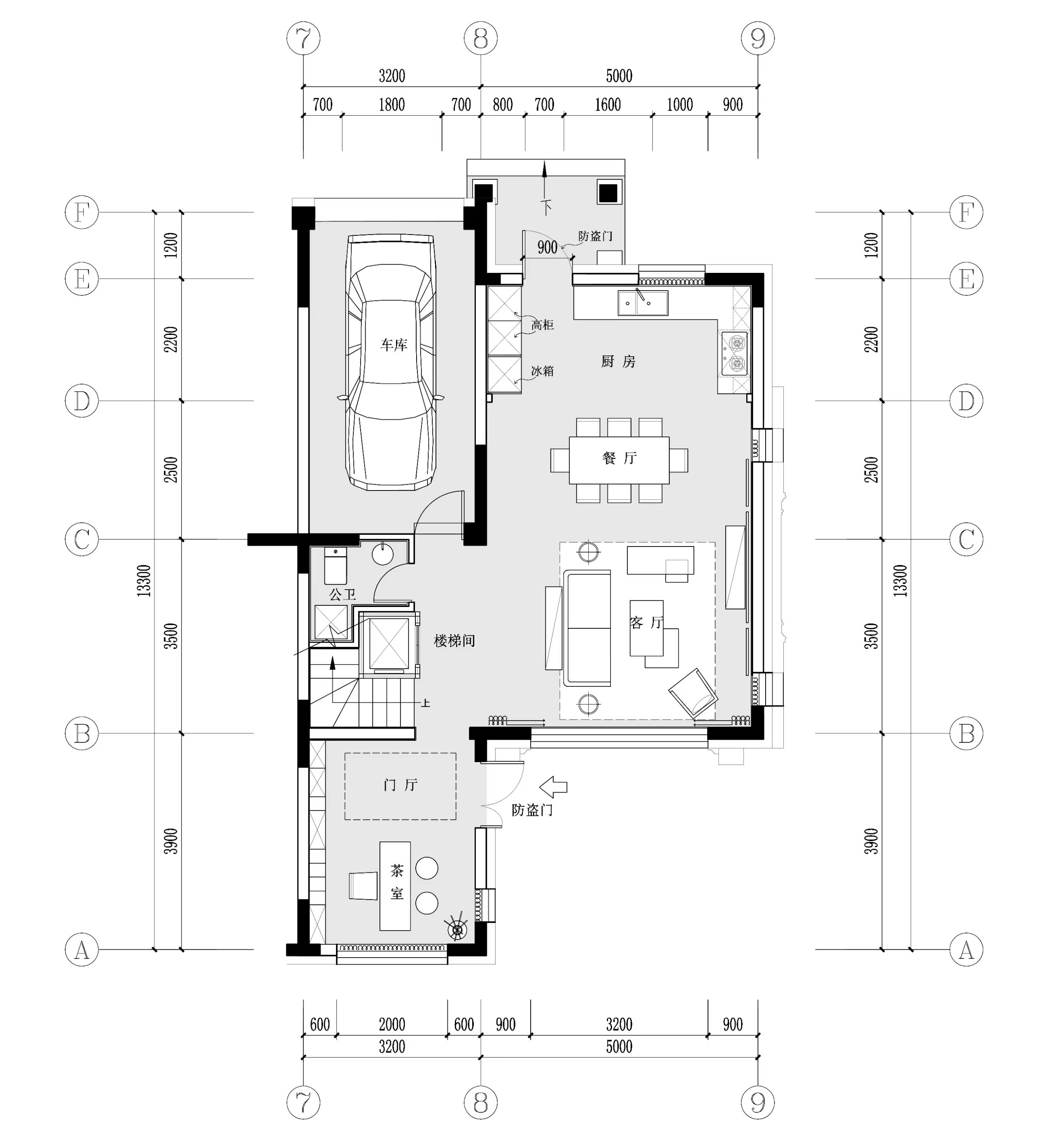
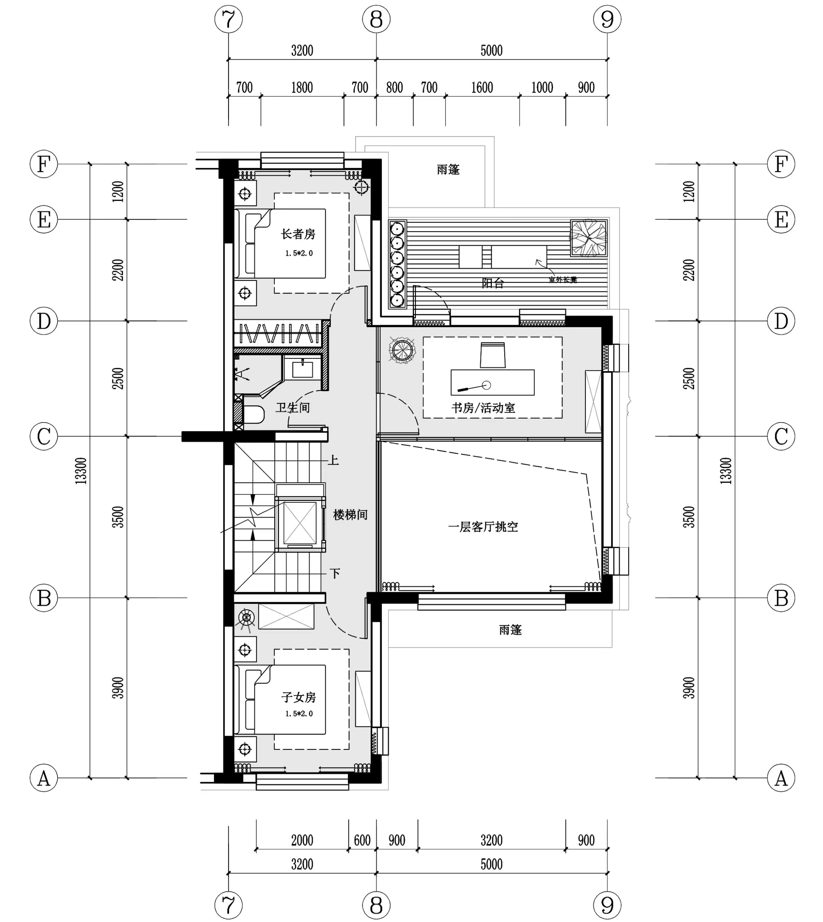
空间布局:设计当中通过中国红的色彩为每个空间做出呼应,在每一层的规划上,尊重各自的隐私性,每个区域都有独立的空间,通过夹丝玻璃,屏风等元素进行阻隔,又用不同材质让空间具有互通性,二层玻璃扶手,宽阔的廊道能很好的把一层挑空与二层的空间联通,不用下楼也能看到彼此。
-
设计选材:材料的高温定型,面料的选取,木质的环保水性漆,将甲醛的危害降到最低。
-
用户体验:人流的流通性很大,色彩也是空间中最亮眼的,很符合当地的风土人情。
以灰色为基础,青色过渡,黑色为衬托,红色作为主跳色。泰汉的大气磅礴、唐代的雍容华贵、宋朝的精致典雅……古老的东方美学经过千百年来的锤炼,酝酿出专属国人的美学艺术。
抛下传统、刻板的形式“美”标签,把东方美学用现代简约的手法演绎,用传统的优雅韵味与现代时尚元素结合。
与客厅相互贯通,通过色彩与摆设相互呼应,简单的汤盅餐具,素色的花艺,独留几朵佛手花绽放。
厨房的摆设与餐厅多数相互呼应,鲜亮的佛手花,是这个空间的点睛之笔。
屋瓦的元素设计,将传统的红砖绿瓦情形透过朦胧的瓦片,传递到孔家那种。
宋风雅韵,诗意书香,汲取书院中“书”的气韵,以宋代美学理念为基础,用现代设计回应城市文脉,通过雅致、自然的建筑语言,描绘出一篇满足审美与生活迭代所需的古代美学空间。
透过一抹绿意,静看诗情画意的书房。
笔墨纸砚,浅写心底的故事
以现代简约的建筑语素以及自然美景的灵动生机,旧时的礼序、现代的审美以及生活的艺术环环相扣,共谱诗意人间。
简单的水墨文竹背景,隐约之间透漏出中式的背景,层层灯光的照射,不同瓦数的灯光,让层次感更强。
“波光潋滟三千顷,莽莽群山抱古城。四季看花花不老,一江春月是昆明。”
更加现代的材质与设计,让女儿房更鲜活
不同于其他房间的色调,让女儿房独具特色
主调是沉稳的不同层次的米白色和米灰色,用代表光和热的红色调来点缀提亮,使整个空间既沉稳又不失温暖。
木质的斜坡屋顶房屋摆件,与铁艺的回流香炉结合
山水有相逢,水墨山水的线条背景与抱枕暗纹相互呼应,悄悄的展示东方美学
不规则的挂画与对称式的电视柜形成对比
0
0

认证 · 让您身份增值