传承大宅



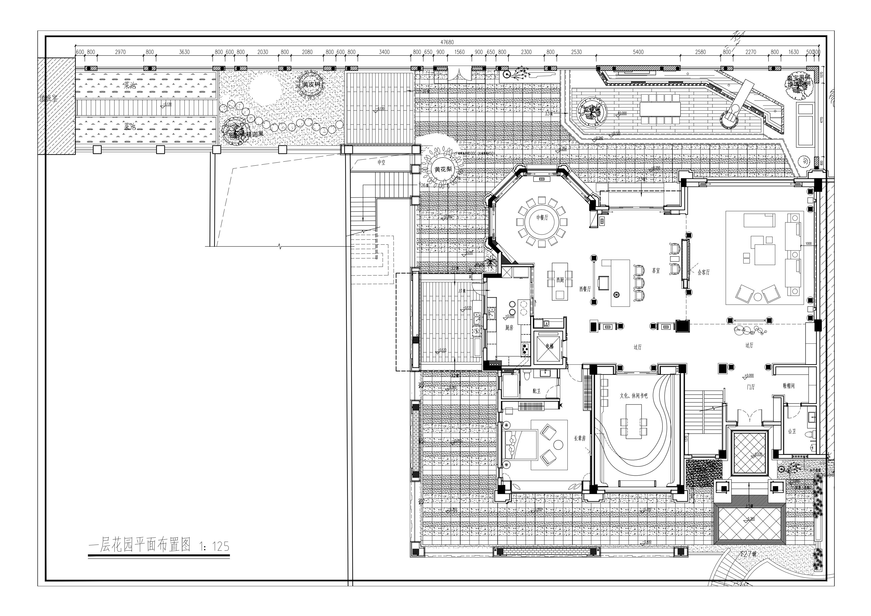
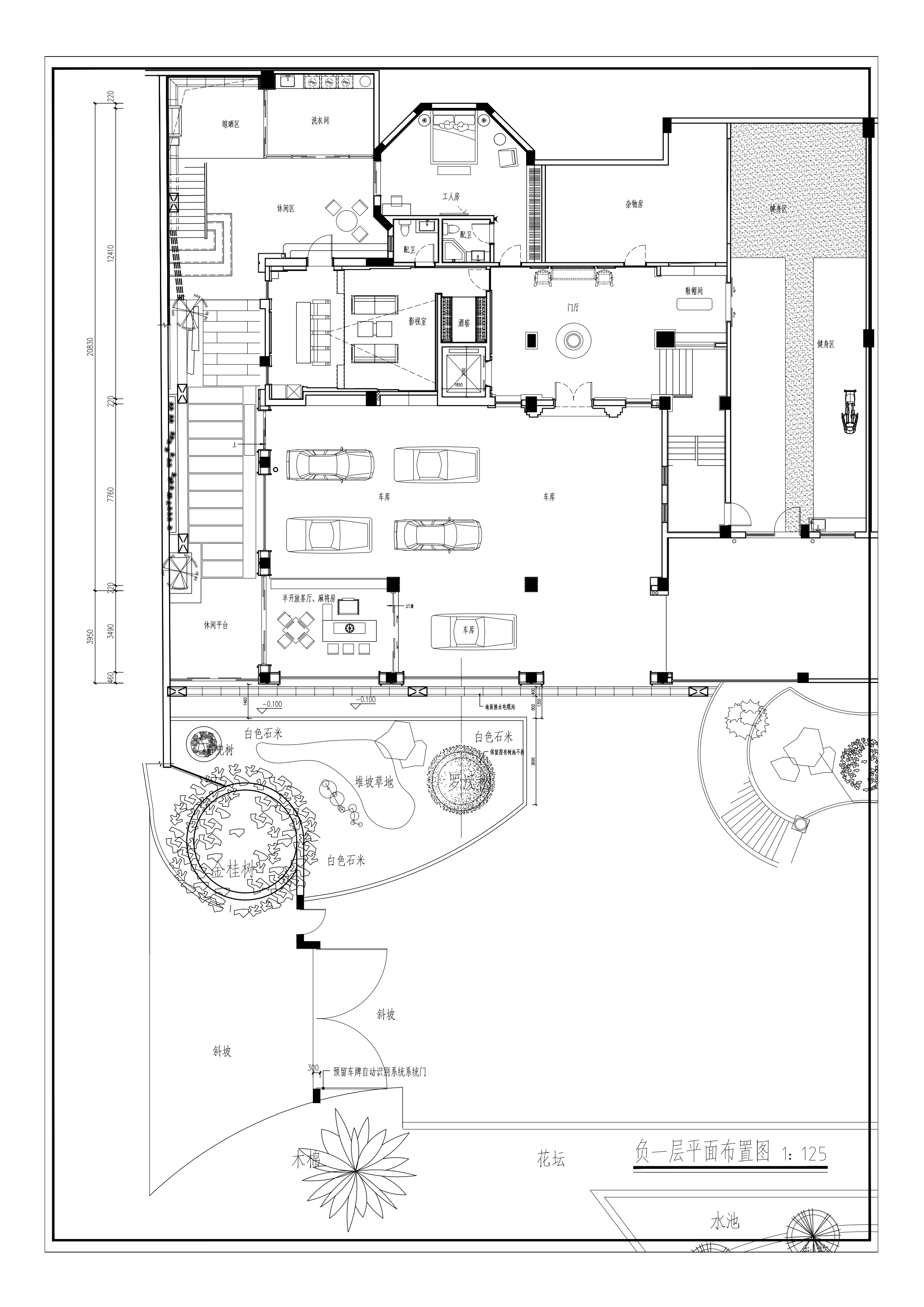
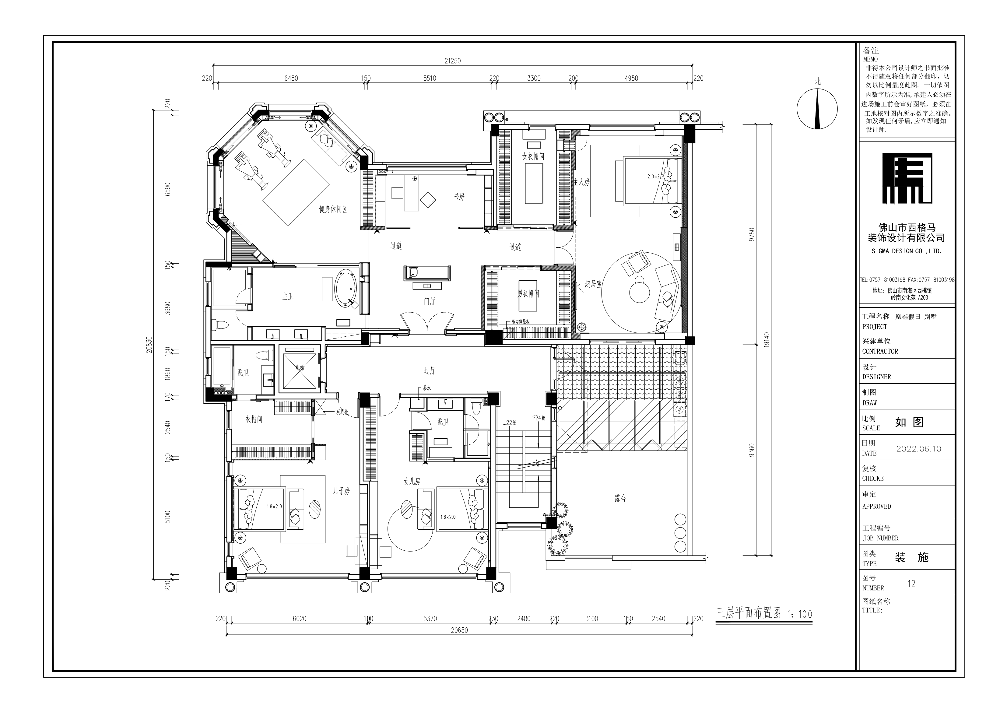
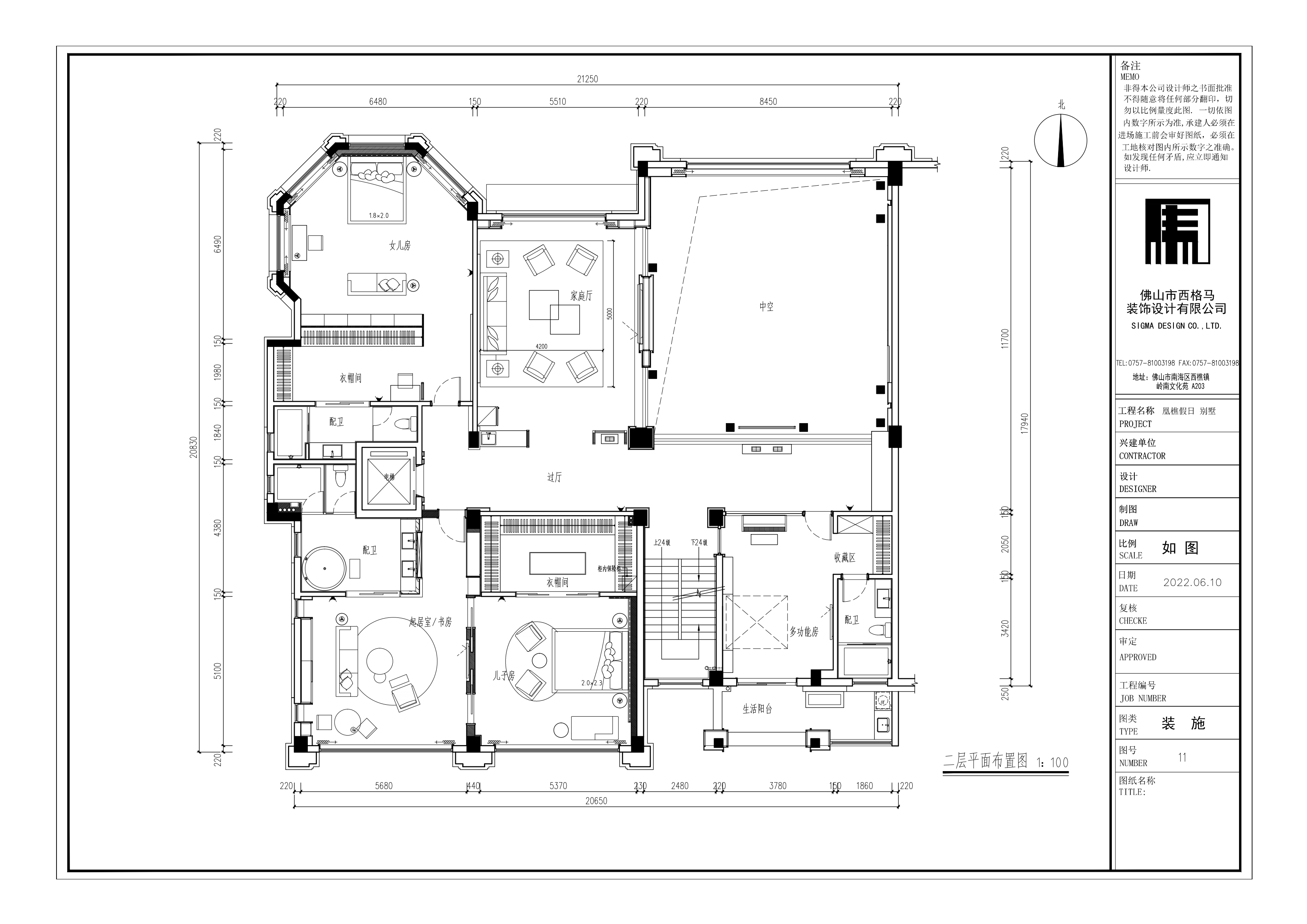
- 项目类型:住宅公寓
- 项目地点:佛山市
- 建筑面积:1800.0000㎡
- 项目造价:2000.0000万元
- 主案设计师: 邹以锋
- 参与设计师:邹以锋 、梁翠欢
- 竣工时间:2023-12-30
- 设计机构:佛山市西格马装饰设有限公司
-
项目定位:现代品质风格大宅,蕴含“家族代代传承”之意。融合“徽派文化+岭南文化”形成新中式之美,砖瓦之间、细节之处尽显家之生机与薪火相传之底蕴。
-
空间意境:玄关为马,一马当先
入门玄关处摆放“马”肖像,蕴有马到功成,招财生旺之意。
客厅与玄关之间的屏风运用雅黑钢与蓝色琉璃作细节处区分,大胆采用冷暖色调对比,形成动态感觉,打破入门处的寂静氛围,建立出人物与空间的关联、交融与共情。 -
空间布局:薪火相传,源远流长
客厅天花的设计巧妙运用了“翅膀”之意,形状与二楼会客厅天花形成一双飞翔的翅膀。大小翅膀相互照应,以小见大,突显无限延伸的空间感,与题呼应,寄托家族文化情感源远流长之意,积淀着祖祖辈辈最深层的精神追求。
客厅的地面、墙面运用了水墨色调大理石岩板大板,整体展现出江南水墨格调,以细节呈现,为业主在他乡也能感受到家乡文化增强归属感。 -
设计选材:地面大胆运用水墨石纹岩板大板,墙体运用爵士白灰石搭配墙布与飘逸水墨画,塑造出遐想无限的空间,柱体运用木材+石材+铜片,突显稳重踏实之感。
-
用户体验:江西徽派家族落地佛山岭南安家立户,依托家乡情怀也融入岭南文化创新。传承,是对家族多年挑战的勇气和智慧,也是对两处地域文化的敬畏和坚守,更是不可撼动发自内心的祖辈对后辈家族兴旺之传承的执念。心安之所在,即为本套《传承大宅》所表达的核心之处。
“心安为吾家” 家族兴旺,是代代相传的接力赛 传人、传文、传心、更传情
江西徽派家族落地佛山岭南安家立户,依托家乡情怀也融入岭南文化创新。传承,是对家族多年挑战的勇气和智慧,也是对两处地域文化的敬畏和坚守,更是不可撼动发自内心的祖辈对后辈家族兴旺之传承的执念。心安之所在,即为本套《传承大宅》所表达的核心之处。
玄关为马,一马当先 入门玄关处摆放“马”肖像,蕴有马到功成,招财生旺之意。 客厅与玄关之间的屏风运用雅黑钢与蓝色琉璃作细节处区分,大胆采用冷暖色调对比,形成动态感觉,打破入门处的寂静氛围,建立出人物与空间的关联、交融与共情。
柱廊文化,生机蓬勃 设计师将古中式建筑的“柱廊文化”融入室内,让空间整体表现为四平八稳之感,有家族生意蒸蒸日上的寓意。柱上镶嵌通花铜片,细节点缀高贵姿态,蕴含吉祥如意好兆头。
细节之处采用寓意“光”的太阳灯与有“生机兴旺”之意的兰花作结合,融入“玄学”概念,使得整个大宅的“聚财”“兴旺”之位得以诠释升华。
薪火相传,源远流长 客厅天花的设计巧妙运用了“翅膀”之意,形状与二楼会客厅天花形成一双飞翔的翅膀。大小翅膀相互照应,以小见大,突显无限延伸的空间感,与题呼应,寄托家族文化情感源远流长之意,积淀着祖祖辈辈最深层的精神追求。
客厅的地面、墙面运用了水墨色调大理石岩板大板,整体展现出江南水墨格调,以细节呈现,为业主在他乡也能感受到家乡文化增强归属感。
文脉创承,在地觉醒 整个大宅在横梁处的设计作出了灵活的改造,运用“瓦脊概念”将原本冷冰冰的横梁,塑造出古韵十足且充满力量感、安全感的“龙脊”形状,构造出美感与功能结合的空间场域。
品百态,悦享人生 小型图书馆采用木材与镜钢做结合,整个空间充满书香气息。设计灵感取自徽派古韵,进门映入眼帘的便是有着“通向成功大道”美好寓意的如意门,不仅具有极简徽派建筑的优雅,又为图书馆增添一处功能性的用途。顶部巧妙运用“瓦脊概念”化解横梁的厚重与无趣感,搭配曲线台阶设计,整体空间释放出放松、随心之感,同时台阶的错落也为书籍拿放提供了安全、便捷的实用性功能。
时尚中式,心安归家 通过一扇门进入卧室空间和健身室区域,两种不同的卧室设计和产品应用方式,展现功能使用的多样性,也给予居住者更多的感受与感知。卸下一天的疲惫,享受自我生活。

