欢姐伦教糕总部旗舰店
384
作品说明
- 项目类型:餐饮
- 项目地点:佛山市
- 建筑面积:400.0000㎡
- 项目造价:300.0000万元
- 主案设计师: 邹以锋
- 参与设计师:邹以锋 、梁翠欢
- 竣工时间:2023-12-30
- 设计机构:佛山市西格马装饰设有限公司
-
项目定位:古今融合商业空间,看尽岭南建筑繁华
-
空间意境:“与古为新”
欢姐伦教糕总部旗舰店,从设计上做到与时尚,文化相融合,内部设计不仅有岭南庭院的青砖绿瓦,生机绿植,琉璃玻璃、光影和窗花屏风等岭南特有的形象融入到现代舒适的环境中,感受岭南的闲适,同时也以更为精致,细腻,创新的方式让店面看起来既时尚,又有古朴气息。
“古为今用”
欢姐伦教糕总部旗舰店不仅打造出新的伦教糕文化体验和升级感受,还推动与传承了岭南传统文化。 -
空间布局:“青砖”“瓦片”“水”是岭南传统民居元素的代表,结合欢姐伦教糕总部旗舰店的空间需求,用现代手法呈现的“瓦片扇形窗”,其镂空线条维持了空间通透;“室内涌泉”,营造大隐于市的舒适与静谧,这两者不仅是富有岭南建筑文化特色的延伸,还兼顾了装饰功能;大量使用古街石、传统石米砖打造出传统走廊院落的复古效果,反璞归真,回归自然。
顺德自古有着“凤城”之称,设计师为了融入本土文化,在内部空间用竹编装置营造“凤舞”的动感,搭配定制的龙鳞砖,寓意龙凤呈祥。大面积的竹编以蜿蜒流畅的线条在房顶铺开,在灯光的照射下,简约极具美感,像一幅三维立体画盘旋在空中,每个角度都能带来不一样的视觉感受。房梁嵌入独特的雕花,雕工精致细腻,立体感强,寓意吉祥。
斗拱结构既精巧又繁复,位于屋檐之下,梁柱之间,层层出挑,起着承上启下,传递荷载的作用。
整体空间采用半围合空间的布局,划分出多个区域,增加了空间的层次与深邃。 -
设计选材:欢姐伦教糕总部旗舰店,用现代手法谱写岭南传统建筑风格,完美解读“不止传承,不断创新”的理念。整体空间的打造运用了木材、青砖、古街石等极具岭南韵味的材料,将老字号蕴藏的岭南文化,演绎为现代符号,空间也呈现出古朴、宁静、简洁、时尚的效果。老字号与现代气息交融,代表着经典与雅致。
-
用户体验:木趟栊、满洲窗、定制手工龙鳞砖与传统斗拱的搭配,无论从艺术或技术的角度来看,都足以象征和代表岭南古典的建筑精神和气质。
室内大量的满洲窗,使得整体空间在“光、色、型、质、意”上都有了更高层次的提升。
关于牌坊的设计,搭配了中国古建筑特有的卯棒结构,以清明上河图为穹,沉稳的古木色为基调,可谓是集传统与现代为一体,同时也诠释了欢姐伦教糕“不求最好,只求更好”的内敛品牌文化;而两侧对称的“看似未完成的”结构,寓意着品牌未来有着无限的可能性。 右下方玻璃房设为伦教糕文化橱窗,再现出浓浓的老顺德风情与制作糕点文化的历史。
木趟栊、满洲窗、定制手工龙鳞砖与传统斗拱的搭配,无论从艺术或技术的角度来看,都足以象征和代表岭南古典的建筑精神和气质。
室内大量的满洲窗,使得整体空间在“光、色、型、质、意”上都有了更高层次的提升。
“青砖”“瓦片”“水”是岭南传统民居元素的代表,结合欢姐伦教糕总部旗舰店的空间需求,用现代手法呈现的“瓦片扇形窗”,其镂空线条维持了空间通透;“室内涌泉”,营造大隐于市的舒适与静谧,这两者不仅是富有岭南建筑文化特色的延伸,还兼顾了装饰功能;大量使用古街石、传统石米砖打造出传统走廊院落的复古效果,反璞归真,回归自然。
顺德自古有着“凤城”之称,设计师为了融入本土文化,在内部空间用竹编装置营造“凤舞”的动感,搭配定制的龙鳞砖,寓意龙凤呈祥。大面积的竹编以蜿蜒流畅的线条在房顶铺开,在灯光的照射下,简约极具美感,像一幅三维立体画盘旋在空中,每个角度都能带来不一样的视觉感受。房梁嵌入独特的雕花,雕工精致细腻,立体感强,寓意吉祥。
斗拱结构既精巧又繁复,位于屋檐之下,梁柱之间,层层出挑,起着承上启下,传递荷载的作用。
整体空间采用半围合空间的布局,划分出多个区域,增加了空间的层次与深邃。
建筑立面6-7
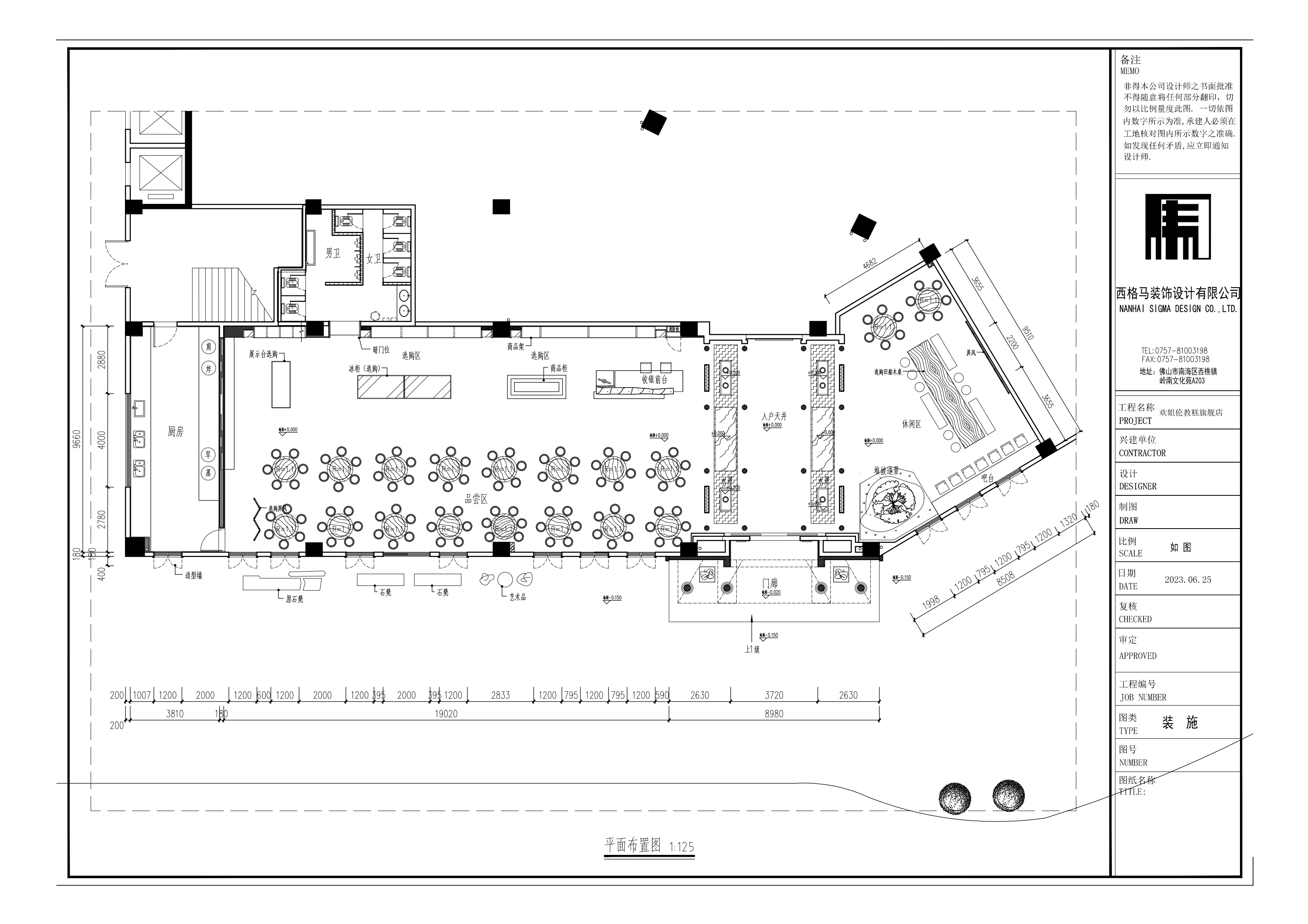
伦教糕旗舰店平面图
0
0

认证 · 让您身份增值
金堂奖入围作品证书