黑白之间
659
作品说明
- 项目类型:住宅公寓
- 项目地点:南昌市
- 建筑面积:160.0000㎡
- 项目造价:80.0000万元
- 主案设计师: 赵毅
- 参与设计师:瞿晔
- 竣工时间:2023-05-01
- 设计机构:毅泽空间设计工作室
票数 : 12
-
项目定位:极简的设计语言和表现形式,秉持少即是多的设计理念,去除多余非必要的空间形式,为空间赋予更多的精神内涵。
-
空间意境:本案是顶层复式,空间上楼梯原结构影响餐厅使用,设计师为了保证楼梯功能,并把空间利用度提升,将楼梯移到客厅窗户位置,开出楼梯洞,将楼梯镂空艺术化,变成客厅的设计亮点。
-
空间布局:传统顶楼,利用赠送屋顶空间,变成有挑空空间的复式结构,并最大化给客户做实用空间。
-
设计选材:全屋通过空间结构来实现效果表现,设计师选择最为传统的白色乳胶漆,依靠层次细节表达。本案整体设计使用黑白灰色系给予了空间理性简约的基调,通过黑白灰的碰撞打造出极简又极具时尚感的空间氛围。
-
用户体验:业主之前对赠送的屋顶并没有兴趣,现在通过楼梯的结构加强两层空间的联系,让他们重新认识这套新房,设计师给二楼增加了屋顶露天露台和游戏休闲空间,业主每天都迫不及待的想在二层找回那充满激情的年轻岁月!
客厅中的楼梯不仅仅是楼梯,也是客厅中的艺术装置,更是一层和二层之间的纽带,使得楼梯在空间中的占用度降至最低,超高的梦幻帘从二楼一垂到底,形式感十足。
入户玄关运用不同材质的碰撞堆叠打造立体几何感,梦幻帘柔和空间光影,简单又具有设计感。
全屋以黑白色调为主,白色,灰色,黑色相间分布,层次感,高级感十足。
阳光在空白的墙面上雕刻出变幻莫测的光斑。
客厅采用无主灯设计,流畅的线条和优秀的整面采光,让空间充满光影生命力。
开放式厨房和餐厅相结合,让空间变得更加通透,光洁平滑的玻璃桌面,兼顾实用性的同时无疑为午后阳光增添几分美感。
通往二层的空间两侧是无框玻璃扶手,既要美观也要保证安全。
二层的游戏休闲厅是由铝合金阳光房搭建而成的,超长L型玻璃,搭配灰色模块沙发,既要满足家人娱乐及观影需求,也要坚持生活的调性。
书房使用黑色色撞色,营造现代感
主卧空间设计利落的线条搭配舒适的软装,简约耐看,
衣帽间内部高高隆起的是电梯的电机空间,设计师巧妙的化解,适应性和美观性都提升不少
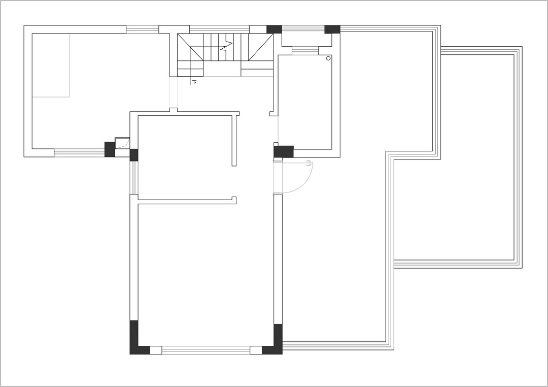
一层原始图
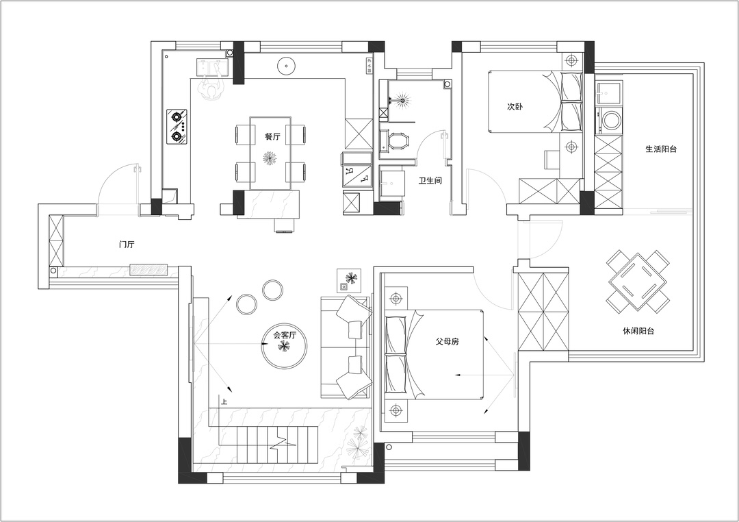
一层平面布局图
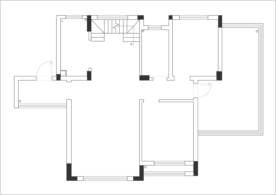
二层原始图
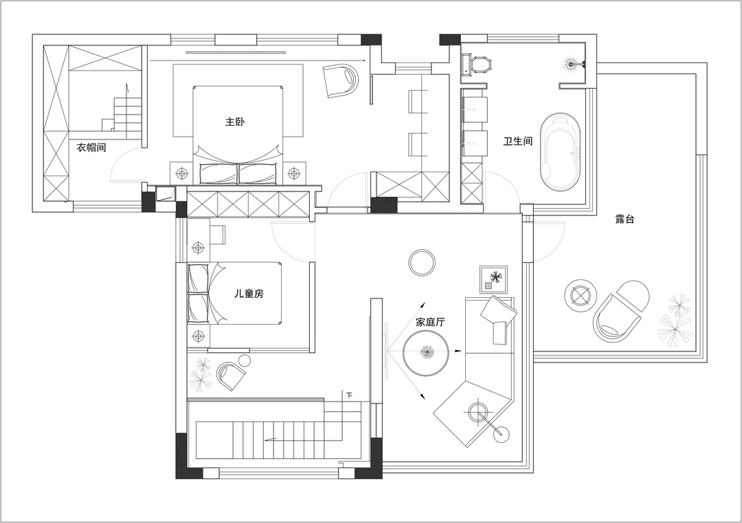
二层平面布局图
0
0

认证 · 让您身份增值