开通会员
* 不支持7天无理由退货
五大会员回报
一、五种秒生图 · 让您秒速谈单
文生图、全屋设计、线稿变精装、毛坯变精装、旧房翻新
——自研Ai、前期提案0成本,以图锁客、签单神器
二、秒生爆款文案 · 让您轻松日更
Ai秒生小红书爆款文案、专业级参赛文案
三、小程序分发 · 让您直达业主
V网站小程序支持多平台分享、高效引流
四、个人主页 · 让您专属展示
个人作品专属展示,设计师私属商务名片
五、红认证 · 让您身份增值
“行业奥斯卡”金堂奖加认证,让您增值
限时优惠,免费试用3天
金堂奖会员
399/ ¥880
终身会员2980元(不限年份、永久使用)
在线支付

在线支付安全认证

安全可靠

您的信息将完全加密

即买即用

享受更多优质会员服务

应付金额: 399

已扫码

请在手机上完成支付

点击刷新
请用微信扫码支付

支付即同意并接受

《金堂奖个人订阅服务协议》
恭喜,您已成功开通金堂奖VIP会员!
会员到期时间:2025-03-10
将于 10秒后,跳转至 秒景AI设计,立即跳转
关闭
简介
报名
记录
V网站简介
我的V网站
主页
发布作品
金堂奖
秒景AI
V网站
我的
立即红认证,享会员五大回报
您免费试用时间已到期,
立即红认证,享会员五大回报
您的体验仅剩2天,立即认证享无限使用!
您的体验仅剩1天,立即认证享无限使用!
您的体验仅剩1小时,立即认证享无限使用!
立即认证
领取三天试用期
恭喜您成为金堂奖会员立享五大回报
会员有效期截止
返回

嵐Lán · Salon

379
作品说明
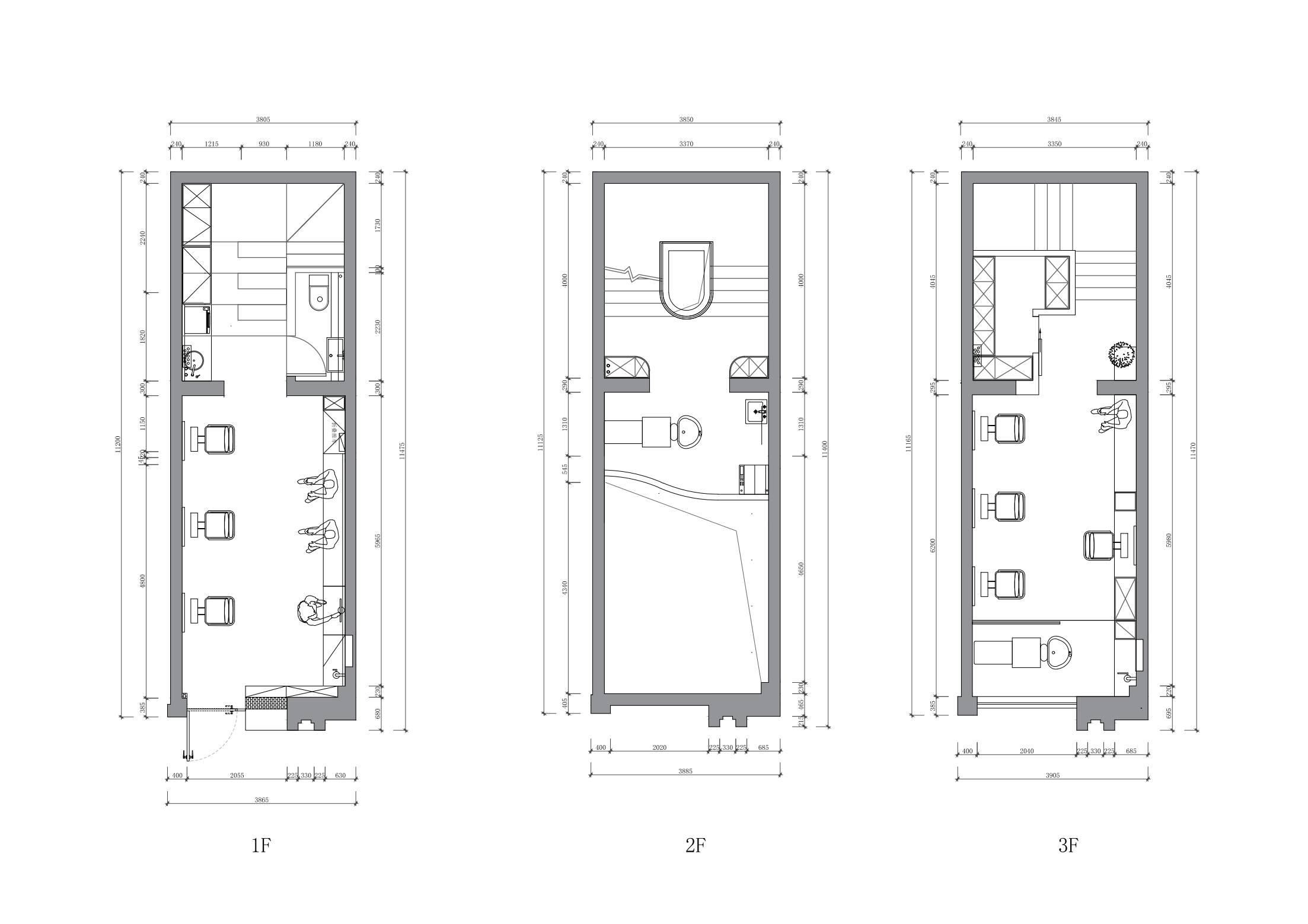
  • 项目类型:休闲娱乐
  • 项目地点:银川市
  • 建筑面积:120.0000㎡
  • 项目造价:13.0000万元
  • 主案设计师: 毛羽侬
  • 竣工时间:2023.5
  • 设计机构:宁夏熹择装饰设计工程有限公司
  • 项目定位:
    本项目原始结构是一个相对较深的二层铺面,业主的诉求是打造一个提供中高端预约服务的发型沙龙。

  • 空间意境:
    字从风者,谓风动岚飞也,以岚观之,纵览云飞。空间内含蓄内敛的表达中,就以项目“岚”出发对于当代人对于美的解读。
    对于美我们不想过分用力的去准求,云淡风轻的松弛感才是恰到好处的自然之美。

  • 空间布局:
    在空间规划上,我们根据客流量和美发项目的操作需要,搭建并重新规划了空间的功能分布。整体方案,极大的节约了造价成本,同时也在有限的空间内打造了我们对于美的理解与诠释。

  • 设计选材:
    艺术漆、不锈钢、软膜、天然石材、

  • 用户体验:
    空间在功能体验感受上有序且具有一定的松弛感
0
0