元佑兴融膳坊



作品说明
- 项目类型:餐饮
- 项目地点:沈阳市
- 建筑面积:671.0000㎡
- 项目造价:330.0000万元
- 主案设计师: 郝宇
- 参与设计师:郝宇 高吉健豪 刘宏泽 朱鹏 高艳硕
- 竣工时间:2023-07-28
- 设计机构:深白色设计
票数 : 38
-
项目定位:中国结印记:古今文化碰撞的独特演绎
-
空间意境:夸张的方形红格栅穹顶,一如“中国结”灵感的绽放,在入门的一刻即营造了视觉记忆的第一触点,唤醒了整个餐饮空间的艺术灵感。错综复杂、纵横交错的中国结编织纹理,借由设计师的艺术之手,被放大数万倍呈现于空间之中,层层叠叠,细致入微,宛如一件匠心细作,呼应着品牌注重细节、倾注匠心的独特精神。每一个红色的节点,皆是岁月的注脚,承载着丰富的文化内涵,连接着过去与未来,更是顾客与美味相结缘的缘分线索。
楼梯间拾级蜿蜒而上,仿佛踏入了时光隧道,竹子被渲染成红色,在楼梯间优雅地舞动,犹如一场空灵的舞蹈,以独特的方式迎接每一位到来的顾客。这种设计不仅是对中国结主题的呼应,更是一场艺术与自然的邂逅,将迎宾的独特方式融入空间的每一个角落。
二层包房内的色彩和材质回归自然,整面的落地窗打开了视野,让室内的光影与室外的风景相辅相成,使得空间的界线变得模糊而美好。 -
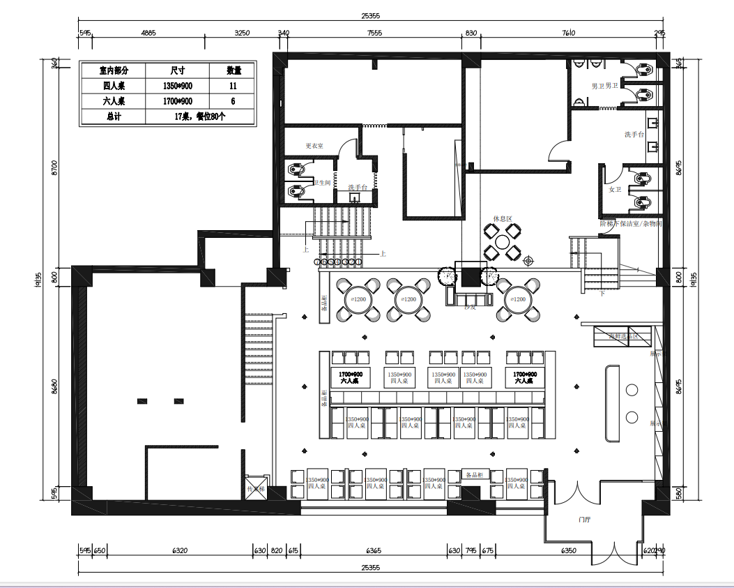
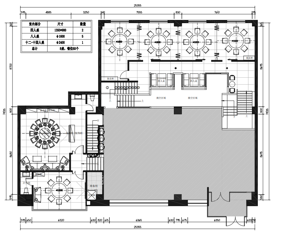
空间布局:空间规划方面,设计师进行了外科手术般地解构与重组,通过对建筑向下半米的深度挖掘,换取了楼板搭建的半层阁楼。为食客们营造出独享的就餐角落,绝佳的视角可以俯瞰整个用餐大厅。食客们沉浸其中,仿佛进入了一幅意境深远的画卷之中,而在设计的魔法中,他们即是观赏者,也是被观赏的一部分。
“空间不仅仅是实体存在,更是一场文化的交融盛宴,在这里,每一位顾客都沉浸在传统与现代的交汇之中,品味着美食与文化的奇妙共振。” -
设计选材:选材岩板、理石、橡木、铁艺这不仅是味蕾的盛宴,更是对美感、艺术和品质的极致追求。设计的巧思,让驻足于此的食客们,获得愉悦心情的同时,感受古与今的文化碰撞和独树一帜的品牌力量。
-
用户体验:整个空间充满温暖和宁静的氛围,设计带领顾客穿越自然之美,领略优雅与自然的完美融合。

