-
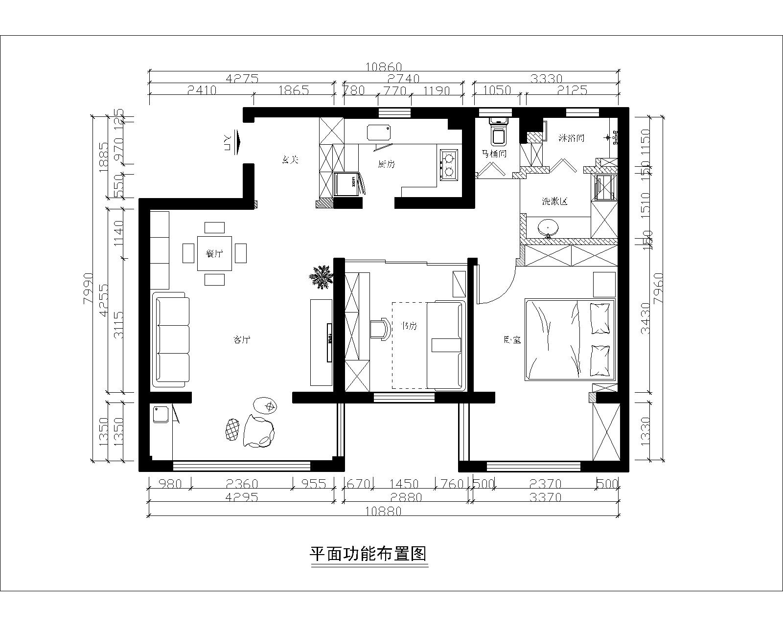
项目定位:小空间大格局,简单材质打造轻松氛围,精准收纳,精致生活。
-
空间意境:它结合北欧的自然,日式风格的有序,美式懒散组合,轻松自由的风格,摒弃流行元素的修饰,打造犹如牧羊者的内心自在居心地!
-
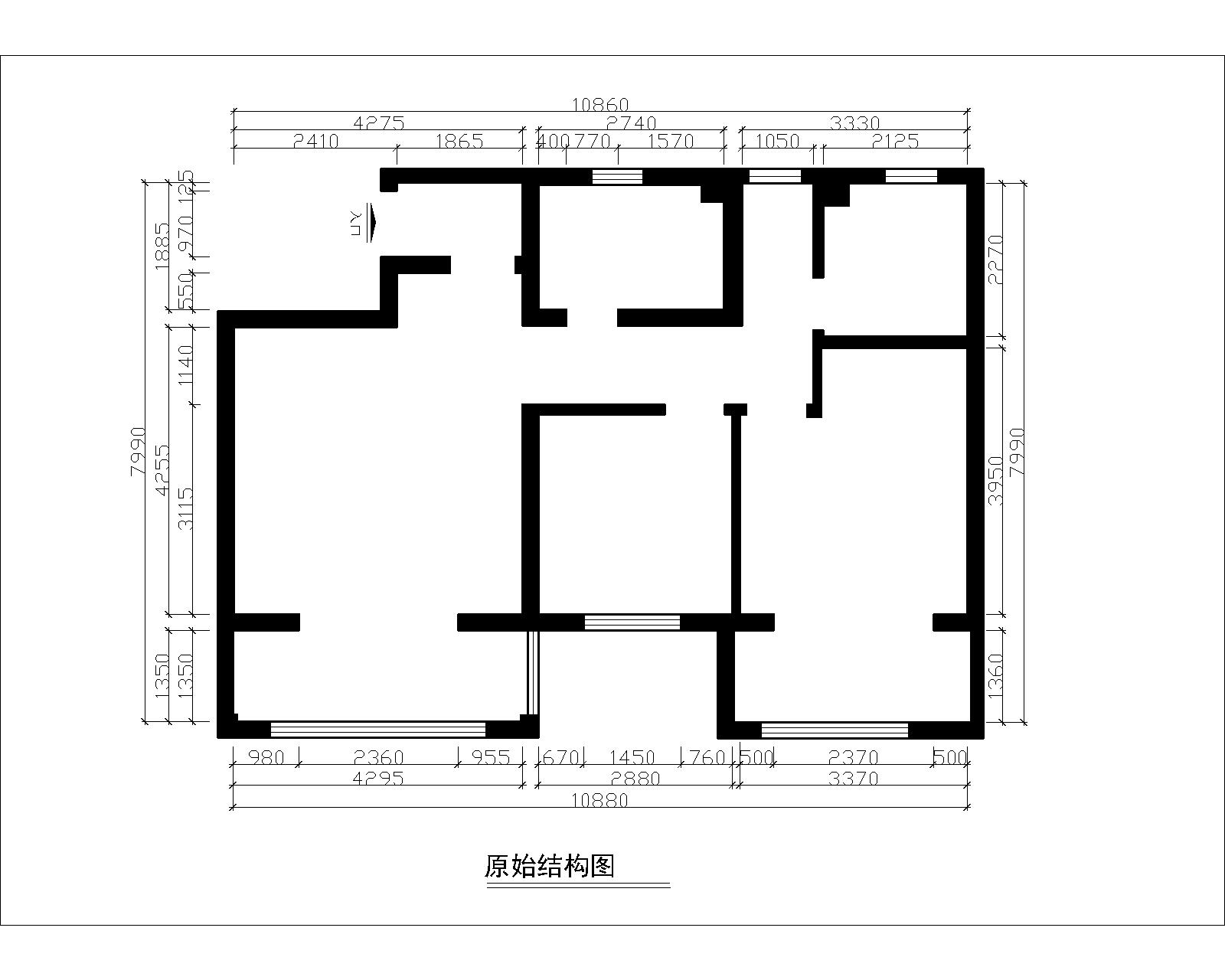
空间布局:门厅扩大配有鞋帽柜,换鞋凳,穿衣镜,进出家门,拿取快递,空间从容;
客厅公共区保留原有顶面建筑结构,空间高出延展性,以高见空;
打通书房与次卧的隔墙,用软隔断链接,灵活多变,平时空间舒适自由,来个朋友可以变客房,开放性与私密性兼具;
卫生间做了三段式分离设计,彼此独立互补干扰
-
设计选材:入户门厅采用地毯铺贴,方便去除室外灰尘又能增加家的干净舒适性;家里大面积采用实木原木色地板和暖白色乳胶漆,结合南面大面积采光,营造轻松舒空间,为后续不同风格家饰摆放打造包容度及大的基础;
-
用户体验:入住以来体验感极佳,空间舒适,色彩轻松,生活其中从容自得;公共空间高挑不压抑,卧室空间适度又静谧; 每个空间合理利用,收纳归位减少家务劳作,还能轻松保持家庭整洁;

