北京亿城燕西华府独栋别墅



作品说明
- 项目类型:别墅
- 项目地点:北京市
- 建筑面积:625.0000㎡
- 项目造价:218.0000万元
- 参与设计师:杨俊、黄婷婷、潘丽辉、章淼欣、方莎、杨婧妍
- 竣工时间:2023-10-10
- 设计机构:上海天鼓装饰设计有限公司
票数 : 1
-
项目定位:建筑美学是一场关于空间与时间的旅行。本案设计师利用建筑设计的手法对室内空间进行释放与重构,将光影变幻与自然景色充分融入设计,结合人居特性及生活态度,打造出了一个轻松自然、自由雅趣的生活度假美学空间,对新自然主义进行了一场深入探索。
-
空间意境:设计师以大开大合的设计理念营造“内建筑”空间,让室内尽可能地开敞,将户外绿意和阳光全面纳入室内,使空间气韵流动。并利用穿插、飘叠、透景等设计方式,营造舷窗、飘廊等及具诗情画意的互动空间。本案设计以一日、四季为时间线,将每个功能空间赋于情景交融的主题,通过光影的变化相串联,使人时刻置身于自然之中,随着时间的转变达至不同的心境。
-
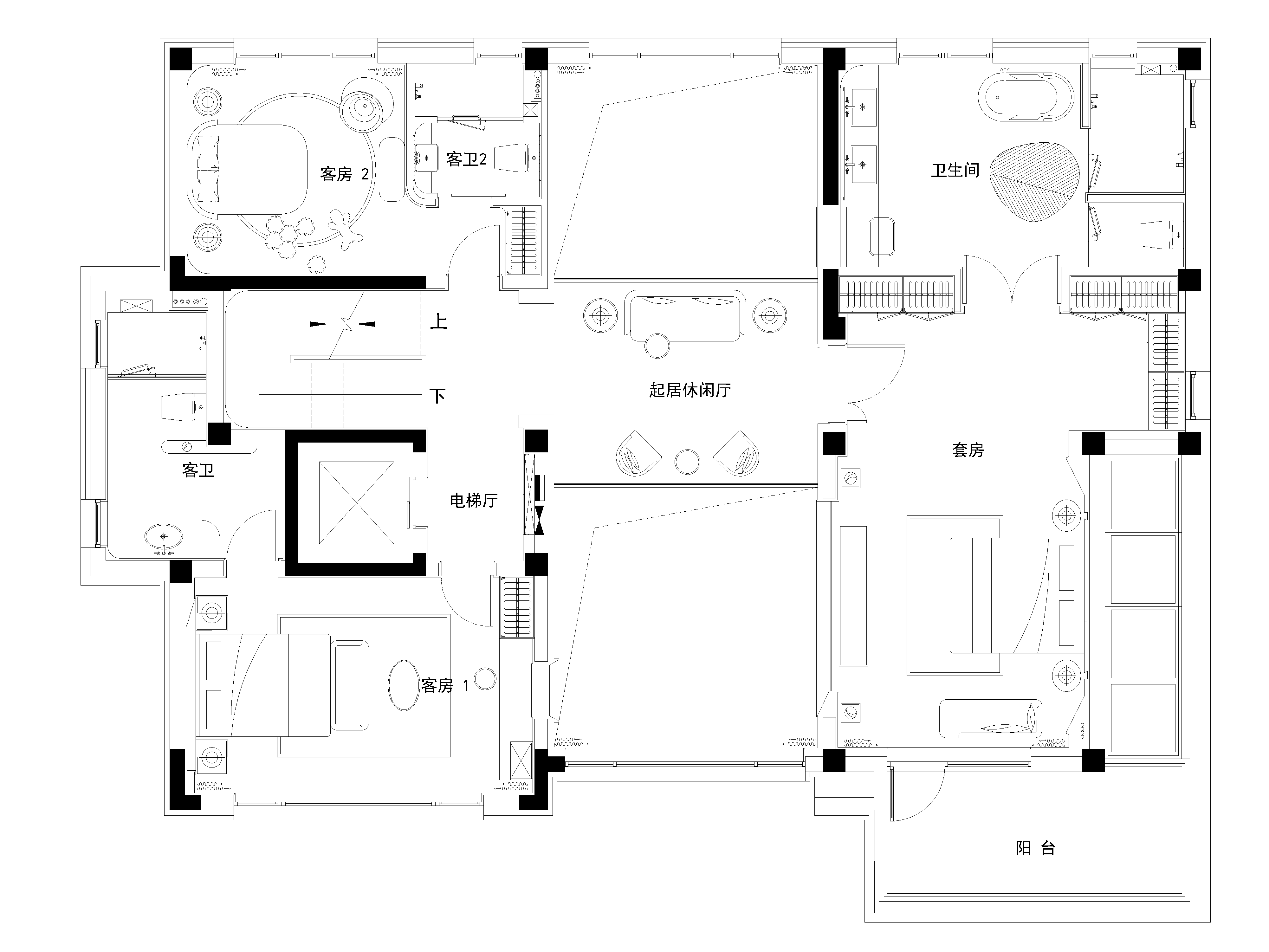
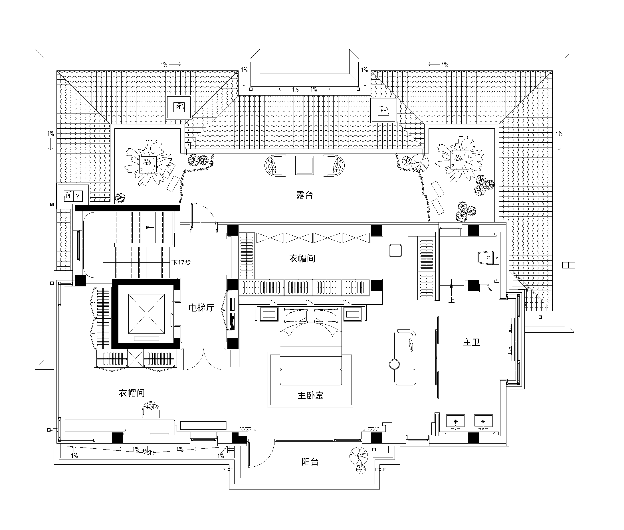
空间布局:自然是一幅天作的巨大画卷,南北两侧的超大落地窗对院落景观进行框景,一副绿意画作映入眼帘,一场人与自然的对话就此展开。这幅自然艺术品可于地下室、飘廊、一、二层被多角度地欣赏,细品四季更迭留下的痕迹。飘廊的设计将餐厅、客厅与二层空间串联了起来,空间被释放后变得灵动活跃。室内外空间的边界因此模糊,室内外情景相融,自然舒适的居住氛围油然而生。地下室原本的采光天井被升至二层,空间进行了竖向与横向的延伸,增强了空间的连续性与互动性。
-
设计选材:透过卧室条窗与舷窗向下俯瞰,会客空间与窗外景色尽收眼底,空间被温润的浅木饰面四面环抱,点缀以绿意,彰显着充满蓬勃生机的自然质感,营造出温暖舒适的生活度假氛围。
-
用户体验:设计师通过对空间的塑造以链接人与自然,促进空间内的交流与互动,为居住空间赋予新的力量。

