北京亿城燕西华府32#独栋别墅



作品说明
- 项目类型:别墅
- 项目地点:北京市
- 建筑面积:650.0000㎡
- 项目造价:325.0000万元
- 参与设计师:杨俊、黄婷婷、潘丽辉、章淼欣、方莎、张宽
- 竣工时间:2020-10-31
- 设计机构:上海天鼓装饰设计有限公司
-
项目定位:白居易在《庐山草堂记》中说:“覆篑土为台,聚拳石为山,环斗水为池”,这是文人园林的范式。园林式别墅充分体现了“自然美”的主旨。随着人们现代生活需求的不断变化,以及历史进程中的大事件给人们带来的影响,人们的生活习惯也在慢慢发生变化。这一年来的疫情,让人们更注重健康,更尊重自然。许多细节的生活方式的变化,渐渐将成为人们长久的生活习惯。所以我们在设计中根据人们新的生活方式划分出更便利,更理想的生活动线。
-
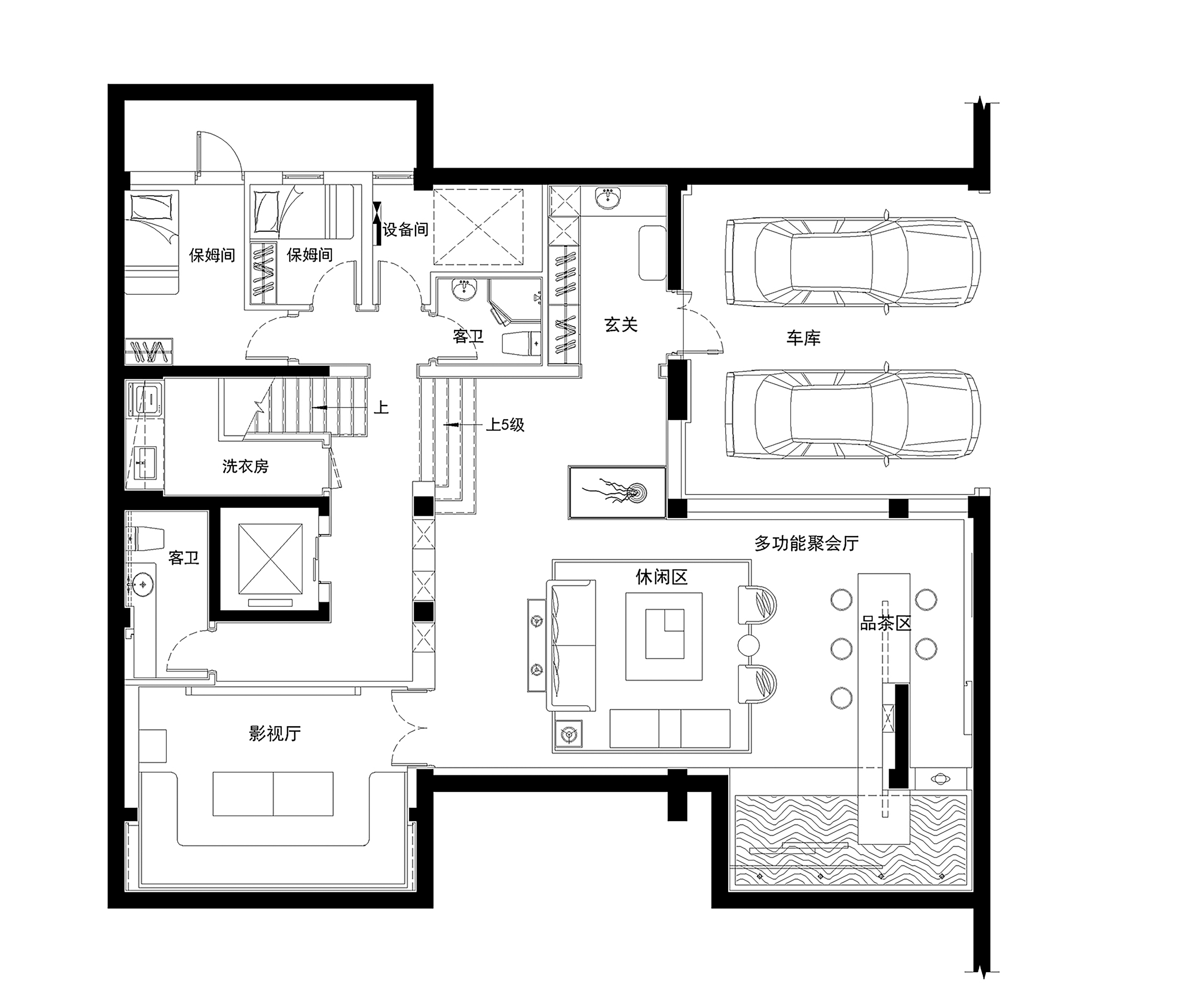
空间意境:与一层联通的共享空间将光线洒入多功能休闲厅,依地梁而设的干景台增加了空间的层次感和空灵的意境,在这里可以静卧、畅聊、品茶、手工,可静可动,亦可在长幼互动中静思与感受时光的流动。地下空间的西南采光部位设置影视娱乐厅,将封闭空间引入自然气息,增强空间使用多变的可能性。
-
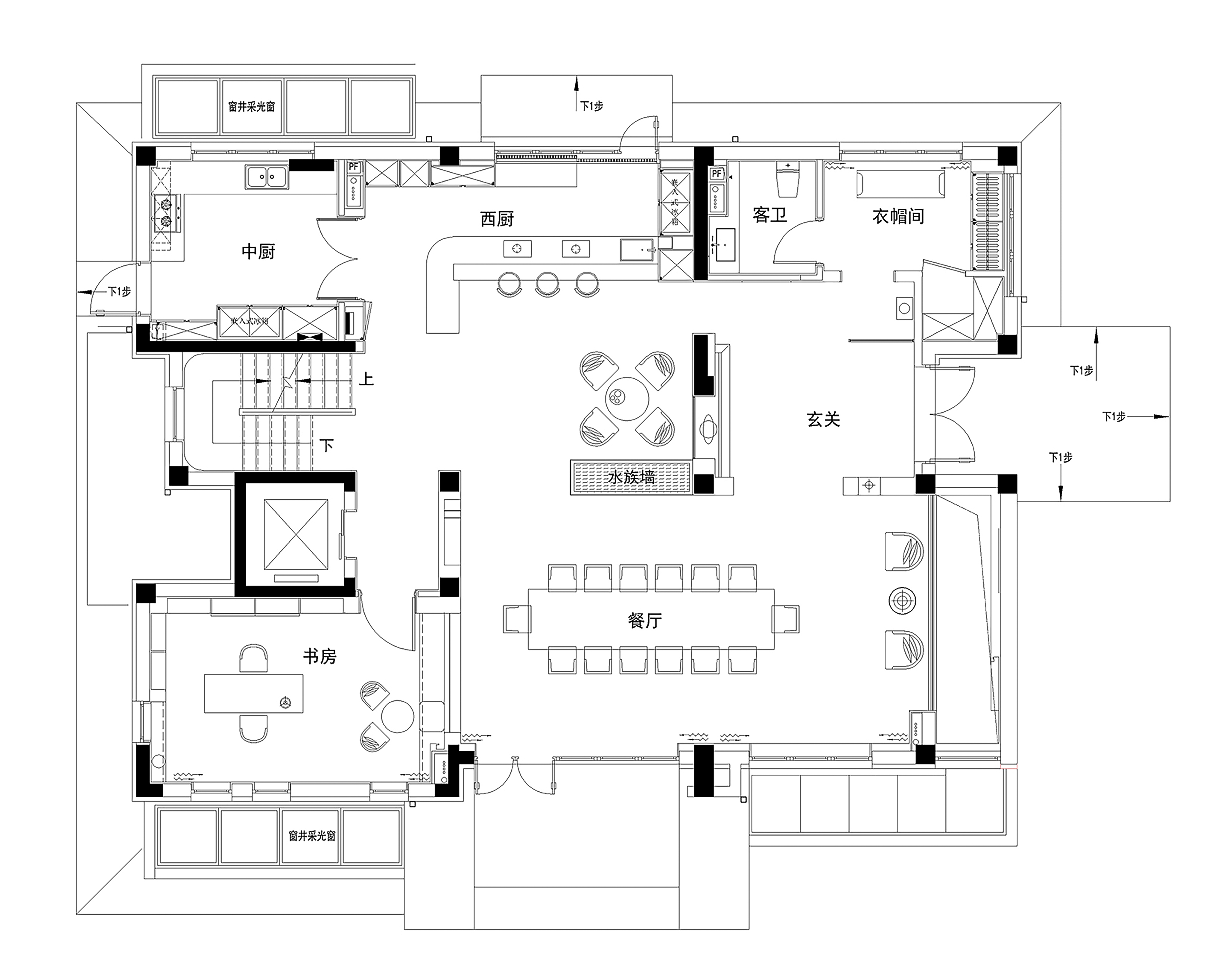
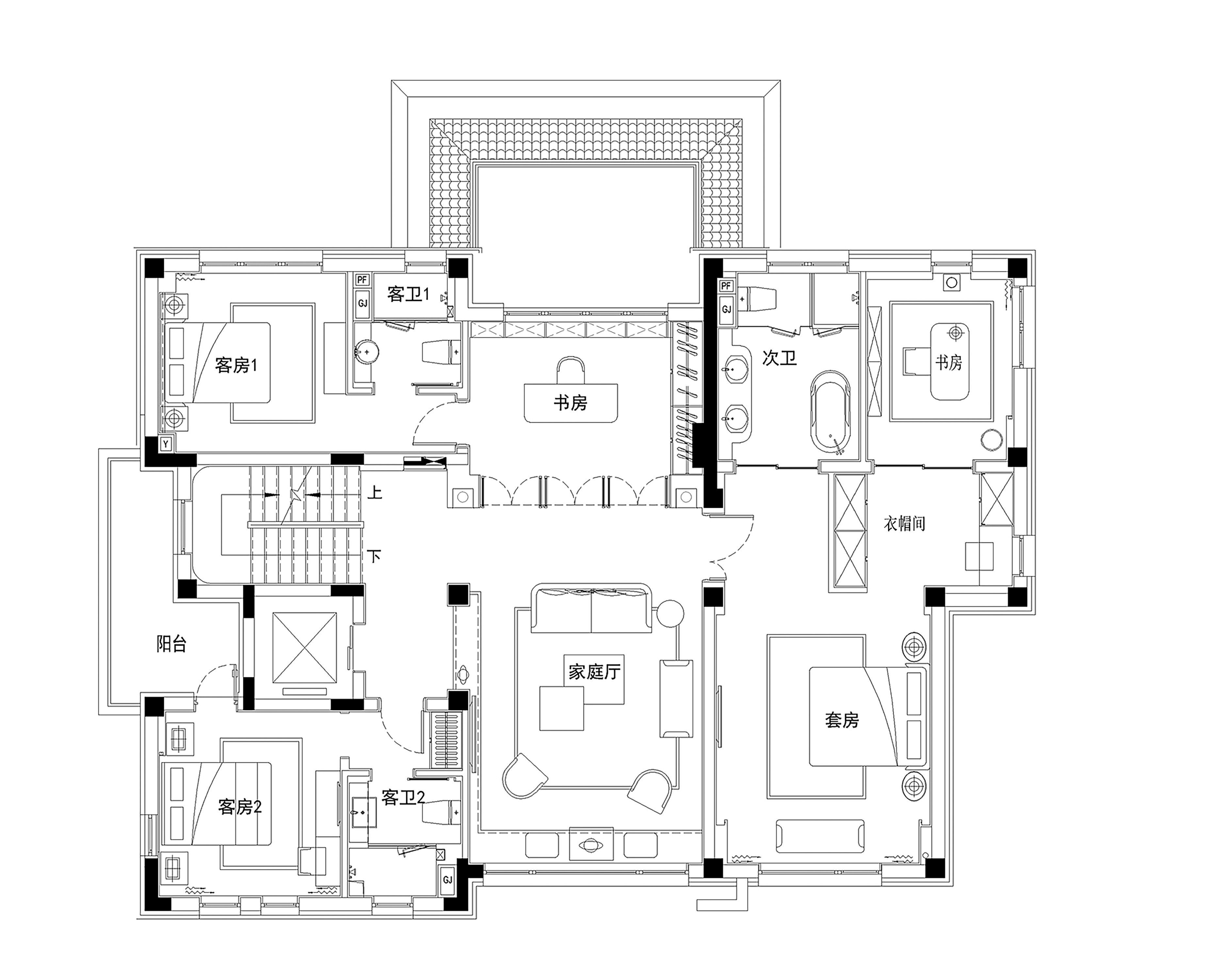
空间布局:入户玄关右侧是衣帽间及客卫,方便进出置取衣帽及入户消毒清洁。玄关左侧则进入到大厅,设计将原本客厅东侧墙体拆除外延,把户外采光井纳入室内,营造挑空的共享空间,使一层大厅与地下空间产生了对话关系,形成趣味休闲区。随着当下人们度假休闲方式的变化,客厅的会客功能逐渐减弱,餐饮功能更加强化,所以我们将一层打造成集早餐、午餐、下午茶、晚宴、酒吧等多功能全天后休闲餐饮区。一层大书房面朝南院,在一片阳光绿意中的休闲办公更赢得事半功倍。或与友人在此小酌长谈,思想碰撞,不失一个安静的好去处。二层为客房区,设置起居休闲厅及三间套房,兼顾了不同年龄与性别。在软装的配置上,我们更注重实用自然的物品,考虑到客人的使用便利,每个套房均配置了小冰箱,水壶饮具等日用设备。摈弃了多余的装饰,减少华丽的视觉侵扰,归于平静与轻松。三层为主人套房,双动线的布局形式,满足人在不同时间使用和需求的便利性。可分别进入书房和更衣洗浴空间,避免打扰;亦可环通,使行动流畅。主卧面朝窗外,躺卧间观星赏月,别是一种风雅。地下空间为多功能互动空间,从地下车库入户后,是玄关衣帽厅,红松艺术装置引人进入禅意空间。
-
设计选材:宴会区与早餐区之间以水族墙相隔,营造出梦幻光影的灵动气氛。大厅设置超长宴会桌,大面落地窗将南向院落景观全部纳入视野,共享空间景墙设置绿植,使整个餐饮空间包围在自然绿意之中。
-
用户体验:本案是北京亿城燕西华府为寻求当下与社会环境,自然环境,文化环境匹配并和谐相处的生活方式而专属打造的具有独特精神属性的度假别院。低调隐奢,自然禅意的设计,让人享受繁华中的宁静。

