《光与影的颂赞——宜昌堂》



作品说明
- 项目类型:公共
- 项目地点:宜昌市
- 建筑面积:5356.0000㎡
- 项目造价:3000.0000万元
- 主案设计师: 徐平凡
- 参与设计师:林学明、唐丽淑、王徐一石
- 竣工时间:2023-06-06
- 设计机构:宜昌叁拾三装饰设计工程有限公司
票数 : 0
-
项目定位:教堂是牧师养牧群羊并传讲神的话语、教训众人和各项圣工之场所,同时也是承载历史、文化、艺术、信仰的灵性多维空间。
-
空间意境:由于教堂的新教属性和时代属性,其室内设计运用叙事性手法,将大量的文化隐喻通过不同的符号而非具象的造型展现出来,是室内风格富有神圣性又充满现代感。所有的意向均来源于《圣经》的典故。主堂的创意叙事是从圣经旧约创世纪第一章第一节开始:起初,神创造天地。地是空虚混沌,渊面黑暗;神的灵运行在水面上。神说:“要有光,就有光。” (创1:3)。洪水泛滥之时,那和华坐着为王;耶和华坐着为王,直到永远(诗29:10)。大堂空间以灰暗水泥色为主色调,圣台和主背景墙为深海蓝色,以圣经关于水的描述为依托,象征着洪水泛滥耶稣坐着为王与神的大能,并主堂入口的《水》遥相呼应,歌颂神的大能、慈爱与怜悯,哈里路亚。堂内东西两侧墙体区域,以灰色混凝土营造出的简约而内敛的效果。西墙是以“哭墙”的残存石砌块状机理为素材,寓意着“忏悔”和“感恩”之意,而西墙上的七个光洞寓意着创世纪中“神用七天创造天地万物”,刻在石壁上的经文如神的话语刻在人们的心板上。阳光越过窗洞形成丁达尔效应,洒向地面、墙面,令众信徒在此情此景下自然地怀揣感恩和忏悔的心面对救赎。东墙是以旷野、峭壁为题材的抽象纹样,表达着圣徒们跟随主耶稣背上十字架走向“旷野”奔向“自由”的信仰之路。北面二层为红色通墙,形成对聚会大厅的围合感。红色代表着新约耶稣基督宝血的遮盖、救赎、生命和爱,同时也迎合中国人祥和、喜庆、热情、祝福的审美传统。
-
空间布局:教堂的整体设计手法均采用纯粹的几何学方式进行空间营造,简约、纯粹、通透、富有思考的建筑结构语言。室内建筑部分仍旧秉承着空间营造语言的同时,营造灵动、艺术、圣洁的空间
-
设计选材:在选材上,本设计注重材料的美观、功能、环保三者的统一。选用的装修材料及产品均符合国家标准规定,并优先使用节能、环保可改进室内空气质量及可重复、循环再生使用的产品和材料。工程验收时均符合相关要求。例如主堂所采用的穿孔水泥吸音板具有吸音降噪、保温隔热、环保阻燃、质轻稳定、易加工安装、抗冲击强、维护简便等特点。
-
用户体验:经使用,用户普遍对作品给予了高度评价。他们普遍认为:教堂设计理念非常独特,融合了文化、艺术和信仰的灵性元素,而这些元素为空间增添了深度和内涵,方便让大家更好地理解和体验信仰,这样既考虑了教堂的宗教功能,又充分展现了艺术价值。
主堂室内主入口,两扇紫金色的铜大门,平雕着耶稣牧羊的故事。上面用希伯来文、希腊文、英文、中文书写着经文:我实实在在地告诉你们,我就是羊的门(约翰福音10:7)
西墙以“哭墙”的残存石砌块状机理为素材,寓意着“忏悔”和“感恩”之意,而西墙上的七个光洞寓意着创世纪中“神用七天创造天地万物”,刻在石壁上的经文如神的话语刻在人们的心板上。
电梯间内以艺术家余静赣的画作为装饰,让艺术润物细无声的影响着信徒们
牧师办公室与教堂整体风格一致,简约、自然、朴素的环境让牧师得以安心专注的工作
北面二层为红色通墙,形成对聚会大厅的围合感。红色代表着新约耶稣基督宝血的遮盖、救赎、生命和爱,同时也迎合中国人祥和、喜庆、热情、祝福的审美传统。
西墙的另一个角度
天窗的大量运用,模糊了室内外界限,自然光线的倾洒而入增强了人与自然的亲和
东墙是以旷野、峭壁为题材的抽象纹样,表达着圣徒们跟随主耶稣背上十字架走向“旷野”奔向“自由”的信仰之路。
圣台正立面,为深海蓝色,以圣经关于水的描述为依托,象征着洪水泛滥耶稣坐着为王与神的大能,并主堂入口的《水》遥相呼应。
教堂整体外观
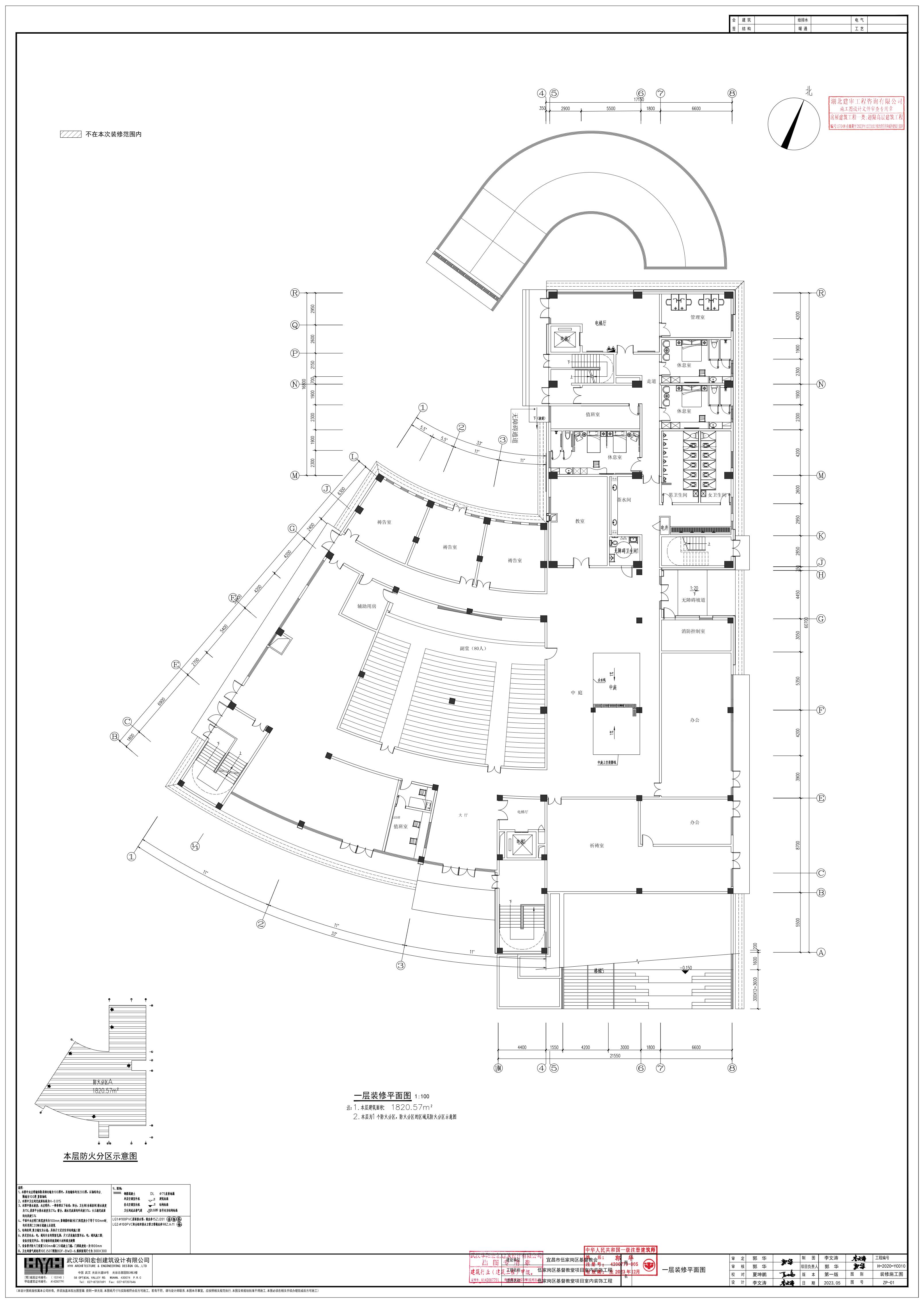
一层平面图
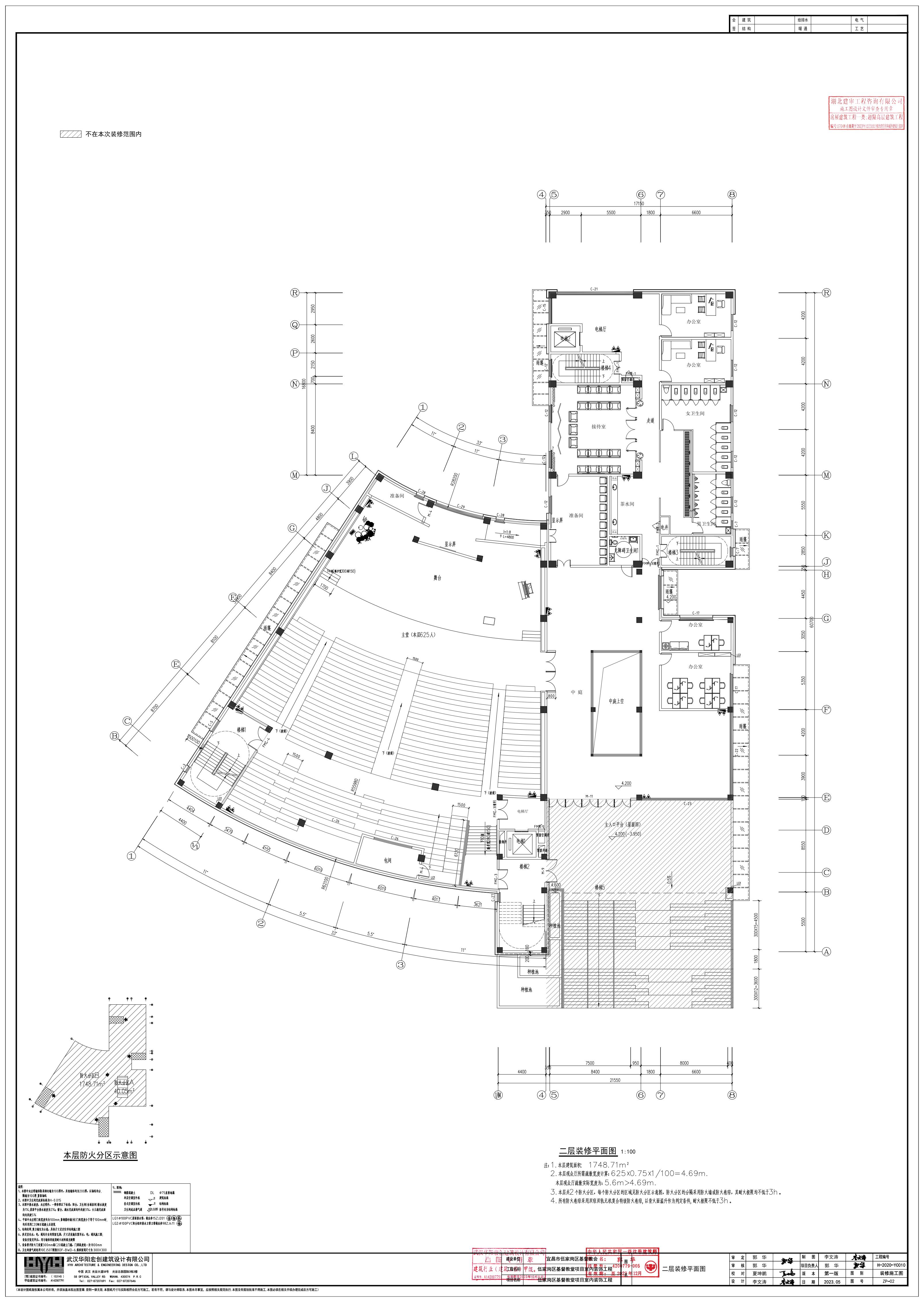
二层平面图
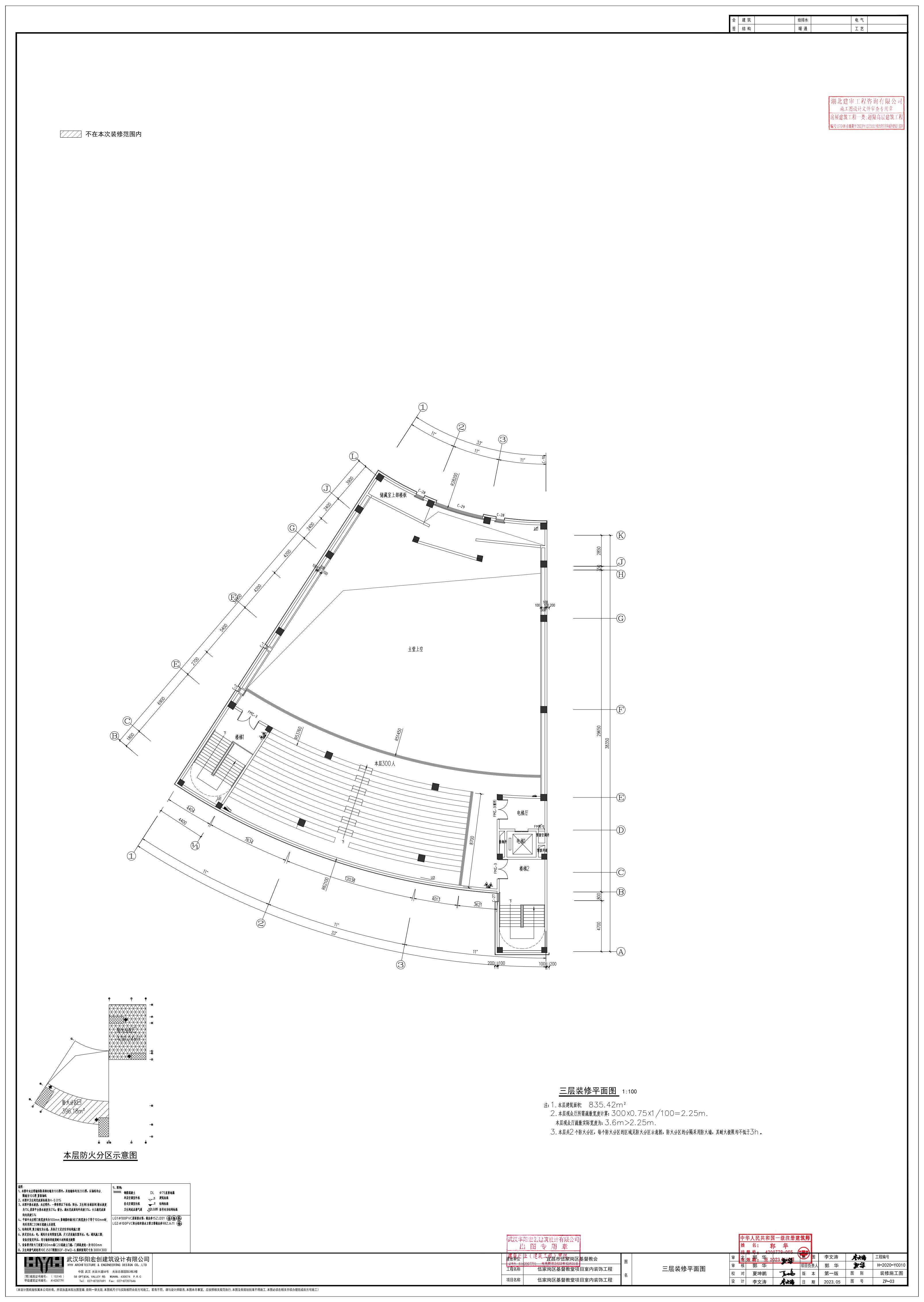
三层平面图
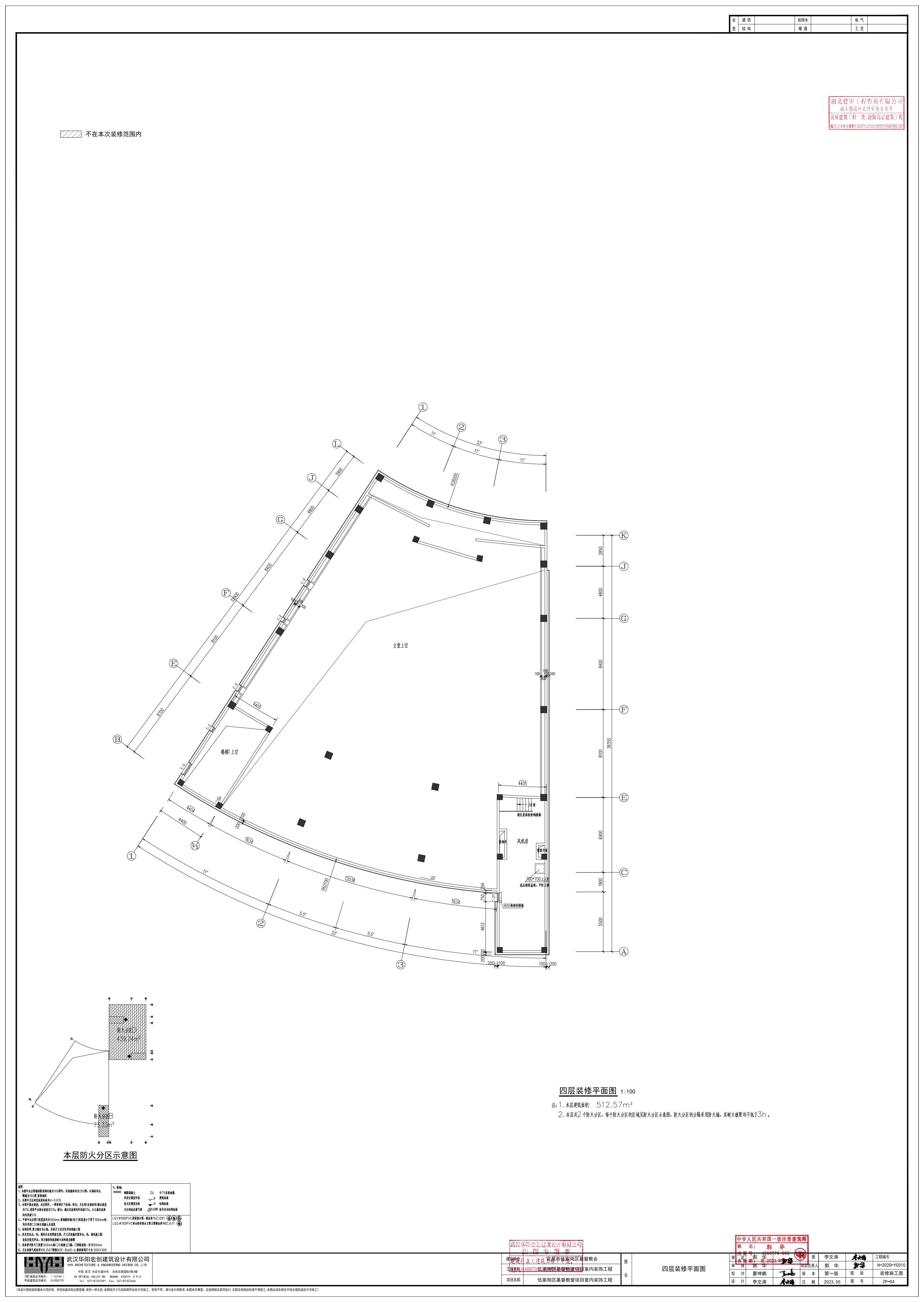
四层平面图
五层平面图

