摒弃传统格局—爱与空间的交织
496
作品说明
- 项目类型:别墅
- 项目地点:西安市
- 建筑面积:400.0000㎡
- 项目造价:200.0000万元
- 竣工时间:2023-04-10
-
项目定位:生活融合在自然中是空间的本质,绝不是一种风格的直线延伸,而是多种美学与情感的巧妙共融,空间中或许有着刚劲有力的粗野、柔和精简的细描,亦或是于片段角落中点缀上色,总之立意整体,细琢细节,才是空间的最佳打开方式。
-
空间意境:内心的闲适与平和,心中满藏幽趣,怀揣着对生活的向往,它可以是院中的一杯茶;案上的一瓶花;墙上的一幅画;甚至是树影间,日月洒下的清光,也足以令人动容。
-
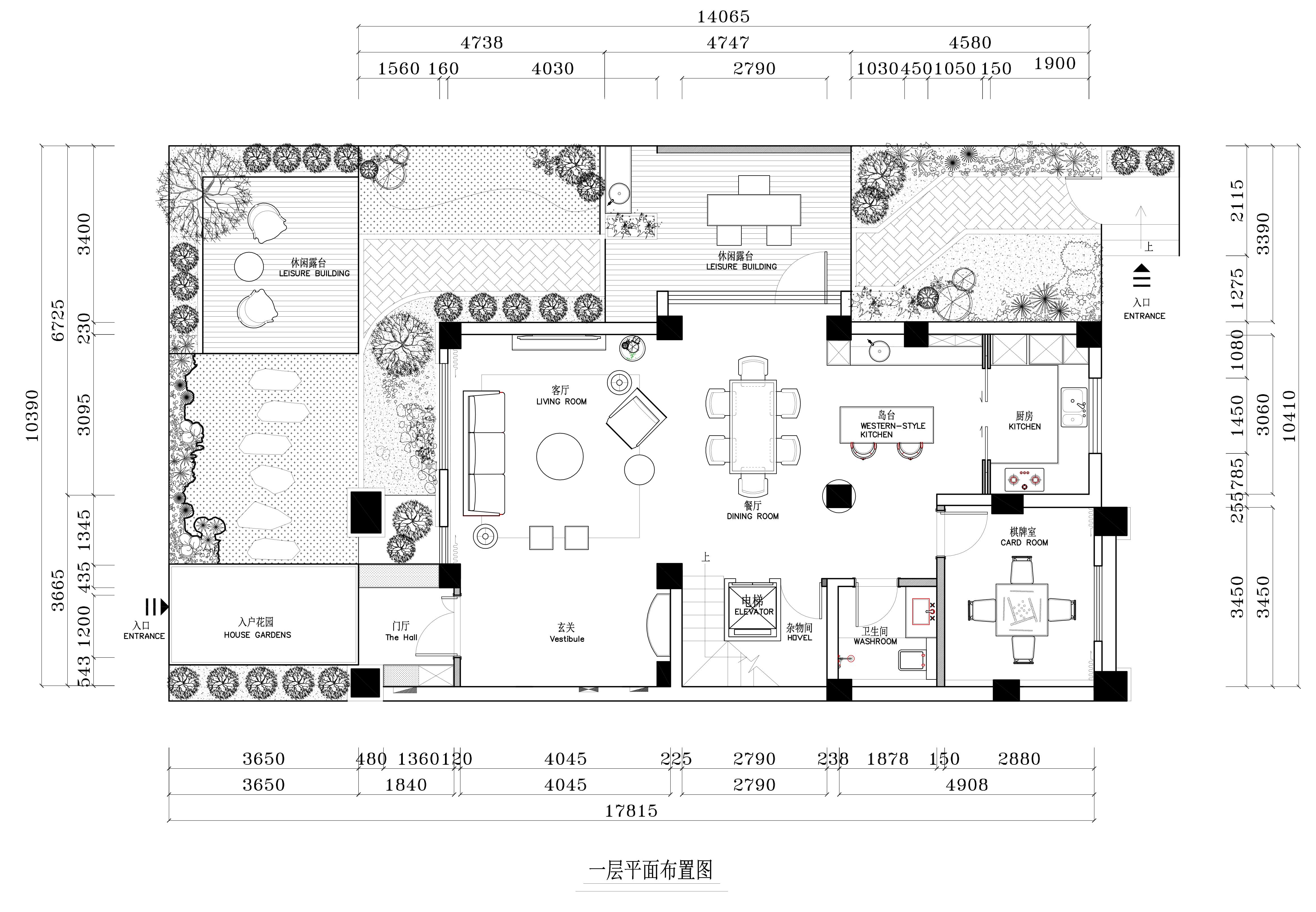
空间布局:一层:改变了入户门位置,将原有的入户门封闭,入户门调至房子的东侧寓意着紫气东来的美好意向;经过庭院再到入户,一步一景;原始的厨房也做了调整,使得空间气流通畅,每个功能之间更加连贯动线合理;原有楼梯间也增设电梯,楼层之间联系更加紧密方便。
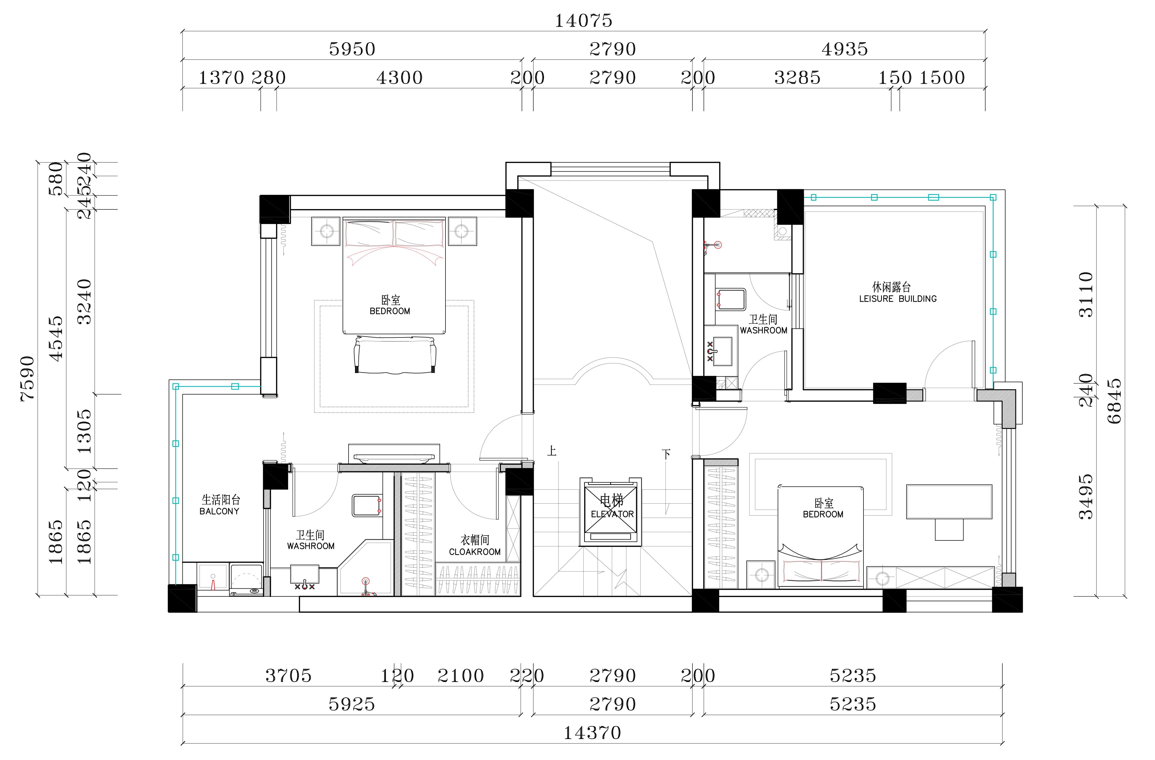
二层:通过楼梯间上至二楼,转身间挑空区域映入眼帘,给人一种小中见大的感触;过厅护栏运用玻璃同时又做了部分细节处理,手法上更加纯粹现代感增强,空间也相对有趣不呆板,处处展露设计细节;经过部分搭建,功能面积也相对增加。
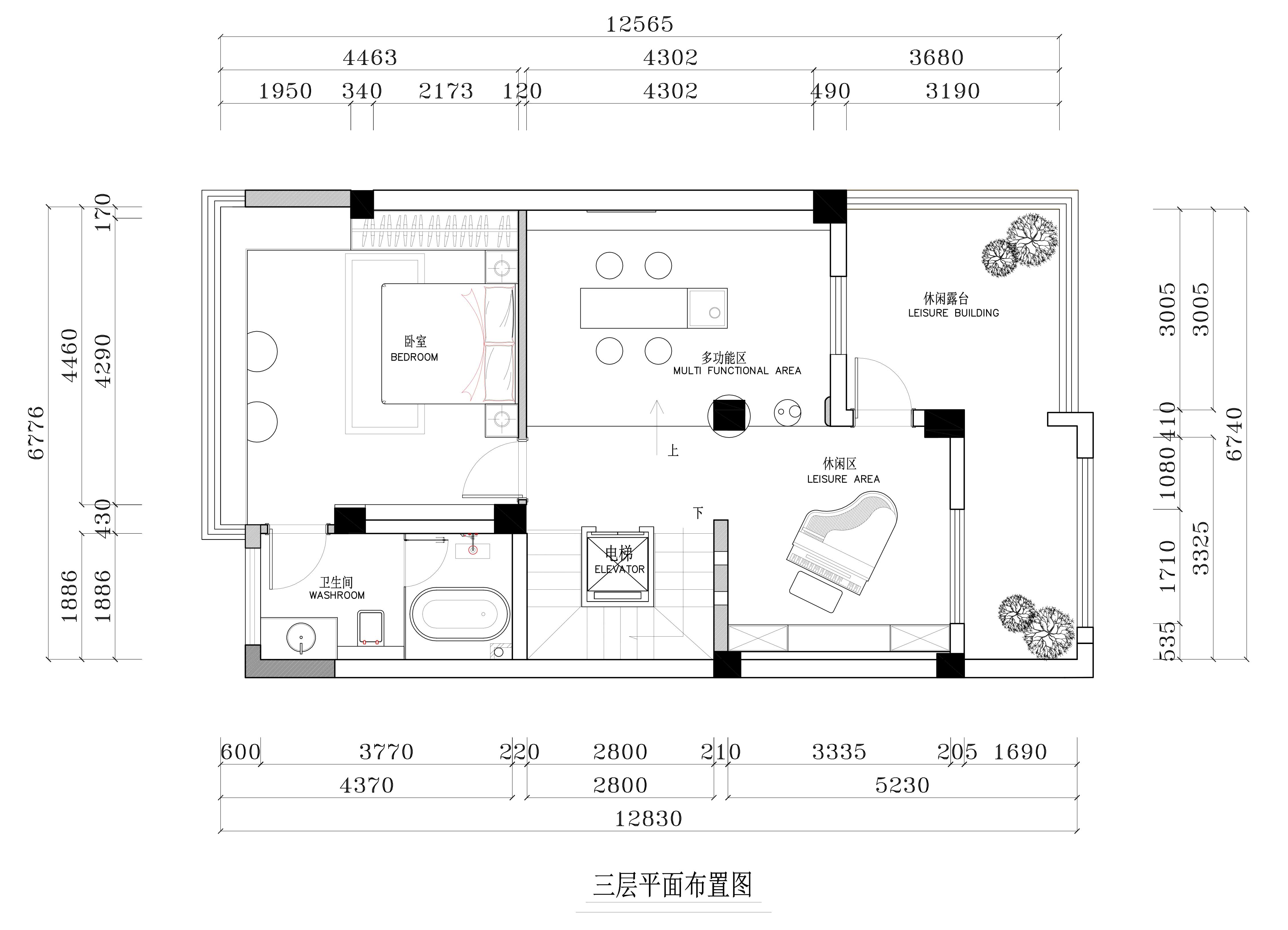
三层:通过楼梯间上至三楼,开放式的空间尽收眼底,使人豁然开朗;休闲区即起居厅的设定使得空间通透区于传统,主卧的合理规划,面朝向窗,景色一览无遗;在空间处理上与二楼有着异曲同工之妙。 -
设计选材:尽可能用小一部分的新材料,同时用大部分精典材料来做不同的语言传递,精挑材料中的优质特殊纹理,挑选上承的成色。
-
用户体验:客户原本不喜欢的空间格局,运用我们的专业使得最终变成全家人都喜欢的房子,被誉为边户的“天花板”
0
0

认证 · 让您身份增值