碧之海域



作品说明
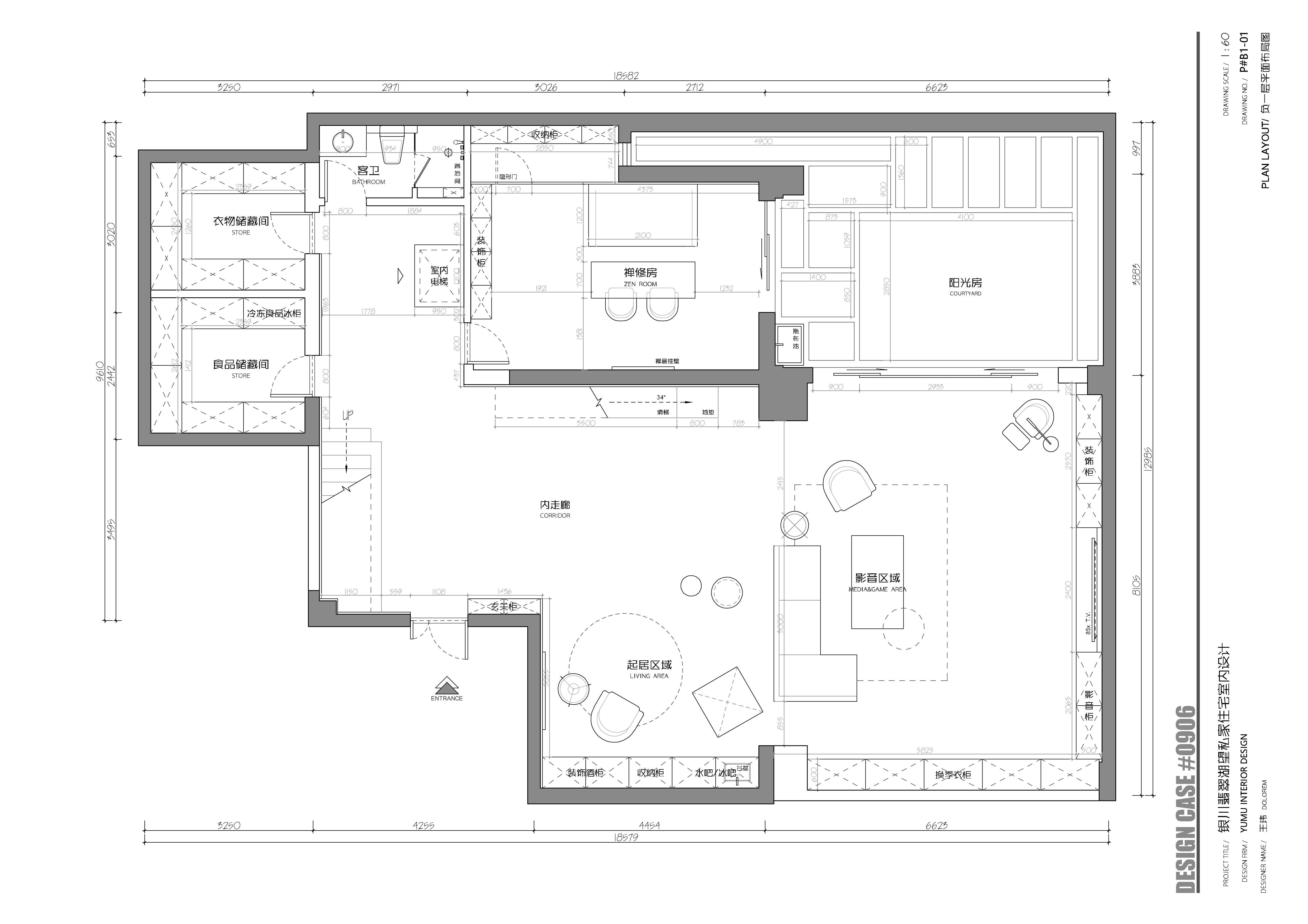
- 项目类型:别墅
- 项目地点:银川市
- 建筑面积:480.0000㎡
- 项目造价:300.0000万元
- 主案设计师: 王玮
- 竣工时间:2023-12-20
- 设计机构:南京德洛瑞姆室内设计
-
项目定位:如今大部分的设计工作开始变得越来越套路,业主的生活也就自然会被越来越“套路化”,这个我觉得很可怕。我们对待工作的态度可以“专业”,但对待生活,永远没有“专业”。
-
空间意境:“空间基本上是由一个物体同感觉它的人之间产生的相互关系所形成。”对于本案来说,从空间与人的关系出发,回到生活为止。
-
空间布局:布局里的相互关系,在我们的住宅设计中,我认为可以用设计“生活”这种思维方式来解读。而生活,当然需要我们每个人每一天的“设计”。
-
设计选材:用材选用环保物料,注重美观的同时保持健康。
-
用户体验:用户入住后评价满意。

