金樽酒窖
388
作品说明
- 项目类型:餐饮
- 项目地点:台湾
- 建筑面积:116.0000㎡
- 项目造价:250.0000万元
- 参与设计师:翁新婷
- 竣工时间:2022-05-10
- 设计机构:理丝室内设计
-
项目定位:空间如酒,从第一道制程开始,每一环节皆会影响最终的风味。此案为一贩售红酒及威士忌的商业空间,业主的经营定位为「酒窖」非为酒吧,因像以如古老酒窖一般,使用当地传统建材为空间的主要素材。
-
空间意境:空间设计就像酿酒,从第一步到整个过程,每一个细节都关系到结果的味道。它保留了酿酒的意义,同时使用了大量的本土材料:从天花板上滴下的形状暗示着葡萄酒的眼泪,在有纹理的背景下。
开出一个拱形门口,在砖墙上可以看到一个有趣的砖石结构,青铜板被精心镶嵌在底层,给人一种现代感。楼上,酒吧站位于布局的核心,提供了一个集中、适度的距离来服务每一位顾客。此外,光线和照明不仅勾勒出纹理和材料装饰,还让空间充满英伦风情。从空间的标志、吧台立面等立面细节上可以看到弧形的连续性,实现了企业形象的统一。
-
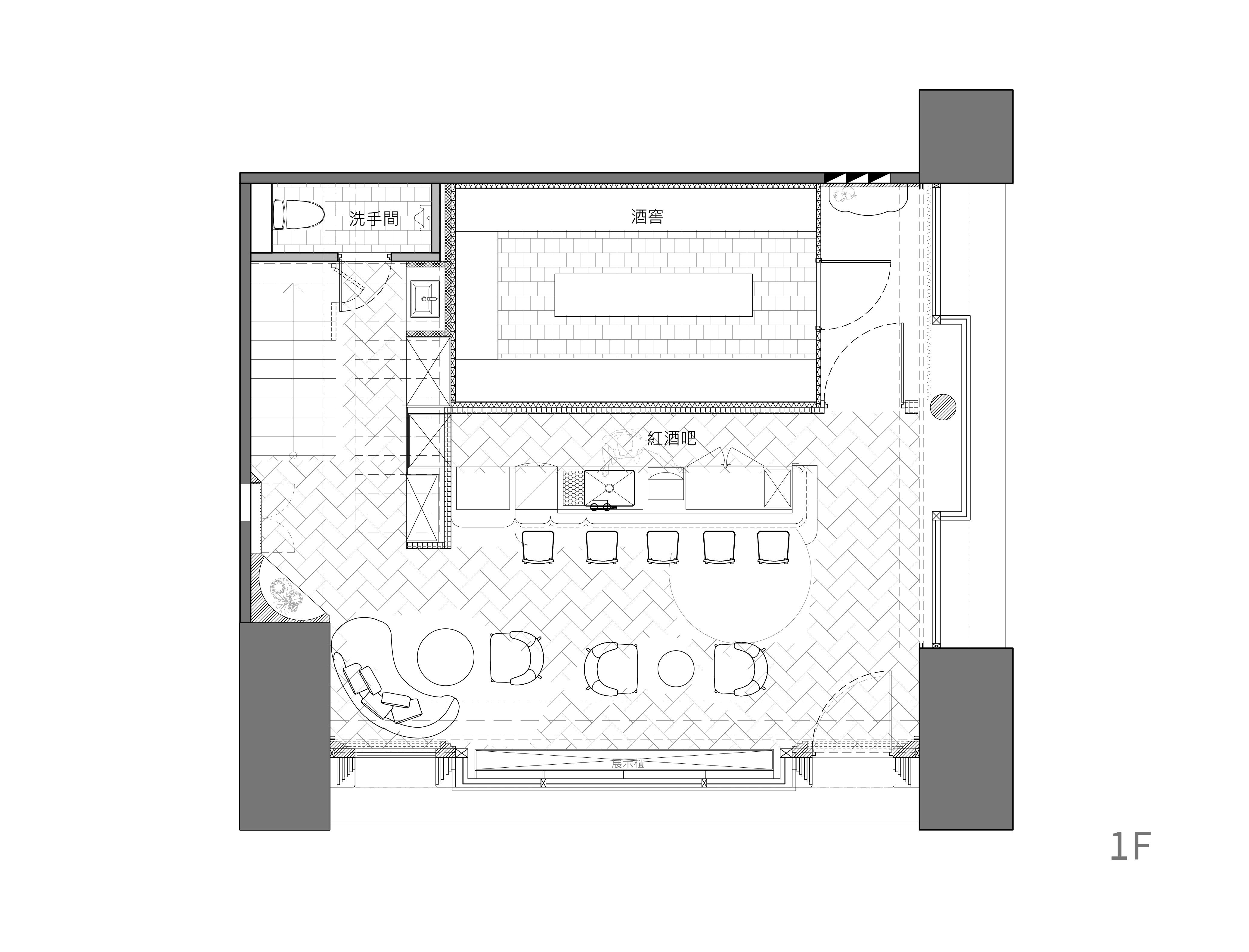
空间布局:座位布置有多种配置,以满足不同品酒人群的需求。透明的货架展示了与顾客和路人的双向互动:玻璃和抛光不锈钢的结合在内部营造出一种无忧无虑的轻盈感; 而从外立面上看到的漂浮的瓶子与立面格子图案相得益彰。此外,包含各种木种颜色的地板与青铜镶嵌相结合,营造出增强的视觉效果。
-
设计选材:恒温恒湿的藏酒设备以台湾火头砖做为保温材最外层的披覆,在叠砌中加入店名元素排列变化,金属店招特地做同红砖大小再置入现代语汇。以特殊纹路涂料处理好似附着在空间中可见的湿度,天花巨型球体仿若摇晃酒杯时滴落的酒液。地板延续传统元素仿制拼花木纹,顺应异材质崁入金属图像细部衔接。厕所壁面采以同红砖大小的丁挂砖,表现出型式上接近但材料本质上完全的对比。
-
用户体验:回應著設計概念:「空間設計就像釀酒」,將釀酒、品酒的概念融入設計思維中,顧客宛如置身在葡萄酒、威士忌多年歷史的精緻蘊含中,透過空間氛圍沉浸營造,顧客隨著進入空間的開始,就如同開始感知釀酒、品酒的過程,一起在金樽之中,回味無窮風味。
空间如酒,从第一道制程开始,每一环节皆会影响最终的风味。
此案为一贩售红酒及威士忌的商业空间,业主的经营定位为「酒窖」非为酒吧,因像以如古老酒窖一般,使用当地传统建材为空间的主要素材。
空间设计就像酿酒,从第一步到整个过程,每一个细节都关系到结果的味道。它保留了酿酒的意义,同时使用了大量的本土材料:从天花板上滴下的形状暗示着葡萄酒的眼泪,在有纹理的背景下。
座位布置有多种配置,以满足不同品酒人群的需求。透明的货架展示了与顾客和路人的双向互动:玻璃和抛光不锈钢的结合在内部营造出一种无忧无虑的轻盈感
以特殊纹路涂料处理好似附着在空间中可见的湿度,天花巨型球体仿若摇晃酒杯时滴落的酒液
地板延续传统元素仿制拼花木纹,顺应异材质崁入金属图像细部衔接。厕所壁面采以同红砖大小的丁挂砖,表现出型式上接近但材料本质上完全的对比。
开出一个拱形门口,在砖墙上可以看到一个有趣的砖石结构,青铜板被精心镶嵌在底层,给人一种现代感。
楼上,酒吧站位于布局的核心,提供了一个集中、适度的距离来服务每一位顾客。
从空间的标志、吧台立面等立面细节上可以看到弧形的连续性,实现了企业形象的统一。
光线和照明不仅勾勒出纹理和材料装饰,还让空间充满英伦风情。
0
0

认证 · 让您身份增值