雲漫酒店-云裳之间
237 - 项目类型:酒店
- 项目地点:绵阳市
- 建筑面积:1150.0000㎡
- 项目造价:150.0000万元
- 主案设计师: 何俊杓
- 参与设计师:何俊杓/廖晓霞
- 竣工时间:2023-10-01
- 设计机构:四川本合空间室内设计有限公司
-
项目定位:本酒店根植于文明城市,以致雅为主题,以中国文化元素引入,深度挖掘传统文化内涵,提取内敛雅致的意蕴精髓,营造空间极具文化探索魅力。
-
空间意境:艺术漆空间的肌理环绕,斜面雕塑感造型,自然流畅的表现力,深色的画面底色,浅咖色轻盈布满,墙体装饰紧扣空间主题,温润内敛的空间环境。
-
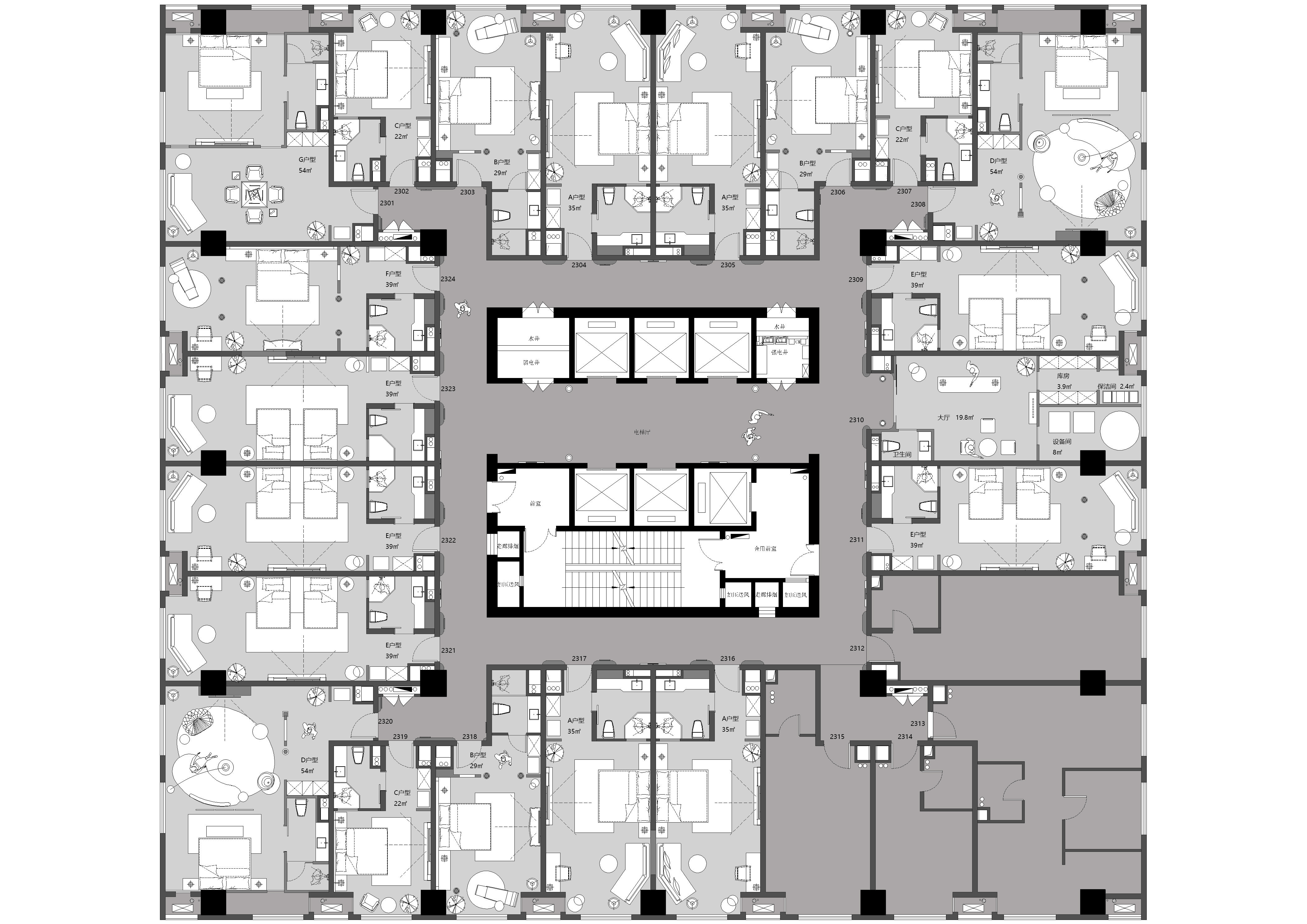
空间布局:理性的空间流线梳理,便利的走廊方向示意,房间由回字形布局排列,不同角度呈现不同的视觉体验,弧形立面缓解视觉疲劳。
-
设计选材:空间内部使用低碳环保的板材,局部绿植点缀装饰,让空间更为生态宜居。
-
用户体验:对于空间主题表达认同感,空间在形式与功能都有所兼顾,后续经营也更为自信。
套房以其极具表达的色彩叙述空间的多元性。
蓝色拱门洞的视觉取景构图丰富目之所及。
每一帧小景都精心组合,入室如画。
引入隔断不仅营造空间层次,同时完善空间功能,满足多样的居住需求。
小曲面吊顶在原始与重塑之间进行了连接过渡。
空间的尺度与动线明晰,符合入住习惯。
灯具的辅助效果增加了空间温暖宜居的氛围感。
线面几何构成打破枯燥墙面。
浅咖色调的软装系列,更为自然文雅。
场景与功能预设,空间表现的层次,入住仪式感的上升。
弧形元素与艺术漆相互融入,纳入木纹肌理元素,极致展现雅韵主旨。
改卫生间门为推拉门,房间入口增加储物空间, 竹子壁画文雅气质贯穿空间。
厚重木纹,线条与材质的质感肌理无不在诉说文艺气息。
标间的营造更为深邃严整,理性的色系表达空间的沉稳。
较深的材质软装,表现空间冷冽高级的韵味。
柔和墙面造型补充空间包容性姿态。
枯木逢春的陈列主题,空间独特之处有迹可循。
背景墙局部国风画面循序渐进,素雅幽静之气环绕其中。
取景框的形态变化,借景表现空间画面层次。
模拟生活闲适状态,定格时间的故事表达。
留白之处,光影律动。
古典元素层层递进,于古味浓郁的咖色调氛围,内敛宜人。
细腻的空间陈设,近人化的空间场景表现力。
床品饰面与装饰花瓶枯树枝古朴自然,局部点睛。
一隅松弛之地,落座于静蔽之处。
装饰画与墙体以面的形式呈现,床头台面穿插其中,层次清晰。
原木包边与白色墙板包裹着原裸露设备更为整洁明亮。
过道靠近房门一侧用浅色墙板以便突出房间区域,提供清晰的视觉指引;使用墙画来遮盖原有裸露墙体,防盗门一侧用弧形墙体给狭长过道增加层次感。
前台区域艺术漆布满整个空间,斜面吊顶连接起过厅更为自然流畅,地面黑色地砖作为画面底色,浅咖木色调轻盈的落下,墙体的装饰简单点缀,温润柔和。
吊顶层高、给排水与消防不能进行改造; 设备外机与电梯厅门框裸露,空间协调性欠佳; 房间区域动线不明,酒店功能性弱。
在原有层高无法改变情况下,采用格栅灯带凹面吊顶使通道整体空间有所过渡; 合理归纳区域动线,分析各区域面积,尺度为基,划分房间类型; 保障基础设施不受影响,空间表现由此展开。
0
0

认证 · 让您身份增值