与光影作伴,岁月勿扰



- 项目类型:私宅
- 项目地点:重庆市
- 建筑面积:550.0000㎡
- 项目造价:62.0000万元
- 参与设计师:与光影作伴,岁月勿扰
- 竣工时间:2023-07-18
- 设计机构:重庆赫森室内装饰设计
-
项目定位:时空之间有着与生俱来的牵引与羁绊,从烟波氤氲的清晨,到缓缓落幕的窗外夕阳,在时间的深邃中感知家一天的结构变化。
顺着生态的园林绿植抵达入户大门,目之所及,亭台楼阁、山色缱绻。长寿碧桂园以自然为笔触,描摹出这喧嚣闹市外的诗意之地。550㎡复式跃层,层叠错落,上下有致,通透的南北户型让光去到室内的各个角落自由的延展开来。赫森设计知晓业主夫妇的生活期许,将简约与艺术带入室内,与光影作伴,每一个日暮黄昏、惬意午后亦或是孩童的嬉戏打闹,都在这灵动的空间中,获取更多的岁月勿扰。 -
空间意境:LESS IS MORE,当看尽了世界的繁茂与复杂,更需要回归内心的简洁与舒心。两层楼的复式跃层,每个空间的尺度几乎不亚于别墅,这样的开阔与大气给予了赫森更多的设计灵感,无需依附外力,将光影的变化与空间的线条结合而至。
-
空间布局:.4米超高层高让眼前的落地窗聚合了最美的窗外景致,当阳光倾泻进来,客厅被温暖包裹,所有人循光而来感受眼前都市的触手可及,Bocci吊灯融合出神秘与抽象的新奇元素,将整个空间镌刻在此刻,怡然在此间。设计有光,才能成为光。
-
设计选材:随着时间的变换,光在室内游走切割出不同的明暗场域,在这极富质感的客厅空间,轻抚过分段式组合沙发、线条流畅的微笑椅,丰富的色彩维度、材质肌理、所有的元素层层渗透与光对话,体验充满极简艺术的生活美学。
-
用户体验:客户很满意,并评价是早以超出他的期望,材质和装饰恰到好处,设计师很懂他家,把身边朋友都推荐来继续创造
LESS IS MORE,当看尽了世界的繁茂与复杂,更需要回归内心的简洁与舒心。两层楼的复式跃层,每个空间的尺度几乎不亚于别墅,这样的开阔与大气给予了赫森更多的设计灵感,无需依附外力,将光影的变化与空间的线条结合而至。
5.4米超高层高让眼前的落地窗聚合了最美的窗外景致,当阳光倾泻进来,客厅被温暖包裹,所有人循光而来感受眼前都市的触手可及,Bocci吊灯融合出神秘与抽象的新奇元素,将整个空间镌刻在此刻,怡然在此间。设计有光,才能成为光。
随着时间的变换,光在室内游走切割出不同的明暗场域,在这极富质感的客厅空间,轻抚过分段式组合沙发、线条流畅的微笑椅,丰富的色彩维度、材质肌理、所有的元素层层渗透与光对话,体验充满极简艺术的生活美学。
空间的另一边,是隐秘在阳光阴影下的一方静谧。在这里抛开奢雅之态,以简单的大理石餐桌去调配出灯影之下的温润时光,皮质的大象灰餐椅将多重质感汇聚一处,尽显高级材质的细节张力。
夜晚随意坐于窗边的休闲吧台,倒一杯威士忌看夜色撩人、寥寥几笔将这里的含蓄之美与低调素雅尽数写进。
家不仅体现在生活的漫漫日常,更是一个人内心世界的外在显现。书房与阳台花园既连通又隔墙独立,花园的景致和着微风与阳光映射进书房,让自然沁入内心,感受宁静的闲暇时光。
客厅外倚窗而望,60㎡的室外花园以简约的设计线条构建出梦幻般的场景,L型转角沙发让这里更显慵懒惬意,热带植物围合一圈,将光影堆叠得如梦如幻。等风来时,树影摇曳打开空间壁垒,闭眼仰躺,承时光之静。
真正的兴趣爱好往往能充实内心,一缕阳光洒入室内,大气含蓄的低饱和度床品清新温柔。
柔和的光与徐徐微风悄然进入,拥有明快色彩的阅读区成为空间焦点,拾起书本享受知识带去的能量,此刻的慵懒之下是孩童内心的精神释放,生命的感性构建出对美好生活的向往,从一而终直面成长。
想象是孩童特有的权力,当脑海中的世界随着手中的折叠、剪裁慢慢展现,这是每天送给自己最大的惊喜,儿童房的修饰不再迎合色彩的堆叠,而是用简洁的语言去制造一个看似简单却细腻的空间,在时光的陪伴下,眺望未来。
光的晕染从一楼贯穿几何楼梯,走进二楼的休憩空间,是蓝白交织的梦。看似简单的布局潜藏着诸多的小心思,波浪纹理的水晶床头灯高级迷幻,灰色的床品有着细腻的质感温柔的包裹着归家的愉悦。
一楼平面图
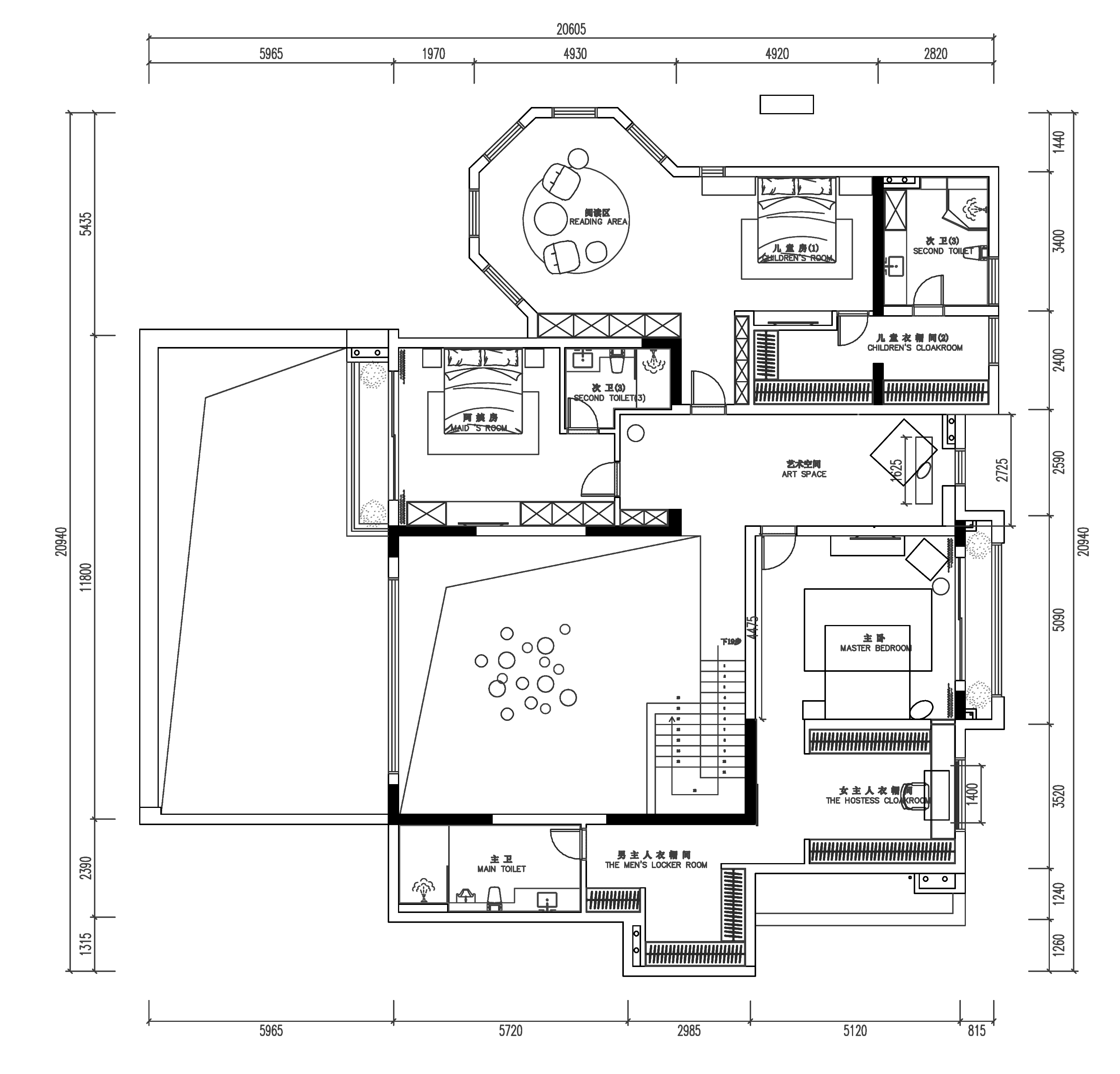
二楼平面图

