柔融圆弧 温暖之诗


作品说明
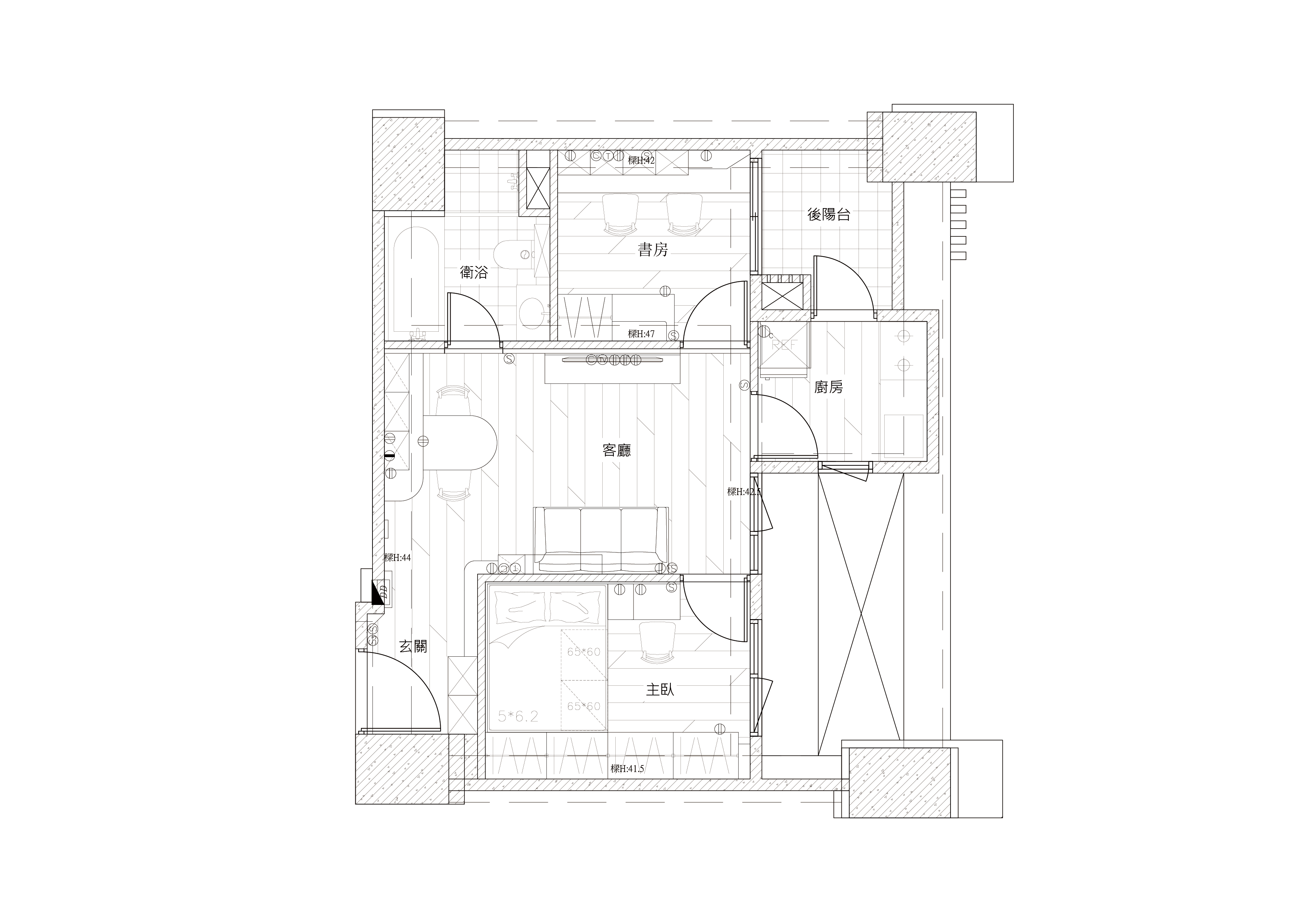
- 项目类型:住宅公寓
- 项目地点:台湾
- 建筑面积:46.0000㎡
- 项目造价:20.0000万元
- 竣工时间:2022-02-20
- 设计机构:唐门室内装修规划设计
-
项目定位:居家设计乘载着生活与梦想,以使用者实际需求与生活型态为出发点,设计规划实现梦想的家,透过简约风格设计,在有限的空间里,做出适度的收纳,每空间做不同的色彩搭配设计,让一整天忙碌疲惫的身心,有舒服漫享舒适无压的空间。
-
空间意境:因应业主喜好,选用充满活泼清新纹理的水磨石,奠定优雅恬静的质感,并善用温暖的木质调与柔和弧形线条勾勒的造型等元素,将温暖的氛围浓缩在微型空间打破多数人对小宅的印象。主卧私领域维持简约的空间线条,以温馨实用为主,柔和的肤粉色墙面和同色调木质纹理 ,搭配衣柜长虹玻璃增加了空间的开阔感,让休息氛围更温暖舒适。书房以焦糖色及其他颜色的交叠,呈现与其他空间不同的感觉,增加家的多变性。
-
空间布局:原客厅电视墙方向有两扇门,视觉上呈现狭小及违和感,透过设计改变形式与不同材质层次交错让整体视觉上更有空间延展感。餐桌及备餐柜的结合,整体规划充分达到坪效最大化机能完善,在现今快步调的生活中也不失仪式感。
-
设计选材:水磨石虽保有传统磨石子的复古韵味,却打破过去老派的风格印象,供多元的颜色款式可搭配,因此选用具活泼清新纹理的水磨石大面积运用于电视墙,营造温馨恬静的法式氛围。
-
用户体验:以棕色、焦糖色为主调带来舒适惬意的秋冬氛围,虽然使用大面积的暖色调却不会造成压迫厚重感,适度融入米白及灰白色调,保有温暖轻盈的空间调性,堆叠空间层次。

