《金地九玺》
474
作品说明
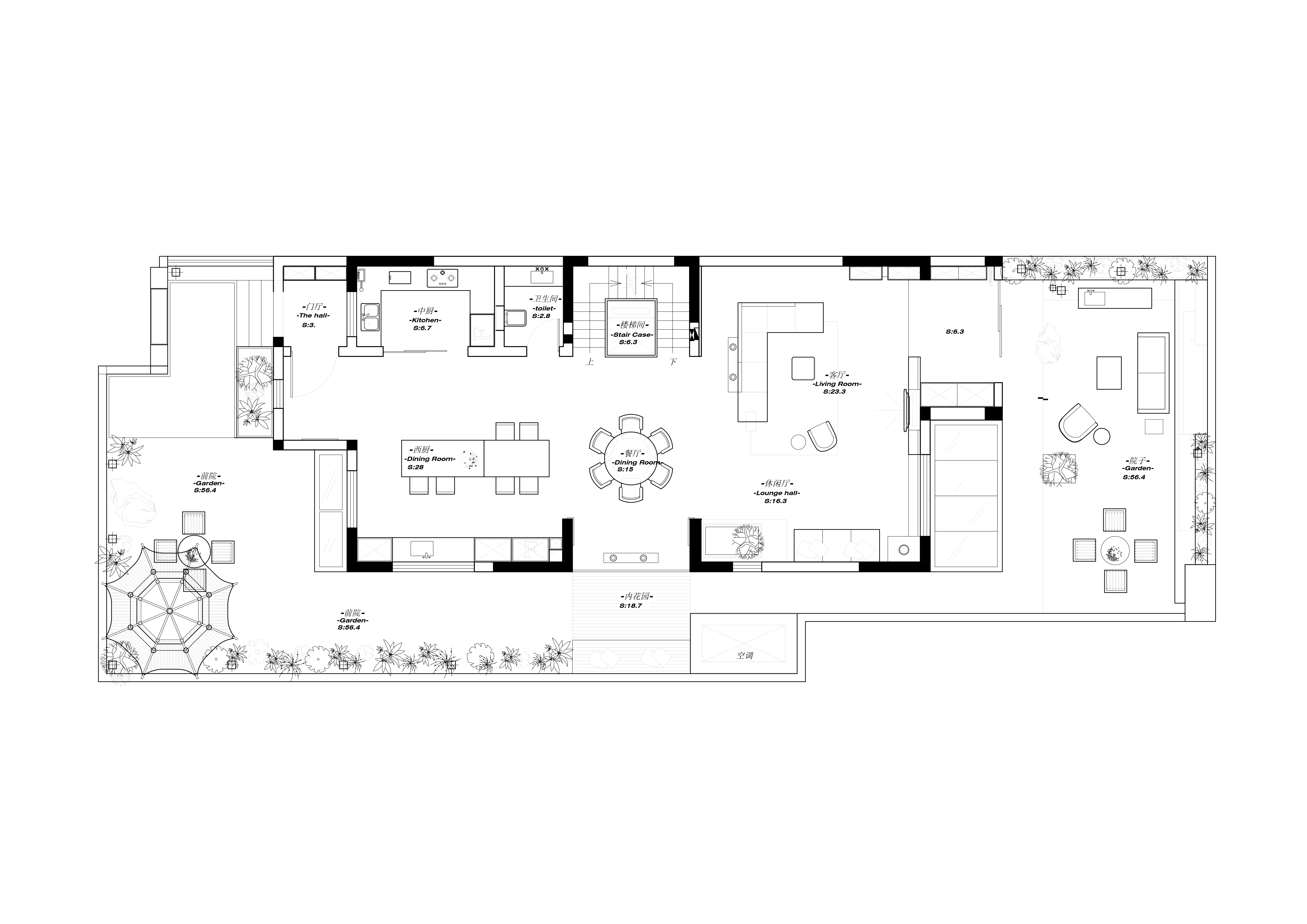
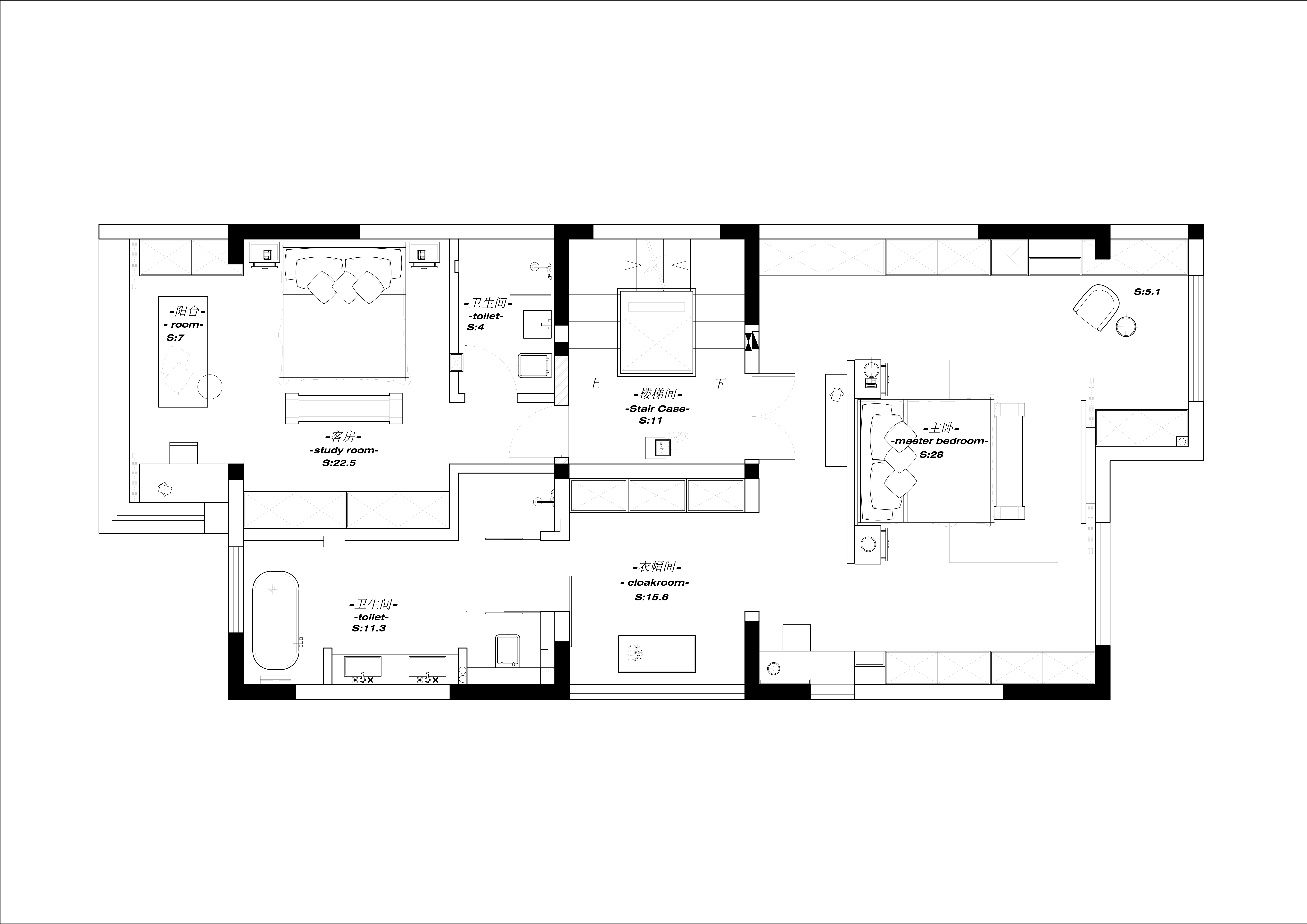
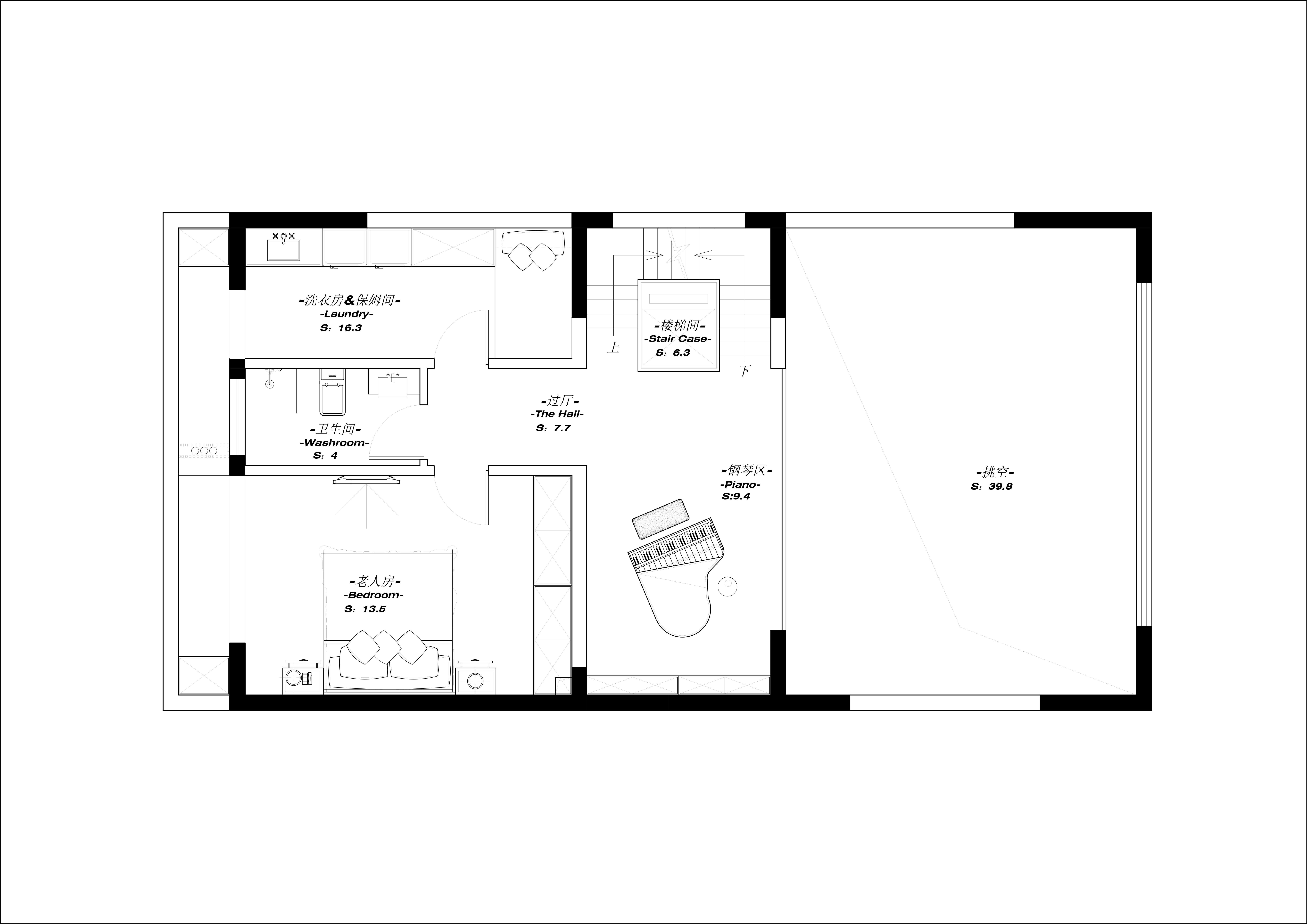
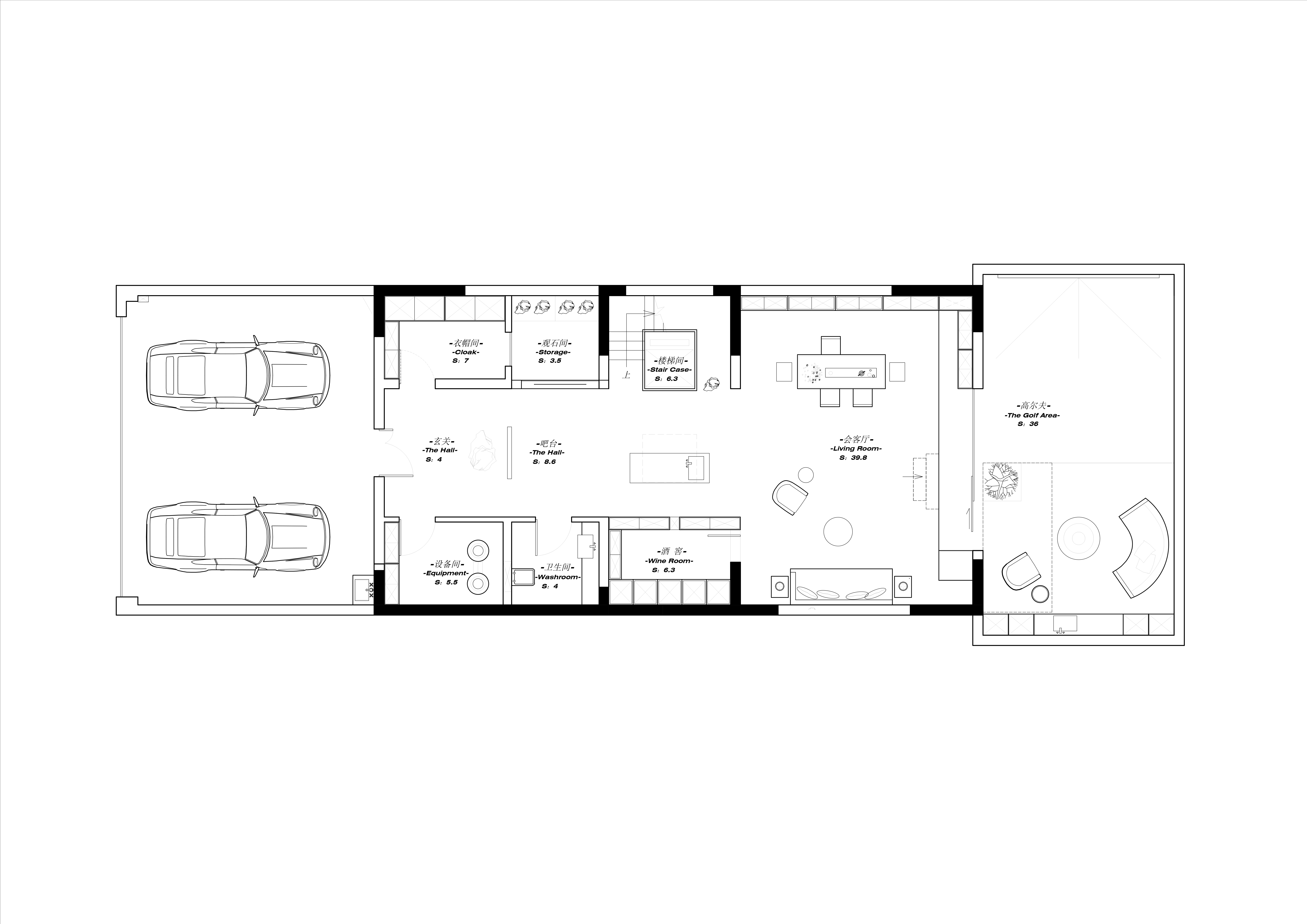
- 项目类型:别墅
- 项目地点:西安市
- 建筑面积:650.0000㎡
- 项目造价:800.0000万元
- 主案设计师: 吴岩
- 参与设计师:吴岩
- 竣工时间:2022-06-08
- 设计机构:西安未印室内设计
-
项目定位:对于居民来说,“心理形象”是比“形象”更重要的存在,感知价值比功能效益更有吸引力。设计师在设计中大胆构思了象征空间与精神世界的联系。通过空间造型设计、色彩、材质、灯光的综合表现,和对世界的再现寻求灵魂的落脚点,营造出强烈的新奇感和瞬间认同感。并在设计中延伸艺术与生活的哲学,抚慰身心,给人一种对环境的归属感。强调地方设计,营造独特的场所精神;强调家具与艺术文化的联系,打破陈规陋习和过时趣味;强化空间与人的文化认同,通过空间完成感性与理性之间的桥梁。回归现代自然,以质朴质朴创造明净,用内敛内敛的笔触描绘生活的本真,历经千百年的精彩体验后依然偏爱纯粹,以暖阳为伴,以自然为趣,展现生活的真谛。
-
空间意境:在设计中,庭院中的景观通过落地窗引入室内,餐厅光线充足。在灵活的光影的引导下,光在空间中舞动,空灵而轻盈,使一切都被赋予了活力和能量。光影进入房间,微风柔和,房间清朗自由流动。
-
空间布局:设计以主人生活和活动线的交叉点为空间场景的中心,格局舒适的多场景会议室成为住宅的动态聚集场——圈子社交、家庭聚会、收藏展览......融合各种生活形式,生活节奏呈现自由自在。作品中还有一个地方,门窗如框,庭院里的红枫像一幅山水画组合在一起,给人一种幽静美丽的舒适感,感叹岁月的宁静。捕捉透明的光影,柔和的微风和纯净的自然,空间的每一个场景都在细节上优雅活泼
-
设计选材:设计中选用了可持续的木材以及天然纤维, 并选择了经过绿色认证的材料,确保其符合环保标准。这不仅提高了设计的可持续性,还有助于建立一个健康的室内环境。
-
用户体验:“设计结果完全超出了我们当初的期待,各个细节都被处理得无可挑剔,让人心动不已。特别想提及的是地下室的室内高尔夫,真的是个意外的惊喜!这个空间已经成为我先生每天的必去之地,完美地满足了他对于练球的需求。此外,设计团队还巧妙地为我们打造了一个收藏室,里面展示了我们多年来收藏的各类奇石和珍贵物品,每一件都像是艺术品一样精心陈列。整个设计不仅美观,更实用,真正实现了我对自家的理想期待。非常感激设计团队,他们的辛勤工作使我们的家变得更加温馨、舒适,简直是梦想成真的感觉。”
0
0

认证 · 让您身份增值